Ringveien 214
3 790 000 kr
232 m²
3 soverom
Komplett salgsoppgave

Krokemoa
Innholdsrik enebolig - Garasje med loft - Solrikt - Barnevennlig og sentralt
Prisantydning
3 790 000 krOmkostninger
95 840 krTotalpris
3 885 840 kr
Pris
Bruksareal
302 m²BRA-I (internt bruksareal)
232 m²BRA-E (eksternt bruksareal)
70 m²TBA (terrasse-balkongareal)
63 m²
Areal
Etasje
3Byggeår
1949Soverom
3 soveromBad
2 badTomteareal
629 m² (eiet)Type
Enebolig - FrittliggendeEierform
EietEnergimerke
Oransje G
Nøkkelinfo
Unngå doble boligrenter
Vi tilbyr gunstig forsikring.
Vurderer du utleie?
Få et tilbud fra Utleie KrogsveenHva koster lånet?
Sjekk estimert lånekostnadBeskrivelse
Kort om eiendommen
Krogsveen presenterer en romslig og familievennlig enebolig med en gjennomtenkt planløsning som gir plass til både hverdag og hyggelige sammenkomster. Her får du garasje med innredet loft – ideelt til oppbevaring, hobby eller ekstra boltreplass. Boligen har moderniseringsbehov, noe som gir deg muligheten til å forme hjemmet akkurat slik du ønsker. Eiendommen ligger tilbaketrukket fra Ringveien og er godt skjermet for støy og innsyn, samt en frodig hage som innbyr til lek og avslapning. Barnevennlig beliggenhet like ved Krokemoa barneskoler, Bugården ungdomsskole, barnehager, Bugårdsparken og Pindsle.
Velkommen til en hyggelig visning.
Innhold og byggemåte
Innhold og byggemåte
Eiendommen
Ringveien 214, 3223 SANDEFJORD
Kommunenummer 3907, gårdsnummer 150, bruksnummer 167, ideell andel 1/1
Innhold
Totalt bruksareal BRA: 302 kvm
BRA-i:
Enebolig:
Kjeller 81 kvm: Kjellerrom, gang og 6 boder.
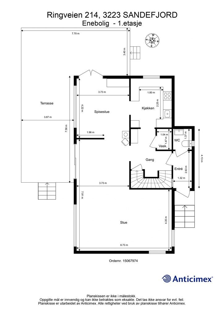
1. etasje 88 kvm: Entre, stue, spisestue, kjøkken, toalettrom, vaskerom og gang.
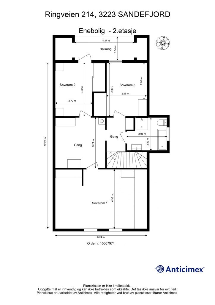
2. etasje 63 kvm: Baderom, 2 ganger og 3 soverom.
Åpent areal:
1. etasje 56 kvm: Terrasse
2. etasje 5 kvm: Balkong
BRA-e:
Garasje:
1. etasje 40 kvm: Garasje
2. etasje 20 kvm: 2 loftsrom
Lekestue:
1. etasje 6 kvm: Lekestue
Åpent areal:
1. etasje 2 kvm: Platting
Utebod:
1. etasje 4 kvm: Bod
2.etasjen i boligen har et totalt gulvareal (GUA) på 86 kvm, men grunnet skråtak/lav takhøyde er kun 63 kvm av arealet måleverdig som bruksareal. De delene av arealene som har lav himlingshøyde (ALH) utgjør 23 kvm.
Kun deler av arealet i kjeller er måleverdig som bruksareal. Arealet har et totalt gulvareal (GUA) på 82 kvm, men grunnet lav takhøyde er kun 81 kvm av arealet måleverdig som bruksareal. De delene av arealene som har lav himlingshøyde (ALH) utgjør 1 kvm.
Loftsetasjen på garasjen har et totalt gulvareal (GUA) på 21 kvm, men grunnet skråtak/lav takhøyde er kun 20 kvm av arealet måleverdig som bruksareal. De delene av arealene som har lav himlingshøyde (ALH) utgjør 1 kvm.
Kun deler av arealet i utebod er måleverdig som bruksareal. Arealet har et totalt gulvareal (GUA) på 6 kvm, men grunnet lav takhøyde er kun 4 kvm av arealet måleverdig som bruksareal. De delene av arealene som har lav himlingshøyde (ALH) utgjør 2 kvm.
Vedlagte plantegninger er ikke målbare. De oppgitte arealer er hentet fra rapport datert 06.03.2025 utført av Anticimex AS Sandefjord. Arealene er beregnet og rom er definert etter dagens faktiske bruk, uavhengig av hva som er godkjent av bygningsmyndighetene.
Byggemåte
Selger har fått utarbeidet en tilstandsrapport, dvs. en teknisk gjennomgang av boligen hvor eventuelle avvik, risiko for kjøper og prisoverslag for hva som bør gjøres av oppgradering, er skissert. Se særskilt TGIU (tilstandsgrad ikke undersøkt), samt TG2 og TG3 som viser hva som er avvik fra boligens normale slitasje, alder og type, eller som bør/må utbedres. Rapporten og selgers egenerklæring er en del av salgsoppgaven og må leses nøye før bud inngis. Kjøper overtar ansvaret for de opplysninger som fremkommer av salgsdokumentasjonen, og kan ikke gjøre gjeldende som mangel noe som burde vært kjent eller som ikke kan anses å ha betydning for avtalen.
Boligen er oppført i 1949 med tilbygg i 1982 og er iht. tilstandsrapporten med grunnmur av betong og lettklinkerblokker. Fundamentert på ukjent byggegrunn.
Bygget er oppført med støpt gulv mot grunn. Yttervegger av trekonstruksjoner. Fasaden er kledd med stående trekledning. Etasjeskillere av trekonstruksjoner.
Saltak i trekonstruksjoner. Yttertak er utvendig tekket med metallplater. Entrédør med glassfelter. Vinduer i forskjellig utførelse, fra forskjellige årstall. Balkongdører med karmer av tre, og to-lags glass.
Sammendrag av boligens tilstandsgrad:
TG1 : 8 % | TG2 : 60 % | TG3 : 24 % | TGIU : 8 %
I rapportens sammendrag fremkommer det som takstmannen mener kjøper må være særskilt oppmerksom på utover normal elde og slitasje, herunder:
TG3:
* Bad: Høy alder/slitasjegrad.
* Vaskerom: Høy alder/slitasjegrad.
* Det ble registrert forhøyede fuktverdier på råloft. Det ble i tillegg konstatert fuktskader i konstruksjonen.
* Det er merkbare skjevheter i entrè.
* Taktekkingen bærer preg av høy alder og høy slitasje. Det er påvist utettheter/skader.
* Utebod og lekestue: feil og mangler påvist, eksempelvis råteskader.
TG 2:
* Hele boligen er preget av høy alder og stor slitasjegrad og TG 2 er valgt på 60 % av bygningsmassen. Fornying og oppussing må påregnes. Tilstandsrapporten må leses nøye.
TGIU:
* Tekniske anlegg i forbindelse med parafinbrenner er ikke undersøkt.
* Det er ikke kjent når det sist ble foretatt service på varmepumpe.
* Fundamenter er naturgitt skjult, og det er for øvrig ingen sikre og dokumenterte opplysninger om type fundamenter som huset har.
Tilstandsrapporten følger vedlagt i salgsoppgaven for utfyllende informasjon. Interessenter må sette seg inn i denne før bud inngis.
Standard
Velkommen til Ringveien 214 – en innholdsrik og hyggelig enebolig med solrik og attraktiv beliggenhet. Eiendommen ligger tilbaketrukket fra veien på en flott tomt med gode solforhold og rikelig med plass til lek, hageaktiviteter og sosiale sammenkomster. Her bor du barnevennlig og sentralt, med kort vei til skoler, barnehager, flotte turområder som Bugårdsparken og et godt utvalg av butikker og servicetilbud på Pindsle.
Boligen går over to etasjer samt kjeller og har en planløsning som gir god plass til hele familien. I hovedetasjen møtes du av en romslig entré/gang, praktisk toalettrom og vaskerom. Kjøkkenet er trivelig og har god plass til spisebord, samt utgang til en stor, solrik terrasse som strekker seg videre ut i hagen – et perfekt samlingspunkt på fine dager. Den lyse vinkelstuen gir gode møbleringsmuligheter og en lun atmosfære. Hvitevarer medfølger ikke handelen med mindre annet avtales.
I andre etasje finner du gang, en mellomgang som egner seg godt som hjemmekontor, tre til fire soverom – hvorav ett tidligere besto av to rom og nå fremstår som et romslig hovedsoverom – samt bad.
Kjelleren er hovedsakelig innredet med boder og gode lagringsmuligheter. Her er det også et rom som tidligere er benyttet som kjellerstue (ikke godkjent for varig opphold) samt et vaskerom, dersom man ønsker en alternativ løsning til vaskerommet i hovedetasjen.
Eiendommen har i tillegg garasje med automatisk portåpner, to sidedører og innredet, isolert loft med adkomst via utvendig trapp – ideelt som hobbyrom, ungdomsrom eller ekstra oppholdsareal.
Boligen har behov for modernisering og oppgradering, noe som gir en flott mulighet til å skape et personlig og tidsriktig hjem med stort potensial.
Løsøre og tilbehør
Vi viser til liste fra Norges Eiendomsmeglerforbund som gjelder fra 01.01.2020 angående løsøre og tilbehør.
Oppvarming
Varmekabler på bad i 2. etasje og i entré i 1.etasje.
Vedovn i stuen.
Varmepumpe i stuen.
Dersom beboelsesrom ikke har vegg- eller fastmonterte varmekilder ved visning følger dette heller ikke med.
Ferdigattest/brukstillatelse
Det foreligger ferdigattest på "1 1/2 etasje enebolig" datert 4.3.1950. Denne kan fås ved henvendelse til megler.
Boligen ble tilbygget i 1982. Dette foreligger det godkjente bygningstegninger for, men ikke ferdigattest.
Ferdigattesten omfatter ikke tilbygg som beskrevet over fra 1982. Dog foreligger godkjente bygningstegninger. Det foreligger også situasjonskart med dobbelgarasje, fra 23/5-2001 med stempel fra kommunen. Dog foreligger ingen ferdigattest på dette.
Det gjøres oppmerksom at det ikke lenger utstedes ferdigattest på tiltak det er søkt om før 1998 jf. plan- og bygningsloven §21-10. Kommunen vil ikke kreve ferdigattest for disse tiltakene og vil avvise eventuelle søknader. Bestemmelsen innebærer ikke at tiltak med manglende søknad blir lovlige, men at man ikke trenger å avslutte gamle byggesaker. Normalt sett kreves ferdigattest for alle søknadspliktige tiltak som gjøres etter plan - og bygningsloven.
Kjellerstue er opprinnelig byggemeldt som vaskerom/bod jf. byggetegninger fra 1950 og er ikke godkjent til varig opphold. Innredning av rommene til bruk for varig opphold er ikke bruksendret/omsøkt og er heller ikke godkjent av kommunen. Kjøper overtar alt ansvar og risiko for dette videre. Det er også noe avvik på rominndeling, som er endret underveis, dette er ikke søknadspliktig arbeid.
Kjøper overtar eiendommen slik den framstår på visning.
Tinglyste heftelser og rettigheter
Eiendommen overdras fri for pengeheftelser.
Det er tinglyst følgende servitutter på eiendommen:
Dagboknr 1336641, tinglyst 24.11.2022, type heftelse: Bestemmelse om vann/kloakk og vedlikehold. I tillegg til veirett for denne eiendommen over privat adkomstvei.
Servitutten vil følge eiendommen. Kjøpers bank vil få prioritet etter ovennevnte heftelser og servitutter.
Eiendommen har tinglyst rett til vei, vann og kloakk over gnr 150, bnr 57, snr 1 og 2.
Eventuell adgang til utleie
Eiendommen har ikke separat utleieenhet. Det vil normalt være anledning til utleie av hele eiendommen eller enkeltrom, såfremt utleiearealet er bygningsmessig godkjent for varig opphold og har forsvarlige radonnivåer.
Diverse
Eiendommen selges med de hvitevarer som står på visning. Eiendommen vil ikke bli ytterliggere vasket før overtakelsen og overtas som den står på visning. Ønskes en ekstra utvask eller at noe fjernes må dette spesifiseres. Selger har ikke bebodd eiendommen og har derfor ikke kunnskap om eiendommens tilstand. Kjøper må derfor kunne påregne at det kan være flere feil og mangler som normalt oppdages ved bruk av boligen, men som selger ikke har mulighet å vite. Kjøper overtar derfor all risiko for denne type feil og mangler.
Beliggenhet og tomteforhold
Beliggenhet og tomteforhold
Beliggenhet
Eiendommen ligger meget sentralt og populært til, med kun 2,5 km til sentrum, i 2. rekke fra Ringveien med solrik og barnevennlig beliggenhet.
Fra boligen har man kort vei til skoler (Krokemoa barneskole er nærmeste nabo) og barnehager.
Videre har man i nærmiljøet flere dagligvareforretninger, detaljhandel og treningssenter på Pindsle.
Bugårdsparken ligger en liten spasertur unna og byr på flotte rekreasjons- og treningstilbud. Sommer som vinter med både utendørs- og innendørsaktiviteter som skøytebane, svømmehall, badmington, tennis, håndball, fotball mm. Her er noe for enhver smak!
Det er også kort avstand til Runar, med alle sine aktivitetstilbud for store og små.
Gode bussforbindelser. Og for pendlere er det kort vei opp på Raveien og E-18.
Adkomst
Følg Ringveien mot Krokemoveien. Ta tredje innkjørsel til høyre etter passering av Krokemoa barneskole. Boligen ligger innerst i veien. Veien er privat og tilhører eiendommen.
Se for øvrig google maps - det er enkelt å finne frem i kartet.
Eiendommen vil være skiltet med Krogsveen Til salgs skilt.
Barnehager, skoler og fritid
Krokemoa barneskole og Bugården ungdomsskole.
Tilhørigheten kan årlig endres av kommunen. Dersom skole- og barnehagetilbud er av betydning for kjøpet, ber vi om at det rettes en særskilt henvendelse til kommunen for oppdatert informasjon.
Beskrivelse av tomt
Eiertomt på 629 kvm.
Tilbaketrukket og solrikt beliggende tomt. Eiendommen ligger godt tilbaketrukket fra Ringveien og er dermed rolig og barnevennlig beliggende.
Stor flott tomt med plensatt hage. Beplantet med frukttrær, bed og hekk. Gjerde mot skolegården. Kjekk skolevei for de minste i familien!
Det er en stor deilig terrasse, med utgang fra stuen. Her er god plass til utemøblement og grill.
Det er gode snu- og parkeringsmuligheter på gruset gårdsplass samt god parkering i garasjen.
Privat gårdsvei inn til eiendommen, med veirett for denne eiendommen. Veien er asfaltert.
Parkering
Parkering i garasje med automatisk portåpner.
Godt med parkering er det i tillegg på gruset gårdsplass. Privat asfaltert adkomstvei til boligen, med tinglyst veirrett.
Vei, vann og avløp
Eiendommen har adkomst via kommunal vei. Privat adkomst fra Ringveien. Det foreligger tinglyst veirett.
Eiendommen er tilknyttet kommunalt ledningsnett via private stikkledninger. Eier er selv ansvarlig for private stikkledninger til boligen.
Regulerings-og arealplaner
Eiendommen ligger i et uregulert område, men er i kommuneplan datert 21.9.2023 avsatt til: boligbebyggelse (611 kvm), offentlig eller privat tjenesteyting (18 kvm) og gul sone iht T-1442 (56 kvm).
Eiendommen er uregulert, og kommuneplanens bestemmelser er gjeldende. Kommuneplanen med tilhørende bestemmelser kan lastes ned fra kartløsningen på kommunens hjemmeside.
Eiendommen er utsatt for støy fra veitrafikk fra Ringveien. Rød og gul støysone iht. Miljøverndepartements "Retningslinje for behandling av støy i arealplanlegging". Denne er markert med hensynssone i kommuneplanen og framgår av kartløsningen på kommunens hjemmeside under "Temakart til kommuneplanen, støy".
Det er varslet reguleringsstart for å etablere gang-/sykkelvei langs Krokemoveien fra Sportsveien til Ringveien. Strekningen er på ca. 1,2 km, og det må påregnes eiendomsinngrep i tilgrensende eiendommer langs veien. Sanering av avkjørsler vil også bli vurdert.
Utsnitt av plan med tilhørende bestemmelser kan fås ved henvendelse til megler.
Økonomi
Økonomi
Kommunale utgifter
Kommunale avgifter er kr 16.022,- for inneværende år. I dette inngår gebyr for vann, avløp, renovasjon og feiing/tilsyn.
Selger har ikke bebodd eiendommen og har således ikke kjennskap til øvrige løpende utgifter for eiendommen.
Det må påregnes kostander til forsikring, strøm etc.
Det er tilknyttet Sandefjord Bredbånd. Abonnement må bestilles av ny eier.
Formuesverdi
Formuesverdi for 2023 var kr 1 345 144,- ifølge skatteetaten. Beløpet forutsetter at eier bor fast i boligen (primærbolig).
Ved eventuell øvrig bruk av eiendommen (f.eks. fritidsbolig, pendlerbolig, utleieobjekt) var formuesverdien for 2023 kr 5 380 575,-.
Formuesverdien justeres normalt årlig. Se skatteetaten.no for mer informasjon om fastsettelse av formuesverdien.
Omkostninger
3 790 000,00 Prisantydning
Omkostninger
94 750,00 Dokumentavgift til staten (2,5% av kjøpesum)
545,00 Tinglysing panterettsdokument
545,00 Tinglysing skjøte
--------------------------------------------------------
95 840,00 Omkostninger totalt
--------------------------------------------------------
3 885 840,00 Totalpris inkl. omkostninger
--------------------------------------------------------
Totalpris inkl. omkostninger forutsetter kjøp til prisantydning.
Det tas forbehold om endringer i avgifter og gebyrer.
Boligkjøperpakke fra Tryg kan valgfritt bestilles til kr 19 900,-.
Tilbud om lånefinansiering
Megler formidler gjerne kontakt med rådgiver hos vår samarbeidspartner BN Bank. De har konkurransedyktige betingelser samt rask og løsningsorientert behandling av din lånesøknad. Krogsveen mottar et honorar for denne formidlingen.
Betalingsbetingelser
Kjøpesum inkludert omkostninger, samt pantedokument tilknyttet eventuelt lån, skal være disponibelt hos megler 2 virkedager før overtagelsen.
Annen viktig informasjon
Annen viktig informasjon
Eier
Prosjekt Ringveien 214 AS
Overtakelse
Etter nærmere avtale.
Boligselgerforsikring
Selger kan ikke tegne boligselgerforsikring i henhold til vilkår og eventuelle reklamasjoner må rettes direkte til selger. Selgers egenerklæringsskjema følger som bilag til denne salgsoppgaven i tillegg til tilstandsrapport. Interessenter må sette seg inn i dokumentene før bud inngis.
Boligkjøperforsikring
Innen kontraktsmøtet må kjøper ta stilling til om det ønskes å bestille Boligkjøperpakken gjennom Tryg. I denne gunstige pakken er boligen ferdig forsikret og inkluderer rettshjelpsforsikring, også kalt Boligkjøperforsikring. Rettshjelpsforsikring gir trygghet og tilgang på profesjonell juridisk hjelp dersom det oppdages uventede feil eller mangler det første året etter overtagelse. Forsikringsselskapet behandler isåfall ethvert mangelskrav kjøper måtte ha overfor selger.
For alle boligtyper, unntatt tomter, inneholder Boligkjøperpakken innboforsikring, renteforsikring (unntatt fritidsbolig) - i situasjoner hvor kjøper ikke får solgt nåværende primærbolig – og flytteforsikring. I tillegg inneholder den husforsikring for alle hus og hytter forutsatt at eiendommen ikke har seksjonsnummer/andel (tilhører et sameie/borettslag).
Kjøper mottar ingen særskilt faktura for Boligkjøperpakken da kostnaden det første året legges til kjøpesummen for boligen. Les mer om forsikringen i informasjonsarket fra Tryg. Krogsveen mottar et honorar for denne formidlingen.
Dersom ikke boligkjøperpakke ønskes kan kun rettshjelpsforsikring, også kalt boligkjøperforsikring, tegnes særskilt via megler. Rettshjelpsforsikringen varer i 5 år fra overtagelse og leveres av Tryg.
Selskap og privatpersoner som driver med kjøp/salg/utvikling som ledd i egen næringsvirksomhet kan de ikke tegne boligkjøperforsikring.
Budgivning
Forbrukerinformasjon om budgivning er vedlagt denne salgsoppgaven og er også på vår hjemmeside www.krogsveen.no. Alle bud og budforhøyelser må inngis skriftlig. I tillegg må legitimasjon være fremlagt sammen med signatur fra budgiver.
Vi oppfordrer til å gi bud elektronisk via GI BUD-knappen på eiendommens hjemmeside på Krogsveen.no. Da vil samtlige vilkår bli oppfylt.
Eventuelle forhøyelser eller endringer av budet kan bekreftes pr SMS eller på e-post. Vi oppfordrer alltid til å kontakte megler pr. telefon i tillegg da forsinkelser i SMS og e-post kan forekomme.
For at budene skal kunne bli behandlet og videreformidlet skriftlig til alle involverte parter, må alle bud ha en tilstrekkelig lang akseptfrist, jf. eiendomsmeglingsforskriften § 6-3.
Selger må også skriftlig akseptere budet før aksept kan formidles til budgiver. Akseptfrist bør derfor være på minimum 30 minutter, og budforhøyelser må derfor skje i god tid før fristens utløp.
Bud i forbrukerforhold kan uansett ikke settes med kortere frist enn kl. 12.00 første virkedag etter siste annonserte visning.
Etter at eiendommen er solgt vil kjøper og selger få tilsendt budjournal. Øvrige budgivere kan få utlevert kopi av budjournalen i anonymisert form.
Hvitvaskingsreglene
I henhold til lov om hvitvasking og terrorfinansiering har megler plikt til å gjennomføre kontrolltiltak overfor kunder, herunder fullmektiger. Dette innebærer bl.a. å bekrefte kunders og reelle rettighetshaveres identitet på bakgrunn av fremvist gyldig legitimasjon eller på annen godkjent måte, samt å innhente opplysninger om kundeforholdets formål og tilsiktede art.
Dersom slike kundetiltak ikke kan gjennomføres, kan megler ikke etablere kundeforholdet eller utføre transaksjonen.
Hvis kjøper ikke bidrar til gjennomføring av kundekontrollen og dette fører til at transaksjonen blir forsinket eller ikke kan gjennomføres, vil dette ansees som mislighold av avtalen og gi selger rettigheter etter avhendingslova kapittel 5. I tilfeller der selger ikke bidrar til gjennomføring av løpende kundekontroll underveis i oppdraget, er det selger som misligholder sine forpliktelser etter avtalen og gi kjøper rettigheter etter avhendingslovens kapittel 4. Partene er selv ansvarlige for eventuelle kostnader og ansvar dette kan medføre. Eiendomsmegleren eller eiendomsmeglingsforetaket kan ikke holdes ansvarlig for de konsekvenser dette vil kunne få for partene eller andre som har interesser i eiendomshandelen.
Kjøper oppfordres til å innbetale kjøpesummen som ikke kommer fra låneinstitusjon i én samlet innbetaling fra egen konto i norsk bank. Megler har plikt til å melde fra til Økokrim om eiendomshandler som fremstår som mistenkelige. Melding sendes Økokrim uten at partene varsles.
Personopplysningsloven
I henhold til personopplysningsloven gjør vi oppmerksom på at interessenter kan bli registrert for videre oppfølging.
Lovanvendelse
Generelle bestemmelser
Salgsoppgaven er basert på de opplysningene selger har gitt til megler, den bygningssakyndiges tilstandsrapport, samt opplysninger innhentet fra kommunen, Kartverket og andre tilgjengelige kilder. Det er viktig at kjøper setter seg grundig inn i alle salgsdokumentene, herunder salgsoppgave, tilstandsrapport og selgers egenerklæring. Kjøper anses kjent med forhold som er tydelig beskrevet i salgsdokumentene, og slike forhold kan ikke påberopes som mangler. Dette gjelder uavhengig av om kjøper har lest dokumentene. Alle interessenter oppfordres til å undersøke eiendommen nøye, gjerne sammen med fagkyndig før bud inngis. Kjøper som velger å kjøpe usett kan ikke gjøre gjeldende som mangel noe han burde blitt kjent med ved undersøkelsen.
Dersom det er behov for avklaringer, anbefaler vi at interessenter rådfører seg med eiendomsmegler eller egne rådgivere før det legges inn bud.
En bolig som har blitt brukt i en viss tid, har vanligvis blitt utsatt for slitasje og skader kan ha oppstått. Slik bruksslitasje må kjøper regne med, og det kan avdekkes enkelte forhold etter overtakelse som nødvendiggjør utbedringer. Normal slitasje og skader som nødvendiggjør utbedring, er innenfor hva kjøper må forvente og vil ikke utgjøre en mangel.
Kjøper og selgers rettigheter og plikter reguleres av avtalen mellom partene, samt informasjonen som har vært tilgjengelig for kjøperen i forbindelse med handelen. Avtalen utfylles av avhendingsloven, og det gjelder ulike avtalevilkår avhengig av om kjøper er forbrukerkjøper eller ikke. Dette er nærmere beskrevet nedenfor.
På grunn av ulike avtalevilkår kan selger vurdere bud fra en som ikke er forbruker, ulikt fra en forbrukers bud. Dersom kjøper ikke er forbruker, er selger sitt mulige mangelsansvar begrenset fordi eiendommen selges "som den er". Selger kan ikke ta «som den er»- forbehold overfor en forbrukerkjøper. Selv et lavere bud fra en som ikke er forbruker kan foretrekkes fordi begrensningen i mulig mangelsansvar kan ha egenverdi for selger. Selger står fritt til å forkaste eller akseptere ethvert bud, og er for eksempel ikke forpliktet til å akseptere høyeste bud.
Budgiver skal i budskjema avgi egenerklæring om budgiver er forbruker eller næringsdrivende/ person som hovedsakelig handler som ledd i næringsvirksomhet. Budgivere får informasjon dersom andre bud er inngitt av en som ikke er forbruker.
Forbrukerkjøp - definisjon
Med forbrukerkjøp menes kjøp av eiendom når kjøperen er en fysisk person som ikke hovedsakelig handler som ledd i næringsvirksomhet.
Forbruker – avtalevilkår
Eiendommen har en mangel dersom den ikke er i samsvar med kravene som følger av avtalen, eller det foreligger brudd på bestemmelsene i avhendingsloven §§ 3-2 til 3-8. Hvis eiendommen ikke er i samsvar med det kjøperen må kunne forvente ut ifra alder, type og synlig tilstand, kan det være grunnlag for mangelskrav. Det samme gjelder hvis det er holdt tilbake eller gitt uriktige opplysninger om eiendommen. Dette gjelder likevel bare dersom man kan gå ut ifra at det virket inn på avtalen at opplysningen ikke ble gitt eller at mangelskravet ikke blir rettet i tide på en tydelig måte.
Boligen kan ha en mangel etter avhendingsloven § 3-3 andre ledd, dersom det er avvik mellom opplyst og faktisk innvendig areal, forutsatt at avviket er på 2% eller mer og minimum 1 kvm.
Ved beregning av et eventuelt prisavslag eller erstatning må kjøper selv dekke tap/kostnader opptil et beløp på kr 10 000 (egenandel).
Ikke-forbruker (næringsdrivende) – definisjon
Hvis kjøper er en juridisk person, eller en fysisk person som hovedsakelig handler som ledd i næringsvirksomhet, vil kjøpet ikke anses som et forbrukerkjøp.
Ikke-forbruker – avtalevilkår
Eiendommen har en mangel dersom den ikke er i samsvar med kravene som følger av avtalen.
Eiendommen selges «som den er», og selgers ansvar utover det konkret avtalte er da begrenset etter avhendingsloven § 3-9, første ledd andre setning.
Avhendingsloven § 3-3 andre ledd fravikes, og hvorvidt boligens arealsvikt utgjør en mangel vurderes etter avhendingsloven § 3-8.
Informasjon om kjøpers undersøkelsesplikt, herunder oppfordringen om å undersøke eiendommen nøye, gjelder også for kjøpere som ikke anses som forbrukere.
Det forutsettes at hjemmel overføres til kjøper. Hvis kjøper ikke ønsker hjemmelsoverføring av eiendommen, må det tas forbehold om dette i budet.
Meglers vederlag
Meglers vederlag betales av selger og er avtalt til:
Vederlag: 1,25% av salgssummen
Tilrettelegging fra kr 17.000,-
Oppgjør: kr 7.500,-
Markedspakke: kr 27.400,-
Visninger: kr 4.500,- - alle inkl
Oppslag eiendomsregister: kr 2.900,-
Megler har i tillegg krav på dekning av utlegg.
Opplysninger om oppdraget
Oppdragsnummer 22-0072/25
Eiendomsmegler Krogsveen AS, avd. Sandefjord
Jernbanealléen 13, 3210, SANDEFJORD
950 007 613
Oppdragets KR-kode KR22.2572
Dato
Sist oppdatert: 19. februar 2026 kl. 10:16
Dokumenter
Dokumenter
PDF – 618 KB
PDF – 242 KB
PDF – 3 MB
PDF – 927 KB
PDF – 312 KB
PDF – 29 KB
PDF – 127 KB
PDF – 392 KB
Område
Legg til steder som er viktige for deg
Visning
For å delta på visning, ber vi om at du melder deg på. Da sikrer vi at du får nødvendig informasjon og at det er satt av tilstrekkelig med tid. Kontakt megler dersom annet tidspunkt ønskes. Husk å lese salgsoppgaven før visningen, så du stiller forberedt. NB. Visning utgår dersom det ikke er noen påmeldte.
Ta kontakt med megler for avtale om privatvisning.
Ønsker du kun å bli holdt orientert, kan du fra eiendommens hjemmeside få varsel om solgtpris, eller kontakte megler.
Lurer du på noe?
Unngå doble boligrenter
Vi tilbyr gunstig forsikring.
Vurderer du utleie?
Få et tilbud fra Utleie KrogsveenHva koster lånet?
Sjekk estimert lånekostnadVil du varsles om lignende boliger?
Ved å lagre ditt boligsøk hos oss får du beskjed når vi har en bolig som ligner denne, før den legges ut på markedet!

