Dalhaugveien 12
5 550 000 kr
257 m²
3 soverom
Komplett salgsoppgave

Bjørkelangen
Stor og innholdsrik familiebolig med flott utsikt, dobbelgarasje og herlige uteområder. Kjeller m/inngang.
Prisantydning
5 550 000 krOmkostninger
159 740 krTotalpris
5 709 740 kr
Pris
Bruksareal
326 m²BRA-I (internt bruksareal)
257 m²BRA-E (eksternt bruksareal)
51 m²TBA (terrasse-balkongareal)
49 m²
Areal
Etasje
2Byggeår
1984Soverom
3 soveromBad
2 badTomteareal
926 m² (eiet)Type
Enebolig - FrittliggendeEierform
EietEnergimerke
Oransje F
Nøkkelinfo
Unngå doble boligrenter
Vi tilbyr gunstig forsikring.
Vurderer du utleie?
Få et tilbud fra Utleie KrogsveenHva koster lånet?
Sjekk estimert lånekostnadBeskrivelse
Kort om eiendommen
Velkommen til en romslig og gjennomgående oppgradert familiebolig, med god planløsning, store utearealer og flott utsikt. Her får du et hjem som innbyr til både hyggelige sosiale stunder og rolige øyeblikk, i et fredelig og familievennlig miljø.
Kort oppsummert:
- Innholdsrik familiebolig med stor hage og flere solrike terrasser
- Flott utsikt og rolige omgivelser
- Betydelig oppgradert siste 5 år
- Dobbelgarasje og stor gårdsplass med belegningsstein
- Åpen og praktisk planløsning med lyse oppholdsrom og kjellerstue
- Tre soverom, hovedsoverom med utgang
- Vinterhage, peisovner og flere lune uteplasser
Her bor du i et fredelig og familievennlig nabolag, med alt tilrettelagt for å trives – både inne og ute.
Innhold og byggemåte
Innhold og byggemåte
Eiendommen
Dalhaugveien 12, 1940 BJØRKELANGEN
Kommunenummer 3226, gårdsnummer 71, bruksnummer 93, ideell andel 1/1
Innhold
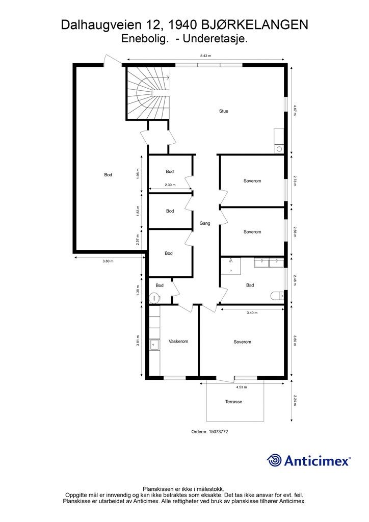
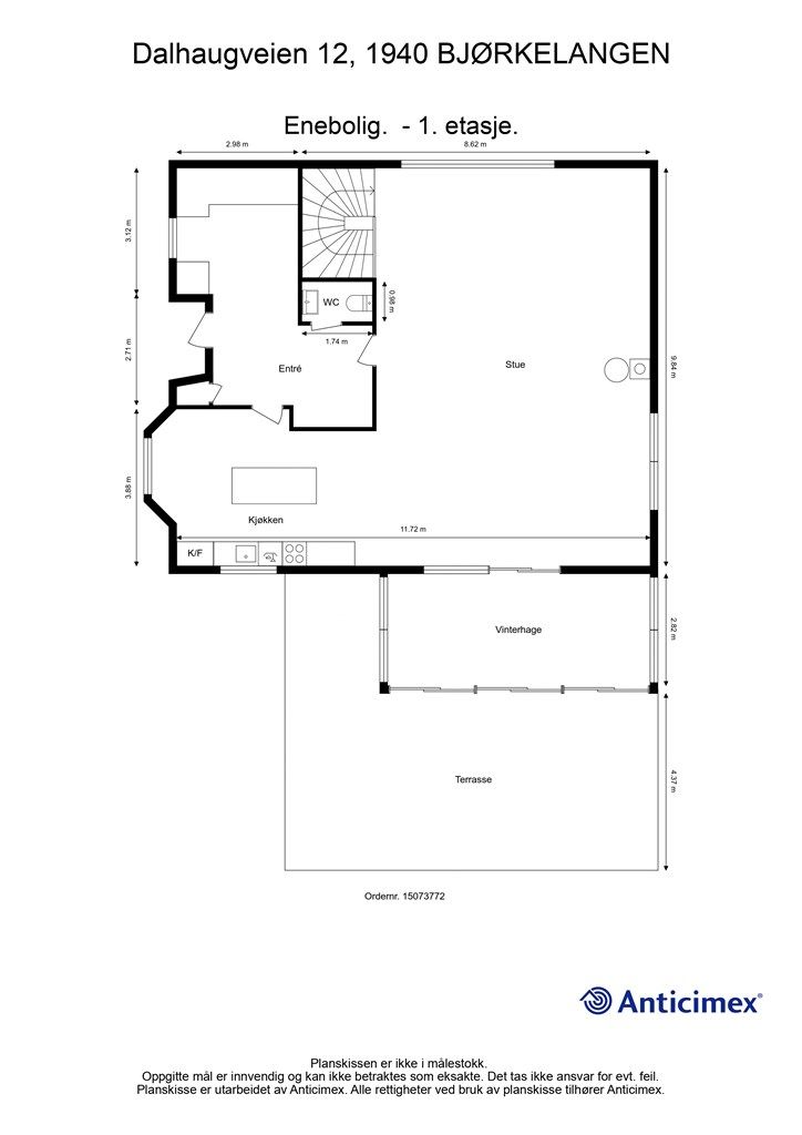
Totalt bruksareal BRA: 326 kvm
BRA-i:
Enebolig:
-1. etasje 142 kvm: Kjellerstue, tre soverom, fem boder, gang, bad og vaskerom.
1. etasje 115 kvm: Stue, kjøkken, entré og toalettrom.
BRA-e:
Frittstående dobbelgarasje: 1. etasje 42 kvm:
Frittstående redskapsbod: 1. etasje 9 kvm:
BRA-b:
1. etasje 18 kvm: Vinterhage
Åpent areal:
-1. etasje 5 kvm: Markterrasse
1. etasje 44 kvm: Terrasse
Underetasjen har et totalt gulvareal (GUA) på 150 m2, men grunnet skråtak/lav takhøyde er kun 142 m2 av arealet måleverdig som bruksareal. De delene av arealene som har lav himlingshøyde (ALH) utgjør 8 m2. Fjel/stein partiene i boden er ikke medregnet.
Boligen inneholder 237 m2 P-ROM og 38 m2 S-ROM.
Følgende er endret fra opprinnelige byggetegninger:
1. etg:
- Vegg mellom kjøkken og stue er fjernet
- Kjølerom med inngang fra kjøkken er fjernet. Arealet er nå en del av hallen.
Vedlagte plantegninger er ikke målbare. De oppgitte arealer er hentet fra rapport med befaringsdato 30.07.2025 utført av Anticimex v/Owe Fagerlund Leret. Arealene er beregnet og rom er definert etter dagens faktiske bruk, uavhengig av hva som er godkjent av bygningsmyndighetene.
Byggemåte
Selger har fått utarbeidet en tilstandsrapport, dvs. en teknisk gjennomgang av boligen hvor eventuelle avvik, risiko for kjøper og prisoverslag for hva som bør gjøres av oppgradering, er skissert. Se særskilt TGIU (tilstandsgrad ikke undersøkt), samt TG2 og TG3 som viser hva som er boligens normale slitasje, alder og type, hva som er avvik fra dette og hva som bør/må utbedres. Rapporten og selgers egenerklæring er en del av salgsoppgaven og må leses nøye før bud inngis. Kjøper overtar ansvaret for de opplysninger som fremkommer av salgsdokumentasjonen, og kan ikke gjøre gjeldende som mangel noe som burde vært kjent eller som ikke kan anses å ha betydning for avtalen.
Iht. tilstandsrapporten har boligen grunnmur av lettklinkerblokker. Etasjeskiller av betong. Bærende konstruksjoner hovedsakelig av trekonstruksjoner og murkonstruksjoner. Takkonstruksjon utvendig tekket med takplater. Utvendig fasader forblendet med trekledning.
Følgende forhold gjøres spesielt oppmerksom på og har fått tilstandsgrad 2 (TG2):
Vaskerom: Ventilasjon (kun naturlig ventilasjon), vannrør og avløpsrør grunnet alder, tettesjiktet grunnet usikker restlevetid og manglende verifisering om løsningen er fullgod og sikker mot lekkasjer.
Bad: Sanitærutstyr grunnet skade på servant armatur, overflate vegger grunnet stedvis manglende vedheft og riss/sprekker påvist ved dusjsonen, overfalte gulv grunnet registrerte bomlyd under enkelte gulvfliser, i tillegg settes TG2 på bakgrunn av manglende dokumentasjon ved bygging og utbedring av badet.
Kjøkken: Vannrør grunnet alder og manglende lekkasjestopper.
Toalettrom 1. etasje: Vannrør grunnet alder, overflate vegger grunner riss/sprekker i overgang mellom gulv og vegg.
Øvrige rom: Overflate gulv grunnet bomlyd under enkelte gulvfliser.
Innvendige trapper: Grunnet manglende håndløpere på begge sider.
Underetasje: Overflate gulv grunnet sprekker og bomlyd i enkelte gulvfliser, konstruksjoner grunnet vegger under bakkenivå samt dreneringens alder. Det er ikke observert skader eller symptomer på skader, men dette kan ikke utelukkes.
Ytre bod: Konstruksjoner grunnet påvist forhøyde fuktverdier, saltutslag og fuktmerker i ytre bod. Synlig stein og fjellgrunn.
Krypkjeller: Krypekjelleren er ikke tilgjengelig for inspeksjon og undersøkelser, samt at det ikke er etablert fuktsperre mot grunn.
Tekniske anlegg: Varmtvannsbereder og hovedstoppekran grunnet alder, varmepumpe i 1. etasje grunnet redusert funksjon i følge selger.
Fasader inkl. kledning: Grunnet alder.
Dører og vinduer: Grunnet alder og slitasje.
Yttertak: Tekking grunnet mønebånd som har løsnet ved enkelte områder.
Terrasse/inntrukket balkong over innvendige rom: Grunnet alder og at tettesjiktet ikke er tilgjengelig for inspeksjon, samt påviste riss/sprekker i enkelte gulvfliser.
Platting på terreng: Grunnet alder.
Grunnmur: Grunnet stedvis observert puss/maling-avskalling.
Drenering: Terrengfall fra grunnmur grunnet stedvis lite fall vekk fra grunnmuren, fuktsikring av grunnmur grunnet manglende beslag/topplist på grunnmurens utvendige fuktsperre, samt alder på dreneringens tilstand.
Vann- og avløpsledninger (inkl. stikkledninger): Grunnet alder.
Frittstående byggverk (redskapsbod): Helhetsvurdering grunnet manglende detaljerte undersøkelser. Ut i fra forenklet vurdering av tilstanden er det ikke påvist vesentlige feil eller skader.
Frittstående byggverk (dobbelgarasje): Grunnet alder. Synlige vesentlige feil og skader er ikke påvist.
Se supplerende tekst i tilstandsrapporten. Kjøper overtar ansvar og risiko for dette.
Moderniseringer og påkostninger
D I V . H I S T O R I K K:
1984 - Huset bygget
1999 - Garasje bygget
2020 - Redskapsbod bygget
2017 - Microsement lagt på vaskerom og WC
2019 - Bad rehabilitert
2020 - Nytt sikringsskap. Byttet alle innerdører.
2021 - Nytt yttertak. Nye varmekabler i hall 1. etg.
2022 - Ny varmepumpe i u. etg
2023 - El-tilsynsrapport
2024 - Nytt kjøkken. Ny peisovn 1. etg. Noen nye innerdører.
2024/2025 - Resterende overflater pusset opp
Vinduer: Produksjonsår 1983, 1984, 2011, 2014 og 2019.
Entredør: 2021.
På grunn av en vannlekkasje fra Aquastop til oppvaskmaskinen i 2023 ble det igangsatt en forsikringssak. Forsikringsselskapet gjennomførte følgende arbeider:
- Riving av stuegulv i 2. etasje og gulv i to boder i underetasjen.
- Riving av deler av veggene i stuen oppe og i de samme bodene nede.
- Oppbygging av gulv og vegger, inkludert nytt parkettgulv i stuen oppe.
- Renovering av alle berørte vegger med nye plater der det var revet, samt helsparkling og maling utført av malerfirma engasjert av forsikringsselskapet.
I samme periode utførte det samme firmaet tilleggstjenester, blant annet:
- Fjerning av gammelt kjøkken og kjøkkenvegg mot stue.
- Støping av nytt gulv på kjøkkenet og legging av ny parkett der.
- Fjerning av gammel peis og montering av ny, i samarbeid med Gnisten Peisspesialist.
Både rørlegger og elektriker var involvert i arbeidet i forbindelse med forsikringssaken. Dokumentasjon er lagt inn i boligmappa for huset.
Standard
Velkommen til en romslig og gjennomgående oppgradert familiebolig, med god planløsning, store utearealer og en fantastisk utsikt fra verandaen. Her får du et hjem som virkelig innbyr til både sosialt samvær og avslapning i rolige omgivelser.
B O L I G E N:
Huset har blitt pusset opp i senere år og fremstår som et moderne og innbydende hjem med plass til hele familien. Den åpne og romslige planløsningen i 1. etasje gir deg store fellesarealer, ideelt for både hverdagsliv og sosiale sammenkomster. Kjøkkenet er et naturlig samlingspunkt – romslig, godt utstyrt og med både rikelig skapplass og en koselig kjøkkenøy.
Stuen er delt inn i flere soner, som gir fleksibilitet og mange møbleringsmuligheter. Her er det god plass til både sofagruppe, spisebord og lesekrok – og med peisovn for ekstra hygge. Fra stuen har du direkte utgang til en herlig vinterhage – et rom dagens eiere kommer til å savne. Perfekt for bruk hele året.
P L A N L Ø S N I N G:
Boligen er praktisk fordelt over to etasjer. I hovedetasjen møtes du av en romslig og innbydende hall med fliser og gulvvarme, samt gode oppbevaringsløsninger. Herfra er det direkte adgang til WC.
Kjøkken og stue ligger i en delvis åpen løsning, der kjøkkenet er trukket tilbake. Kjøkken fra IKEA stod nytt i 2024, med rikelig skap- og benkeplass.
Underetasjen inneholder en hyggelig kjellerstue – perfekt for ungdom eller som TV-stue. Videre finner du tre gode soverom, der hovedsoverommet ligger innerst og har egen utgang til hagen. I tillegg finnes det flere praktiske boder, som i dag brukes som garderoberom for de to mindre soverommene, samt øvrig oppbevaring.
Videre har du både bad og separat vaskerom i denne etasjen - begge av svært god størrelse.
Badet ble rehabilitert i 2019, med lokale utbedringer utført i 2023. Rommet har flislagt gulv med gulvvarme og flislagte vegger, samt himling med panel og downlights. Innredet med dobbel servant og armaturer, dusjkabinett og vegghengt toalett med innebygget sisterne. Anlegget har rør-i-rør-system for vann og plastavløp, samt mekanisk avtrekk. Det gjøres oppmerksom på at våtrommet er bygget på egeninnsats i 2019 og
utbedring i 2023 med manglende dokumentasjon med den risiko dette innebærer.
Innerst ligger et oppusset vaskerom med mikrosement på gulv og vegger, gulvvarme og spotbelysning. Rommet har ventilasjon via to veggventiler og moderne innredning med glatte, hvite fronter og benkeplate med nedfelt metallvask. Praktisk oppbygget plass for vaskemaskin.
U T E O M R Å D E R & T E R R A S S E R:
Eiendommen har tre terrasser:
Hovedterrassen har utgang fra stuen og er skjermet for innsyn – perfekt for sosiale sommerdager med venner og familie. Her er det utepeis og plass til for eksempel både grill og pizzaovn.
Den andre terrassen ligger på nordsiden av huset, i tilknytning til uthus/redskapsbod. Her har familiens yngste hatt sitt eget "tilholdssted".
Den tredje terrassen ligger utenfor hovedsoverommet – et perfekt sted å nyte morgenkaffen!
Hagen er pent opparbeidet og gir rom for lek og avslapning, og den flotte gårdsplassen med belegningsstein gir god plass til flere biler. I tillegg har du en dobbelgarasje med plass til både biler, verktøybenk og oppbevaring.
K O R T O P P S U M M E R T:
- Flott familiebolig med stor hage og tre terrasser
- Flott utsikt og rolige omgivelser
- Dobbelgarasje og stor gårdsplass med belegningsstein
- God planløsning med store oppholdsrom og kjellerstue
- Tre soverom, hovedsoverom med utgang
- Vinterhage, peisovn og flere lune uteplasser
Her bor du i et fredelig og familievennlig nabolag, med alt tilrettelagt for å trives – både inne og ute.
Løsøre og tilbehør
Vi viser til liste fra Norges Eiendomsmeglerforbund som gjelder fra 01.01.2020 angående løsøre og tilbehør.
Stor taklampe/pendel i stuedel medfølger ikke.
Oppvarming
Oppvarming via elektrisitet, varmepumpe og vedfyring. Varmepumpe plassert i begge stuer.
Varmekabler: fra opprinnelsesår i alle rom med unntak av hall oppe(2021) og bad(2019). Varmekabler er koblet ut fra hovedsoverom, gang u. etg. og halve stue 1. etg.
Ferdigattest/brukstillatelse
Det foreligger ferdigattest på enebolig, datert 30.04.2010. Denne kan fås ved henvendelse til megler.
Det foreligger godkjente og byggemeldte tegninger, men det er avvik fra disse. Tegningene stemmer hovedsaklig med dagens bruk, men det er noe avvik på 1. etasje. Avviket gjelder:
- Beskrevet dagligrom på tegning er i dag en del av entre/gang.
- Vegg mellom kjøkken og stue er fjernet.
- Kjølerom med inngang fra kjøkken er fjernet. Arealet er nå en del av hallen.
Det foreligger ramme- og igangsettingstillatelse for garasjen fra 15.06.1999. Det foreligger ikke midlertidig brukstillatelse eller ferdigattest på denne.
Kjøper overtar alt ansvar og risiko for dette videre.
Tinglyste heftelser og rettigheter
Eiendommen overdras fri for pengeheftelser.
Det er tinglyst 1 servitutt på eiendommen: Rettigheter iflg. skjøte - bestemmelse om anlegg og vedlikehold av ledninger m.v for tele- og elverket tinglyst 04.10.1983, med dagboknummer 7898:
Vev - Strøm selskap har ledningsnett gjennom tomten, de har derfor rett på tilkomst ved tomtegrense på sørsiden mot Dalhaugveien 14.
Servituttene vil følge eiendommen. Kjøpers bank vil få prioritet etter ovennevnte heftelser og servitutter.
Eventuell adgang til utleie
Eiendommen har ikke separat utleieenhet. Det vil normalt være anledning til utleie av hele eiendommen eller enkeltrom, såfremt utleiearealet er bygningsmessig godkjent for varig opphold og har forsvarlige radonnivåer.
Beliggenhet og tomteforhold
Beliggenhet og tomteforhold
Beliggenhet
Dalhaugveien 12 ligger i et attraktivt og barnevennlig boligfelt på Bjørkelangen i Aurskog-Høland kommune.
Skoler, barnehager, offentlig kommunikasjon, servicetilbud, idrettsanlegg og restauranter finner du kun en liten spasertur unna eiendommen. Ønsker du å bo rolige og barnevennlige omgivelser er dette området for deg, samtidig som det er gangavstand til det meste av det Bjørkelangen har å by på.
I helsehuset i sentrum finner du blant annet legevakt, kommunal akutt døgnenhet, tannlege, helsestasjon, fysioterapi og en rekke andre tilbud, i samme bygning som Bjørkelangen sykehjem.
Bjørkebadet ble åpnet like før jul i 2018, og ligger like ved rådhuset, som ligger i sentrum av Bjørkelangen. Bjørkebadet inneholder 25-meters basseng, varmtvannbasseng, plaskebasseng, boblebad, kaldkulp, steam badstue og tørrbadstue.
Bjørkelangen har egen barne- og ungdomsskole med kultursal for hele kommunen.
Like ved Bjørkelangen videregående skole ligger Bjørkelangen sportshall. Det er stor satsning på idretten på Bjørkelangen, og har tilbud innen fotball, håndball, allidrett, sykling, svømming og friidrett. Ikke langt unna sportshallen finner du også treningssenter.
I nærområdet er det lekeplasser, gapahuker og gode turstier. På vinterstid er det oppkjørte skiløyper og du finner Dalhauglia hopp- og alpinsenter, som kan friste med hoppbakker og alpinbakke. På varme sommerdager kan Røytjern være et fint sted å være, hvor det er bade- og fiske brygge, samt badestrand.
Bjørkelangen har godt og variert utvalg av servicetilbud. Alti Bjørkelangen er et nytt og moderne kjøpesenter med rundt 40 butikker, bibliotek, tannlege og kafé, midt i hjertet av trivelige Bjørkelangen.
Foretrekker du et annet service tilbud, er det ca. 50 minutter å kjøre til Sverige, hvor du kan gjøre en hyggelig handel enten i Charlottenberg eller Töcksfors. Du kommer deg raskt til Lillestrøm med bil eller buss, og bussholdeplass er det kun en spasertur unna boligen. Det tar deg ca. 50 minutter å kjøre til Gardermoen, og 35 minutter til Lillestrøm. I Lillestrøm er kollektivtilbudet godt, hvor du kan ta deg videre til Oslo Sentralstasjon og Gardermoen med en togtid på kun 10 minutter. Det er togstasjoner på Blaker og Fetsund, som er lette å benytte seg av dersom du ikke ønsker å ta buss/bil til Lillestrøm.
Adkomst
Adkomst fra Oslo: Følg E6 mot Trondheim. Ta av mot 159 Lillestrøm, og kjør gjennom Rælingstunnelen. I rundkjøringen etter Rælingstunnelen, ta andre avkjørsel over brua, og følg deretter 159 Fetsund. Følg denne veien frem til første rundkjøring. Ta opp på Riksvei 22 mot Fetsund. Følg Riksvei 22 helt frem til du kommer over Fetsundbrua. Videre følg skilt mot Bjørkelangen og inn på Riksvei 170. Følg denne veien i ca. 30 km. Når du kommer inn til Bjøkelangen, ta opp til høyre til Einerhaugveien. Fortsett på Einerhaugveien, frem til du kan ta opp til høyre i Stigen. Denne veien kjører du kun på i noen meter, før du tar til venstre inn i Dalhaugveien. Det vil bli skiltet med Krogsveen visningsskilt ved fellesvisninger.
Beskrivelse av tomt
Pent opparbeidet tomt med blant annet plen, diverse beplantning og asfaltert innkjørsel.
Grensene har nøyaktighet på 13(SD i cm).
Parkering
Det er parkering i en frittstående dobbelgarasje med betongdekke, gangdør og motorisert leddport i metall. I tillegg er det biloppstillingsplass på egen steinlagt gårdsplass. Elbillader er montert på husveggen. Øvrig parkering skjer i henhold til områdets gjeldende bestemmelser.
Vei, vann og avløp
Eiendommen har adkomst via kommunal vei.
Eiendommen er tilknyttet kommunalt ledningsnett via private stikkledninger. Eier er selv ansvarlig for private stikkledninger til boligen.
Regulerings-og arealplaner
Eiendommen er regulert til boligformål i henhold til reguleringsplan "felt L4-5-6 og 7 Bjørkelangen" datert desember 1971 med tilhørende reguleringsbestemmelser datert 29.01.1974.
Avsatt til boligformål ihht. kommuneplan for 2018-2028.
Innenfor hensynssone for ras- og skredfare, samt flom ihht. kommuneplan for 2018-2028.
Utsnitt av plan med tilhørende bestemmelser kan fås ved henvendelse til megler.
Økonomi
Økonomi
Kommunale utgifter
Kommunale avgifter er kr 23 052,- for inneværende år. I dette inngår gebyr for vann, avløp, renovasjon og feiing/tilsyn.
Nåværende eier har et strømforbruk som tilsvarer ca. kr 22000,- pr. år. / 27200 kwh. pr. år.
Boligen har en årlig forsikringspremie på kr 12 000,-.
Boligen er tilknyttet Vev Romerike som leverandør av kabel-tv/internett og har avgift på kr 876 pr. mnd. Tv-tuner/dekoder medfølger ikke.
Formueskatt er på: 5564,- pr år.
Utgiftene er basert på nåværende eiers forbruk og avtaler.
Formuesverdi
Formuesverdi for 2023 var kr 1 279 434,- ifølge skatteetaten. Beløpet forutsetter at eier bor fast i boligen (primærbolig).
Ved eventuell øvrig bruk av eiendommen (f.eks. fritidsbolig, pendlerbolig, utleieobjekt) var formuesverdien for 2023 kr 5 117 737,-.
Formuesverdien justeres normalt årlig. Se skatteetaten.no for mer informasjon om fastsettelse av formuesverdien.
Omkostninger
5 550 000,00 Prisantydning
Omkostninger
138 750,00 Dokumentavgift til staten (2,5% av kjøpesum)
19 900,00 Gjensidige Boligkjøperpakke (valgfri)
545,00 Tinglysing pantedoument
545,00 Tinglysing skjøte
--------------------------------------------------------
159 740,00 Omkostninger totalt
--------------------------------------------------------
5 709 740,00 Totalpris inkl. omkostninger
--------------------------------------------------------
Betalingsbetingelser
Kjøpesum inkludert omkostninger, samt pantedokument tilknyttet eventuelt lån, skal være disponibelt hos megler 2 virkedager før overtagelsen.
Annen viktig informasjon
Annen viktig informasjon
Eier
Tine Amerin Bakke og Mads Elvethun Hansen
Overtakelse
Etter nærmere avtale.
Boligselgerforsikring
Selger har i forbindelse med salget tegnet boligselgerforsikring levert av Gjensidige.
Boligselgerforsikringen dekker selgers ansvar etter avhendingsloven begrenset oppad til kr 14 millioner. Dersom kjøper oppdager forhold ved eiendommen som hen mener utgjør en mangel ved eiendommen, vil Gjensidige behandle reklamasjonen på vegne av selger. Forsikringsvilkår kan fås ved henvendelse til megler.
Vedlagt salgsoppgaven følger selgers egenerklæringsskjema og tilstandsrapport. Interessenter må sette seg inn i dokumentene før bud inngis.
Boligkjøperforsikring
Innen kontraktsmøtet må kjøper ta stilling til om det ønskes å bestille Boligkjøperpakken gjennom Gjensidige. I denne gunstige pakken er boligen ferdig forsikret og inkluderer rettshjelpsforsikring, også kalt Boligkjøperforsikring. Rettshjelpsforsikring gir trygghet og tilgang på profesjonell juridisk hjelp dersom det oppdages uventede feil eller mangler det første året etter overtagelse. Forsikringsselskapet behandler i så fall ethvert mangelskrav kjøper måtte ha overfor selger.
Boligkjøperpakken inkluderer bygningsforsikring for hus og hytte, innboforsikring, flytteforsikring og dobbel rentedekning - i situasjoner hvor kjøper ikke får solgt nåværende primærbolig.
Kjøper mottar ingen særskilt faktura for Boligkjøperpakken da kostnaden det første året legges til kjøpesummen for boligen. Det gjøres oppmerksom på Krogsveen mottar et honorar for denne formidlingen.
Produktark for Boligkjøperpakken ligger vedlagt i salgsoppgaven.
Dersom ikke boligkjøperpakke ønskes kan kun rettshjelpsforsikring, også kalt boligkjøperforsikring, tegnes særskilt via megler. Rettshjelpsforsikringen varer i 5 år fra overtagelse og leveres gjennom Gjensidige. Ta kontakt med megler for ytterligere informasjon.
Selskap og privatpersoner som driver med kjøp/salg/utvikling som ledd i egen næringsvirksomhet kan ikke tegne boligkjøperpakke eller rettshjelpsforsikring.
Budgivning
Forbrukerinformasjon om budgivning er vedlagt denne salgsoppgaven og er også på vår hjemmeside Krogsveen.no. Alle bud og budforhøyelser må inngis skriftlig. I tillegg må legitimasjon være fremlagt sammen med signatur fra budgiver.
Vi oppfordrer til å gi bud elektronisk via GI BUD-knappen på eiendommens hjemmeside på Krogsveen.no. Da vil samtlige vilkår bli oppfylt.
Eventuelle forhøyelser eller endringer av budet kan bekreftes pr SMS eller på e-post. Vi oppfordrer alltid til å kontakte megler pr. telefon i tillegg da forsinkelser i SMS og e-post kan forekomme.
For at budene skal kunne bli behandlet og videreformidlet skriftlig til alle involverte parter, må alle bud ha en tilstrekkelig lang akseptfrist, jf. eiendomsmeglingsforskriften § 6-3.
Selger må også skriftlig akseptere budet før aksept kan formidles til budgiver. Akseptfrist bør derfor være på minimum 30 minutter, og budforhøyelser må derfor skje i god tid før fristens utløp.
Bud i forbrukerforhold kan uansett ikke settes med kortere frist enn kl. 12.00 første virkedag etter siste annonserte visning. I tillegg kan ikke budet ha forbehold om at det skal holdes hemmelig ovenfor øvrige interessenter. Megler har iht lov om eiendomsmegling ikke anledning til å videreformidle disse budene, og de vil dermed heller ikke bli journalført.
Etter at eiendommen er solgt vil kjøper og selger få tilsendt budjournal. Øvrige budgivere kan få utlevert kopi av budjournalen i anonymisert form.
Hvitvaskingsreglene
I henhold til lov om hvitvasking og terrorfinansiering har megler plikt til å gjennomføre kontrolltiltak overfor kunder, herunder fullmektiger. Dette innebærer bl.a. å bekrefte kunders og reelle rettighetshaveres identitet på bakgrunn av fremvist gyldig legitimasjon eller på annen godkjent måte, samt å innhente opplysninger om kundeforholdets formål og tilsiktede art.
Dersom slike kundetiltak ikke kan gjennomføres, kan megler ikke etablere kundeforholdet eller utføre transaksjonen.
Hvis kjøper ikke bidrar til gjennomføring av kundekontrollen og dette fører til at transaksjonen blir forsinket eller ikke kan gjennomføres, vil dette ansees som mislighold av avtalen og gi selger rettigheter etter avhendingslova kapittel 5. I tilfeller der selger ikke bidrar til gjennomføring av løpende kundekontroll underveis i oppdraget, er det selger som misligholder sine forpliktelser etter avtalen og gi kjøper rettigheter etter avhendingslovens kapittel 4. Partene er selv ansvarlige for eventuelle kostnader og ansvar dette kan medføre. Eiendomsmegleren eller eiendomsmeglingsforetaket kan ikke holdes ansvarlig for de konsekvenser dette vil kunne få for partene eller andre som har interesser i eiendomshandelen.
Kjøper oppfordres til å innbetale kjøpesummen som ikke kommer fra låneinstitusjon i én samlet innbetaling fra egen konto i norsk bank. Megler har plikt til å melde fra til Økokrim om eiendomshandler som fremstår som mistenkelige. Melding sendes Økokrim uten at partene varsles.
Personopplysningsloven
I henhold til personopplysningsloven gjør vi oppmerksom på at interessenter kan bli registrert for videre oppfølging.
Lovanvendelse
Generelle bestemmelser
Salgsoppgaven er basert på de opplysningene selger har gitt til megler, den bygningssakyndiges tilstandsrapport, samt opplysninger innhentet fra kommunen, Kartverket og andre tilgjengelige kilder. Det er viktig at kjøper setter seg grundig inn i alle salgsdokumentene, herunder salgsoppgave, tilstandsrapport og selgers egenerklæring. Kjøper anses kjent med forhold som er tydelig beskrevet i salgsdokumentene, og slike forhold kan ikke påberopes som mangler. Dette gjelder uavhengig av om kjøper har lest dokumentene. Alle interessenter oppfordres til å undersøke eiendommen nøye, gjerne sammen med fagkyndig før bud inngis. Kjøper som velger å kjøpe usett kan ikke gjøre gjeldende som mangel noe han burde blitt kjent med ved undersøkelsen.
Dersom det er behov for avklaringer, anbefaler vi at interessenter rådfører seg med eiendomsmegler eller egne rådgivere før det legges inn bud.
En bolig som har blitt brukt i en viss tid, har vanligvis blitt utsatt for slitasje og skader kan ha oppstått. Slik bruksslitasje må kjøper regne med, og det kan avdekkes enkelte forhold etter overtakelse som nødvendiggjør utbedringer. Normal slitasje og skader som nødvendiggjør utbedring, er innenfor hva kjøper må forvente og vil ikke utgjøre en mangel.
Kjøper og selgers rettigheter og plikter reguleres av avtalen mellom partene, samt informasjonen som har vært tilgjengelig for kjøperen i forbindelse med handelen. Avtalen utfylles av avhendingsloven, og det gjelder ulike avtalevilkår avhengig av om kjøper er forbrukerkjøper eller ikke. Dette er nærmere beskrevet nedenfor.
På grunn av ulike avtalevilkår kan selger vurdere bud fra en som ikke er forbruker, ulikt fra en forbrukers bud. Dersom kjøper ikke er forbruker, er selger sitt mulige mangelsansvar begrenset fordi eiendommen selges "som den er". Selger kan ikke ta «som den er»- forbehold overfor en forbrukerkjøper. Selv et lavere bud fra en som ikke er forbruker kan foretrekkes fordi begrensningen i mulig mangelsansvar kan ha egenverdi for selger. Selger står fritt til å forkaste eller akseptere ethvert bud, og er for eksempel ikke forpliktet til å akseptere høyeste bud.
Budgiver skal i budskjema avgi egenerklæring om budgiver er forbruker eller næringsdrivende/ person som hovedsakelig handler som ledd i næringsvirksomhet. Budgivere får informasjon dersom andre bud er inngitt av en som ikke er forbruker.
Forbrukerkjøp - definisjon
Med forbrukerkjøp menes kjøp av eiendom når kjøperen er en fysisk person som ikke hovedsakelig handler som ledd i næringsvirksomhet.
Forbruker – avtalevilkår
Eiendommen har en mangel dersom den ikke er i samsvar med kravene som følger av avtalen, eller det foreligger brudd på bestemmelsene i avhendingsloven §§ 3-2 til 3-8. Hvis eiendommen ikke er i samsvar med det kjøperen må kunne forvente ut ifra alder, type og synlig tilstand, kan det være grunnlag for mangelskrav. Det samme gjelder hvis det er holdt tilbake eller gitt uriktige opplysninger om eiendommen. Dette gjelder likevel bare dersom man kan gå ut ifra at det virket inn på avtalen at opplysningen ikke ble gitt eller at mangelskravet ikke blir rettet i tide på en tydelig måte.
Boligen kan ha en mangel etter avhendingsloven § 3-3 andre ledd, dersom det er avvik mellom opplyst og faktisk innvendig areal, forutsatt at avviket er på 2% eller mer og minimum 1 kvm.
Ved beregning av et eventuelt prisavslag eller erstatning må kjøper selv dekke tap/kostnader opptil et beløp på kr 10 000 (egenandel).
Ikke-forbruker (næringsdrivende) – definisjon
Hvis kjøper er en juridisk person, eller en fysisk person som hovedsakelig handler som ledd i næringsvirksomhet, vil kjøpet ikke anses som et forbrukerkjøp.
Ikke-forbruker – avtalevilkår
Eiendommen har en mangel dersom den ikke er i samsvar med kravene som følger av avtalen.
Eiendommen selges «som den er», og selgers ansvar utover det konkret avtalte er da begrenset etter avhendingsloven § 3-9, første ledd andre setning.
Avhendingsloven § 3-3 andre ledd fravikes, og hvorvidt boligens arealsvikt utgjør en mangel vurderes etter avhendingsloven § 3-8.
Informasjon om kjøpers undersøkelsesplikt, herunder oppfordringen om å undersøke eiendommen nøye, gjelder også for kjøpere som ikke anses som forbrukere.
Det forutsettes at hjemmel overføres til kjøper. Hvis kjøper ikke ønsker hjemmelsoverføring av eiendommen, må det tas forbehold om dette i budet.
Opplysninger om oppdraget
Oppdragsnummer 54-0066/25
Eiendomsmegler Krogsveen AS, avd. Løren
Lørenveien 50, 0585, OSLO
950 007 613
Oppdragets KR-kode KR54.2566
Dato
Sist oppdatert: 17. februar 2026 kl. 14:33
Dokumenter
Dokumenter
PDF – 307 KB
PDF – 478 KB
PDF – 745 KB
PDF – 312 KB
PDF – 29 KB
PDF – 127 KB
PDF – 392 KB
Område
Legg til steder som er viktige for deg
Visning
For å delta på visning, ber vi om at du melder deg på. Da sikrer vi at du får nødvendig informasjon og at det er satt av tilstrekkelig med tid. Kontakt megler dersom annet tidspunkt ønskes. Husk å lese salgsoppgaven før visningen, så du stiller forberedt. NB. Visning utgår dersom det ikke er noen påmeldte. Påmelding ønskes i god tid.
Ønsker du kun å bli holdt orientert, kan du fra eiendommens hjemmeside få varsel om solgtpris, eller kontakte megler.
Lurer du på noe?
Unngå doble boligrenter
Vi tilbyr gunstig forsikring.
Vurderer du utleie?
Få et tilbud fra Utleie KrogsveenHva koster lånet?
Sjekk estimert lånekostnadVil du varsles om lignende boliger?
Ved å lagre ditt boligsøk hos oss får du beskjed når vi har en bolig som ligner denne, før den legges ut på markedet!

