Maridalsveien 9B
5 190 000 kr
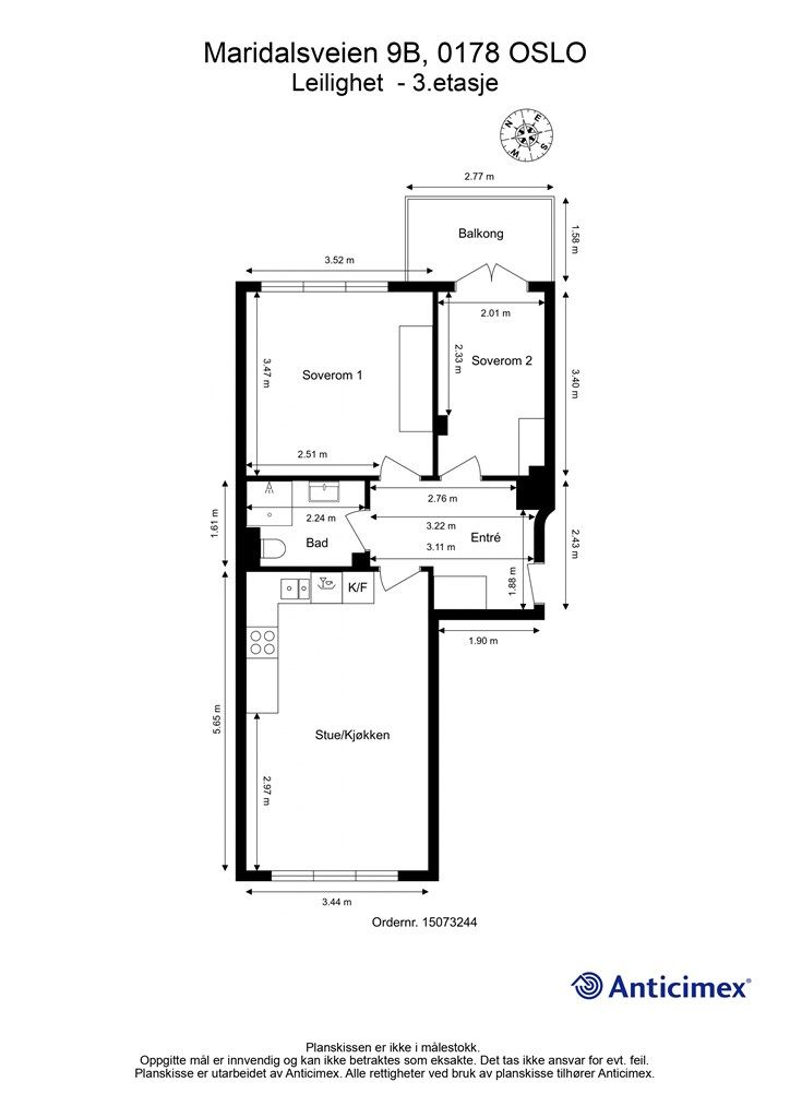
52 m²
2 soverom
Solgt
Grünerløkka / Vulkan
Moderne og lys 3-roms med balkong! Delikat oppusset i 2020. Fyring og vv inkl. Gjennomgående. Åpen stue/kjøkken.
Prisantydning
5 190 000 krAndel fellesgjeld
150 000 krOmkostninger
144 540 krTotalpris
5 484 540 kr
Pris
Bruksareal
56 m²BRA-I (internt bruksareal)
52 m²BRA-E (eksternt bruksareal)
4 m²TBA (terrasse-balkongareal)
4 m²
Areal
Etasje
3Byggeår
1938Soverom
2 soveromBad
1 badType
EierleilighetEierform
EierseksjonFasiliteter
Balkong/TerrasseFellesutgifter
5 780 krEnergimerke
Grønn F
Nøkkelinfo
Unngå doble boligrenter
Vi tilbyr gunstig forsikring.
Vurderer du utleie?
Få et tilbud fra Utleie KrogsveenHva koster lånet?
Sjekk estimert lånekostnadBeskrivelse
Kort om eiendommen
Velkommen til Maridalsveien 9B! Presentert av Halvor L. Heikkilä ved Krogsveen Majorstuen og Oslo Vest. En lys og fin 3-roms leilighet som ligger sentralt og attraktivt beliggende Grünerløkka / Vulkan. Leiligheten ble pusset opp i 2020 holder bra innvendig standard. Boligen har god takhøyde og er malt i moderne og lune farger. Her kan du flytte rett inn.
Kort informasjon om boligen:
- Balkong på 4 kvm fra 2017
- Baderom og kjøkken pusset opp i 2020.
- Store vindusflater med 3-lags isolerglass i stuen
- God planløsning
- Kort vei til kollektivtransport, matbutikk mm
- Varmtvann og fyring inkl*
- Disponibel kjellerbod
- Godt utleieobjekt
Velkommen til visning!
Område
Legg til steder som er viktige for deg
På flyttefot? Tenk kjøp og salg samtidig.
Få din egen rådgiver gjennom hele kjøps- og salgsprosessen. Det starter med en verdivurdering.
Unngå doble boligrenter
Vi tilbyr gunstig forsikring.
Vurderer du utleie?
Få et tilbud fra Utleie KrogsveenHva koster lånet?
Sjekk estimert lånekostnadVil du varsles om lignende boliger?
Ved å lagre ditt boligsøk hos oss får du beskjed når vi har en bolig som ligner denne, før den legges ut på markedet!




