Niels Juels gate 4B
12 500 000 kr
122 m²
3 soverom
Solgt
Skillebekk
Sjelden toppleilighet med balkong og privat takterrasse! Utsikt over Oslofjorden. Gode solforhold. Attraktiv beliggenhet
Prisantydning
12 500 000 krAndel fellesgjeld
166 436 krOmkostninger
327 690 krTotalpris
12 994 126 kr
Pris
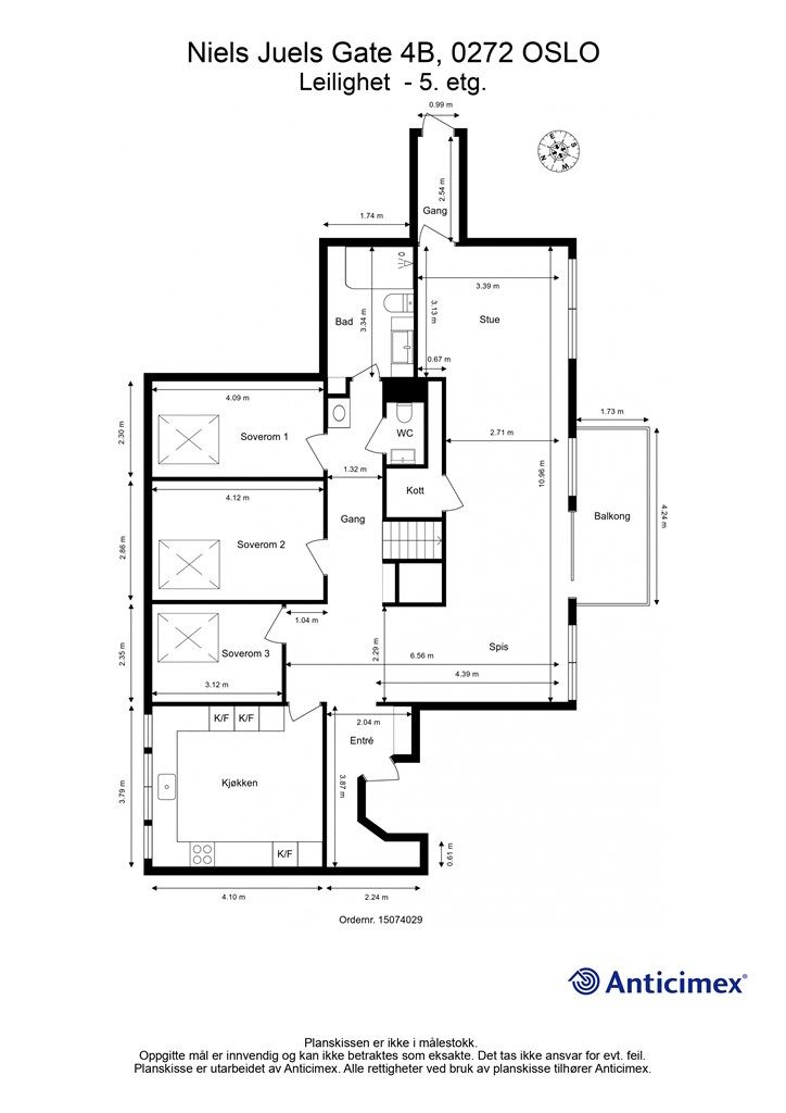
Bruksareal
125 m²BRA-I (internt bruksareal)
122 m²BRA-E (eksternt bruksareal)
3 m²TBA (terrasse-balkongareal)
19 m²
Areal
Etasje
5Byggeår
1904Soverom
3 soveromBad
1 badType
EierleilighetEierform
EierseksjonFasiliteter
Balkong/TerrasseFellesutgifter
6 112 krEnergimerke
Oransje G
Nøkkelinfo
Unngå doble boligrenter
Vi tilbyr gunstig forsikring.
Vurderer du utleie?
Få et tilbud fra Utleie KrogsveenHva koster lånet?
Sjekk estimert lånekostnadBeskrivelse
Kort om eiendommen
Velkommen til Niels Juels gate 4B, presentert av Halvor L. Heikkilä ved Krogsveen Majorstuen og Oslo Vest! En unik, stilfull og moderne toppleilighet over to etasjer med to flotte uteplasser, utsikt, peis mm. Generøs takhøyde og store vindusflater gir rikelig med dagslys og en god atmosfære. Boligen har attraktiv beliggenhet på Skillebekk. Kort informasjon om boligen:
- Balkong og privat takterrasse med utsikt mot Oslofjorden
- Lite innsyn
- Fantastiske solforhold
- Attraktiv og sentral beliggenhet
- Mye lagrings- og skapplass
- Peis
- Gjennomgående planløsning
- Gulvareal på over 140kvm
- Bad og kjøkken pusset opp i 2016/17
- Ekstra toalett
- Takhøyde på over 3,5m
Velkommen til visning!
Område
Legg til steder som er viktige for deg
På flyttefot? Tenk kjøp og salg samtidig.
Få din egen rådgiver gjennom hele kjøps- og salgsprosessen. Det starter med en verdivurdering.
Unngå doble boligrenter
Vi tilbyr gunstig forsikring.
Vurderer du utleie?
Få et tilbud fra Utleie KrogsveenHva koster lånet?
Sjekk estimert lånekostnadVil du varsles om lignende boliger?
Ved å lagre ditt boligsøk hos oss får du beskjed når vi har en bolig som ligner denne, før den legges ut på markedet!




