Nils Kirkeruds vei 35
6 400 000 kr
109 m²
3 soverom
Solgt
Flytt rett inn! Lekkert oppusset rekkehus med panoramautsikt, hageidyll, garasje og turstier i meget barnevennlig område
Prisantydning
6 400 000 krOmkostninger
171 040 krTotalpris
6 571 040 kr
Pris
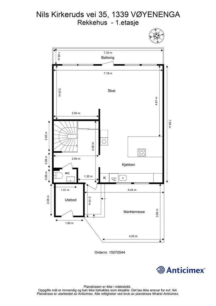
Bruksareal
115 m²BRA-I (internt bruksareal)
109 m²BRA-E (eksternt bruksareal)
6 m²TBA (terrasse-balkongareal)
36 m²
Areal
Etasje
2Byggeår
1994Soverom
3 soveromBad
1 badType
RekkehusEierform
EierseksjonFasiliteter
Balkong/TerrasseFellesutgifter
1 684 krEnergimerke
Rød D
Nøkkelinfo
Unngå doble boligrenter
Vi tilbyr gunstig forsikring.
Vurderer du utleie?
Få et tilbud fra Utleie KrogsveenHva koster lånet?
Sjekk estimert lånekostnadBeskrivelse
Kort om eiendommen
Velkommen til Nils Kirkeruds vei 35
Lekkert rekkehus over to plan med opparbeidet uteplass, fantastisk utsikt mot Kolsåstoppen og deilig kveldssol. Boligen ligger i et rolig og barnevennlig nabolag på Vøyenenga med nærhet til buss, barnehager, skole, butikker og populære turområder både sommer og vinter. Her får du det beste fra to verdener; ski inn/ski ut til Kirkerudbakken og kort vei til smaken av bylivet i Sandvika.
-Gode materialvalg og smarte løsninger
-God planløsning
-Panoramautsikt mot Kolsåstoppen
-Solrik hage
-Vestvendt balkong m/vakre solnedganger
-Åpen stue-/kjøkkenløsning og god romfølelse
-Garasje og felles ladeanlegg
-Stor lekeplass rett ved
-Nær buss, skole, barnehage og butikker
-Umiddelbar nærhet til idylliske turområder
Et strøkent familiehjem du kan flytte rett inn!
Område
Legg til steder som er viktige for deg
På flyttefot? Tenk kjøp og salg samtidig.
Få din egen rådgiver gjennom hele kjøps- og salgsprosessen. Det starter med en verdivurdering.
Unngå doble boligrenter
Vi tilbyr gunstig forsikring.
Vurderer du utleie?
Få et tilbud fra Utleie KrogsveenHva koster lånet?
Sjekk estimert lånekostnadVil du varsles om lignende boliger?
Ved å lagre ditt boligsøk hos oss får du beskjed når vi har en bolig som ligner denne, før den legges ut på markedet!




