Kvernbakken 45
9 490 000 kr
265 m²
4 soverom
Solgt

Presenteres av
Marielle K. Ryberg Gullaug
Flott arkitekttegnet bolig, i attraktivt nabolag. Vannbåren varme. Fjordutsikt, og sol fra tidlig morgen til sen kveld.
Prisantydning
9 490 000 krOmkostninger
258 240 krTotalpris
9 748 240 kr
Pris
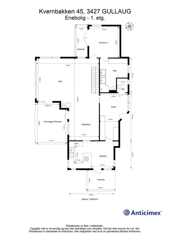
Bruksareal
334 m²BRA-I (internt bruksareal)
265 m²BRA-E (eksternt bruksareal)
69 m²TBA (terrasse-balkongareal)
50 m²
Areal
Etasje
2Byggeår
1996Soverom
4 soveromBad
2 badTomteareal
863 m² (eiet)Type
Enebolig - FrittliggendeEierform
EietFasiliteter
Garasje/P-plass og Balkong/TerrasseEnergimerke
Oransje E
Nøkkelinfo
Unngå doble boligrenter
Vi tilbyr gunstig forsikring.
Vurderer du utleie?
Få et tilbud fra Utleie KrogsveenHva koster lånet?
Sjekk estimert lånekostnadBeskrivelse
Kort om eiendommen
Innbydende og stor enebolig i et attraktivt boligområde.
Flott arkitekttegnet hus, som vant Lier sin byggeskikkpris i 1997
Familievennlig planløsning - gjennomgående romslige rom
Utstrakt bruk av store vindusflater - mye lysinnslipp og vid utsikt
Pent kjøkken fra 2012 med integrerte hvitevarer
2 flislagte bad, 2 ekstra wc og separat vaskerom
Gode ekstra rom som tv-stue og vinrom
Vannbåren gulvvarme i de fleste rom, via kombi-vvb fra 2018
Takstein ble fornyet med vask og overflatebehandling i 2020
Flere solrike uteplasser, lettstelt hage og stor gårdsplass
Nydelig utsikt - meget gode solforhold
Dobbelgarasje med elbillader (2024) og lagringsbod under
Gangavstand til butikk, bensinstasjon og turterreng
Kort vei til buss og tog
Område
Legg til steder som er viktige for deg
På flyttefot? Tenk kjøp og salg samtidig.
Få din egen rådgiver gjennom hele kjøps- og salgsprosessen. Det starter med en verdivurdering.
Unngå doble boligrenter
Vi tilbyr gunstig forsikring.
Vurderer du utleie?
Få et tilbud fra Utleie KrogsveenHva koster lånet?
Sjekk estimert lånekostnadVil du varsles om lignende boliger?
Ved å lagre ditt boligsøk hos oss får du beskjed når vi har en bolig som ligner denne, før den legges ut på markedet!
På flyttefot? Slik gjør vi det enklere for deg
Skreddersydd flyttepakke
Vi fikser håndverkere, vask, pakking, lagring og transport, og legger ut for utgiftene underveis.
Hjelp med både kjøp og salg
Hos oss har du din egen rådgiver gjennom hele kjøps- og salgsprosessen.
Hjelp til finansiering
Vårt samarbeid med BN Bank sikrer deg rask og løsningsorientert hjelp, til konkurransedyktige betingelser.

