Akselhagen 3
4 000 000 kr
85 m²
2 soverom
Solgt

Ganddal
Velholdt og innbydende leilighet, med solrik balkong, egen parkeringsplass og utvendig bod.
Prisantydning
4 000 000 krOmkostninger
111 040 krTotalpris
4 111 040 kr
Pris
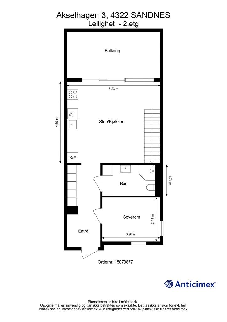
Bruksareal
90 m²BRA-I (internt bruksareal)
85 m²BRA-E (eksternt bruksareal)
5 m²TBA (terrasse-balkongareal)
14 m²
Areal
Byggeår
2008Soverom
2 soveromBad
1 badType
EierleilighetEierform
EierseksjonFellesutgifter
2 518 krEnergimerke
Rød F
Nøkkelinfo
Unngå doble boligrenter
Vi tilbyr gunstig forsikring.
Vurderer du utleie?
Få et tilbud fra Utleie KrogsveenHva koster lånet?
Sjekk estimert lånekostnadBeskrivelse
Kort om eiendommen
Leiligheten går over to plan og er sentralt plassert, med kort vei til det meste man trenger av skole/barnehager, turområder, offentlig transport, butikker m.m. Utenfor er det koselig grøntareal, med en vakker vanndam og diverse beplantning.
- Arealeffektiv planløsning
- Lys kjøkkeninnredning med integrerte hvitevarer, samt stilrene mosaikkfliser mellom benk og overskap.
- Helfliset bad med vegghengt wc, sort innredning, dusj og opplegg for vaskemaskin.
- Gasspeis
- 2 soverom og loftstue
- Leilighet i et veletablert og barnevennlig område
- Store vinduer som slipper inn rikelig med naturlig dagslys
- For den turglade har man Sandvedparken, Stokkelandsvannet og Vagleskogen like ved
-Gode tog- og bussforbindelser til Stavanger, Sandnes og Bryne. Eget togstopp på Ganddal
Område
Legg til steder som er viktige for deg
På flyttefot? Tenk kjøp og salg samtidig.
Få din egen rådgiver gjennom hele kjøps- og salgsprosessen. Det starter med en verdivurdering.
Unngå doble boligrenter
Vi tilbyr gunstig forsikring.
Vurderer du utleie?
Få et tilbud fra Utleie KrogsveenHva koster lånet?
Sjekk estimert lånekostnadVil du varsles om lignende boliger?
Ved å lagre ditt boligsøk hos oss får du beskjed når vi har en bolig som ligner denne, før den legges ut på markedet!

