Fortunalia 25
12 900 000 kr
431 m²
3 soverom
Komplett salgsoppgave

Jakobsli
Enebolig med store bruksmuligheter. Garasjeplass til hele sju biler, evt lagerplass/arbeidsplass for egen bedrift.
Prisantydning
12 900 000 krOmkostninger
343 490 krTotalpris
13 243 490 kr
Pris
Bruksareal
501 m²BRA-I (internt bruksareal)
431 m²BRA-E (eksternt bruksareal)
70 m²TBA (terrasse-balkongareal)
194 m²
Areal
Etasje
3Byggeår
1990Soverom
3 soveromBad
2 badTomteareal
950 m² (eiet)Type
Enebolig - FrittliggendeEierform
EietFasiliteter
Garasje/P-plass og Balkong/TerrasseEnergimerke
Gul D
Nøkkelinfo
Unngå doble boligrenter
Vi tilbyr gunstig forsikring.
Vurderer du utleie?
Få et tilbud fra Utleie KrogsveenHva koster lånet?
Sjekk estimert lånekostnadBeskrivelse
Kort om eiendommen
Boligen er helt unik i sin form, med utspring i herskapelig tyrolerstil. Arealet fordeler seg på to store plan samt loftsetasje og tårnstue, og alle rom har stil, karakter og et meget gjennomført særpreg. I tillegg til det store oppholdsarealet rommer underetasjen garasjeareal på hele 150 kvm. Samme etasje har også en lys og fin hybel, godt egnet for utleie. Til sammen gir dette boligen et stort antall bruks- og variasjonsmuligheter, og alle detaljer både inne og ute er en fryd å vandre igjennom.
Tomta ligger adskilt fra omkringliggende eiendommer, omgitt av hage og et skrånende terreng som sørger for både le og skjerming. Beliggenhet i blindvei gjør området ekstra fredelig, og den vakre utsikten bidrar med et åpent og vidstrakt skue mot fjorden.
Innhold og byggemåte
Innhold og byggemåte
Eiendommen
Fortunalia 25, 7059 JAKOBSLI
Kommunenummer 5001, gårdsnummer 41, bruksnummer 6, ideell andel 1/1
Innhold
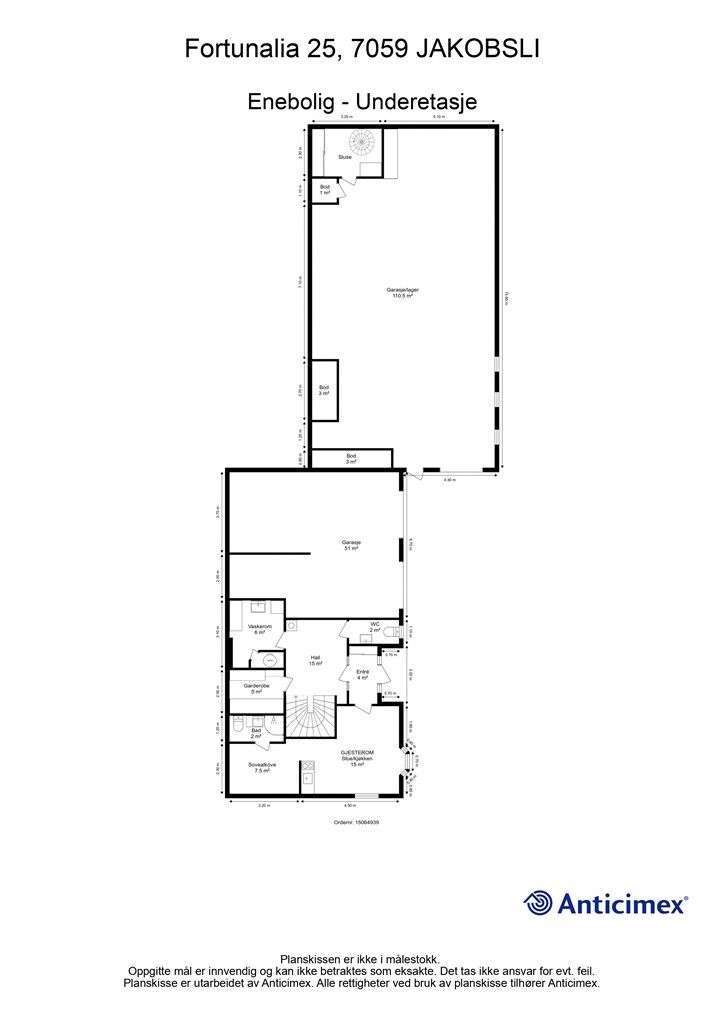
Underetasje
BRA: 251 kvm
BRA-i: 197 kvm. Entré, hall, toalettrom, vaskerom, garderoberom, stue/kjøkken, sovealkove, bad, garasje/lager, sluse og boder.
BRA-e: 54 kvm. Garasjerom.
BRA-b: 0
TBA: 10 kvm. Frittliggende terrasse ved dukkehus.
1. etasje
BRA: 184 kvm
BRA-i: 177 kvm. Stue, kjøkken, bibliotek, bad, badstue, soverom, bod, gang og spisestue.
BRA-e: 7 kvm
BRA-b: 0
TBA: 144 kvm. Balkong/terrasse.
Loftsetasje
BRA: 46 kvm
BRA-i: 46 kvm. Stue, to soverom og kneloft.
BRA-e: 0
BRA-b: 0
TBA: 46 kvm. Balkong.
2. etasje i tårn
BRA: 11 kvm
BRA-i: 11 kvm. Stue.
BRA-e: 0
BRA-b: 0
TBA: 0
Totalt
BRA: 492 kvm
BRA-i: 431 kvm
BRA-e: 61 kvm
BRA-b: 0
TBA: 492 kvm
Lysthus
BRA: 9 kvm
BRA-i: 0
BRA-e: 9 kvm
BRA-b: 0
TBA: 30 kvm
Totalt
BRA: 9 kvm
BRA-i: 0
BRA-e: 9 kvm. Lysthus.
BRA-b: 0
TBA: 30 kvm. Terrasse.
I tillegg kommer
- plen og hage
- dukkehus med terrasse
- steinlagt innkjørsel/biloppstillingsplass
1. etasje har et totalt gulvareal (GUA) på 181 kvm, men grunnet skråtak/lav takhøyde er kun 177 kvm av arealet måleverdig som bruksareal. De delene av arealene som har lav himlingshøyde (ALH) utgjør 4 kvm.
Loftsetasjen har et totalt gulvareal (GUA) på 55 kvm, men grunnet skråtak/lav takhøyde er kun 46 kvm av arealet måleverdig som bruksareal. De delene av arealene som har lav himlingshøyde (ALH) utgjør 9 kvm.
Vedlagte plantegninger er ikke målbare. De oppgitte arealer er hentet fra rapport med befaringsdato 24.02.2025 utført av Anticimex AS avd. Trondheim. Arealene er beregnet og rom er definert etter dagens faktiske bruk, uavhengig av hva som er godkjent av bygningsmyndighetene.
Byggemåte
Selger har fått utarbeidet en tilstandsrapport, dvs. en teknisk gjennomgang av boligen hvor eventuelle avvik, risiko for kjøper og prisoverslag for hva som bør gjøres av oppgradering, er skissert. Se særskilt TGIU (tilstandsgrad ikke undersøkt), samt TG2. Rapporten og selgers egenerklæring er en del av salgsoppgaven og må leses nøye før bud inngis. Kjøper overtar ansvaret for de opplysninger som fremkommer av salgsdokumentasjonen, og kan ikke gjøre gjeldende som mangel noe som burde vært kjent eller som ikke kan anses å ha betydning for avtalen.
Bygningen er iht. tilstandsrapporten oppført i 1990. Grunnmur av lettklinkerblokker. Fundamentert på ukjent byggegrunn. Bygget er oppført med støpt gulv mot grunn. Yttervegger av lettklinkerblokker/trekonstruksjoner. Fasaden er kledd med fasadeplater. Fasaden er kledd med liggende trekledning. Etasjeskillere av trekonstruksjoner og lettklinkerdekke. Saltak i trekonstruksjoner (ikke besiktiget). Yttertak er utvendig tekket med takstein. Entrédører med sikkerhetslås og glassfelter. Vinduer og balkongdør med karmer av tre, og to-lags glass. Vinduer og balkongdør med karmer av plast, og tre-lags glass. Les forøvrig mer om byggemåte og den tekniske tilstanden i rapporten.
Moderniseringer og påkostninger
2020: Oppføring av lysthus i hagen.
2018: Oppgradering av baderom i 1. etasje.
2014
- ny kjøkkeninnredning (tilbygg i 1. etasje)
- ny drenering
- oppføring av tårnstue
2013
- enkelte nye vinduer
- tilbygg belagt med takstein
Standard
En oppsummering av punktene i Tilstandsrapport viser at
- 77 % er klassifisert med tilstandsgrad 1 (TG 1)
- 18 % er klassifisert med tilstandsgrad 2 (TG 2)
- 0 % er klassifisert med tilstandsgrad 3 (TG 3)
- 5 % omtales som ikke undersøkt (TG-IU)
For detaljer om standard og tilstand, se tilstandsrapport datert 24.02.2025.
Rapporten fra takstmann er en teknisk gjennomgang av boligen og angir eventuelle byggetekniske avvik. Sammendraget under beskriver avvik ved boligen som har fått tilstandsgrad TG2 og TGIU.
Tilstandsgrad 2:
- Vannrør på bad i 1. etasje pga. at alder.
- Vaskerom i underetasjen pga. alder. Gulvbelegget har sprekker og utettheter i overganger.
- Bad på gjesterom pga. alder. Elastiske fuger har stedvis manglende vedheft. Det observeres avflassing på maling i dusjsonen. Det registreres bomlyd (tegn til hulrom) under enkelte gulvfliser. Det er ikke benyttet tettesjikt/membran i våtsoner eller sluk i rommet, noe som gjør at gjeldende krav for våtrom ikke er oppfylt. Våtrommet har ingen tilluftsspalte under dør. Innredningen (med servant) bærer i sin helhet preg av alder/slitasje.
- Vannrør på kjøkken i 1. etasje pga. at alder.
- Overflater gulv på kjøkken i 1. etasje pga. at gulvets overflatemateriale har enkelte synlige skader.
- Innredning på kjøkken i 1. etasje pga. at det er tegn til svelleskader på benkeplate.
- Ventilasjon og avtrekk på kjøkken i gjesterom pga. at det ikke er montert kjøkkenventilator, noe som påvirker ventilasjonen negativt.
- Vannrør på kjøkken på gjesterom pga. at alder.
- Vannrør på toalettrom i underetasjen pga. at alder.
- Overflater gulv øvrige rom i 1. etasje pga. at gulvets overflatemateriale har enkelte synlige skader.
- Overflater gulv i underetasjen pga. at gulvets overflatemateriale har enkelte synlige skader (i deler av gjesterom). Det registreres moderate tegn til bomlyd (tegn til hulrom) under enkelte gulvfliser i entré og gang. Sprekker i gulvflis observert i entré.
- Ildsteder pga. at det er sprekk i ildfast steinplate, inne i peisovnens forbrenningskammer.
- Innvendige trapper pga. at åpninger i rekkverket på mer enn 0,10 meter. Trappene har åpninger på mer enn 0,10 meter.
- Varmtvannsbereder pga. alder. Varmtvannsbereder er plassert i rom uten sluk/overløp eller annen sikring mot fuktskader (f.eks automatisk vannstopper). Konsekvens kan være at det oppstår fuktskader hvis lekkasje fra varmtvannsbereder skulle oppstå.
- Vannrør pga. alder.
- Fasader inkludert kledning pga. at skråriss/vertikalriss stedvis observert i murpuss. Eksakt årsak er ukjent, men kan tyde på setninger/bevegelser i konstruksjonen.
- Tekking på yttertak i hoveddel pga. alder. Symptomer på slitasje og elde er registrert, selv om det ikke ble observert tegn på lekkasjer eller skader.
- Balkong/terrasse på 144 kvm pga. at rekkverkshøyden er under en meter. Enkelte søyler til balkongen/terrassen har liten avstand til terrenget. Over deler av garasje utgjør overliggende balkong/terrasse takkonstruksjonen. Tettesjiktet er ikke tilgjengelig for inspeksjon, og vurdert til å ha en alder som tilsier usikker tilstand/restlevetid.
- Balkong på 10 kvm pga. at rekkverkshøyden er under en meter.
- Platting på 9 kvm pga. synlige symptomer på slitasje/elde.
- Grunnmur pga. at skråriss/vertikalriss stedvis er observert på grunnmur. Eksakt årsak er ukjent, men kan tyde på setninger/bevegelser i grunnmuren.
- Drenering pga. alder.
Tilstandsgrad IU:
- Vaskerom i underetasjen: På grunn av våtrommets utforming og bruk er det ikke praktisk mulig å gjennomføre hulltaking og fuktmåling i de mest fuktutsatte delene av våtsonen, som erfaringsmessig er områdene der skader forekommer. Hulltaking og fuktmåling i lukkede konstruksjoner er derfor ikke utført. Det ble derimot gjennomført et overflatesøk med fuktindikator, uten at det ble påvist indikasjoner som tyder på fuktskader.
- Bad på vaskerom: Med bakgrunn i at våtrommets vegger er av mur/betong er det ikke praktisk mulig å gjennomføre fuktmåling/hulltaking i et område der det erfaringsmessig forekommer skader. Hulltaking og fuktmåling i lukkede konstruksjoner er derfor ikke utført. Tilstanden inne i konstruksjonen er ikke kjent.
- Annet i underetasjen: Deler av overflatene i garasje var ikke tilgjengelig for inspeksjon pga. særlig tungt/store mengder inventar. Det gjøres oppmerksom på at det kan være bygningsdeler som er utsatt for slitasje, skader eller feil utførelse som ikke registreres grunnet begrenset tilkomst. Ytterligere undersøkelser anbefales slik at tiltak kan iverksettes ved behov.
- Konstruksjonsoppbygging på badstue: Veggkonstruksjonen er lukket, og det er ikke kjent hvordan oppbyggingen er utført.
- Radon: Det er ukjent om radonmåling er gjennomført i boligen. Ytterligere undersøkelser anbefales.
- Konstruksjon på yttervegger: Veggkonstruksjonen er lukket, og det er ikke kjent hvordan oppbyggingen er utført.
- Grunnmur: Deler av grunnmuren er ikke tilgjengelig for undersøkelser på grunn av bygningsdeler som er plassert mot grunnmuren. Ytterligere undersøkelser anbefales.
- Byggegrunn: Byggegrunnens oppbygning er ukjent.
Løsøre og tilbehør
Vi viser til liste fra Norges Eiendomsmeglerforbund som gjelder fra 01.01.2020 angående løsøre og tilbehør.
Dette medfølger eiendommen i følge selger:
- Kjøleskap.
- Oppvaskmaskin.
- Komfyr.
Dette medfølger ikke eiendommen i følge selger:
- Diverse mindre elektriske utstyr og lamper.
Oppvarming
Boligen har peisovn i stua, og ellers oppvarming via elektrisitet.
Ferdigattest/brukstillatelse
Det foreligger ikke ferdigattest på eiendommen, men midlertidig brukstillatelse ble gitt 29.06.1990. Videre foreligger det igangsettelsestillatelse for oppføring av ny garasje/carport, oppføring av tilbygg samt bruksendring av trimrom til gjesterom datert 05.06.2012.
Dagens tegninger avviker fra opprinnelige tegninger.
Underetasje:
- Badet på 2 kvm er etablert i senere tid.
- De tre bodene i garasjen er etablert i senere tid.
1. etasje:
- Det er fjernet en dør og vegg mellom stuen og oppholdsrommet i senere tid.
- Det er etablert en vegg mellom oppholdsrommet og gangen i senere tid.
- Deler av balkongen/terrassen er etablert i senere tid.
Det foreligger ikke søknad eller tegninger for dukkestuen og lysthuset med tilhørende terrasser. Dette er i utgangspunktet ikke søknadspliktige tiltak, såfremt de er plassert inntil en meter fra nabogrense og annen bygning på eiendommen samt at det er innenfor utnyttelsesgraden på eiendommen. Kjøper overtar alt ansvar, eventuell kostnad og risiko forbundet med dette.
Det gjøres oppmerksom på at det ikke lenger utstedes ferdigattest på tiltak det er søkt om før 1998 jf. plan- og bygningsloven § 21-10. Kommunen vil ikke kreve ferdigattest for disse tiltakene og vil avvise eventuelle søknader. Bestemmelsen innebærer ikke at tiltak med manglende søknad blir lovlige, men at man ikke trenger å avslutte gamle byggesaker. Normalt sett kreves ferdigattest for alle søknadspliktige tiltak som gjøres etter plan- og bygningsloven.
Kjøper overtar eiendommen slik den fremstår på visning.
Tinglyste heftelser og rettigheter
Eiendommen overdras fri for pengeheftelser med unntak av:
- Dagboknr 275, tinglyst 20.01.1948, type heftelse: Forpliktelse til å opparbeide gate når Trondheim kommune forlanger det. Det gjøres oppmerksom på at kjøpers lån vil få 2. prioritet.
Det er videre tinglyst følgende servitutt på eiendommen:
- Dagboknr 4081, tinglyst 02.03.1992, type heftelse: Eier av d.e. skal legge ut sin andel av gategrunn m.v. Rett for kommunen til å legge og vedlikeholde diverse ledninger over d.e.
Videre er det tinglyst en servitutt og en rettighet som kan ha betydning for kjøpers bruk:
- Dagboknr 7736, tinglyst 09.12.1952, type heftelse: Diverse betingelser i forbindelse med midlertidig vannrett på bnr.8.
- Dagboknr 300416, tinglyst 17.02.1941, type rettighet: Bestemmelse om veg.
Dokumentene er ikke å finne i verken Statens Kartverks arkiver eller Statsarkivet, men hefter i eiendommen. Kjøper overtar ansvaret for servitutten.
Servituttene vil følge eiendommen. Kjøpers bank vil få prioritet etter ovennevnte heftelser og servitutter.
Eventuell adgang til utleie
Den del av boligens underetasje som er innredet som en hybel er lovlig for beboelse, men er ikke godkjent som separat boenhet av kommunen. Det gjøres oppmerksom på at det er krav til forsvarlige radonnivåer ved utleie.
Hybelen er ikke utleid per i dag, men forrige leieavtale var på kr 6.500,- per måned i følge selger.
Diverse
For ordens skyld kan det opplyses at naboeiendommen som er bygget tett inntil nr.25 også kan selges. Verdi på denne boligen er satt til kr 4.000.000,-. Ved eventuelle spørsmål ta kontakt med megler.
Tilbud av produkter og tjenester fra våre samarbeidspartnere. Vi er opptatt av verdiskapning, og har knyttet til oss samarbeidspartnere som skal sikre våre kunder de beste produkter og tjenester:
- Gjensidige leverer boligselgerforsikring og tilbyr bygningsforsikring.
- Boligkjøperforsikring levers av Hiscox og med Sedgwick som skadebehandler, og er formidlet gjennom Gjensidige.
- BN bank tilbyr finansieringsløsninger.
- Vår avdeling Krogsveen Pluss tilbyr flyttetjenester som utvask, visningsvask, lager, tømming og transport av flyttelass, i tillegg til å formidle kontakt med Flip for overflateoppussing.
- I forbindelse med overtagelse av eiendommen tilbyr Overo avtale om strøm, alarm og bredbånd.
- Krogsveen er, sammen med øvrige bransjeaktører, medeier i den digitale annonseringsplattformen Hjem.
Selger opplyser om følgende i egenerklæringsskjema:
- Det er fuktskader på terrasse over garasje og under fasadepuss.
Beliggenhet og tomteforhold
Beliggenhet og tomteforhold
Beliggenhet
Eiendommen ligger på Jakobsli, ca. ni kilometer sørøst for Trondheim sentrum. Tomta ligger noe adskilt fra omkringliggende eiendommer, og er omgitt av hage og et skrånende terreng som sørger for både le og skjerming. Fasaden vender mot fjorden i nord, som strekker seg i en vakker, vidstrakt utsikt fra Frosta til like over Ladehammeren. Boligfeltet overlapper med landbruksområder, og grenser videre mot Estenstadmarka og populære turmuligheter.
Området er rolig og familievennlig med flere barn i nabolaget. Nærmeste barnehage ligger på naboeiendommen, og til Solbakken skole (1. – 7. klasse) er det ca. 2,5 kilometer. Både ungdomsskole og VGS ligger innenfor en radius på ca. 4 kilometer. Nærmeste bussholdeplass ligger like utenfor huset, og til nærmeste dagligvare tar det ca. 20 minutter å gå. Nærhet til universitetsavdelingen på Dragvoll er også verdt å nevne; en liten spasertur fra boligen.
Beliggenhet ved marka og fine turområder er en av områdets største kvaliteter. Trivelige stier og landeveier og flere flotte utsiktsplatå er noe av det som kretser rundt nabolaget. Noen få minutters rolig gange gir direkte kontakt med løypenettet, og både Estenstadhytta og Estenstaddammen er to av mange velkjente turmål. Det er kort vei til flere treningssenter i tillegg til friluftsmulighetene. Charlottenlundhallen er samlingspunkt for et stort antall aktiviteter, og Leangen idrettspark kompletterer med ishall og kunstisbane.
For detaljerte beskrivelser av avstander fra boligen, se «Nabolagsprofilen».
Adkomst
Se Google maps - det er enkelt å finne frem i kartet.
Link: https://maps.app.goo.gl/Nxqrmxzy2LsyMuMXA
Barnehager, skoler og fritid
Barnehager i nærheten:
- Solbakken barnehage (1-5 år) 0,1 km
- Øvre Jakobsli barnehage (1-5 år) 1,4 km
- Jakobsgrenda barnehage (1-5 år) 1,7 km
Skoler i nærheten:
- Solbakken skole (1-7 kl.) 2,5 km
- Åsvang skole (1-7 kl.) 2,9 km
- Charlottenlund barneskole (1-7 kl.) 3,3 km
- Charlottenlund ungdomsskole (8-10 kl.) 3,3 km
- Markaplassen skole (8-10 kl.) 4 km
- Charlottenlund videregående skole (1.100 elever) 3,5 km
- Strinda videregående skole (1150 elever) 5,4 km
Offentlig transport:
- Fortunalia 4 min gange
- Ranheim stasjon 9 min med bil
- Trondheim S 11 min med bil
- Trondheim Værnes 25 min med bil
Dagligvare:
- Rema 1000 Dragvoll 3 min med bil
- Rema 1000 Charlottenlund 4 min med bil
Varer og tjenester:
- Moholtsenteret 6 min med bil
- Grilstadporten kjøpesenter 8 min med bil
- Apotek 1 Moholt 5 min med bil
- Vitusapotek Ranheim 8 min med bil
- Valentinlyst Vinmonopol 10 min med bil
- Lade Vinmonopol 11 min med bil
Informasjon om tilhørende skolekretser er hentet fra Prognosesenteret som dataleverandør, og tilhørigheten kan årlig endres av kommunen. Dersom skole- og barnehagetilbud er av betydning for kjøpet, ber vi om at det rettes en særskilt henvendelse til kommunen/bydelsadministrasjonen for oppdatert informasjon.
Beskrivelse av tomt
Det er foretatt fradeling av ca. 511 kvm den 25.09.2025. Se kart vedlagt i salgsoppgaven. Etter fradelingen utgjør eiendomstomten ca. 950 m2. Det er foreløpig ikke gjennomført oppmålingsforretning og det kan således forekomme mindre justeringer av delegrensen på grunn av terrengmessige eller andre forhold. Tomten er opparbeidet med asfalt, belegningsstein, steinheller, plen, beplantning, terrasse, biloppstillingsplass og et frittstående lysthus.
Parkering
Garasjene er innlemmet i boligarealet og har til sammen plass til sju biler. I tillegg er det utvendig oppstillingsplass til ca. fem biler.
Vei, vann og avløp
Eiendommen har adkomst via privat vei med felles vedlikeholdsansvar.
Eiendommen er tilknyttet kommunalt ledningsnett via private stikkledninger. Eier er selv ansvarlig for private stikkledninger til boligen.
Regulerings-og arealplaner
Eiendommen er regulert til boligformål i henhold til reguleringsplan r0266d datert 24.01.1990 med tilhørende reguleringsbestemmelser 24.04.2008.
Utsnitt av plan med tilhørende bestemmelser kan fås ved henvendelse til megler.
Økonomi
Økonomi
Kommunale utgifter
Kommunale avgifter for innværende år er stipulert til kr 33.072,-. I dette inngår gebyr for vann, avløp, feiing og eiendomsskatt.
Kommunale avgifter i Trondheim Kommune er fordelt på 12 terminer. For termin 7 av 12 i 2025 var avgiften på kr 2.756,-. Stipuleringen av årlige avgifter tar utgangspunkt i denne termin.
Kommunale avgifter og gebyrer kan avvike fra en termin til en annen.
Nåværende eier har et strømforbruk som tilsvarer ca. kr 50.000,- per år / 45.690 kwh. per år.
Boligen har en årlig forsikringspremie på kr 10.500,-.
Boligen er tilknyttet Telenor 10 Mbps som leverandør av tv og internett og har avgift på kr 859 pr. mnd.
Utgiftene er basert på nåværende eiers forbruk og avtaler.
Formuesverdi
Formuesverdi for 2023 var kr 2.391.109,- ifølge skatteetaten. Beløpet forutsetter at eier bor fast i boligen (primærbolig).
Ved eventuell øvrig bruk av eiendommen (f.eks. fritidsbolig, pendlerbolig, utleieobjekt) var formuesverdien for 2023 kr 9.564.434,-.
Formuesverdien justeres normalt årlig. Se skatteetaten.no for mer informasjon om fastsettelse av formuesverdien.
Omkostninger
12 900 000,00 Prisantydning
Omkostninger
322 500,00 Dokumentavgift til staten (2,5% av kjøpesum)
19 900,00 Gjensidige Boligkjøperpakke (valgfri)
545,00 Tinglysing panterettsdokument
545,00 Tinglysing skjøte
--------------------------------------------------------
343 490,00 Omkostninger totalt
--------------------------------------------------------
13 243 490,00 Totalpris inkl. omkostninger
--------------------------------------------------------
Totalpris inkl. omkostninger forutsetter kjøp til prisantydning. Det tas forbehold om endringer i avgifter og gebyrer.
Betalingsbetingelser
Kjøpesum inkludert omkostninger, samt pantedokument tilknyttet eventuelt lån, skal være disponibelt hos megler 2 virkedager før overtagelsen.
Annen viktig informasjon
Annen viktig informasjon
Eier
Willy Busch
Overtakelse
Etter nærmere avtale.
Boligselgerforsikring
Selger har i forbindelse med salget tegnet boligselgerforsikring levert av Gjensidige.
Boligselgerforsikringen dekker selgers ansvar etter avhendingsloven begrenset oppad til kr 14 millioner. Dersom kjøper oppdager forhold ved eiendommen som hen mener utgjør en mangel ved eiendommen, vil Gjensidige behandle reklamasjonen på vegne av selger. Forsikringsvilkår kan fås ved henvendelse til megler.
Vedlagt salgsoppgaven følger selgers egenerklæringsskjema og tilstandsrapport. Interessenter må sette seg inn i dokumentene før bud inngis.
Boligkjøperforsikring
Innen kontraktsmøtet må kjøper ta stilling til om det ønskes å bestille Boligkjøperpakken gjennom Gjensidige. I denne gunstige pakken er boligen ferdig forsikret og inkluderer rettshjelpsforsikring, også kalt Boligkjøperforsikring. Rettshjelpsforsikring gir trygghet og tilgang på profesjonell juridisk hjelp dersom det oppdages uventede feil eller mangler det første året etter overtagelse. Forsikringsselskapet behandler i så fall ethvert mangelskrav kjøper måtte ha overfor selger.
Boligkjøperpakken inkluderer bygningsforsikring for hus og hytte, innboforsikring, flytteforsikring og dobbel rentedekning - i situasjoner hvor kjøper ikke får solgt nåværende primærbolig.
Kjøper mottar ingen særskilt faktura for Boligkjøperpakken da kostnaden det første året legges til kjøpesummen for boligen. Det gjøres oppmerksom på Krogsveen mottar et honorar for denne formidlingen. Produktark for Boligkjøperpakken ligger vedlagt i salgsoppgaven.
Dersom ikke boligkjøperpakke ønskes kan kun rettshjelpsforsikring, også kalt boligkjøperforsikring, tegnes særskilt via megler. Rettshjelpsforsikringen varer i 5 år fra overtagelse og leveres gjennom Gjensidige. Ta kontakt med megler for ytterligere informasjon.
Selskap og privatpersoner som driver med kjøp/salg/utvikling som ledd i egen næringsvirksomhet kan ikke tegne boligkjøperpakke eller rettshjelpsforsikring.
Budgivning
Forbrukerinformasjon om budgivning er vedlagt denne salgsoppgaven og er også på vår hjemmeside Krogsveen.no. Alle bud og budforhøyelser må inngis skriftlig. I tillegg må legitimasjon være fremlagt sammen med signatur fra budgiver.
Vi oppfordrer til å gi bud elektronisk via GI BUD-knappen på eiendommens hjemmeside på Krogsveen.no. Da vil samtlige vilkår bli oppfylt.
Eventuelle forhøyelser eller endringer av budet kan bekreftes pr SMS eller på e-post. Vi oppfordrer alltid til å kontakte megler pr. telefon i tillegg da forsinkelser i SMS og e-post kan forekomme.
For at budene skal kunne bli behandlet og videreformidlet skriftlig til alle involverte parter, må alle bud ha en tilstrekkelig lang akseptfrist, jf. eiendomsmeglingsforskriften § 6-3.
Selger må også skriftlig akseptere budet før aksept kan formidles til budgiver. Akseptfrist bør derfor være på minimum 30 minutter, og budforhøyelser må derfor skje i god tid før fristens utløp.
Bud i forbrukerforhold kan uansett ikke settes med kortere frist enn kl. 12.00 første virkedag etter siste annonserte visning. I tillegg kan ikke budet ha forbehold om at det skal holdes hemmelig ovenfor øvrige interessenter. Megler har iht lov om eiendomsmegling ikke anledning til å videreformidle disse budene, og de vil dermed heller ikke bli journalført.
Etter at eiendommen er solgt vil kjøper og selger få tilsendt budjournal. Øvrige budgivere kan få utlevert kopi av budjournalen i anonymisert form.
Hvitvaskingsreglene
I henhold til lov om hvitvasking og terrorfinansiering har megler plikt til å gjennomføre kontrolltiltak overfor kunder, herunder fullmektiger. Dette innebærer bl.a. å bekrefte kunders og reelle rettighetshaveres identitet på bakgrunn av fremvist gyldig legitimasjon eller på annen godkjent måte, samt å innhente opplysninger om kundeforholdets formål og tilsiktede art. Dersom slike kundetiltak ikke kan gjennomføres, kan megler ikke etablere kundeforholdet eller utføre transaksjonen.
Hvis kjøper ikke bidrar til gjennomføring av kundekontrollen og dette fører til at transaksjonen blir forsinket eller ikke kan gjennomføres, vil dette ansees som mislighold av avtalen og gi selger rettigheter etter avhendingslova kapittel 5. I tilfeller der selger ikke bidrar til gjennomføring av løpende kundekontroll underveis i oppdraget, er det selger som misligholder sine forpliktelser etter avtalen og gi kjøper rettigheter etter avhendingslovens kapittel 4. Partene er selv ansvarlige for eventuelle kostnader og ansvar dette kan medføre. Eiendomsmegleren eller eiendomsmeglingsforetaket kan ikke holdes ansvarlig for de konsekvenser dette vil kunne få for partene eller andre som har interesser i eiendomshandelen.
Kjøper oppfordres til å innbetale kjøpesummen som ikke kommer fra låneinstitusjon i én samlet innbetaling fra egen konto i norsk bank. Megler har plikt til å melde fra til Økokrim om eiendomshandler som fremstår som mistenkelige. Melding sendes Økokrim uten at partene varsles.
Personopplysningsloven
I henhold til personopplysningsloven gjør vi oppmerksom på at interessenter kan bli registrert for videre oppfølging.
Lovanvendelse
Generelle bestemmelser
Salgsoppgaven er basert på de opplysningene selger har gitt til megler, den bygningssakyndiges tilstandsrapport, samt opplysninger innhentet fra kommunen, Kartverket og andre tilgjengelige kilder. Det er viktig at kjøper setter seg grundig inn i alle salgsdokumentene, herunder salgsoppgave, tilstandsrapport og selgers egenerklæring. Kjøper anses kjent med forhold som er tydelig beskrevet i salgsdokumentene, og slike forhold kan ikke påberopes som mangler. Dette gjelder uavhengig av om kjøper har lest dokumentene. Alle interessenter oppfordres til å undersøke eiendommen nøye, gjerne sammen med fagkyndig før bud inngis. Kjøper som velger å kjøpe usett kan ikke gjøre gjeldende som mangel noe han burde blitt kjent med ved undersøkelsen.
Dersom det er behov for avklaringer, anbefaler vi at interessenter rådfører seg med eiendomsmegler eller egne rådgivere før det legges inn bud.
En bolig som har blitt brukt i en viss tid, har vanligvis blitt utsatt for slitasje og skader kan ha oppstått. Slik bruksslitasje må kjøper regne med, og det kan avdekkes enkelte forhold etter overtakelse som nødvendiggjør utbedringer. Normal slitasje og skader som nødvendiggjør utbedring, er innenfor hva kjøper må forvente og vil ikke utgjøre en mangel.
Kjøper og selgers rettigheter og plikter reguleres av avtalen mellom partene, samt informasjonen som har vært tilgjengelig for kjøperen i forbindelse med handelen. Avtalen utfylles av avhendingsloven, og det gjelder ulike avtalevilkår avhengig av om kjøper er forbrukerkjøper eller ikke. Dette er nærmere beskrevet nedenfor.
På grunn av ulike avtalevilkår kan selger vurdere bud fra en som ikke er forbruker, ulikt fra en forbrukers bud. Dersom kjøper ikke er forbruker, er selger sitt mulige mangelsansvar begrenset fordi eiendommen selges "som den er". Selger kan ikke ta «som den er»- forbehold overfor en forbrukerkjøper. Selv et lavere bud fra en som ikke er forbruker kan foretrekkes fordi begrensningen i mulig mangelsansvar kan ha egenverdi for selger. Selger står fritt til å forkaste eller akseptere ethvert bud, og er for eksempel ikke forpliktet til å akseptere høyeste bud.
Budgiver skal i budskjema avgi egenerklæring om budgiver er forbruker eller næringsdrivende/ person som hovedsakelig handler som ledd i næringsvirksomhet. Budgivere får informasjon dersom andre bud er inngitt av en som ikke er forbruker.
Forbrukerkjøp - definisjon
Med forbrukerkjøp menes kjøp av eiendom når kjøperen er en fysisk person som ikke hovedsakelig handler som ledd i næringsvirksomhet.
Forbruker – avtalevilkår
Eiendommen har en mangel dersom den ikke er i samsvar med kravene som følger av avtalen, eller det foreligger brudd på bestemmelsene i avhendingsloven §§ 3-2 til 3-8. Hvis eiendommen ikke er i samsvar med det kjøperen må kunne forvente ut ifra alder, type og synlig tilstand, kan det være grunnlag for mangelskrav. Det samme gjelder hvis det er holdt tilbake eller gitt uriktige opplysninger om eiendommen. Dette gjelder likevel bare dersom man kan gå ut ifra at det virket inn på avtalen at opplysningen ikke ble gitt eller at mangelskravet ikke blir rettet i tide på en tydelig måte.
Boligen kan ha en mangel etter avhendingsloven § 3-3 andre ledd, dersom det er avvik mellom opplyst og faktisk innvendig areal, forutsatt at avviket er på 2% eller mer og minimum 1 kvm.
Ved beregning av et eventuelt prisavslag eller erstatning må kjøper selv dekke tap/kostnader opptil et beløp på kr 10 000 (egenandel).
Ikke-forbruker (næringsdrivende) – definisjon
Hvis kjøper er en juridisk person, eller en fysisk person som hovedsakelig handler som ledd i næringsvirksomhet, vil kjøpet ikke anses som et forbrukerkjøp.
Ikke-forbruker – avtalevilkår
Eiendommen har en mangel dersom den ikke er i samsvar med kravene som følger av avtalen.
Eiendommen selges «som den er», og selgers ansvar utover det konkret avtalte er da begrenset etter avhendingsloven § 3-9, første ledd andre setning.
Avhendingsloven § 3-3 andre ledd fravikes, og hvorvidt boligens arealsvikt utgjør en mangel vurderes etter avhendingsloven § 3-8.
Informasjon om kjøpers undersøkelsesplikt, herunder oppfordringen om å undersøke eiendommen nøye, gjelder også for kjøpere som ikke anses som forbrukere.
Det forutsettes at hjemmel overføres til kjøper. Hvis kjøper ikke ønsker hjemmelsoverføring av eiendommen, må det tas forbehold om dette i budet.
Meglers vederlag
Meglers vederlag betales av selger og er avtalt til:
- Vederlag: 0,7% av salgssummen.
- Tilrettelegging: kr 17.000,-
- Oppgjør: kr 7.500,-
- Markedspakke: kr 25.500,-
- Oppslag eiendomsregister: kr 2.900,-
- Visninger: kr 4.000,- per visning
- Salgsoppgaver med omslag: kr 5.000,-
Megler har i tillegg krav på dekning av følgende utlegg:
- Offentlige opplysninger Trondheim kommune: kr 3.441,-
- Tinglysing sikring: kr 545,-
- Annonse BoligGuiden helside: kr 6.000,-
- Boligselgerforsikring Buysure inkl. tilstandsrapport Anticimex: kr 66.950,-
- Foto m/drone: kr 9.000,-
- Tekstforfatter: kr 5.500,-
Opplysninger om oppdraget
Oppdragsnummer 68-0215/24
Eiendomsmegler Krogsveen AS, avd. Trondheim
Fjordgata 82, 7010, TRONDHEIM
950 007 613
Oppdragets KR-kode KR68.24215
Dato
Sist oppdatert: 16. april 2026 kl. 19:48
Dokumenter
Dokumenter
PDF – 657 KB
PDF – 313 KB
PDF – 3 MB
PDF – 312 KB
PDF – 29 KB
PDF – 127 KB
PDF – 392 KB

Område
Legg til steder som er viktige for deg
Visning
Det er ingen planlagte visninger. Meld deg på for å avtale en tid som passer.
Lurer du på noe?
Unngå doble boligrenter
Vi tilbyr gunstig forsikring.
Vurderer du utleie?
Få et tilbud fra Utleie KrogsveenHva koster lånet?
Sjekk estimert lånekostnadVil du varsles om lignende boliger?
Ved å lagre ditt boligsøk hos oss får du beskjed når vi har en bolig som ligner denne, før den legges ut på markedet!


















































