Villaveien 15
3 350 000 kr
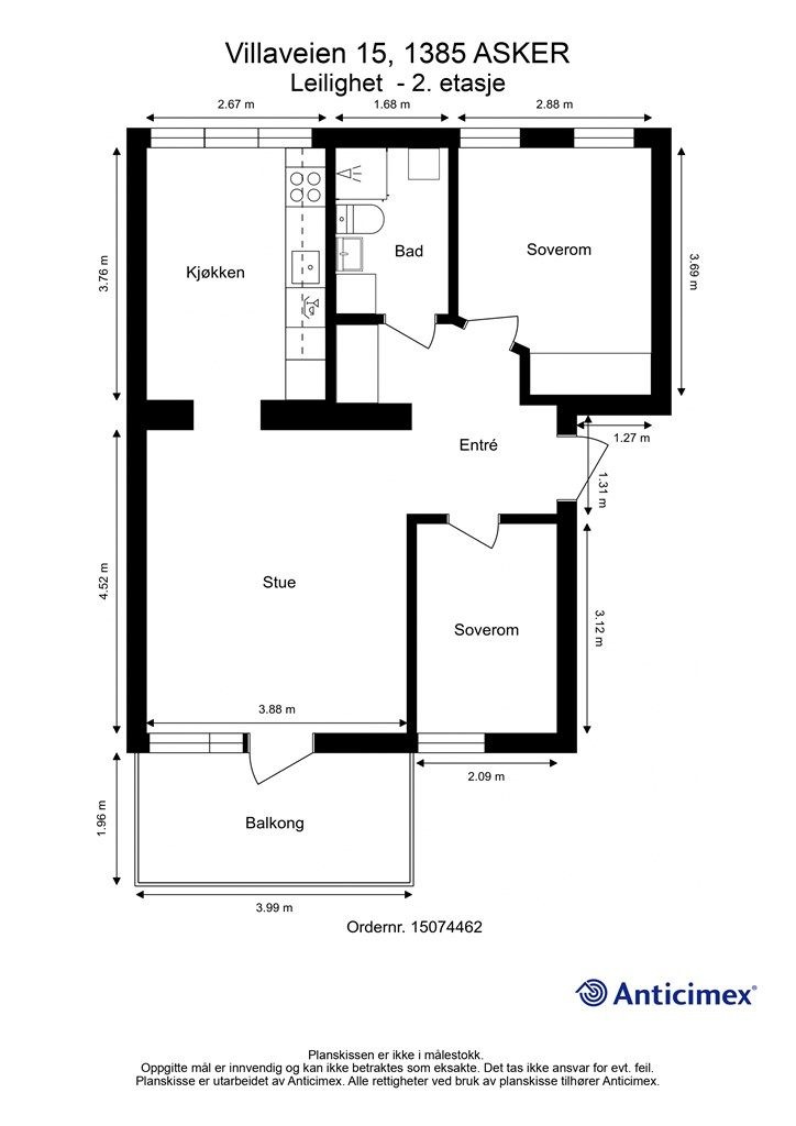
58 m²
2 soverom
Solgt

Presenteres av
Elias KarlsenDikemark
Attraktiv og gjennomgående 3-roms leilighet med nydelig balkong på ca. 8 kvm | Parkering | Kort vei til natur
Prisantydning
3 350 000 krAndel fellesgjeld
249 800 krOmkostninger
11 040 krTotalpris
3 610 840 kr
Pris
Bruksareal
65 m²BRA-I (internt bruksareal)
58 m²BRA-E (eksternt bruksareal)
7 m²TBA (terrasse-balkongareal)
8 m²
Areal
Etasje
2Byggeår
1959Soverom
2 soveromBad
1 badType
AndelsleilighetEierform
AndelFasiliteter
Balkong/TerrasseFellesutgifter
6 486 krEnergimerke
Rød G
Nøkkelinfo
Unngå doble boligrenter
Vi tilbyr gunstig forsikring.
Vurderer du utleie?
Få et tilbud fra Utleie KrogsveenHva koster lånet?
Sjekk estimert lånekostnadBeskrivelse
Kort om eiendommen
Velkommen til Villaveien 15 – en fantastisk 3-roms leilighet med gjennomgående planløsning og svært attraktiv beliggenhet på idylliske Dikemark. Leiligheten byr på åpen lys og hyggelig stue med åpen kjøkkenløsning hvor det er videre adkomst til en nydelig balkong hvor det er god plass for grill. Den er nylig oppgradert med nytt gulv og nymalte flater. Området er rolig og naturskjønt med kort vei til badevann, marka og flotte turmuligheter året rundt.
Høydepunkter:
Nytt gulv og nymalte flater
Hyggelig stue med åpen kjøkkenløsning
Nydelig balkong
Gjennomgående med mye lys-innslipp
To gode soverom
Fast parkeringsplass
Romslig bod i kjeller
Rolig, naturnær beliggenhet
Område
Legg til steder som er viktige for deg
På flyttefot? Tenk kjøp og salg samtidig.
Få din egen rådgiver gjennom hele kjøps- og salgsprosessen. Det starter med en verdivurdering.
Unngå doble boligrenter
Vi tilbyr gunstig forsikring.
Vurderer du utleie?
Få et tilbud fra Utleie KrogsveenHva koster lånet?
Sjekk estimert lånekostnadVil du varsles om lignende boliger?
Ved å lagre ditt boligsøk hos oss får du beskjed når vi har en bolig som ligner denne, før den legges ut på markedet!
På flyttefot? Slik gjør vi det enklere for deg
Skreddersydd flyttepakke
Vi fikser håndverkere, vask, pakking, lagring og transport, og legger ut for utgiftene underveis.
Hjelp med både kjøp og salg
Hos oss har du din egen rådgiver gjennom hele kjøps- og salgsprosessen.
Hjelp til finansiering
Vårt samarbeid med BN Bank sikrer deg rask og løsningsorientert hjelp, til konkurransedyktige betingelser.

