Hennisandvegen 28
4 500 000 kr
122 m²
2 soverom
Komplett salgsoppgave

Småbruksfølelse nær Årnes – attraktiv enebolig med ca. 2,5 mål tomt!
Prisantydning
4 500 000 krOmkostninger
133 490 krTotalpris
4 633 490 kr
Pris
Bruksareal
158 m²BRA-I (internt bruksareal)
122 m²BRA-E (eksternt bruksareal)
36 m²TBA (terrasse-balkongareal)
58 m²
Areal
Etasje
2Byggeår
1930Soverom
2 soveromBad
1 badTomteareal
2 534 m² (eiet)Type
Enebolig - FrittliggendeEierform
EietFasiliteter
Balkong/TerrasseEnergimerke
Gul G
Nøkkelinfo
Unngå doble boligrenter
Vi tilbyr gunstig forsikring.
Vurderer du utleie?
Få et tilbud fra Utleie KrogsveenHva koster lånet?
Sjekk estimert lånekostnadBeskrivelse
Kort om eiendommen
Eiendommen ligger idyllisk til ca. 4,5 km fra Årnes og består av en usjenert tomt på ca. 2,5 mål med gode solforhold. Boligen er betydelig modernisert i 2021, med blant annet nytt kjøkken, oppgraderte overflater, avretting av gulv, gulvvarme og nye vinduer i 1. etasje. Planløsningen er funksjonell med romslig stue/spisestue, to soverom i 2. etasje, eldre bad og gode lagringsmuligheter i boder. På eiendommen finnes også uthus med carport og et sjarmerende stabbur med flere bruksmuligheter. Stor terrasse med utgang fra stue. Fibernett etablert i 2023.
Høydepunkter:
- Ca. 2,5 mål usjenert tomt
- Modernisert 1. etasje i 2021
- To soverom i 2. etasje
- Uthus med carport og stabbur
- Stor terrasse
- Fibernett
- Spisskammers oppgradert i 2025
Innhold og byggemåte
Innhold og byggemåte
Eiendommen
Hennisandvegen 28, 2150 ÅRNES
Kommunenummer 3228, gårdsnummer 149, bruksnummer 6
Innhold
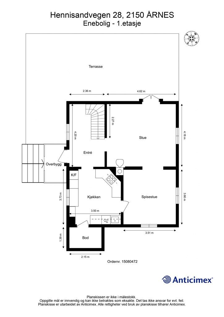
Totalt bruksareal BRA: 158 kvm
BRA-i:
Enebolig:
Kjeller: 12 kvm: Kjellerrom.
1. etasje 62 kvm: Entré, kjøkken, spisestue, stue og innvendig bod.
2. etasje 48 kvm: Trapperom/ gang, 2 soverom og bad.
BRA-e:
Stabbur:
1. etasje 13 kvm: Stabbur (kun 1. etasje er målbart)
Uthus:
1. etasje 23 kvm: Uthus (verksted, vedskjul og hønsehus)
Åpent areal:
Enebolig:
1. etasje 54 kvm: Terrasse.
2. etasje 4 kvm: Veranda.
Kommentar til areal:
- Takhøyder er på tilfeldige steder oppmålt til: Kjellerrom: 1,95 meter. 1.etasje har skråtak og himlinger fra 1,93 - 2,56 meter. 2.etasje har skråtak og himlinger fra 1,20 - 2,29 meter.
- Arealer i garderoberom samt kryploft/kott er ikke målbare grunnet takhøyder lavere enn 1,90 meter (i minimum 60 centimeters bredde) 2.etasjen har likevel en total gulvflate (GUA) på 59 m2 (inkludert garderoberom samt kryploft/kott), men grunnet skråtak/takhøyder lavere enn 1,90 meter er kun 48 m2 av arealet måleverdig som bruksareal. De delene av arealene som har lav himlingshøyde (ALH) utgjør 11 m2.
- Boligen har også frittstående uthus med intilliggende carport, bestående av verksted, vedskjul og hønsehus. I tillegg finnes frittstående stabbur. Uthus og stabbur (kun 1.etasje er målbart areal) blir benevnt som BRA - e (eksternt areal). Gulvflater på loft i stabbur utgjør likevel 18 m2. Terrasse og veranda blir benevnt som BTA (balkong og terrasseareal). Til informasjon angis arealer for eksternt areal og balkong og terrasseareal i arealoversikt, kun i hele kvadratmeter.
Vedlagte plantegninger er ikke målbare. De oppgitte arealer er hentet fra rapport med befaringsdato 25.03.2026 utført av Anticimex AS. Arealene er beregnet og rom er definert etter dagens faktiske bruk, uavhengig av hva som er godkjent av bygningsmyndighetene.
Byggemåte
Selger har innhentet en tilstandsrapport av boligen/eiendommen. Av rapporten fremgår det at flere bygningsdeler har fått tilstandsgrad ikke undersøkt/ikke tilgjengelig for undersøkelse (TG IU), 2 (TG2) og/eller 3 (TG3). Rapporten beskriver også avvik på undersøkte bygningsdeler uten tilstandsgrad. Kjøper overtar ansvaret for de opplysninger som fremkommer av salgsdokumentasjonen, og kan ikke gjøre gjeldende som mangel noe som burde vært kjent eller som ikke kan anses å ha betydning for avtalen.
Bygningen er iht. tilstandsrapporten oppført i tre. Les for øvrig mer om byggemåte og den tekniske tilstanden i rapporten.
Følgende bygningsdeler har fått TG2 (vesentlig avvik) i tilstandsrapporten:
Kjøkken - Kjøkken:
- Overflate gulv: Synlige deler av gulvets overflatemateriale rundt kjellerluke bærer preg av slitasje og enkelte skader. Det er også registrert knirk i større deler av gulvoverflater. Eksakt årsak er ukjent, men dette kan tyde på underliggende forhold som ikke lar seg fastslå ved visuell inspeksjon alene. Konsekvens/foreslått tiltak er videre overvåking, slik at utbedringer eller utskiftning kan iverksettes dersom dette blir nødvendig.
- Vannrør: Det er ikke montert automatisk lekkasjestopper. Konsekvens er risiko for følgeskader ved eventuelle lekkasjer fra vanninstallasjoner. Foreslått tiltak er etablering av automatisk lekkasjestopper.
- Ventilator: Ukjent om ventilatoren gir tilstrekkelig avtrekk. Ved funksjonstest registreres liten effekt. Konsekvens er at eventuell mangelfull ventilasjon kan medføre økt fuktbelastning og redusert luftkvalitet. Foreslått tiltak er nærmere undersøkelser, for eksempel gjennom funksjonstesting under bruk, for å avklare behovet for eventuelle tiltak.
- Ventilasjon: Ventilasjonen vurderes som utilstrekkelig. Konsekvens er at forholdet kan medføre økt fuktpåkjenning og redusert luftkvalitet. Foreslått tiltak er forbedring av eksisterende løsning og/eller ventilering ved åpning av vinduer.
Tekniske anlegg:
- Vannrør (utover det som nevnes under andre sjekkpunkter): Boligens resterende stedvis skjulte vannrør av eldre type av kobber (og tilhørende komponenter) har en alder som tilsier at fremtidig funksjon er usikker. Konsekvensen er at bygningsdelen erfaringsmessig har risiko for nedsatt funksjon, funksjonssvikt eller andre aldersrelaterte problemer. Bygningsdelen er skjult, så den faktiske tilstanden er ukjent. Foreslått tiltak er videre overvåking, slik at lokale reparasjoner eller utskiftninger kan iverksettes når dette viser seg å være nødvendig.
Andre rom:
- Overflate gulv: Det er registrert knirk i større deler av gulvoverflater. Eksakt årsak er ukjent, men dette kan tyde på underliggende forhold som ikke lar seg fastslå ved visuell inspeksjon alene. Konsekvens/foreslått tiltak er videre overvåking, slik at utbedringer eller utskiftning kan iverksettes dersom dette blir nødvendig.
- Innerdører: Innerdører bærer preg av alder/slitasje. Forholdet vurderes i hovedsak til å være av estetisk betydning, uten nevneverdige konsekvenser utover dette. Lokal utbedring eller lignende tiltak kan iverksettes ved behov.
- Ventilasjon: Ventilasjonen vurderes som utilstrekkelig. Konsekvens er at forholdet kan medføre økt fuktpåkjenning og redusert luftkvalitet. Forbedring av eksisterende løsning og/eller ventilering ved åpning av vinduer bør påregnes.
Rom under terreng:
- Helhetsvurdering: Det er valgt å vurdere boligens rom under terreng (og tilhørende bygningsdeler) med en samlet helhetsvurdering. Følgende hovedmomenter er lagt til grunn for vurderingen: Himlingsflatene/stubbeloft samt enkelte bjelker har stedvise råteskader. Hovedårsak vurderes å være høy alder og slitasje. Konsekvens er at det kan være behov for omfattende tiltak dersom elementet skal tilbakeføres til opprinnelig tilstand. Foreslått tiltak er lokale utbedringer. Veggflater bærer preg av aldersrelatert slitasje og har enkelte mindre skader. Forholdet vurderes i hovedsak til å være av estetisk betydning, uten nevneverdige konsekvenser utover dette. Synlige deler av gulvets overflatemateriale bærer preg av stedvis misfarging, trolig som følge av fuktbelastning. Forholdet vurderes i hovedsak til å være av estetisk betydning, uten nevneverdige konsekvenser utover dette. Fornying av overflater eller lokal utbedring kan iverksettes ved behov. Det registreres ingen fungerende ventilasjonsløsning. Konsekvens er at forholdet medfører økt fuktbelastning og redusert luftkvalitet. Strakstiltak bør iverksettes for å etablere en permanent ventilasjonsløsning som sikrer tilfredsstillende luftutskiftning.
Basert på bygningsdelenes samlede tilstandsbilde og hovedmomentene som nevnes over bør det påregnes tiltak som videre overvåkning, lokale utbedringer eller utskiftning hvis videre undersøkelser eller en fremtidig forverring av tilstanden viser at dette er nødvendig. Erfaring viser at igangsetting av slike arbeider i mange tilfeller avdekker ytterligere forhold som krever tiltak, noe som det bør tas høyde for.
Loft - uinnredet / kaldt loft:
- Kontroll av diffusjonssperre: Det er ikke etablert tilfredsstillende dampsperre mellom underliggende etasje og loftet (varm og kald sone). Konsekvensen er risiko for fuktskader grunnet kondensering. Kondens kan påvirke treverk, isolasjon og andre bygningsdeler, men det understrekes at de deler av konstruksjonen som er undersøkt likevel ikke viser synlige tegn til skader eller lignende symptomer på befaringsdagen. Foreslått tiltak er etablering av et komplett dampsperresjikt når dette viser seg å være nødvendig.
Etasjeskiller og gulv på grunn (skjevhetsmåling) - 2.etasje. Følgende rom er målt: Hovedsoverom og soverom. :
- Skjevhetsmåling: Det er målt skjevheter på hovedsoverom og på soverom utover 15 millimeter innenfor 2 meter. Det gis derfor TG 2. Forskjellen mellom høyeste og laveste punkt er målt til 26 mm på hovedsoverom og 22 mm på soverom. Målingene er foretatt i en eldre bygning og bør ses i den sammenheng. Skjevheter er mer påregnelige i eldre bygninger enn i nye. Eksakt årsak til skjevheter er ikke kjent. Konsekvens vurderes blant annet å være fare for knirk eller lignende problemer med gulvmaterialet, eller behov for kompenserende tiltak ved møblering av rommene. Ved legging av nytt gulv bør det påregnes behov for avretting og andre tiltak som viser seg å være nødvendig når årsaken avklares.
Yttervegger inkl. fasader:
- Lufting av ytterkledning: Det er vurdert å stedvis være begrenset spalte for lufting og drenering bak ytterkledningen. Konsekvens er at konstruksjonens evne til å tørke ut eventuell fuktighet reduseres, noe som kan øke faren for skjulte fuktskader. Det gjøres oppmerksom på at det ikke er observert synlige tegn på at forholdet har ført til skader på dette tidspunkt. Foreslått tiltak er videre overvåking, slik at lokal reparasjon eller utskiftning kan iverksettes hvis dette blir nødvendig.
Vinduer og ytterdører:
- Vinduer og omramming: Vindu i kjeller viser tegn til slitasje, elde, stedvise råteskader og andre aldersrelaterte skader. Vindu har dermed nådd en alder og tilstand der fremtidig funksjon vurderes som svært usikker. Konsekvensen er at bygningsdelen erfaringsmessig har risiko for nedsatt funksjon, funksjonssvikt eller andre aldersrelaterte problemer. Foreslått tiltak er utskiftning. Det gjøres oppmerksom på at øvrige vinduer i boligen er skiftet i nyere tid (2013), og at ovennevnte forhold derfor kun gjelder 1 vindu i kjeller.
Yttertak - Hovedtak:
- Tekking (med tilhørende beslag): Det er registrert mye mose på taket. Konsekvens er at mose holder på fuktighet, noe som blant annet øker risikoen for frostsprengning i takstein og andre forhold som kan påvirke levetiden. Foreslått tiltak er at det iverksettes forebyggende vedlikehold.
- Undertak (inkluderer sløyfer, lekter og innfestninger): Det foreligger lite informasjon om eksakt alder på undertaket. Ukjent alder tilsier også at fremtidig funksjon er usikker. Konsekvens er at usikker fremtidig funksjon i dette tilfellet betyr at bygningsdelen (inkluderer sløyfer, lekter, innfestninger og lignende) kan ha økt risiko for nedsatt funksjon, funksjonssvikt eller andre aldersrelaterte problemer. Bygningsdelen er skjult, så den faktiske tilstanden er ukjent. Foreslått tiltak er videre undersøkelser for å kartlegge dagens tilstand og avdekke om det er behov for større inngrep og utskiftninger, eller om lokale utbedringer og lignende tiltak er tilstrekkelig.
Balkonger:
- Tilstand på rekkverk og overflatematerialer: Overflatematerialer på balkongen viser tegn til slitasje. Konsekvens er svekket beskyttelse av materialene, noe som kan forkorte levetiden og øke risikoen for fuktrelaterte skader på sikt. Foreslått tiltak er at det iverksettes forebyggende vedlikehold.
- Membraner og vanntett sjikt: Tettesjikt/papp på veranda har en alder som tilsier at fremtidig funksjon er usikker. Konsekvens er at usikker fremtidig funksjon betyr at bygningsdelen erfaringsmessig har risiko for nedsatt funksjon, funksjonssvikt eller andre aldersrelaterte problemer. Foreslått tiltak er videre undersøkelser for å kartlegge dagens tilstand og avdekke om det er behov for større inngrep og utskiftninger, eller om lokale utbedringer og lignende tiltak er tilstrekkelig.
Terrasse / platting:
- Konstruksjon og fundamenter: Det observeres tegn til stedvise skjevheter på terrasse. Konsekvensen er at forholdet påvirker konstruksjonens kvalitet og kan blant annet føre til strukturelle svekkelser. Foreslått tiltak er videre undersøkelser for å kartlegge dagens tilstand og avdekke om det er behov for større inngrep og utskiftninger, eller om lokale utbedringer og lignende tiltak er tilstrekkelig.
Drenering:
- Helhetsvurdering: Det er valgt å vurdere dreneringen med en samlet helhetsvurdering. Følgende hovedmomenter er lagt til grunn for vurderingen: Drenering har en alder som tilsier at fremtidig funksjon er usikker. Konsekvens er at usikker fremtidig funksjon betyr at alle forhold som påvirker dreningen erfaringsmessig har risiko for nedsatt funksjon, funksjonssvikt eller andre aldersrelaterte problemer. Stedvis lite terrengfall vekk fra grunnmuren. Konsekvens er at forholdet kan øke fuktbelastningen på grunnmuren. Deler av grunnmuren mangler utvendig fuktsperre. Konsekvensen er at konstruksjoner uten utvendig fuktsperre som er i kontakt med bakken, har økt risiko for fuktvandring/oppfukting som igjen kan føre til fuktskader. Vann fra yttertaket er ikke ledet vekk fra bygningen/grunnmuren i tilstrekkelig grad. Konsekvens er at forholdet kan føre til økt fuktbelastning på grunnmuren.
Dreneringens funksjon påvirker boligens bruksområder og bygningstekniske tilstand. Forhold som påvirker funksjonen er i hovedsak nedgravd og skjult, noe som medfører at tilstanden ikke kan fastslås ved visuell inspeksjon. Dette gjelder blant annet forhold som fuktbeskyttelse av konstruksjoner mot terreng, grunnforhold og tilstand på rør og lignende. Forholdene påvirker særlig konstruksjoner som er i direkte eller nær kontakt med bakken. Lokale og fremtidige klimaforhold er også en påvirkningsfaktor. Basert på hovedmomentene som nevnes over er foreslått tiltak forebyggende vedlikehold og lokale utbedringer, eventuelt utskiftning hvis dette viser seg å bli nødvendig.
Følgende bygningsdeler har fått TG3 (store eller alvorlige avvik) i tilstandsrapporten:
Våtrom - Baderom:
- Helhetsvurdering: Det er valgt å vurdere våtrommet (og tilhørende bygningsdeler) med en samlet helhetsvurdering. Følgende hovedmomenter er lagt til grunn for vurderingen: Himlingsflater har betydelig slitasje og enkelte skader. Forholdet vurderes i hovedsak til å være av estetisk betydning, uten nevneverdige konsekvenser utover dette. Baderomsplatene i dusjhjørne viser tydelige tegn til slitasje, stedvis svelling og andre lignende symptomer. Konsekvens er at forholdet har medført nedsatt funksjon som medfører økt fuktrisiko i områder som utsettes for bruksvann. Gulvbelegg har stedvis synlig slitasje og er aldringspreget. Konsekvens er at forholdet kan medføre økt fuktrisiko i områder som utsettes for bruks og lekkasjevann. Det er også registrert knirk som vurderes å komme fra undergulvet. Forholdet tyder på underliggende årsaker som ikke lar seg fastslå ved visuell inspeksjon alene. Knirk kan være et tegn på bevegelser i gulvkonstruksjonen, noe som kan skyldes feil som ikke er kartlagt. Fallforhold er mindre enn anbefalt. Konsekvens er at fallforholdet vurderes å ikke gi tilfredsstillende bortledning av bruksvann ved normal bruk. Foreslått tiltak er lokale tilpasninger eller utbedring dersom fremtidig bruk viser at det er nødvendig. Alder på våtrommet/sluk samt tettesjikt tilsier aktsomhet med henhold til at tetthet ikke kan garanteres med hensyn til fuktgjennomgang i våtrommets membransjikt (overgang fungerende membran og klemring). Konsekvensen er at bygningsdelen erfaringsmessig har risiko for nedsatt funksjon, utettheter eller andre aldersrelaterte problemer. Foreslått tiltak er videre overvåking, slik at utbedring eller utskiftning kan iverksettes hvis dette blir nødvendig. Våtrommet har kun naturlig ventilasjon. Konsekvens er at dette erfaringsmessig gir lavere luftutskifting enn mekanisk ventilasjon. Tilstandsgrad er satt i henhold til NS3600. Foreslått tiltak er forbedring av ventilasjonen eller kompenserende tiltak hvis bruk av våtrommet viser at dette er nødvendig.
Basert på våtrommets samlede tilstandsbilde og hovedmomentene nevnt ovenfor, må det påregnes fornyelse innen kort tid. Fornyelse kan utsettes noe dersom det iverksettes kompenserende tiltak, eller hvis videre bruk viser at våtrommet fortsetter å fungere lenger enn forventet, men dette vil medføre økt risiko for skjulte skader. Fornyelse av våtrom innebærer som oftest totalrenovering, og erfaring viser at oppstart av utbedrings og fornyelsesarbeider ofte avdekker ytterligere forhold som krever tiltak, noe det må tas høyde for. Følgende sjablongmessige prisanslag gjelder for renovering av våtrommet.
Ildsteder og skorsteiner inne i boligen:
- Skorsteiner inne i boligen: Skorstein har stedvis ikke fire frie sider (i 1.etasje). Det skal være mulig å påse at skorsteinens ytterflater er uten sprekkdannelser slik at forhold som kan påvirke brannsikkerheten kan oppdages tidlig. Det er kun en person med spesialkompetanse som kan vurdere eksakt hvilke tiltak som er nødvendig. Konsekvens/foreslått strakstiltak er at det gjennomføres ytterligere undersøkelser av en fagkyndig med spesialkompetanse for å kartlegge hvilke tiltak som er nødvendige.
- Ildsteder: Ildsted på hovedsoverom har ingen underliggende ubrennbar plate. Konsekvensen er at glør og gnister kan treffe brennbart materiale/gulvet når ildstedet brukes, noe som medfører risiko for brannsikkerheten. Foreslått strakstiltak og underliggende sjablongmessige prisanslag gjelder for etablering av ubrennbar plate på gulv.
Andre byggverk:
- Helhetsvurdering: Det er valgt å vurdere bygningen med en samlet helhetsvurdering. Følgende hovedmomenter er lagt til grunn for vurderingen: Fasadematerialer viser tydelige tegn til elde, og det er registrert enkelte tegn til råteskader. Konsekvens er at materialet et utsatt for en pågående nedbrytning. Foreslått strakstiltak er at det gjennomføres ytterligere undersøkelser for å kartlegge omfang, eventuelle følgeskader og eksakt hvilke tiltak som er nødvendig. Yttertaket (med tilhørende bygningsdeler) viser begynnende tegn til slitasje og elde. Det er derimot ikke registrert synlige skader av vesentlig betydning, men taktekkingen har nådd en alder og tilstand der fremtidig funksjon vurderes som usikker. Konsekvens er at usikker fremtidig funksjon betyr at bygningsdelen erfaringsmessig har risiko for nedsatt funksjon, funksjonssvikt eller andre aldersrelaterte problemer. Pilarer viser tegn til skjevheter, noe som kan tyde på underliggende feil som ikke lar seg observere. Eksakt årsak er ikke kjent. Konsekvens kan være ytterligere forverring av forholdet, hvis ikke utviklingen stoppes. Vinduer og ytterdører viser tegn til slitasje, elde og stedvise aldersrelaterte skader. Vinduene har dermed nådd en alder og tilstand der fremtidig funksjon vurderes som usikker. Konsekvensen er at bygningsdelen erfaringsmessig har risiko for nedsatt funksjon, funksjonssvikt eller andre aldersrelaterte problemer. Det foreligger lite informasjon om bygningsdelene. De deler av utførelsen som lar seg undersøke, bærer stedvis ikke preg av faglig god utførelse. Konsekvensen er at dette erfaringsmessig medfører risiko for andre skjulte feil og mangler, som ikke lar seg registrere ved visuell inspeksjon.
Basert på byggverkets samlede tilstandsbilde og hovedmomentene som nevnes over bør det påregnes tiltak som forebyggende vedlikehold, lokale utbedringer eller utskiftning hvis videre undersøkelser eller en fremtidig forverring av tilstanden viser at dette er nødvendig. Erfaring viser at igangsetting av slike arbeider i mange tilfeller avdekker ytterligere forhold som krever tiltak, noe som det bør tas høyde for.
Se supplerende tekst i tilstandsrapporten. Kjøper overtar ansvar og risiko for dette.
Selger informerer videre iht. egenerklæringsskjema:
- Skiftet hele det elektriske anlegget (eks bad) i huset. Utført i 2021 av Årnes elektro AS.
- Eiendommen er tilknyttet pumpekum.
- Lagt varmekabler i gangen. Utført i 2021 av Årnes elektro AS.
- Varmefolie i gulv på kjøkkenet. Utført i 2021 av Årnes elektro AS.
- Har hatt mus på loft.
Moderniseringer og påkostninger
Ifølge tidligere eier er følgende arbeider utført i perioden 2020–2023:
- Etterisolert gulv i hele 1. etasje (ca. 30 cm) i 2021
- Nytt bjelkelag i gulv i hele 1. etasje i 2021
- Oppretting av gulv i hele 1. etasje i 2021
- Nytt laminatgulv i stue, spisestue og kjøkken i 2021
- Nye veggplater i stue og spisestue i 2021
- Nye fliser i gang med varmekabler i 2021 (varmekabler lagt av Årnes Elektro AS)
- Varmefolie i kjøkken i 2021 (lagt av Årnes Elektro AS)
- Nytt kjøkken installert i 2021, med nye fliser
- Ny gårdsplass med drenering og duk i 2021 (utført av Brødrene Søgård AS)
- Tilkobling til kommunalt avløp i 2021 (utført av Brødrene Søgård AS)
- Elektrisk anlegg i boligen (eks. bad) oppgradert i 2020/2021 av Årnes Elektro AS
- Nytt gulv i gang i 2. etasje i 2021
- Alle veggflater malt i 2021
- Fibernett installert i 2023 av HomeNet
I eiers tid er det utført følgende:
- Oppgradering og etterisolering av spisskammers i 2025.
Standard
For den utfyllende tekniske standard for øvrig, henvises det til vedlagte tilstandsrapport.
Løsøre og tilbehør
Vi viser til liste fra Norges Eiendomsmeglerforbund som gjelder fra 01.01.2020 angående løsøre og tilbehør.
Det er kun de hvitevarene som er listet opp som følger med. Disse hvitevarene følger med:
- Mikrobølgeovn
- Stekeovn
- Platetopp
- Kjøleskap
- Oppvaskmaskin
Det gjøres oppmerksom på at hvitevarene er kjøpt og brukt, kjøper må forvente slitasje som følge alder og normal bruk.
Det gjøres særskilt oppmerksom på at lysekrone i spisestue, to små svarte skap på kjøkken og gang, verktøybenk, hattehylle og trådkurver i kneloft ikke medfølger handelen.
Oppvarming
Eiendommen oppvarmes av elektrisitet og vedfyring. Det er varmekabler i gulv i følgende rom: gang og kjøkken.
Selger har avtalt Norgespris på strøm på eiendommen frem til februar 2027, og denne er pt på 50 øre inkl mva. Nettleie, avgifter og påslag fra kraftleverandøren kommer i tillegg.
Denne avtalen vil følge eiendommen i den avtalte perioden.
Les mer om Norgespris her: https://www.regjeringen.no/no/aktuelt/legg-fram-lov-om-norgespris-pa-straum-og-fjernvarme/id3102642/
Dersom beboelsesrom ikke har vegg- eller fastmonterte varmekilder ved visning, følger dette heller ikke med.
Ferdigattest/brukstillatelse
Kommunen opplyser at det ikke foreligger ferdigattest eller midlertidig brukstillatelse for noe av bebyggelsen på endommen.
Nes kommune opplyser følgende:
Det foreligger ingen dokumentasjon hos kommunen som fastslår når boligen ble oppført. Boligen har status "Tatt i bruk" hos kommunen, datert 01.01.1930. I matrikkelbrevet er det imidlertid oppført etableringsdato 1884.
Det foreligger heller ikke dokumentasjon på stabburet eller boden/carporten. Begge disse bygningene har status "Tatt i bruk", datert 03.03.2006.
Byggeåret anses derfor som usikkert, ettersom det ikke foreligger dokumentasjon hos kommunen. I Eiendomsverdi er byggeåret registrert til 1930.
Det foreligger ikke byggetegninger for bebyggelsen på tomten og megler kan derfor ikke kontrollere om den er bruksendret eller om det er utført endringer etter opprinnelig bebyggelse. Det kan derfor ikke dokumenteres om hva som er godkjent hos kommunen.
Det gjøres oppmerksom at det ikke lenger utstedes ferdigattest på tiltak det er søkt om før 1998 jf. plan- og bygningsloven § 21-10. Kommunen vil ikke kreve ferdigattest for disse tiltakene og vil avvise eventuelle søknader. Bestemmelsen innebærer ikke at tiltak med manglende søknad blir lovlige, men at man ikke trenger å avslutte gamle byggesaker. Normalt sett kreves ferdigattest for alle søknadspliktige tiltak som gjøres etter plan- og bygningsloven.
Kjøper overtar eiendommen slik den fremstår på visning med risiko og ansvaret for eventuelle pålegg fra kommunen og kostnader forbundet med dette.
Tinglyste heftelser og rettigheter
Eiendommen overdras fri for pengeheftelser.
Det er ingen tinglyste servitutter på eiendommen utover omnummerering og registrering av grunn.
Eventuell adgang til utleie
Eiendommen har ikke separat utleieenhet. Det vil normalt være anledning til utleie av hele eiendommen eller enkeltrom, såfremt utleiearealet er bygningsmessig godkjent for varig opphold og har forsvarlige radonnivåer.
Beliggenhet og tomteforhold
Beliggenhet og tomteforhold
Beliggenhet
Hennisandvegen ligger ca. 4,5 km fra Årnes sentrum, i et landlig og barnevennlig boligområde. Årnes tilbyr et godt utvalg av skoler, barnehager, idrettsanlegg, svømmehall, butikker, serveringstilbud og god offentlig kommunikasjon med både buss og tog fra Årnes stasjon, som betjener Kongsvingerbanen. Herfra er det gode forbindelser mot Oslo og Gardermoen.
Området har kort vei til lekeplasser, fotballbane, lysløype og badeplasser, samt flotte tur- og rekreasjonsområder i nærområdet og langs Glomma. Det er også kort avstand til Veslesjøen, Sagstusjøen, Aulihøgda og Dragsjøområdet. Dagligvarehandelen kan gjøres ved blant annet Kiwi og Rema 1000, og Amfi Årnes tilbyr ytterligere servicetilbud.
Kjøretid er ca. 19 min til Jessheim, 27 min til Oslo Lufthavn, 30 min til Lillestrøm og 39 min til Oslo S.
Adkomst
Det vil bli skiltet med Krogsveen visningsskilt ved fellesvisninger.
Barnehager, skoler og fritid
Barnehager:
Runni idrettsbarnehage (0-5 år) 3.2 km
Årnes barnehage (1-5 år) 3.7 km
Espira Kløverenga barnehage (0-5 år) 4.9 km
Skoler:
Årnes skole (1-7 kl.) 3.6 km
Østgård skole (1-7 kl.) 5.9 km
Runni ungdomsskole (8-10 kl.) 2.9 km
Nes videregående skole 3.9 km
Hvam videregående skole 10.6 km
Informasjon om tilhørende skolekretser er hentet fra Prognosesenteret som dataleverandør, og tilhørigheten kan årlig endres av kommunen. Dersom skole- og barnehagetilbud er av betydning for kjøpet, ber vi om at det rettes en særskilt henvendelse til kommunen/bydelsadministrasjonen for oppdatert informasjon.
Beskrivelse av tomt
Eiet tomt på ca. 2 533 kvm. Tomten er flat og pent opparbeidet med variert beplantning. Eiendommen fremstår som svært barnevennlig og funksjonell, og egner seg godt for både store og små, samt husdyr.
Tomten er i dag inngjerdet med port ved innkjørsel, og det er opparbeidet og gruset gode parkeringsmuligheter.
I henhold til kart går tomtegrensen stedvis nær husvegg mot vei. Hekk, trær og gjerde mot vei ligger utenfor registrert tomtegrense, og innkjørsel med port fremstår også delvis utenfor tomtegrense slik den er vist i kart. Kjøper overtar ansvar og risiko for eventuelle avvik.
Tomten er ikke oppmålt i nyere tid, og grensene er derfor usikre. Se grunnkart for nærmere angivelse av tomtegrenser. Kjøper overtar risiko for eventuelle avvik.
Parkering
Gode parkeringsmuligheter på egen gårdsplass og i enkel carport. Det er også lagt rør for enkel montering av kabel til fremtidig installasjon av elbillader i carporten.
Vei, vann og avløp
Eiendommen har adkomst via kommunal vei.
Eiendommen er tilknyttet kommunalt ledningsnett via private stikkledninger. Eier er selv ansvarlig for private stikkledninger til boligen.
Eiendommen ble nylig koblet til kommunalt ledningsnett. Egen pumpe etablert på eiendommen. Denne er eier selv ansvarlig for.
Eiendommen er tilkoblet privat vannverk. Årnes vannverk.
Regulerings-og arealplaner
Eiendommen ligger i et uregulert område, men er i kommuneplan datert 03.19.2019 er avsatt til: Landbruksformål (LNF)
Kommuneplanen viser at et stykke fra eiendommen er det avsatt et område som er merket med faresone for høyspentanlegg, ras og skredfare. Eiendommen ligger ikke i dette avmerkede området i følge kartene.
Det er under vurdering å etablere en ny E16 fra Kongsvinger til E6. Strekningen er om lag 60 kilometer. Arbeidet med kommunedelplan startet i 2020. De fire berørte kommunene er Kongsvinger, Nes, Ullensaker og Sør-Odal. Det er gjennomført et omfattende utredningsarbeid og er utarbeidet forslag til kommunedelplan. Det foreligger ikke vedtatt kommunedelplan i dette prosjektet enda men det er flere forslag som vurderes. Kontakt megler for flere opplysninger.
Utsnitt av plan med tilhørende bestemmelser kan fås ved henvendelse til megler.
Økonomi
Økonomi
Kommunale utgifter
Kommunale avgifter er stipulert til kr 17 121,52,- for inneværende år. I dette inngår gebyr for avløp, renovasjon, eiendomsskatt og feiing/tilsyn. Det tas forbehold om at kommunen kan justere gebyrene i løpet av året.
Eiendommen er tilknyttet Årnes Vannverk. Vannverket fakturerer etter antall personer i husstanden.
Gebyr pr. person: kr. 1077,- pr. år.
Grunngebyr for alle abonnenter: kr. 2656,- pr. år.
Gebyr pr. m³ renset vann etter måler: kr. 29,70,- pr. m³.
Minstegebyr pr. boenhet: kr. 4812,- pr. år.
Nåværende eier har et strømforbruk som tilsvarer ca. kr 15 000,- pr. år. / 15 000 kwh. pr. år. Det er tegner Norgespris for strøm med oppsigelse februar 2027.
Boligen har en årlig forsikringspremie på kr 14 415.
Boligen er tilknyttet Fiber. Det er parabolantenne på eiendommen som ikke har blitt benyttet av nåværende eier. Tv-tuner/dekoder medfølger.
Utgiftene er basert på nåværende eiers forbruk og avtaler.
Formuesverdi
Formuesverdi for 2024 var kr 685 624,- ifølge Skatteetaten. Beløpet forutsetter at eier bor fast i boligen (primærbolig).
Ved eventuell øvrig bruk av eiendommen (f.eks. fritidsbolig, pendlerbolig, utleieobjekt) var formuesverdien for 2024 kr 2 742 494,-
Fra 2026 har Stortinget vedtatt en oppdatert modell for beregning av formuesverdi for primærbolig, så avvik kan forekomme.
For mer informasjon se skatteetaten.no
Omkostninger
4 500 000,00 Prisantydning
Omkostninger
112 500,00 Dokumentavgift til staten (2,5% av kjøpesum)
19 900,00 Gjensidige Boligkjøperpakke* (valgfritt)
545,00 Tinglysing panterettsdokument
545,00 Tinglysing skjøte
--------------------------------------------------------
113 590,00 (Omkostninger totalt (uten Gjensidige Boligkjøperpakke))
133 490,00 Omkostninger totalt (med Gjensidige Boligkjøperpakke))
--------------------------------------------------------
4 613 590,00 Totalpris inkl. omkostninger
4 633 490,00 Totalpris inkl. omkostninger (med Gjensidige Boligkjøperpakke)
--------------------------------------------------------
Tilbud om lånefinansiering
Megler formidler gjerne kontakt med rådgiver hos vår samarbeidspartner BN Bank. De har konkurransedyktige betingelser samt rask og løsningsorientert behandling av din lånesøknad. Krogsveen mottar et honorar dersom lån opprettes.
Betalingsbetingelser
Kjøpesum inkludert omkostninger, samt pantedokument tilknyttet eventuelt lån, skal være disponibelt hos megler 2 virkedager før overtagelsen.
Annen viktig informasjon
Annen viktig informasjon
Eier
Rikke Bekkelund Asprusten og Emil Tollaksen
Konsesjon
Da eiendommen er over 2 mål er den i utgangspunktet underlagt konsesjonslovgivning, og kjøper må ved kontrakt undertegne egenerklæring om konsesjonsfrihet. Denne erklæringen må godkjennes fra kommunen før eiendommen kan overskjøtes til kjøper.
Overtakelse
Etter nærmere avtale.
Boligselgerforsikring
Selger har i forbindelse med salget tegnet boligselgerforsikring levert av Gjensidige.
Boligselgerforsikringen dekker selgers ansvar etter avhendingsloven begrenset oppad til kr 14 millioner. Dersom kjøper oppdager forhold ved eiendommen som hen mener utgjør en mangel ved eiendommen, vil Gjensidige behandle reklamasjonen på vegne av selger. Forsikringsvilkår kan fås ved henvendelse til megler.
Vedlagt salgsoppgaven følger selgers egenerklæringsskjema og tilstandsrapport. Interessenter må sette seg inn i dokumentene før bud inngis.
Boligkjøperforsikring
Innen kontraktsmøtet må kjøper ta stilling til om det ønskes å bestille Boligkjøperpakken gjennom Gjensidige. I denne gunstige pakken er boligen ferdig forsikret og inkluderer rettshjelpsforsikring, også kalt Boligkjøperforsikring. Rettshjelpsforsikring gir trygghet og tilgang på profesjonell juridisk hjelp dersom det oppdages uventede feil eller mangler det første året etter overtagelse. Forsikringsselskapet behandler i så fall ethvert mangelskrav kjøper måtte ha overfor selger.
Boligkjøperpakken inkluderer bygningsforsikring for hus og hytte, innboforsikring, flytteforsikring og dobbel rentedekning - i situasjoner hvor kjøper ikke får solgt nåværende primærbolig.
Kjøper mottar ingen særskilt faktura for Boligkjøperpakken da kostnaden det første året legges til kjøpesummen for boligen. Det gjøres oppmerksom på Krogsveen mottar et honorar for denne formidlingen.
Produktark for Boligkjøperpakken ligger vedlagt i salgsoppgaven.
Dersom ikke boligkjøperpakke ønskes kan kun rettshjelpsforsikring, også kalt boligkjøperforsikring, tegnes særskilt via megler. Rettshjelpsforsikringen varer i 5 år fra overtagelse og leveres gjennom Gjensidige. Ta kontakt med megler for ytterligere informasjon.
Selskap og privatpersoner som driver med kjøp/salg/utvikling som ledd i egen næringsvirksomhet kan ikke tegne boligkjøperpakke eller rettshjelpsforsikring.
Budgivning
Forbrukerinformasjon om budgivning er vedlagt denne salgsoppgaven og er også på vår hjemmeside Krogsveen.no. Alle bud og budforhøyelser må inngis skriftlig. I tillegg må legitimasjon være fremlagt sammen med signatur fra budgiver.
Vi oppfordrer til å gi bud elektronisk via GI BUD-knappen på eiendommens hjemmeside på Krogsveen.no. Da vil samtlige vilkår bli oppfylt.
Eventuelle forhøyelser eller endringer av budet kan bekreftes pr SMS eller på e-post. Vi oppfordrer alltid til å kontakte megler pr. telefon i tillegg da forsinkelser i SMS og e-post kan forekomme.
For at budene skal kunne bli behandlet og videreformidlet skriftlig til alle involverte parter, må alle bud ha en tilstrekkelig lang akseptfrist, jf. eiendomsmeglingsforskriften § 6-3.
Selger må også skriftlig akseptere budet før aksept kan formidles til budgiver. Akseptfrist bør derfor være på minimum 30 minutter, og budforhøyelser må derfor skje i god tid før fristens utløp.
Bud i forbrukerforhold kan uansett ikke settes med kortere frist enn kl. 12.00 første virkedag etter siste annonserte visning. I tillegg kan ikke budet ha forbehold om at det skal holdes hemmelig ovenfor øvrige interessenter. Megler har iht lov om eiendomsmegling ikke anledning til å videreformidle disse budene, og de vil dermed heller ikke bli journalført.
Etter at eiendommen er solgt vil kjøper og selger få tilsendt budjournal. Øvrige budgivere kan få utlevert kopi av budjournalen i anonymisert form.
Hvitvaskingsreglene
I henhold til lov om hvitvasking og terrorfinansiering har megler plikt til å gjennomføre kontrolltiltak overfor kunder, herunder fullmektiger. Dette innebærer bl.a. å bekrefte kunders og reelle rettighetshaveres identitet på bakgrunn av fremvist gyldig legitimasjon eller på annen godkjent måte, samt å innhente opplysninger om kundeforholdets formål og tilsiktede art.
Dersom slike kundetiltak ikke kan gjennomføres, kan megler ikke etablere kundeforholdet eller utføre transaksjonen.
Hvis kjøper ikke bidrar til gjennomføring av kundekontrollen og dette fører til at transaksjonen blir forsinket eller ikke kan gjennomføres, vil dette ansees som mislighold av avtalen og gi selger rettigheter etter avhendingslova kapittel 5. I tilfeller der selger ikke bidrar til gjennomføring av løpende kundekontroll underveis i oppdraget, er det selger som misligholder sine forpliktelser etter avtalen og gi kjøper rettigheter etter avhendingslovens kapittel 4. Partene er selv ansvarlige for eventuelle kostnader og ansvar dette kan medføre. Eiendomsmegleren eller eiendomsmeglingsforetaket kan ikke holdes ansvarlig for de konsekvenser dette vil kunne få for partene eller andre som har interesser i eiendomshandelen.
Kjøper oppfordres til å innbetale kjøpesummen som ikke kommer fra låneinstitusjon i én samlet innbetaling fra egen konto i norsk bank. Megler har plikt til å melde fra til Økokrim om eiendomshandler som fremstår som mistenkelige. Melding sendes Økokrim uten at partene varsles.
Personopplysningsloven
I henhold til personopplysningsloven gjør vi oppmerksom på at interessenter kan bli registrert for videre oppfølging.
Lovanvendelse
Generelle bestemmelser
Salgsoppgaven er basert på de opplysningene selger har gitt til megler, den bygningssakyndiges tilstandsrapport, samt opplysninger innhentet fra kommunen, Kartverket og andre tilgjengelige kilder. Det er viktig at kjøper setter seg grundig inn i alle salgsdokumentene, herunder salgsoppgave, tilstandsrapport og selgers egenerklæring. Kjøper anses kjent med forhold som er tydelig beskrevet i salgsdokumentene, og slike forhold kan ikke påberopes som mangler. Dette gjelder uavhengig av om kjøper har lest dokumentene. Alle interessenter oppfordres til å undersøke eiendommen nøye, gjerne sammen med fagkyndig før bud inngis. Kjøper som velger å kjøpe usett kan ikke gjøre gjeldende som mangel noe han burde blitt kjent med ved undersøkelsen.
Dersom det er behov for avklaringer, anbefaler vi at interessenter rådfører seg med eiendomsmegler eller egne rådgivere før det legges inn bud.
En bolig som har blitt brukt i en viss tid, har vanligvis blitt utsatt for slitasje og skader kan ha oppstått. Slik bruksslitasje må kjøper regne med, og det kan avdekkes enkelte forhold etter overtakelse som nødvendiggjør utbedringer. Normal slitasje og skader som nødvendiggjør utbedring, er innenfor hva kjøper må forvente og vil ikke utgjøre en mangel.
Kjøper og selgers rettigheter og plikter reguleres av avtalen mellom partene, samt informasjonen som har vært tilgjengelig for kjøperen i forbindelse med handelen. Avtalen utfylles av avhendingsloven, og det gjelder ulike avtalevilkår avhengig av om kjøper er forbrukerkjøper eller ikke. Dette er nærmere beskrevet nedenfor.
På grunn av ulike avtalevilkår kan selger vurdere bud fra en som ikke er forbruker, ulikt fra en forbrukers bud. Dersom kjøper ikke er forbruker, er selger sitt mulige mangelsansvar begrenset fordi eiendommen selges "som den er". Selger kan ikke ta «som den er»- forbehold overfor en forbrukerkjøper. Selv et lavere bud fra en som ikke er forbruker kan foretrekkes fordi begrensningen i mulig mangelsansvar kan ha egenverdi for selger. Selger står fritt til å forkaste eller akseptere ethvert bud, og er for eksempel ikke forpliktet til å akseptere høyeste bud.
Budgiver skal i budskjema avgi egenerklæring om budgiver er forbruker eller næringsdrivende/ person som hovedsakelig handler som ledd i næringsvirksomhet. Budgivere får informasjon dersom andre bud er inngitt av en som ikke er forbruker.
Forbrukerkjøp - definisjon
Med forbrukerkjøp menes kjøp av eiendom når kjøperen er en fysisk person som ikke hovedsakelig handler som ledd i næringsvirksomhet.
Forbruker – avtalevilkår
Eiendommen har en mangel dersom den ikke er i samsvar med kravene som følger av avtalen, eller det foreligger brudd på bestemmelsene i avhendingsloven §§ 3-2 til 3-8. Hvis eiendommen ikke er i samsvar med det kjøperen må kunne forvente ut ifra alder, type og synlig tilstand, kan det være grunnlag for mangelskrav. Det samme gjelder hvis det er holdt tilbake eller gitt uriktige opplysninger om eiendommen. Dette gjelder likevel bare dersom man kan gå ut ifra at det virket inn på avtalen at opplysningen ikke ble gitt eller at mangelskravet ikke blir rettet i tide på en tydelig måte.
Boligen kan ha en mangel etter avhendingsloven § 3-3 andre ledd, dersom det er avvik mellom opplyst og faktisk innvendig areal, forutsatt at avviket er på 2% eller mer og minimum 1 kvm.
Ved beregning av et eventuelt prisavslag eller erstatning må kjøper selv dekke tap/kostnader opptil et beløp på kr 10 000 (egenandel).
Ikke-forbruker (næringsdrivende) – definisjon
Hvis kjøper er en juridisk person, eller en fysisk person som hovedsakelig handler som ledd i næringsvirksomhet, vil kjøpet ikke anses som et forbrukerkjøp.
Ikke-forbruker – avtalevilkår
Eiendommen har en mangel dersom den ikke er i samsvar med kravene som følger av avtalen.
Eiendommen selges «som den er», og selgers ansvar utover det konkret avtalte er da begrenset etter avhendingsloven § 3-9, første ledd andre setning.
Avhendingsloven § 3-3 andre ledd fravikes, og hvorvidt boligens arealsvikt utgjør en mangel vurderes etter avhendingsloven § 3-8.
Informasjon om kjøpers undersøkelsesplikt, herunder oppfordringen om å undersøke eiendommen nøye, gjelder også for kjøpere som ikke anses som forbrukere.
Det forutsettes at hjemmel overføres til kjøper. Hvis kjøper ikke ønsker hjemmelsoverføring av eiendommen, må det tas forbehold om dette i budet.
Meglers vederlag
Meglers vederlag betales av selger og er avtalt til:
Vederlag: 1,00 % av salgssummen inkl. eventuell fellesgjeld. Minimumsprovisjon er kr 40 000,00
Vederlag:
Kontroll av hjemmel og heftelser kr 3 500,00
Markedsføringspakke Finn.no, hjem.no, Krogsveen.no og smartannonsering (Sosiale medier): kr 26 900,00
Oppgjør kr 8 900,00
Tilrettelegging kr 19 900,00
Visninger pr stk / Overtagelse kr 3 500,00
Utlegg:
Innhenting av offentlig opplysninger kr 4 094,00
Tinglysing sikring kr 545,00
Andre utgifter:
AX tilstandsrapport enebolig kr 20 625,00
Boligselgerforsikring Gjensidige - 5,71 promille av prisantydning kr 0,00
Foto, drone og inne/ ute kr 4 500,00
Vi er opptatt av verdiskapning, og har knyttet til oss samarbeidspartnere som skal sikre våre kunder de beste produkter og tjenester;
• I forbindelse med forberedelse av salget, innhenter vi informasjon om eiendommen hovedsakelig fra vår samarbeidspartner Ambita.
• Gjensidige leverer boligselgerforsikring og tilbyr bygningsforsikring
• Boligkjøperforsikring leveres av Hiscox og med Sedgwick som skadebehandler, og er formidlet gjennom Gjensidige.
• BN bank tilbyr finansieringsløsninger
• Vår avdeling Krogsveen Pluss tilbyr flyttetjenester som utvask, visningsvask, lager, tømming og transport av flyttelass, i tillegg til å formidle kontakt med Flip for overflateoppussing.
• I forbindelse med overtagelse av eiendommen tilbyr Overo avtale om strøm, alarm og bredbånd.
• Krogsveen er, sammen med øvrige bransjeaktører, medeier i Bomega AS som tilbyr den digitale annonseringsplattformen Hjem.
Opplysninger om oppdraget
Oppdragsnummer 24-0030/26
Eiendomsmegler Krogsveen AS, avd. Årnes
Rådhusgata 26, 2150, ÅRNES
950 007 613
Oppdragets KR-kode KR24.2630
Dato
Sist oppdatert: 29. april 2026 kl. 09:48
Dokumenter
Dokumenter
PDF – 242 KB
PDF – 964 KB
PDF – 312 KB
PDF – 29 KB
PDF – 127 KB
PDF – 392 KB
Område
Legg til steder som er viktige for deg
Visning
For å delta på visning, ber vi om at du melder deg på. Da sikrer vi at du får nødvendig informasjon og at det er satt av tilstrekkelig med tid. Kontakt megler dersom annet tidspunkt ønskes. Husk å lese salgsoppgaven før visningen, så du stiller forberedt.
Ønsker du kun å bli holdt orientert, kan du fra eiendommens hjemmeside få varsel om solgtpris, eller kontakte megler.
Lurer du på noe?
Unngå doble boligrenter
Vi tilbyr gunstig forsikring.
Vurderer du utleie?
Få et tilbud fra Utleie KrogsveenHva koster lånet?
Sjekk estimert lånekostnadVil du varsles om lignende boliger?
Ved å lagre ditt boligsøk hos oss får du beskjed når vi har en bolig som ligner denne, før den legges ut på markedet!
































