Midtre Flatåsveg 2
6 100 000 kr
91 m²
2 soverom
Solgt

Flatåsen
Moderne 3(4)-roms fra 2016 i attraktivt og rolig boligområde | To solrike terrasser | P-plass i kjeller | Romslig bod
Prisantydning
6 100 000 krOmkostninger
163 540 krTotalpris
6 263 540 kr
Pris
Bruksareal
96 m²BRA-I (internt bruksareal)
91 m²BRA-E (eksternt bruksareal)
5 m²TBA (terrasse-balkongareal)
44 m²
Areal
Etasje
1Byggeår
2016Soverom
2 soveromBad
1 badType
EierleilighetEierform
EierseksjonFasiliteter
Garasje/P-plass, Heis og Balkong/TerrasseFellesutgifter
3 964 krEnergimerke
Lysegrønn C
Nøkkelinfo
Unngå doble boligrenter
Vi tilbyr gunstig forsikring.
Vurderer du utleie?
Få et tilbud fra Utleie KrogsveenHva koster lånet?
Sjekk estimert lånekostnadBeskrivelse
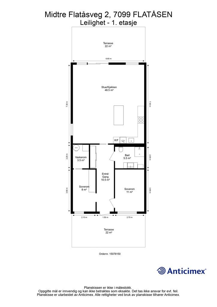
Kort om eiendommen
Tidsriktig 3-romsleilighet fra 2016 med god planløsning og romslige oppholdsrom. Leiligheten har adkomst via felles trappeoppgang med heis direkte ned til felles parkeringskjeller hvor man finner parkeringsplass og bod på 5 kvm.
Leiligheten har en lys og luftig stue- og kjøkkenløsning med gode møbleringsmuligheter. Fra stuen er det utgang til en stor og solrik terrasse på ca. 22 kvm med gode solforhold og rikelig med plass til utemøblering. Leiligheten har videre et pent flislagt bad med gulvvarme og praktisk bod innredet som vaskerom. To store soverom og mulighet for å etablere et ekstra i stuen.
Boligen er beliggende i et attraktivt boligområde på Flatåsen med umiddelbar nærhet til blant annet flotte turmuligheter, dagligvarebutikker, skoler, barnehager og gode kollektivforbindelser.
Område
Legg til steder som er viktige for deg
På flyttefot? Tenk kjøp og salg samtidig.
Få din egen rådgiver gjennom hele kjøps- og salgsprosessen. Det starter med en verdivurdering.
Unngå doble boligrenter
Vi tilbyr gunstig forsikring.
Vurderer du utleie?
Få et tilbud fra Utleie KrogsveenHva koster lånet?
Sjekk estimert lånekostnadVil du varsles om lignende boliger?
Ved å lagre ditt boligsøk hos oss får du beskjed når vi har en bolig som ligner denne, før den legges ut på markedet!




























