Stordamringen 10A
11 900 000 kr
261 m²
4 soverom
Solgt

Borgen
Lekker familiebolig fra 2023 med høy standard. Hybel. Garasje. Solrike takterrasser. Fantastisk utsikt. Solcellepanel.
Prisantydning
11 900 000 krOmkostninger
318 490 krTotalpris
12 218 490 kr
Pris
Bruksareal
261 m²BRA-I (internt bruksareal)
261 m²TBA (terrasse-balkongareal)
164 m²
Areal
Etasje
2Byggeår
2023Soverom
4 soveromBad
3 badTomteareal
523 m² (eiet)Type
Halvpart vertikaldelt boligEierform
EietFasiliteter
Garasje/P-plass og Balkong/TerrasseEnergimerke
Oransje A
Nøkkelinfo
Unngå doble boligrenter
Vi tilbyr gunstig forsikring.
Vurderer du utleie?
Få et tilbud fra Utleie KrogsveenHva koster lånet?
Sjekk estimert lånekostnadBeskrivelse
Kort om eiendommen
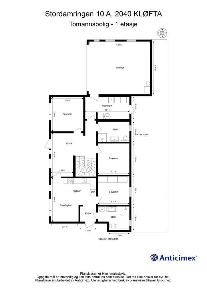
Meget tiltalende familiebolig med fantastisk beliggenhet øverst i et attraktivt boligfelt på Borgen. Sol- og utsiktsforhold er upåklagelige, og begge deler kan nytes fra store, flotte takterrasser. Det tilhører også romslig hage og flere uteplasser, samt en garasje med plass til to biler. Asfaltert gårdsplass. Fra garasjen er det direkte tilgang til boligen via vaskerom.
Boligen går over to etasjer med smakfull innredning og eksklusive løsninger. I deler av første etasje er det etablert hybel med stue/kjøkken, bad og soverom. Resten av boligen inneholder to bad, vaskerom, bod, tre soverom og stue/kjøkken. Det ene soverommet er en luksuriøs suite med eget bad og romslig walk-in closet. Stuen og kjøkkenet har store utsiktsvinduer, stemningsfull gasspe
Område
Legg til steder som er viktige for deg
På flyttefot? Tenk kjøp og salg samtidig.
Få din egen rådgiver gjennom hele kjøps- og salgsprosessen. Det starter med en verdivurdering.
Unngå doble boligrenter
Vi tilbyr gunstig forsikring.
Vurderer du utleie?
Få et tilbud fra Utleie KrogsveenHva koster lånet?
Sjekk estimert lånekostnadVil du varsles om lignende boliger?
Ved å lagre ditt boligsøk hos oss får du beskjed når vi har en bolig som ligner denne, før den legges ut på markedet!

