Sinsenveien 5A
7 790 000 kr
81 m²
3 soverom
Komplett salgsoppgave

Carl Berner / Sinsen
Oppgradert utsiktsleilighet m/hybel | Garasjeplass* |Heis | Balkong & felles takterrasse | VV inkl. | Ingen forkjøpsrett
Prisantydning
7 790 000 krAndel fellesgjeld
801 077,45 krOmkostninger
11 040 krTotalpris
8 602 117,45 kr
Pris
Bruksareal
86 m²BRA-I (internt bruksareal)
81 m²BRA-E (eksternt bruksareal)
5 m²TBA (terrasse-balkongareal)
5 m²
Areal
Etasje
6Byggeår
2004Soverom
3 soveromBad
2 badType
AndelsleilighetEierform
AndelFasiliteter
Garasje/P-plass, Heis og Balkong/TerrasseFellesutgifter
11 118 kr
Nøkkelinfo
Unngå doble boligrenter
Vi tilbyr gunstig forsikring.
Vurderer du utleie?
Få et tilbud fra Utleie KrogsveenHva koster lånet?
Sjekk estimert lånekostnadDette liker selger best ved boligen
Den fleksible planløsningen med mulighet for skattefri leieinntekt. Leilighetens interne plassering med god utsikt utover Oslofjorden og gode solforhold. Kort vei til dagligvare. Garasjeplass i felles parkeringskjeller og heis. Plasseringen "midt" i byen, med kort vei ned til sentrum, men også lettvint å komme seg opp i marka og ut på E6 og ring 3. Gode kollektivmuligheter i mange retninger.
Beskrivelse
Kort om eiendommen
Velkommen til en smart andelsleilighet med mulighet for hybeldel sentralt på Carl Berner!
Beliggende i 6. etasje med heis, fleksibel planløsning og solrik balkong med flott utsikt. Attraktiv beliggenhet med kort vei til kollektivknutepunkt, servicetilbud og grøntområder.
Godt utleiepotensial og mulighet for fleksibel bruk av hybeldel.
- Garasjeplass* og heis
- Mulighet for hybeldel med egen inngang
- Sydvestvendt balkong på 5 m² og felles takterrasser
- To Kvik-kjøkken fra 24 med integrerte hvitevarer
- To flislagte bad med gulvvarme
- Pene parkettgulv, slipt i 2024
- A-konto varmtvann inkl. i felleskostnader
- Bod på 5 m² og fellesvaskeri
- Ingen forkjøpsrett
- Husbank finansiert fellesgjeld kun 4,06% i rente p.t
Leieestimat: 17 000-18 000,- pr. mnd. ved utleie av hybel med 2 soverom
Innhold og byggemåte
Innhold og byggemåte
Eiendommen
Sinsenveien 5A, 0572 OSLO
Kommunenummer 301, gårdsnummer 83, bruksnummer 98, ideell andel 1/1
Andelsnummer 47, Borettslaget Carl Berner Terrasser, organisasjonsnummer 986 841 709
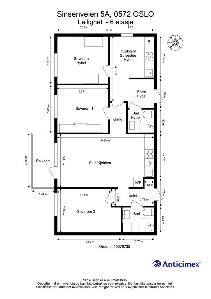
Innhold
Totalt bruksareal BRA: 86 m².
BRA-i:
Boligbygg med flere boenheter:
6. etasje, 81 m²: Entré, bad, stue/kjøkken, to soverom, gang, entré hybel, bad hybel, kjøkken hybel og soverom hybel.
BRA-e:
1. etasje, 5 m²: Bod.
Åpent areal:
6. etasje, 5 m²: Balkong.
Det gjøres oppmerksom på at boligens eksterne bod tilhører borettslagets fellesareal, og at boden således ikke eies av den enkelte andelseier. Dette medfører at borettslaget i fellesskap beslutter bruken, og at man ikke selv har eierrett og rettsvern for boden. Borettslaget kan ved vedtak beslutte annet bruk av fellesarealet og disponering av bodarealet kan dermed opphøre.
Vedlagte plantegninger er ikke målbare. De oppgitte arealer er hentet fra rapport med befaringsdato 25.02.2026 utført av Anticimex AS v/Rodrigo Peña. Arealene er beregnet og rom er definert etter dagens faktiske bruk, uavhengig av hva som er godkjent av bygningsmyndighetene.
Byggemåte
Selger har innhentet en tilstandsrapport av boligen/eiendommen. Dersom det er registrert avvik, er disse klassifisert med tilstandsgrader (TGIU, TG2 og/eller TG3). Kjøper overtar ansvaret for de opplysninger som fremkommer av salgsdokumentasjonen, og kan ikke gjøre gjeldende som mangel noe som burde vært kjent eller som ikke kan anses å ha betydning for avtalen.
Bygningen er iht. tilstandsrapport et leilighetsbygg oppført i 2004. Bygget er oppført med parkeringsanlegg i nederste etasje, med grunnmur og bærende konstruksjoner i hovedsak av betong. Yttervegger av betongkonstruksjoner. Utvendige fasader er kledd med fasadeplater. Etasjeskillere er av betong. Bygningen har flatt tak, og yttertaket er tekket med takmembran.
Boligen har entrédører fra byggeår med brannklasse B30 og lydklasse db40, og innvendige dører er glatte. Vinduer og balkongdør er fra byggeår med karmer av tre, utvendig kledd med metallplater. Det er utgang fra stue til en balkong på 5 m² i betongkonstruksjon med rekkverk av stål. Gulvoverflaten på balkongen er belagt med plasttremmer.
Sikringsskap er plassert i gang utenfor leiligheten. Anlegget er sikret med automatsikringer merket med F31-F38.
Det er registrert forhold som tyder på behov for at en kvalifisert elektrofaglig person gjennomfører en utvidet kontroll av det elektriske anlegget. Det er kun en slik tilleggsundersøkelse som kan gi en fullstendig oversikt over tilstanden, eventuelle feil og mangler, og hvilke tiltak som kan være nødvendige.
Boligen har godkjent slukkeutstyr, tilstrekkelig røykvarsling og komfyrvakt på kjøkkenene.
Følgende bygningsdeler er gitt Tilstandsgrad 2 (TG2) - Avvik som kan kreve tiltak:
Våtrom - baderom (hoveddel og hybel)
- Vanntett sjikt har en alder som tilsier at fremtidig funksjon er usikker. Bygningsdelen er skjult, så den faktiske tilstanden og dagens tettefunksjon er ukjent.
Andre rom
- Dørblader på soverom 1, soverom hybel og dør mellom hybel og hoveddel kommer i kontakt med karmen slik at døren ikke kan åpnes og lukkes som normalt.
Følgende bygningsdeler er ikke undersøkt (TGIU):
Våtrom - baderom (hoveddel og hybel)
- Kontroll i tilliggende konstruksjon ikke utført: Med bakgrunn i at våtrommet er bygget som en prefabrikkert baderomskabin er det ikke utført hulltaking/fuktmåling i lukkede konstruksjoner. Tilstanden inne i konstruksjonen er ikke kjent. Det ble derimot gjennomført et overflatesøk med fuktindikator, uten at det ble påvist indikasjoner som tyder på fuktskader.
Tekniske anlegg
- Stakeluke er plassert i kjelleretasje.
Tilstandsrapporten er inntatt i salgsoppgaven. Rapporten inneholder informasjon om eventuelle avvik og konsekvensen av disse. Dersom det er registrert avvik med TG3, har den bygningssakkyndige i tillegg gitt et anslag på hva det vil koste å utbedre disse. Ettersom kjøper regnes å være kjent med forhold som tydelig fremgår av tilstandsrapporten, oppfordres du til å sette deg grundig inn i rapporten i sin helhet.
Selger beskriver også i egenerklæringsskjema:
Det er noen små riss i fliser på bad. I 2024 ble det byttet til ny baderomsinnredning, oppbevaringsskap, dusjdører og dusjsett inkludert termostat av faglært. I 2026 ble det lagt ny silikonfug langs alle kanter på gulvet som egeninnsats. Det har vært svertesopp på silikonfugen på overgangen mellom badegulv og vegg. Selger har fjernet det som var mulig, behandlet med sopphemmende væske og det ble lagt ny fug med sopphemmende egenskaper.
Treverk har svellet litt i overflaten i vinduskarmen i hybelen ved vinduet som kan åpnes. Dette er pusset ned, sparklet og malt over. I 2023 ble det montert sunscreens på yttervinduer (unntatt kjøkkenvindu i hybel) av faglærte, med service utført i 2024. Solfilm ble lagt på vinduet på hybelkjøkkenet som egeninnsats i 2024.
Borettslaget har hatt en vannlekkasje i et vannrør i en av parkeringskjellerne, som ble utbedret. Det har også vært noe kondens ved et vannrør i en utleiebod, som ble håndtert av borettslaget.
Det er utført flere arbeider på det elektriske anlegget av faglærte, inkludert remontering/demontering på kjøkken og bad, montering av ny komfyrvakt på hovedkjøkken (2024), montering av komfyrvakt på hybelkjøkken (2021), og retting av en stikkontakt samt montering av komfyrstikk på ny platetopp som erstatett gammel platetopp på hovedkjøkken (2026).
I 2024 ble det utført rørleggerarbeid av faglærte i forbindelse med flytting av vask på hoved kjøkken, samt fra- og tilkobling av rør og montering av waterguard på begge kjøkken i forbindelse med nytt kjøkken. Det ble også kobelt fra- og tilkoblet rør på bad i forbindelse med bytte til nytt baderoms inventar i 2024 av faglærte. Ventilasjonskanalene i leiligheten ble renset av faglærte i 2022 i regi av borettslaget.
I 2024 ble det montert nytt kjøkken, parkettgulv ble pusset og lakkert, baderomsdører ble byttet, og det ble lagt nye gulvlister. Vegger og tak ble malt. I 2022 ble dørkassett mellom hoveddel og hybeldel fjernet og erstattet med ny dør. Det er også utført diverse egeninnsats som legging av kjøkkenfliser, oppbygging av gipsvegg, ordnet sprekk i terskel, maling av dørkarmer og dører, og montering av nye elektroniske dørlåser og wifi-ovner.
Ovenfor borettslagets blokker jobbes det for å utvikle nytt område med boliger og næringslokaler.
Høsten 2025 gikk det steinras ved studentboligene på andre siden av gata for blokken. Det ble ikke gitt noe pålegg om at vi måtte ta hensyn til dette utover at Hasleveien utenfor blokka var stengt en kort periode i forbindelse med kartlegging av omfanget.
Moderniseringer og påkostninger
Følgende moderniseringer er foretatt de senere år:
2026
- Diverse el-arbeider i forbindelse med utskifting av platetopp, inkludert retting av stikkontakt og bytte av komfyrstikk. Utført av Oslo Electro Company.
- Lagt ny silikonfug langs alle kanter på gulv på bad.
- Malt deler av deksler bak panelovn, innside av utgangsdører med tilhørende innvendig karm og innvendige dører og karmer. Unntak er baderomsdører som var nye i 2024.
- Byttet ny fiberboks til fibernett. Utført av Eltel.
2024
- Bytting av baderomsdører Utført av Delilla.
- Sliping og lakkering av parkettgulv. Utført av Elegante Gulv.
- Diverse rørleggerarbeid, inkludert flytting av rør og montering av waterguard på begge kjøkken. Utført av Christiania Rørleggerbedrift.
- Service av solskjerming på hybeldel.
- Ny kjøkkeninnredning i hoveddel og hybeldel fra Kvik, inkludert hvitevarer.
- Byttet til ny baderomsinnredning, oppbevaringsskap, dusjdører og dusjsett inkl. termostat. Utført av Christiania Rørleggerbedrift.
- Lagt på solfilm på vindu på hybelkjøkkenet.
- Remontering/demontering av kjøkken og bad samt lamper. Montert ny komfyrvakt på hovedkjøkken. Utført av Elektriker1/Viking El avd. Drammen.
- Lagt kjøkkenfliser bak kjøkkenbenk, inkludert delvis riving og oppbygging av gipsvegg.
- Lagt nye gulvlister.
- Vegger og tak malt, samt vinduskarmer.
- Nye nimly elektroniske dørlåser på begge ytterdører.
- Nye duette plisségardiner på alle soverom (Runes AS).
- Nye wifi-ovner.
2023
- Oppsett av solskjerming (Kjells markiser).
2022
- Utskiftning av dør mellom hoveddel og hybel. Utført av Proff Door Rzevski.
2021
- Montert komfyrvakt hybelkjøkken. Utført av Lefdal Installasjon.
Standard
Andelsleilighet i 6. etasje med heisadkomst og fleksibel planløsning, med mulighet for hybeldel. Boligen ble vesentlig oppgradert i 2024 med blant annet to nye Kvik-kjøkken, nyslipte parkettgulv og ny baderomsinventar. Dette gir en moderne og funksjonell bolig med gode utleiemuligheter, hjemmekontor eller adskilt sone for ungdom.
Dagens eier bruker hele leiligheten som egen bolig, men leiligheten ble bygd og godkjent med hybel del med egen inngang. Fleksibiliteten ligger i at du kan enten bruke den som en to roms og leie ut en hybel del med to soverom. Eller bruke den som en treroms og leie ut hybel del med et soverom. Utleie i egen bolig er skattefri dersom du bor selv i delen som har høyeste utleie verdi.
Her under vil vi beskrive boligen ved at hoveddelen bruker to soverom.
HOVEDDEL
Entré:
Praktisk entré med plass til yttertøy. Nyslipte parkettgulv gir en helhetlig flyt videre inn i boligen.
Bad:
Prefabrikkert baderomsmodul fra byggeår med varmekabler, vegghengt toalett, servant, dusjhjørne og opplegg for vaskemaskin. Funksjonelt bad med behov for modernisering over tid.
Kjøkken (2024):
Nytt L-formet Kvik-kjøkken med glatte grå fronter og laminatbenkeplate. Integrerte hvitevarer (ovn, platetopp, oppvaskmaskin og kjøl/frys). Komfyrvakt og automatisk vannstopper.
Stue:
Åpen løsning mot kjøkken med plass til sofa- og spisegruppe. Store vindusflater og utgang til balkong.
Balkong:
Sydvestvendt balkong på 5 m² med plass til kafésett og god utsikt over nærområdet.
Soverom 1:
Romslig hovedsoverom med IKEA PAX garderobe med skyvedører. Kan inngå i hybeldel sammen med gang ved utleie av 3-roms løsning.
Soverom 2:
Egner seg som barnerom, gjesterom eller kontor.
HYBELDEL
Entré:
Separat inngang gir god privathet mellom enhetene.
Bad:
Samme type prefabrikkerte baderomsmodul som hoveddel med varmekabler og standard utstyr. Funksjonelt bad med behov for modernisering over tid.
Kjøkken (2024):
Ny Kvik-innredning med integrerte hvitevarer og plass til lite spisebord. Komfyrvakt og vannstopper installert.
Soverom:
Fleksibelt rom med plass til seng og arbeidsplass.
OVERFLATER
Parkett i alle oppholdsrom og entréer, slipt i 2024. Fliser på begge baderom. Malte vegger, med fliser på begge baderom samt mellom benk og overskap på kjøkkenene. Himling med malte flater, og takplater på baderommene.
LAGRING
Disponibel bod i 1. etasje på 5 m².
TEKNISK
- Sikringsskap i gang utenfor leilighet (automatsikringer F31–F38)
- Stoppekraner i baderomsskap
- Stakeluke i kjeller
- Automatisk vannstopper med fuktsensor på kjøkken
- Tilknyttet felles varmtvann
- Mekanisk avtrekksventilasjon (aggregat utenfor leiligheten)
For fullstendig teknisk informasjon om boligen, se punktet Byggemåte.
Løsøre og tilbehør
Vi viser til liste fra Norges Eiendomsmeglerforbund som gjelder fra 01.01.2020 angående løsøre og tilbehør. Hattehylle i entré hybel og knagger på vegg på soverom 1 medfølger ikke.
Oppvarming
Elektrisk oppvarming med panelovner samt gulvvarme på begge baderom.
Dersom beboelsesrom ikke har vegg- eller fastmonterte varmekilder ved visning, følger dette heller ikke med.
Ferdigattest/brukstillatelse
Bygningen er oppført i 2004. Det foreligger ferdigattest datert 23.02.2007. Attesten gjelder oppføring av boligblokker (Blokk A + B). Ferdigattesten kan fås ved henvendelse til megler.
Ferdigattesten omfatter ikke endringer i planløsning. Det er avvik fra godkjente byggetegninger knyttet til flytting av døråpning mellom hybeldel og hoveddel. Opprinnelig dørkasett er fjernet og ny dør er etablert i annen åpning. Det er ikke dokumentert at endringen er omsøkt eller godkjent av kommunen.
Kjøper overtar alt ansvar, kostnad og risiko for dette videre.
Tinglyste heftelser og rettigheter
Utover andel fellesgjeld overdras leiligheten fri for pengeheftelser.
Borettslaget har legalpant for forfalte felleskostnader og andre krav som følger av borettslagsforholdet iht. burettslagsloven § 5-20. Pantet er begrenset oppad til 2G (G = folketrygdens grunnbeløp).
Det er tinglyst 22 servitutter på borettslagets eiendom. Disse omfatter blant annet bestemmelser om veg, kloakkledning, gjerde, bebyggelse, anlegg og vedlikehold av ledninger, parkering/garasje, bruksendring, gangvei, aldersbegrensning for beboere, byggeforbud ved forurenset grunn, opparbeidelse av fortau, sykkelskur/trafo, bruksrett og nettstasjon.
Blant ovennevnte servitutter er:
Dagboknr. 11627, tinglyst 18.02.2004, som gjelder bestemmelse om boligformål for aldersgruppen 18–35 år. Det fremgår av meglerbrev fra forretningsfører at aldersklausulen er opphevet.
Eiendommens rettigheter:
Eiendommen har tinglyst rett til å bebygge nærmere enn 4 meter fra tomtegrensen mot gnr. 83, bnr. 98. Rettigheten er tinglyst på gnr./bnr./snr. 0301/126/4/snr. 1–70, 0301/126/179 og 0301/126/180/snr. 1–3, dagboknr. 3617, tinglyst 19.01.2004.
Servituttene vil følge eiendommen. Kjøpers bank vil få prioritet etter ovennevnte heftelser og servitutter.
Eventuell adgang til utleie
Andelseier kan ikke uten samtykke fra styret i borettslaget overlate bruken av boligen til andre. Med samtykke kan andelseier overlate boligen til andre i inntil tre år hvis andelseier har bodd i boligen i minst ett av de to siste år. Utleie i andre tilfeller kan godtas ved særlige grunner, jf. burettslagslova § 5-6. Utleie forutsetter at leiligheten har forsvarlige radonverdier.
Andelseier som bor i boligen selv, kan overlate bruken av deler av den (opp til 50%) til andre uten godkjenning. I tillegg kan andelseieren overlate bruken av hele boligen til andre i opptil 30 døgn i løpet av året.
Det kreves ikke styrets godkjenning for hybeldelen.
Se også borettslagets vedtekter og konferer megler ved spørsmål.
Energimerking
Denne boligen er energimerket. På en skala fra A til G, der A er best, har denne boligen oppnådd D (en normalbolig vil gjerne ligge i området C-F). Kopi av energiattest ligger vedlagt i salgsoppgaven eller kan fås ved henvendelse til megler.
Beliggenhet og tomteforhold
Beliggenhet og tomteforhold
Beliggenhet
Med base i Sinsenveien 5A bor du svært sentralt, attraktivt plassert mellom Carl Berner og Sinsen – i et område som kombinerer umiddelbar bynærhet med gode grønne pauser og et rikt servicetilbud i nærområdet.
Beliggenheten gir kort og enkel tilgang til et av Oslos viktigste kollektivknutepunkt ved Carl Berners plass, med T-bane, trikk og buss som raskt tar deg videre gjennom byen. Herfra er det kun få minutter til sentrum, samtidig som boligen ligger tilbaketrukket nok til å skjerme for den mest intensive trafikken i selve krysset.
Hverdagen er svært enkel og effektiv. Dagligvare, apotek, vinmonopol og flere servicetilbud ligger innen få minutters gange ved Carl Berner Torg og Carl Berner Passasjen. Området har et solid og variert tilbud av kafeer, bakerier og serveringssteder, i tillegg til treningssentre som SATS og flere alternative treningsmuligheter i nærområdet.
Carl Berner-området er i sterk utvikling og har de siste årene etablert seg som en egen “by i byen”, med stadig nye konsepter og møteplasser. Samlingspunktet Carls har ytterligere styrket områdets attraktivitet med restauranter, kafé, bar og kulturarrangementer i en ombygd industribygning som nå fungerer som et levende sosialt knutepunkt.
Til tross for den urbane beliggenheten har du kort vei til flere av byens viktigste grøntområder. Tøyenparken byr på store åpne flater og sommerliv, mens Botanisk hage gir rolige og grønne omgivelser med et unikt botanisk miljø. Langs Akerselva finner du attraktive tur- og rekreasjonsstier som binder sammen byen på en naturlig måte, og Torshovdalen er et populært nærområde for både aktivitet og avslapning.
For et bredere bytilbud ligger Grünerløkka innen kort gang- og sykkelavstand, med et rikt utvalg av restauranter, kaféer, butikker og kulturtilbud. Samtidig har du enkel tilgang til større handelssentre som Storo Storsenter, som samler et bredt spekter av butikker og servicetilbud.
Området er godt tilrettelagt for en aktiv hverdag med flere treningssentre, idrettsanlegg og grøntområder i umiddelbar nærhet. Det finnes også et godt tilbud av barnehager og skoler i nærområdet, noe som gjør beliggenheten attraktiv for ulike livsfaser.
Samlet sett fremstår Sinsenveien 5A som en svært sentral og funksjonell beliggenhet med kort vei til alt du trenger i hverdagen – kombinert med grønne omgivelser, godt kollektivtilbud og et område i positiv utvikling.
Adkomst
Det vil bli skiltet med Krogsveen visningsskilt ved fellesvisninger.
Barnehager, skoler og fritid
Sinsenveien 5A sokner til Sinsen skole (1.-7. trinn) og Frydenberg skole (8.-10. trinn).
Det er flere barnehager i området som Støperiet barnehage, Sophies Hage barnehage og Ola Narr barnehage.
Dersom skole- og barnehagetilbud er av betydning for kjøpet, ber vi om at det rettes en særskilt henvendelse til kommunen/bydelsadministrasjonen for oppdatert informasjon.
Beskrivelse av tomt
Eiertomt på 8376 m² som tilhører borettslaget. Fellesarealene er opparbeidet med internstier, plenarealer, beplantninger, lekeområder og felles takterrasser.
Parkering
Selger har bruksrett til parkeringsplass nr. 36 i felles lukket garasjeanlegg under blokk 5 A/B. Denne kan medfølge leiligheten for 350 000,-
Ved separat salg av garasjeplassen påløper administrasjonsgebyr ved eierskifte i henhold til enhver tid gjeldende prisliste.
Ved eksternt salg av garasjeplassen tilkommer et gebyr på kr 500,- til borettslaget i forbindelse med avklaring av forkjøpsrett. Garasjeplassen kan fritt leies ut, både internt og eksternt.
Det er innført beboerparkering i området. Beboere kan søke om parkeringstillatelse som gir rett til parkering på offentlige plasser regulert til beboerparkering innenfor sonen, i henhold til gjeldende skilting og bestemmelser.
Priser per 2026:
- Bensin-, diesel-, hybrid- og ladbar hybridbil: kr 3 850,-
- Elbil: kr 1 300,- (hydrogenbil og el-varebil gratis)
- Motorsykkel og moped: kr 1 925,-
- El-motorsykkel og el-moped: kr 650,-
Vei, vann og avløp
Eiendommen har adkomst via kommunal vei. Eiendommen er tilknyttet kommunalt ledningsnett via private stikkledninger. Borettslaget er ansvarlig for private stikkledninger til bygningen.
Regulerings-og arealplaner
Eiendommen er regulert til byggeområde for boliger i henhold til reguleringsplan S-3973, «Endret reguleringsplan med reguleringsbestemmelser for Sinsenveien 3 m.fl.», datert 09.04.2003, med tilhørende bestemmelser. Det åpnes for innpassing av forretning og kontor i deler av 1. etasje mot Sinsenveien. I henhold til bestemmelsene (§ 11) skal bebyggelsen sikres mot støy fra vei og jernbane.
Eiendommen omfattes også av eldre reguleringsplaner knyttet til infrastruktur i området. Dette gjelder S-630, datert 07.02.1956, som regulerer veiarealer for Hasleveien, samt S-4336, datert 26.09.2007, som regulerer Carl Berners plass med omgivelser.
Området inngår i en pågående byutviklings- og transformasjonsprosess, hvor tidligere næringsområder gradvis utvikles til en mer blandet bystruktur med bolig, næring og bymessige funksjoner, særlig langs Hasle- og Carl Berner-korridoren.
Utdrag av plan- og byggesaker i området:
- Hasleveien 28, 30, 36, 38 og Sinsenveien 11 (sak 202451391): Det arbeides med reguleringsplan for området. Hensikten er å muliggjøre transformasjon av eksisterende bebyggelse til et område med bolig, næring, kultur og servicefunksjoner. Saken er under behandling og forventes lagt ut til offentlig ettersyn.
- Hasleveien 4–6, Sinsenveien 1 m.fl. (sak 202550615): Det er igangsatt reguleringsprosess for videreutvikling av området med bolig og næring, som en videreføring av gjeldende plan.
- Sinsenbyen / Trondheimsveien-området (bevaringsplan, sak 202100768): Det pågår arbeid knyttet til bevaring av kulturmiljø (Sinsenbyen), som kan legge føringer for utvikling og tiltak i området.
Opplistingen er ikke uttømmende, og interessenter oppfordres til å sette seg inn i planinnsyn på Oslo kommunes nettsider.
Utsnitt av plan med tilhørende bestemmelser kan fås ved henvendelse til megler.
Økonomi
Økonomi
Boligens kostnader
Felleskostnadene er kr 11 118,- pr. mnd. og inkluderer: Garasjeplass, a-konto varmtvann for hoveddel og hybel, kommunale avgifter, felles bygningsforsikring, trappevask, drift og vedlikehold, styrehonorar og forretningsførsel, og nedbetaling andel fellesgjeld m.m.
Felleskostnadene justeres normalt en til to ganger årlig i forhold til borettslagets faktiske utgifter.
Felleskostnadene fordeles slik:
- Renter/avdrag: kr 7 574,-
- Felleskostnader (boligselskapets driftskostnader): kr 2 630,-
- Garasjeplass: kr 266,-
- A-konto varmtvann: kr 324,-
- A-konto varmtvann hybel: kr 324,-
Det er utskrevet eiendomsskatt for borettslaget på kr 961,- for inneværende år.
Borettslag får eiendomsskatt for hele borettslaget. Bor du i borettslag får du derfor ikke eiendomsskatteseddel fra kommunen. Har du spørsmål om eiendomsskatten for din andel, må du ta kontakt med styret i borettslaget ditt.
For ytterligere info. se: https://www.oslo.kommune.no/skatt-og-naring/eiendomsskatt-og-avgift/eiendomsskatt/hvor-mye-skal-du-betale-i-eiendomsskatt/
Nåværende eier har et strømforbruk som tilsvarer ca. kr 9 826,- pr. år. / 6008 kWh pr. år.
Boligen er ikke tilknyttet en kollektiv avtale for Internett. Beboere kan selv bestille 1GB fibernettlinje hos NextGenTel. TV-tuner/dekoder medfølger ikke.
Varmtvann avregnes av EcoGuard, og beboere betaler et à-konto beløp som en del av felleskostnadene. Ved eierskifte må målerstand oversendes til EcoGuard for korrekt avregning mellom kjøper og selger.
Utgiftene er basert på nåværende eiers forbruk. Kjøper må selv tegne innboforsikring.
Formuesverdi
Formuesverdi for 2024 var kr 1 746 669,- ifølge Skatteetaten. Beløpet forutsetter at eier bor fast i boligen (primærbolig).
Ved eventuell øvrig bruk av eiendommen (f.eks. fritidsbolig, pendlerbolig, utleieobjekt) var formuesverdien for 2024 kr 6 986 674,-.
Fra 2026 har Stortinget vedtatt en oppdatert modell for beregning av formuesverdi for primærbolig, så avvik kan forekomme.
For mer informasjon se skatteetaten.no
Opplysninger om fellesgjeld
Andel formue er kr 93 413,- pr. 31.12.2025.
Andel fellesgjeld er kr 801 077,45 pr. 09.04.2026.
Total fellesgjeld for borettslaget er kr 134 655 736,- pr. 09.04.2026 og lånevilkårene er:
Bank: Husbanken
Lånenummer: 11491638 20
Type: Annuitetslån, 4 terminer per år
Restsaldo pr. 09.04.2026: kr 42 164 670,00
Andel av saldo: kr 250 832,75
Innfrielsesdato: 01.09.2041
Type Rente: Flytende rente
Rente: 4,06%
Bank: Husbanken
Lånenummer: 11491638 6
Type: Annuitetslån, 4 terminer per år
Restsaldo pr. 09.04.2026: kr 21 559 165,00
Andel av saldo: kr 128 264,14
Innfrielsesdato: 01.06.2036
Type Rente: Flytende rente
Rente: 4,06%
Bank: Husbanken
Lånenummer: 11491638 7
Type: Annuitetslån, 4 terminer per år
Restsaldo pr. 09.04.2026: kr 70 931 901,00
Andel av saldo: kr 421 980,56
Innfrielsesdato: 01.09.2037
Type Rente: Flytende rente
Rente: 4,06%
Mulighet for individuell nedbetaling på hele eller deler av fellesgjeld (IN-lån): Nei.
Omkostninger
7 790 000,00 Prisantydning
801 077,45 Andel av fellesgjeld
--------------------------------------------------------
8 591 077,45 Pris inkl. fellesgjeld
Omkostninger
9 950,00 Gjensidige Boligkjøperpakke (valgfri)* (valgfritt)
545,00 Tinglysing hjemmel
545,00 Tinglysing panterettsdokument
--------------------------------------------------------
1 090,00 Omkostninger totalt (uten Gjensidige Boligkjøperpakke (valgfri))
11 040,00 Omkostninger totalt (med Gjensidige Boligkjøperpakke (valgfri))
--------------------------------------------------------
8 592 167,45 Totalpris inkl. omkostninger
8 602 117,45 Totalpris inkl. omkostninger (med Gjensidige Boligkjøperpakke (valgfri))
--------------------------------------------------------
Leilighetens andel av fellesgjelden vil komme i tillegg til kjøpesummen. Denne gjelden skal ikke innbetales i oppgjøret, men følger leiligheten.
Det tas forbehold om endringer i avgifter og gebyrer.
Tilbud om lånefinansiering
Megler formidler gjerne kontakt med rådgiver hos vår samarbeidspartner BN Bank. De har konkurransedyktige betingelser samt rask og løsningsorientert behandling av din lånesøknad. Krogsveen mottar et honorar dersom lån opprettes.
Betalingsbetingelser
Kjøpesum inkludert omkostninger, samt pantedokument tilknyttet eventuelt lån, skal være disponibelt hos megler 2 virkedager før overtakelsen.
Annen viktig informasjon
Annen viktig informasjon
Eier
Henrik Bjøralt Roald og Thea Wikesland Flaen
Informasjon om borettslaget
Leiligheten er tilknyttet Borettslaget Carl Berner Terrasser.
- Borettslaget består av 237 leiligheter, hvorav 176 har egen utleiedel.
- Forretningsfører er OBOS Eiendomsforvaltning AS.
- Borettslagets hjemmeside er https://vibbo.no/carl-berner-terrasser-brlaget/om.
Styret kan innkalle til dugnad ved behov, og beboere er forpliktet til å delta.
Husdyrhold er generelt tillatt så lenge det ikke er til sjenanse for andre beboere. Dyr må holdes i bånd på borettslagets område og ikke etterlate ekskrementer. Lufting skal skje utenom gangvei, garasje og lekeplasser.
Borettslaget har felles takterrasser, fellesvaskeri, sykkelstativer og et søppelrom i garasjeanlegget. Det er mulighet for å leie ekstra bod. Grilling med gass- eller elektrisk grill er tillatt på privat veranda, men all grilling på takterrassene er forbudt. Røyking er forbudt i innendørs fellesarealer. Det kreves styregodkjennelse for fasadeendringer som montering av markiser. Parabolantenner er i utgangspunktet ikke tillatt.
Fra årsmøtet i juni 2025 ble det vedtatt å ikke gjennomføre avretting av garasjedekket. Godkjenning ble gitt for seksjonering av andelene 155, 160 og 228, som innebærer at leilighetene kan deles i to enheter. Dette forutsetter kjøp av utleiebod og godkjennelse fra Plan- og bygningsetaten. Etter en vellykket seksjonering må minst en av andelene selges, da det ikke er tillatt å eie mer enn én andel i borettslaget.
Planlagte påkostninger:
- En totalrehabilitering av takterrassene, estimert til 10-15 millioner kroner, er utsatt da en tilstandsrapport konkluderte med at kun mindre vedlikehold er nødvendig per nå. Arbeidet med å innhente tilbud for totalrehabilitering er avsluttet.
Megler har kopi av budsjett og årsregnskap for 2025. I et ekstraordinært årsmøte i januar 2025 ble det opplyst at borettslaget hadde 2,04 millioner kroner på en øremerket vedlikeholdskonto.
I henhold til borettslagets vedtekter må kjøper godkjennes av styret som ny andelseier. Det er kjøpers ansvar at styregodkjenning blir gitt, men styret kan ikke nekte godkjenning uten saklig grunn. Kjøper har ikke rett til å ta boligen i bruk før godkjenning er gitt. Iht. burettslagslova kan man bare eie én andel i borettslaget. Kun fysiske personer kan være andelseiere.
Det er ikke forkjøpsrett for andelseierne i borettslaget. Dette er et frittstående borettslag, og forkjøpsrett for OBOS-medlemmer gjelder ikke. Det er forkjøpsrett for andelseiere ved separat salg av garasjeplass.
Borettslaget har en avtale med OBOS Factoring om garantert betaling av felleskostnader. OBOS Factoring garanterer for overførsel til borettslaget hver måned og overtar deretter alt ansvar og risiko for eventuell manglende innbetaling av felleskostnader.
Dokumenter for borettslaget kan fås ved henvendelse til megler.
Overtakelse
Etter nærmere avtale. Overtakelse kan tidligst skje etter at styrets godkjennelse er avklart.
Boligselgerforsikring
Selger har i forbindelse med salget tegnet Boligselgerforsikring levert av Gjensidige.
Boligselgerforsikringen dekker selgers ansvar etter avhendingsloven begrenset oppad til kr 14 millioner. Dersom kjøper oppdager forhold ved eiendommen som hen mener utgjør en mangel ved eiendommen, vil Gjensidige behandle reklamasjonen på vegne av selger. Forsikringsvilkår kan fås ved henvendelse til megler.
Vedlagt salgsoppgaven følger selgers egenerklæringsskjema og tilstandsrapport. Interessenter må sette seg inn i dokumentene før bud inngis.
Boligkjøperforsikring
Innen kontraktsmøtet må kjøper ta stilling til om det ønskes å bestille Boligkjøperpakken gjennom Gjensidige. I denne gunstige pakken er boligen ferdig forsikret og inkluderer rettshjelpsforsikring, også kalt Boligkjøperforsikring. Rettshjelpsforsikring gir trygghet og tilgang på profesjonell juridisk hjelp dersom det oppdages uventede feil eller mangler det første året etter overtakelse. Forsikringsselskapet behandler i så fall ethvert mangelskrav kjøper måtte ha overfor selger.
Boligkjøperpakken inkluderer bygningsforsikring for hus og hytte, innboforsikring, flytteforsikring og dobbel rentedekning - i situasjoner hvor kjøper ikke får solgt nåværende primærbolig.
Kjøper mottar ingen særskilt faktura for Boligkjøperpakken da kostnaden det første året legges til kjøpesummen for boligen. Det gjøres oppmerksom på Krogsveen mottar et honorar for denne formidlingen.
Produktark for Boligkjøperpakken ligger vedlagt i salgsoppgaven.
Dersom ikke Boligkjøperpakke ønskes kan kun rettshjelpsforsikring, også kalt Boligkjøperforsikring, tegnes særskilt via megler. Rettshjelpsforsikringen varer i 5 år fra overtakelse og leveres gjennom Gjensidige. Ta kontakt med megler for ytterligere informasjon.
Selskap og privatpersoner som driver med kjøp/salg/utvikling som ledd i egen næringsvirksomhet kan ikke tegne Boligkjøperpakke eller rettshjelpsforsikring.
Budgivning
Forbrukerinformasjon om budgivning er vedlagt denne salgsoppgaven og er også på vår hjemmeside Krogsveen.no. Alle bud og budforhøyelser må inngis skriftlig. I tillegg må legitimasjon være fremlagt sammen med signatur fra budgiver.
Vi oppfordrer til å gi bud elektronisk via GI BUD-knappen på eiendommens hjemmeside på Krogsveen.no. Da vil samtlige vilkår bli oppfylt.
Eventuelle forhøyelser eller endringer av budet kan bekreftes pr. SMS eller på e-post. Vi oppfordrer alltid til å kontakte megler pr. telefon i tillegg, da forsinkelser i SMS og e-post kan forekomme.
For at budene skal kunne bli behandlet og videreformidlet skriftlig til alle involverte parter, må alle bud ha en tilstrekkelig lang akseptfrist, jf. eiendomsmeglingsforskriften § 6-3.
Selger må også skriftlig akseptere budet før aksept kan formidles til budgiver. Akseptfrist bør derfor være på minimum 30 minutter, og budforhøyelser må derfor skje i god tid før fristens utløp.
Bud i forbrukerforhold kan uansett ikke settes med kortere frist enn kl. 12.00 første virkedag etter siste annonserte visning. I tillegg kan ikke budet ha forbehold om at det skal holdes hemmelig ovenfor øvrige interessenter. Megler har iht. lov om eiendomsmegling ikke anledning til å videreformidle disse budene, og de vil dermed heller ikke bli journalført.
Etter at eiendommen er solgt vil kjøper og selger få tilsendt budjournal. Øvrige budgivere kan få utlevert kopi av budjournalen i anonymisert form.
Hvitvaskingsreglene
I henhold til lov om hvitvasking og terrorfinansiering har megler plikt til å gjennomføre kontrolltiltak overfor kunder, herunder fullmektiger. Dette innebærer bl.a. å bekrefte kunders og reelle rettighetshaveres identitet på bakgrunn av fremvist gyldig legitimasjon eller på annen godkjent måte, samt å innhente opplysninger om kundeforholdets formål og tilsiktede art.
Dersom slike kundetiltak ikke kan gjennomføres, kan megler ikke etablere kundeforholdet eller utføre transaksjonen.
Hvis kjøper ikke bidrar til gjennomføring av kundekontrollen og dette fører til at transaksjonen blir forsinket eller ikke kan gjennomføres, vil dette ansees som mislighold av avtalen og gi selger rettigheter etter avhendingslova kapittel 5. I tilfeller der selger ikke bidrar til gjennomføring av løpende kundekontroll underveis i oppdraget, er det selger som misligholder sine forpliktelser etter avtalen og gi kjøper rettigheter etter avhendingslovens kapittel 4. Partene er selv ansvarlige for eventuelle kostnader og ansvar dette kan medføre. Eiendomsmegleren eller eiendomsmeglingsforetaket kan ikke holdes ansvarlig for de konsekvenser dette vil kunne få for partene eller andre som har interesser i eiendomshandelen.
Kjøper oppfordres til å innbetale kjøpesummen som ikke kommer fra låneinstitusjon i én samlet innbetaling fra egen konto i norsk bank. Megler har plikt til å melde fra til Økokrim om eiendomshandler som fremstår som mistenkelige. Melding sendes Økokrim uten at partene varsles.
Personopplysningsloven
I henhold til personopplysningsloven gjør vi oppmerksom på at interessenter kan bli registrert for videre oppfølging.
Lovanvendelse
Generelle bestemmelser
Salgsoppgaven er basert på de opplysningene selger har gitt til megler, den bygningssakyndiges tilstandsrapport, samt opplysninger innhentet fra kommunen, Kartverket og andre tilgjengelige kilder. Det er viktig at kjøper setter seg grundig inn i alle salgsdokumentene, herunder salgsoppgave, tilstandsrapport og selgers egenerklæring. Kjøper anses kjent med forhold som er tydelig beskrevet i salgsdokumentene, og slike forhold kan ikke påberopes som mangler. Dette gjelder uavhengig av om kjøper har lest dokumentene. Alle interessenter oppfordres til å undersøke eiendommen nøye, gjerne sammen med fagkyndig før bud inngis. Kjøper som velger å kjøpe usett kan ikke gjøre gjeldende som mangel noe han burde blitt kjent med ved undersøkelsen.
Dersom det er behov for avklaringer, anbefaler vi at interessenter rådfører seg med eiendomsmegler eller egne rådgivere før det legges inn bud.
En bolig som har blitt brukt i en viss tid, har vanligvis blitt utsatt for slitasje og skader kan ha oppstått. Slik bruksslitasje må kjøper regne med, og det kan avdekkes enkelte forhold etter overtakelse som nødvendiggjør utbedringer. Normal slitasje og skader som nødvendiggjør utbedring, er innenfor hva kjøper må forvente og vil ikke utgjøre en mangel.
Kjøper og selgers rettigheter og plikter reguleres av avtalen mellom partene, samt informasjonen som har vært tilgjengelig for kjøperen i forbindelse med handelen. Avtalen utfylles av avhendingsloven, og det gjelder ulike avtalevilkår avhengig av om kjøper er forbrukerkjøper eller ikke. Dette er nærmere beskrevet nedenfor.
På grunn av ulike avtalevilkår kan selger vurdere bud fra en som ikke er forbruker, ulikt fra en forbrukers bud. Dersom kjøper ikke er forbruker, er selger sitt mulige mangelsansvar begrenset fordi eiendommen selges "som den er". Selger kan ikke ta «som den er»- forbehold overfor en forbrukerkjøper. Selv et lavere bud fra en som ikke er forbruker kan foretrekkes fordi begrensningen i mulig mangelsansvar kan ha egenverdi for selger. Selger står fritt til å forkaste eller akseptere ethvert bud, og er for eksempel ikke forpliktet til å akseptere høyeste bud.
Budgiver skal i budskjema avgi egenerklæring om budgiver er forbruker eller næringsdrivende/ person som hovedsakelig handler som ledd i næringsvirksomhet. Budgivere får informasjon dersom andre bud er inngitt av en som ikke er forbruker.
Forbrukerkjøp - definisjon
Med forbrukerkjøp menes kjøp av eiendom når kjøperen er en fysisk person som ikke hovedsakelig handler som ledd i næringsvirksomhet.
Forbruker – avtalevilkår
Eiendommen har en mangel dersom den ikke er i samsvar med kravene som følger av avtalen, eller det foreligger brudd på bestemmelsene i avhendingsloven §§ 3-2 til 3-8. Hvis eiendommen ikke er i samsvar med det kjøperen må kunne forvente ut ifra alder, type og synlig tilstand, kan det være grunnlag for mangelskrav. Det samme gjelder hvis det er holdt tilbake eller gitt uriktige opplysninger om eiendommen. Dette gjelder likevel bare dersom man kan gå ut ifra at det virket inn på avtalen at opplysningen ikke ble gitt eller at mangelskravet ikke blir rettet i tide på en tydelig måte.
Boligen kan ha en mangel etter avhendingsloven § 3-3 andre ledd, dersom det er avvik mellom opplyst og faktisk innvendig areal, forutsatt at avviket er på 2% eller mer og minimum 1 kvm.
Ved beregning av et eventuelt prisavslag eller erstatning må kjøper selv dekke tap/kostnader opptil et beløp på kr 10 000 (egenandel).
Ikke-forbruker (næringsdrivende) – definisjon
Hvis kjøper er en juridisk person, eller en fysisk person som hovedsakelig handler som ledd i næringsvirksomhet, vil kjøpet ikke anses som et forbrukerkjøp.
Ikke-forbruker – avtalevilkår
Eiendommen har en mangel dersom den ikke er i samsvar med kravene som følger av avtalen.
Eiendommen selges «som den er», og selgers ansvar utover det konkret avtalte er da begrenset etter avhendingsloven § 3-9, første ledd andre setning.
Avhendingsloven § 3-3 andre ledd fravikes, og hvorvidt boligens arealsvikt utgjør en mangel vurderes etter avhendingsloven § 3-8.
Informasjon om kjøpers undersøkelsesplikt, herunder oppfordringen om å undersøke eiendommen nøye, gjelder også for kjøpere som ikke anses som forbrukere.
Det forutsettes at hjemmel overføres til kjøper. Hvis kjøper ikke ønsker hjemmelsoverføring av eiendommen, må det tas forbehold om dette i budet.
Meglers vederlag
Meglers vederlag betales av selger og er avtalt til:
Vederlag: 1,00 % av salgssummen inkl. andel fellesgjeld. Minimumsprovisjon er kr 60 000,00.
Vederlag:
Kontroll av hjemmel og heftelser kr 3 900,00
Markedsføringspakke kr 30 900,00
Oppgjør kr 8 900,00
Tilrettelegging kr 24 900,00
Visninger pr. stk. / Overtakelse kr 3 890,00
Utlegg:
Eierskiftegebyr forretningsfører - OBOS kr 6 725,00
Innhenting av informasjon forretningsfører kr 4 375,00
Innhenting av offentlige opplysninger Oslo kommunale avgifter kr 265
Tinglysing sikring kr 545,00
Andre utgifter:
Boligselgerforsikring Gjensidige Andel kr 18 426,50
Foto kr 6 500,00 + kveldsfoto kr 6500,00
Tilstandsrapport leilighet kr 10 750,00
Vi er opptatt av verdiskapning, og har knyttet til oss samarbeidspartnere som skal sikre våre kunder de beste produkter og tjenester;
• I forbindelse med forberedelse av salget, innhenter vi informasjon om eiendommen hovedsakelig fra vår samarbeidspartner Ambita.
• Gjensidige leverer boligselgerforsikring og tilbyr bygningsforsikring.
• Boligkjøperforsikring leveres av Hiscox og med Sedgwick som skadebehandler, og er formidlet gjennom Gjensidige.
• BN bank tilbyr finansieringsløsninger.
• Vår avdeling Krogsveen Pluss tilbyr flyttetjenester som utvask, visningsvask, lager, tømming og transport av flyttelass, i tillegg til å formidle kontakt med Flip for overflateoppussing.
• I forbindelse med overtagelse av eiendommen tilbyr Overo avtale om strøm, alarm og bredbånd.
• Krogsveen er, sammen med øvrige bransjeaktører, medeier i den digitale annonseringsplattformen Hjem som eies av Bomega AS.
Opplysninger om oppdraget
Oppdragsnummer 48-0008/26
Eiendomsmegler Krogsveen AS, avd. Røa
Vækerøveien 193 A, 0751, OSLO
950 007 613
Oppdragets KR-kode KR48.268
Dato
Sist oppdatert: 28. april 2026 kl. 19:33
Dokumenter
Dokumenter
PDF – 164 KB
PDF – 979 KB
PDF – 2 MB
PDF – 10 MB
PDF – 1 MB
PDF – 1 MB
PDF – 216 KB
PDF – 312 KB
PDF – 29 KB
PDF – 127 KB
PDF – 392 KB
Område
Legg til steder som er viktige for deg
Visning
For å delta på visning, ber vi om at du melder deg på. Da sikrer vi at du får nødvendig informasjon og at det er satt av tilstrekkelig med tid. Kontakt megler dersom annet tidspunkt ønskes. Husk å lese salgsoppgaven før visningen, så du stiller forberedt.
Ønsker du kun å bli holdt orientert, kan du fra eiendommens hjemmeside få varsel om solgtpris, eller kontakte megler.
Lurer du på noe?
Unngå doble boligrenter
Vi tilbyr gunstig forsikring.
Vurderer du utleie?
Få et tilbud fra Utleie KrogsveenHva koster lånet?
Sjekk estimert lånekostnadVil du varsles om lignende boliger?
Ved å lagre ditt boligsøk hos oss får du beskjed når vi har en bolig som ligner denne, før den legges ut på markedet!



































































