Iduns vei 7D
3 150 000 kr
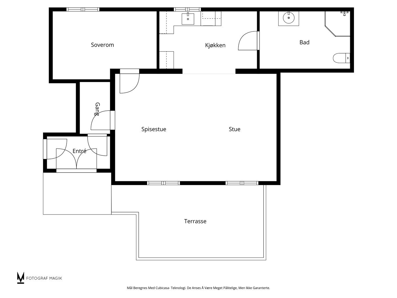
65 m²
1 soverom
Komplett salgsoppgave

Tolvsrød
Lys og lettstelt leilighet på ett plan. Rolig og attraktivt sameie. Sydøstvendt terrasse på 16 m².
Prisantydning
3 150 000 krOmkostninger
99 740 krTotalpris
3 249 740 kr
Pris
Bruksareal
70 m²BRA-I (internt bruksareal)
65 m²BRA-E (eksternt bruksareal)
5 m²TBA (terrasse-balkongareal)
16 m²
Areal
Byggeår
2001Soverom
1 soveromBad
1 badType
RekkehusEierform
EierseksjonFellesutgifter
3 537 krEnergimerke
Rød D
Nøkkelinfo
Unngå doble boligrenter
Vi tilbyr gunstig forsikring.
Vurderer du utleie?
Få et tilbud fra Utleie KrogsveenHva koster lånet?
Sjekk estimert lånekostnadBeskrivelse
Kort om eiendommen
Innhold og byggemåte
Innhold og byggemåte
Eiendommen
Iduns vei 7D, 3151 TOLVSRØD
Kommunenummer 3905, gårdsnummer 151, bruksnummer 573, seksjonsnummer 38, ideell andel 1/1
Innhold
Totalt bruksareal BRA: 70 kvm
BRA-i:
Etasje 65 kvm: Vindfang, stue, soverom, kjøkken, bad.
BRA-e:
Etasje 5 kvm: Bod.
Terrasse- og balkongareal (TBA):
Etasje 16 kvm: Terrasse.
Det gjøres oppmerksom på at boligens eksterne boder tilhører sameiets fellesareal, og at boden således ikke eies av den enkelte sameier. Dette medfører at sameiet i fellesskap beslutter bruken, og at man ikke selv har eierrett og rettsvern for boden. Sameiet kan ved vedtak beslutte annet bruk av fellesarealet og disponering av bodarealet kan dermed opphøre.
Vedlagte plantegninger er ikke målbare. De oppgitte arealer er hentet fra rapport med befaringsdato 10.03.2026 utført av Gulag Takst og Eiendom AS v/Gunnar Sverrisson. Arealene er beregnet og rom er definert etter dagens faktiske bruk, uavhengig av hva som er godkjent av bygningsmyndighetene.
Byggemåte
Tilstandsrapporten er inntatt i salgsoppgaven. Rapporten inneholder informasjon om eventuelle avvik og konsekvensen av disse. Dersom det er registrert avvik med TG3, har den bygningssakkyndige i tillegg gitt et anslag på hva det vil koste å utbedre disse. Ettersom kjøper regnes å være kjent med forhold som tydelig fremgår av tilstandsrapporten, oppfordres du til å sette deg grundig inn i rapporten i sin helhet.
Bygningen er iht. tilstandsrapport en selveierleilighet i en flermannsbolig, opprinnelig oppført på 1960-tallet som skole, men ombygd til boligformål i 2001, som er lagt til grunn som byggeår. Yttervegger over grunnmur er utført i bindingsverk med utvendig liggende dobbeltfalset kledning. Takkonstruksjonen er med plassbygde takstoler, med undertak av rupanel og trefiberplater, og et flatt tak tekket med PVC-folie. Etasjeskiller er av betongdekke. Bygningen har malte trevinduer med 2-lags glass fra 2000 på soverom og stue, mens alder på kjøkkenvindu er ukjent. Entrédøren er brann- og lydklassifisert, og innvendige dører er fyllingsdører i furu. Til leiligheten hører en sydøstvendt terrasse på 16 m² i trykkimpregnert tre. I tillegg medfølger en frittliggende hage-/redskapsbod i bindingsverk med trekledning, saltak tekket med betongtakstein og malt inngangsdør.
Følgende bygningsdeler er gitt Tilstandsgrad 2 (TG2) — Avvik som kan kreve tiltak:
Utvendig
- Andre utvendige forhold: Det er ikke utarbeidet Tilstandsanalyserapport, vedlikeholdsplan e.l. for fellesdeler i bygget.
Innvendig
- Overflater: Boligen har innvendige overflater som bærer preg av alder og bruksslitasje. Overflatene har varierende tilstand, med registrert normal slitasje samt enkelte merker og lokale skader. Det er liten overlapping i parkettskjøten, noe som kan medføre at skjøten lettere åpner seg over tid.
Etasje Bad
- Overflater vegger og himling: Fliser og membran er fra byggår, og det foreligger ikke dokumentasjon på oppgradering eller utskifting. Våtrommet har dermed passert anbefalt teknisk levetid for både tettesjikt og overflater. Det ble ikke registrert synlige skader, lekkasjer eller fuktavvik ved befaring. Det vurderes likevel som økt risiko for funksjonssvikt i tettesjikt og overganger som følge av alder og slitasje. Tilstandsgrad 2 (TG2) settes på bakgrunn av utlevd levetid for tettesjikt og overflatekledning, samt fravær av oppdaterte løsninger i tråd med dagens standard.
- Overflater Gulv: Flisene er fra byggår, og det foreligger ikke dokumentasjon på oppgradering eller utskifting. Våtrommet har dermed passert anbefalt teknisk levetid for overflater. Det ble ikke registrert synlige skader, lekkasjer eller fuktavvik ved befaring. Det vurderes likevel som økt risiko for funksjonssvikt i tettesjikt og overganger som følge av alder og slitasje. Tilstandsgrad 2 (TG2) settes på bakgrunn av utlevd levetid for tettesjikt og overflatekledning, samt fravær av oppdaterte løsninger i tråd med dagens standard.
- Sluk, membran og tettesjikt: Mer enn halvparten av forventet brukstid er passert på membranløsningen.
Helse, miljø og sikkerhet
Det er ikke foretatt radonmålinger, og bygget er heller ikke utført med radonsperre. Det bør gjennomføres radonmålinger. Eiendommen ligger i et område med moderat til lav aktsomhetsgrad for radon, ifølge tilgjengelige kartdata. Det er ikke krav om radonmåling i egen bolig, men det gjelder krav til måling i eventuelle utleieenheter i henhold til forskrift om strålevern og bruk av stråling. Det anbefales å gjennomføre radonmåling for å kartlegge radonnivået og sikre et trygt innemiljø. Manglende måling medfører usikkerhet om radonnivået, noe som kan innebære helserisiko ved forhøyede verdier.
Selgers egenerklæring informerer om følgende:
Eiendommen selges med fullmakt. Fullmaktshaver har ikke bebodd eiendommen og har derfor ikke spesifikk kunnskap om den. Det kan derfor være feil og mangler ved eiendommen som det ikke er spesifikt opplyst om. Kjøper oppfordres derfor til å foreta en særlig grundig undersøkelse av eiendommen, gjerne med bistand av teknisk sakkyndig.
Det er ikke ildsted i boligen.
Se supplerende og utfyllende tekst, herunder konsekvenser/tiltak, i tilstandsrapporten og selgers egenerklæring. Kjøper overtar ansvar og risiko for dette.
Moderniseringer og påkostninger
Følgende moderniseringer er foretatt de senere år:
2022/23:
- Oppgradering av el-anlegg
- Installert markise på soverom
2020:
- Installert luft-til-luft varmepumpe
2025:
- Installert markise på terrasse
Ukjent årstall:
- Satt inn lufte luker og avtrekksvifte bad
Standard
Eiendommen er en selveierleilighet i en flermannsbolig, opprinnelig en skolebygning fra 1960-tallet som ble ombygd til boligformål i 2001. Byggeåret 2001 er lagt til grunn for den aktuelle boenheten. Yttervegger over grunnmur er utført i bindingsverk med liggende dobbeltfalset trekledning. Etasjeskiller er av betongdekke. Taket er flatt, tekket med PVC-folie, over undertak av rupanel og trefiberplater. Bygningen har malte trevinduer med 2-lags glass, hvor vinduer på soverom og stue er datostemplet 2000. Innvendige vannledninger er i kobber fra byggeåret, og avløpsrør er av plast. Boligen har naturlig ventilasjon samt mekanisk avtrekk fra baderom. En luft-til-luft varmepumpe fra 2020 er installert i stuen. Det elektriske anlegget er utstyrt med automatsikringer og jordfeilbryter, og ble kontrollert av sertifisert elektrofirma i 2023, med nødvendige utbedringer utført. Det foreligger godkjente og byggemeldte tegninger som stemmer med dagens bruk. Det er ikke foretatt radonmålinger, og bygget er heller ikke utført med radonsperre, noe som anbefales å kartlegge. Det er avvik på innvendige overflater som bærer preg av alder og bruksslitasje, samt liten overlapping i parkettskjøten. Det er ikke utarbeidet tilstandsanalyserapport for fellesdeler i bygget.
KJØKKEN:
Kjøkkeninnredning fra 2001 med folierte fronter, rustfri oppvaskbenk og kummer, samt laminerte benkeplater. Rommet er utstyrt med kjøkkenventilator med avtrekk ut. Det er kun oppvaskmaskin som medfølger av hvitevarer. Det gjøres oppmerksom på at oppvaskmaskinen er kjøpt for noen år tilbake, og kjøper må forvente slitasje som følge alder og normal bruk.
BAD:
Baderommet er fra 2001 og har flislagte gulv med elektriske varmekabler og flislagte vegger. Innredningen inkluderer dusjkabinett, klosett, servant i baderomsinnredning og opplegg for vaskemaskin. Ventilasjon er ivaretatt med elektrisk styrt vifte og tilluft under dør. Innvendige vannledninger er utført i kobber fra byggeåret, og avløpsrør er av plast. Det er plastsluk og synlig smøremembran kun ved sluk. Fliser, membran og tettesjikt er fra byggeår og har passert anbefalt teknisk levetid.
Overflater:
Gulvoverflater: Parkett i oppholdsrom og soverom. Vegger: Plater med tapetserte og malte overflater. Himling: Malte plater.
Lagring:
Eiendommen inkluderer en frittliggende hage-/redskapsbod med et bruksareal på 5 m². Boden har vegger i bindingsverk kledd med trekledning, saltak tekket med betongtakstein og en malt inngangsdør.
For fullstendig teknisk informasjon om boligen, se punktet Byggemåte i salgsoppgaven.
Løsøre og tilbehør
Vi viser til liste fra Norges Eiendomsmeglerforbund som gjelder fra 01.01.2020 angående løsøre og tilbehør.
Oppvarming
Elektrisk oppvarming med elektriske ovner og/eller varmekabler. Elektriske varmekabler på bad. Boligen har en luft-til-luft varmepumpe fra 2020, plassert i stuen.
Selger har avtalt Norgespris på strøm på eiendommen, frem til 31. des 2026, og denne er pt på 50 øre inkl mva. Nettleie, avgifter og påslag fra kraftleverandøren kommer i tillegg. Er det fjernvarme vil det også komme kostnader i tillegg.
Denne avtalen vil følge eiendommen i den avtalte perioden.
Les mer om Norgespris her: https://www.regjeringen.no/no/aktuelt/legg-fram-lov-om-norgespris-pa-straum-og-fjernvarme/id3102642/
Ferdigattest/brukstillatelse
Det er utstedt ferdigattest for "Ombygging til bolig - Ferdigattest for mellombygg M1, M2, M3, M4 og M5" datert 03.06.2008. Denne kan fås ved henvendelse til megler.
At slike tillatelser/attester eksisterer gir ingen garanti for at det ikke senere er utført arbeider som ikke er byggemeldt/godkjent.
Det foreligger i tillegg følgende dokumentasjon for eiendommen:
- Ferdigattest for "Ombygging til bolig - Ferdigattest for atriumsboligene A, B og C (leilighet A3, A4, B2, B7, B9, C5)" datert 03.06.2008.
- Ferdigattest for "Ombygging til bolig - Ferdigattest Bygg D" datert 03.06.2008.
- Ferdigattest for "Ombygging til bolig - Ferdigattest for Bygning E" datert 03.06.2008.
- Midlertidig brukstillatelse for "Ombygging/bruksendring fra skole til bolig" (gjelder mellombygg M1, M2, M3, M4 og M5) datert 07.08.2003.
- Midlertidig brukstillatelse for "Ombygging/bruksendring fra skole til boliger" (gjelder atriumsbygningene A, B og C) datert 16.11.2001.
Det foreligger godkjente og byggemeldte tegninger, som stemmer med dagens bruk. Tegninger datert 12.05.2004 er lagt til grunn. Disse kan fås ved henvendelse til megler.
Tinglyste heftelser og rettigheter
Eiendommen overdras fri for pengeheftelser
Sameiet har legalpant for krav mot sameieren som følger av sameieforholdet iht. eierseksjonsloven § 31. Pantet er begrenset oppad til 2G (G = folketrygdens grunnbeløp).
Det er tinglyst 2 servitutter på sameiets eiendom. Disse omhandler blant annet bestemmelse om vann/kloakkledning og seksjonering.
Servituttene vil følge eiendommen. Kjøpers bank vil få prioritet etter ovennevnte heftelser og servitutter.
Eventuell adgang til utleie
Leiligheten kan leies ut såfremt leiligheten har forsvarlige radonverdier. Leietaker må følge sameiets vedtekter og ordensregler på lik linje som eier.
Det gjøres oppmerksom på at ny leier må godkjennes av sameiet ved styret. Godkjenning kan bare nektes dersom det foreligger saklig grunn. Ny leier har ikke rett til å bruke seksjonen før godkjenning er gitt.
Energimerking
Denne boligen er energimerket. På en skala fra A til G, der A er best, har denne boligen oppnådd D (en normalbolig vil gjerne ligge i området C-F). Kopi av energiattest ligger vedlagt i salgsoppgaven eller kan fås ved henvendelse til megler.
Beliggenhet og tomteforhold
Beliggenhet og tomteforhold
Beliggenhet
Leiligheten har en fin beliggenhet, med en vestvendt terrasse som gir gode solforhold. Beliggenheten er både sentrumsnær og sjønær, med få minutters kjøreavstand til populære Ringshaugstranden og Vallø småbåthavn, hvor det er flotte muligheter for bading, båtliv og rekreasjon.
I nærområdet finner du et godt utvalg av butikker og servicetilbud. Det er kort vei til Olsrød Park kjøpesenter, som blant annet har REMA 1000, diverse butikker, banktjenester og LEVEL treningssenter. I tillegg er det gangavstand til MENY, Mester Grønn og flere andre butikker og servicetilbud på Tolvsrød, noe som gjør hverdagen både enkel og praktisk.
Avstanden til Tønsberg sentrum og jernbanestasjonen er kun 3,2 km, med gode kollektivforbindelser og enkel tilgang med bil, sykkel eller buss. Her får du et komfortabelt og lettvint hverdagsliv, samtidig som du bor i et rolig og naturnært område med kort vei til både by og sjø.
Leiligheten sogner til Presterød skolekrets. Det er kort vei til flere barnehager i nærmiljøet.
Informasjon om tilhørende skolekretser er hentet fra Prognosesenteret som dataleverandør og tilhørigheten kan årlig endres av kommunen. Dersom skole- og barnehagetilbud er av betydning for kjøpet, ber vi om at det rettes en særskilt henvendelse til kommunen for oppdatert informasjon.
Adkomst
Fra Tønsberg følg veien i retning Åsgårdstrand forbi Kilen handelsområde og videre forbi rundkjøringen på toppen av Presterødbakken fortsett videre mot rundkjøring på Olsrød, ta første avkjøring til høyre inn Valløveien. Følg denne frem til første vei til høyre, kjør inn i Glitneveien som går langs jordet her går Iduns vei inn som andre vei på venstre side. Iduns vei deler seg, ta første stikkvei inn til høyre som går inn på felles gårdsplass.
Det vil bli skiltet med Krogsveen visningsskilt ved fellesvisninger.
Beskrivelse av tomt
Eiertomt på 18.375,4 kvm som tilhører sameiet. Fellesarealene består av gårdsplass og interne veier. Uteområdene er pent opparbeidet med plenarealer og beplantning. Det er ikke tillatt med ytterligere beplantning uten styrets godkjennelse. Oppgitt tomteareal er hentet fra digitalt eiendomskart fra Tønsberg kommune. Oppgitt/anslått areal kan derfor avvike fra nøyaktig areal.
Parkering
- Det medfølger ingen fast parkeringsplass eller garasje. Det er liste for leie av garasje. Det er 2 på liste p.t.
- Det er greit med biloppstillingsplasser på felles p-plass. Ingen oppmerkede plasser, første mann til mølla prinsippet.
- Det er mulighet for lading av el-bil, 1 lader pt. Det benyttes app for å benytte el.bil laderen.
Vei, vann og avløp
Eiendommen har adkomst via kommunal vei (Iduns vei). Eiendommen er tilknyttet kommunalt ledningsnett via private stikkledninger. Sameiet er ansvarlig for private stikkledninger til bygningen. Eiendommen har vannmåler.
Regulerings-og arealplaner
Eiendommen er regulert etter reguleringsplan med ID 53021, «Preseterød gamle ungdomsskole», vedtatt 16.02.2000, med tilhørende reguleringsbestemmelser. Innenfor planen er 13065,78 m² av eiendommen regulert til boliger, 3387,44 m² til felles avkjørsel, 1172,08 m² til felles grøntareal, 749,47 m² til annet byggeområde, og 461,24 m² til høyspenningsanlegg.
Eiendommen omfattes også av detaljregulering med ID 20110034, «Avlastningsboliger ved Hugins vei», vedtatt 12.10.2011, med tilhørende reguleringsbestemmelser. Denne planen gjelder en annen del av hovedeiendommen og berører ikke denne seksjonen direkte.
Eiendommen omfattes av «Kommuneplanens arealdel 2023 - 2035», vedtatt 03.04.2024. Arealbruken er i planen avsatt til boligbebyggelse - nåværende.
Eiendommen berøres av hensynssone H310, Ras- og skredfare, i henhold til kommuneplanen. Det er ikke tillatt med tiltak innenfor områder angitt som faresone H310 uten at den aktuelle faren er vurdert og sikkerheten ivaretatt. Ved arealplanlegging og søknad om tiltak innenfor områder angitt som faresoner skal det foretas undersøkelse av den aktuelle faren og redegjøres for nødvendige sikringstiltak.
Eiendommen berøres av hensynssone H320, Flomfare, i henhold til kommuneplanen. Det er ikke tillatt med tiltak innenfor områder angitt som faresone H320 uten at den aktuelle faren er vurdert og sikkerheten ivaretatt. Ved arealplanlegging og søknad om tiltak innenfor områder angitt som faresoner skal det foretas undersøkelse av flomfaren og redegjøres for nødvendige sikringstiltak.
Eiendommen berøres av hensynssone H370, Høyspenningsanlegg (inkl høyspentkabler), i henhold til kommuneplanen. Det er ikke tillatt med ny bebyggelse innenfor hensynssonen. Alt anleggsarbeid og alle tiltak i terrenget innenfor hensynssonen skal på forhånd avklares med ledningseier.
Utsnitt av plan med tilhørende bestemmelser kan fås ved henvendelse til megler.
Økonomi
Økonomi
Boligens kostnader
Totale fellesutgifter er kr 3 537,- per måned. Felleskostnadene inkluderer: Forsikring, Bredbånd/tv, utvendig vedlikehold, forretningsførsel mm. Samt á konto strøm på kr 800,-, beløpet kan justeres etter eget ønske for nye eiere. Se regnskap for utfyllende informasjon.
Ifølge referat fra styremøte 12.03.2026 vurderer styret å bytte ytterdører og utbedre brannalarmanlegget. Kostnadene for dette er ikke avklart, men det kan medføre en økning i fellesutgiftene. Det er også planlagt maling av alle yttervegger i 2027.
Fellesutgiftene justeres normalt en til to ganger årlig i forhold til sameiets faktiske utgifter.
Forretningsfører informerer om at innbetaling av strømutgiftene varierer litt, minimum ved årsslutt, men ofte 3-4 ganger i året. De som har penger til gode eller er omtrent i null ved avregning, får ikke avregning, da dras det bare med videre. Det er de som skylder +500.- som får faktura. Ved avregning ved årsslutt utbetales det som eventuelt er innbetalt for mye i løpet av året.
Selgers fullmektig har ikke bebodd eiendommen og har således ikke kjennskap til øvrige løpende utgifter for eiendommen.
Utgiftene er basert på nåværende eiers forbruk. Kjøper må selv tegne innboforsikring.
Kommunale utgifter
Kommunale avgifter inkluderer vann, avløp og renovasjon.
Årsprognose for 2026:
- Forskudd vann - VM: kr 1 510,28,-
- Fastledd vann: kr 1 562,85,-
- Forskudd avløp - VM: kr 2 146,08,-
- Fastledd avløp: kr 2 807,15,-
- Standard renovasjon: kr 3 688,00,-
- Rabatt fellesløsning: kr -553,20,-
- Rabatt redusert restavfallsvolum: kr -360,00,-
Totalt: kr 10 801,16,-
Eiendommen har vannmåler. Siste avlesning 28.12.2025 viste et forbruk på 66 m³ for 2025. Ifølge SSB er estimert gjennomsnittlig husholdningsforbruk pr. person 65 m³.
Andre løpende kostnader oppgitt av selger:
- Strøm: Norgespris er tegnet, men årlig kostnad og forbruk er ikke oppgitt.
- TV/Internett: Inkludert i fellesutgiftene.
- Alarm: Abonnement følger ikke med salget.
Utgiftene er basert på nåværende eiers forbruk og avtaler.
Formuesverdi
Formuesverdi for 2024 var kr 728 326,- ifølge selgers skattemelding/Skatteetaten. Beløpet forutsetter at eier bor fast i boligen (primærbolig).
Ved eventuell øvrig bruk av eiendommen (f.eks. fritidsbolig, pendlerbolig, utleieobjekt) var formuesverdien for 2023 kr 2 913 302,-.
Fra 2026 har Stortinget vedtatt en oppdatert modell for beregning av formuesverdi for primærbolig, så avvik kan forekomme.
For mer informasjon se skatteetaten.no
Opplysninger om fellesgjeld
Det er pr. 03.03.2026 ingen lån registrert på sameiet.
Omkostninger
3 150 000,00 Prisantydning
Omkostninger
78 750,00 Dokumentavgift til staten (2,5% av kjøpesum)
19 900,00 Gjensidige Boligkjøperpakke (valgfri)
545,00 Tinglysing panterettsdokument
545,00 Tinglysing skjøte
--------------------------------------------------------
99 740,00 Omkostninger totalt
--------------------------------------------------------
3 249 740,00 Totalpris inkl. omkostninger
--------------------------------------------------------
Dersom sameiet har fellesgjeld, vil leilighetens andel av fellesgjelden komme i tillegg til kjøpesummen. Denne gjelden skal ikke innbetales i oppgjøret, men følger leiligheten.
Totalpris inkl. omkostninger forutsetter kjøp til prisantydning.
Det tas forbehold om endringer i avgifter og gebyrer.
Tilbud om lånefinansiering
Megler formidler gjerne kontakt med rådgiver hos vår samarbeidspartner BN Bank. De har konkurransedyktige betingelser samt rask og løsningsorientert behandling av din lånesøknad. Krogsveen mottar et honorar dersom lån opprettes.
Annen viktig informasjon
Annen viktig informasjon
Eier
Unni Johanne Steen
Informasjon om forkjøpsrett
Eiendommen er seksjonert, og leiligheten er tilknyttet Sameiet Presterødtunet med sameiebrøk 80/4500.
Sameiet består av 50 leiligheter og 1 garasjeseksjon.
Forretningsfører er HEIMTUN REGNSKAP & RÅDGIVNING AS, tlf. 406 39 775.
Dugnad må påregnes.
Iht. sameiets vedtekter må kjøper godkjennes av styret som ny sameier. Det er kjøpers ansvar at styregodkjenning blir gitt, men styret kan ikke nekte godkjenning uten saklig grunn.
Vi gjør videre oppmerksom på at det iht. eierseksjonsloven ikke er anledning å erverve mer enn 2 seksjoner i sameiet, her teller også eierskap via. firma, nærstående og familie. Kjøper har risikoen for at overskjøting på denne bakgrunn kan nektes av Statens Kartverk. I så fall vil kjøper uansett være forpliktet til å gjennomføre handelen, og oppgjør til selger vil finne sted tross manglende overskjøting.
Konferer med megler for mer informasjon.
Dokumenter for sameiet og kopi av seksjonsbegjæringen kan fås ved henvendelse til megler.
Overtakelse
Etter nærmere avtale.
Boligselgerforsikring
Selger har i forbindelse med salget tegnet boligselgerforsikring levert av Gjensidige.
Boligselgerforsikringen dekker selgers ansvar etter avhendingsloven begrenset oppad til kr 14 millioner. Dersom kjøper oppdager forhold ved eiendommen som hen mener utgjør en mangel ved eiendommen, vil Gjensidige behandle reklamasjonen på vegne av selger. Forsikringsvilkår kan fås ved henvendelse til megler.
Vedlagt salgsoppgaven følger selgers egenerklæringsskjema og tilstandsrapport. Interessenter må sette seg inn i dokumentene før bud inngis.
Boligkjøperforsikring
Innen kontraktsmøtet må kjøper ta stilling til om det ønskes å bestille Boligkjøperpakken gjennom Gjensidige. I denne gunstige pakken er boligen ferdig forsikret og inkluderer rettshjelpsforsikring, også kalt Boligkjøperforsikring. Rettshjelpsforsikring gir trygghet og tilgang på profesjonell juridisk hjelp dersom det oppdages uventede feil eller mangler det første året etter overtagelse. Forsikringsselskapet behandler i så fall ethvert mangelskrav kjøper måtte ha overfor selger.
Boligkjøperpakken inkluderer bygningsforsikring for hus og hytte, innboforsikring, flytteforsikring og dobbel rentedekning - i situasjoner hvor kjøper ikke får solgt nåværende primærbolig.
Kjøper mottar ingen særskilt faktura for Boligkjøperpakken da kostnaden det første året legges til kjøpesummen for boligen. Det gjøres oppmerksom på Krogsveen mottar et honorar for denne formidlingen.
Produktark for Boligkjøperpakken ligger vedlagt i salgsoppgaven.
Dersom ikke boligkjøperpakke ønskes kan kun rettshjelpsforsikring, også kalt boligkjøperforsikring, tegnes særskilt via megler. Rettshjelpsforsikringen varer i 5 år fra overtagelse og leveres gjennom Gjensidige. Ta kontakt med megler for ytterligere informasjon.
Selskap og privatpersoner som driver med kjøp/salg/utvikling som ledd i egen næringsvirksomhet kan ikke tegne boligkjøperpakke eller rettshjelpsforsikring.
Budgivning
Forbrukerinformasjon om budgivning er vedlagt denne salgsoppgaven og er også på vår hjemmeside Krogsveen.no. Alle bud og budforhøyelser må inngis skriftlig. I tillegg må legitimasjon være fremlagt sammen med signatur fra budgiver.
Vi oppfordrer til å gi bud elektronisk via GI BUD-knappen på eiendommens hjemmeside på Krogsveen.no. Da vil samtlige vilkår bli oppfylt.
Eventuelle forhøyelser eller endringer av budet kan bekreftes pr SMS eller på e-post. Vi oppfordrer alltid til å kontakte megler pr. telefon i tillegg da forsinkelser i SMS og e-post kan forekomme.
For at budene skal kunne bli behandlet og videreformidlet skriftlig til alle involverte parter, må alle bud ha en tilstrekkelig lang akseptfrist, jf. eiendomsmeglingsforskriften § 6-3.
Selger må også skriftlig akseptere budet før aksept kan formidles til budgiver. Akseptfrist bør derfor være på minimum 30 minutter, og budforhøyelser må derfor skje i god tid før fristens utløp.
Bud i forbrukerforhold kan uansett ikke settes med kortere frist enn kl. 12.00 første virkedag etter siste annonserte visning. I tillegg kan ikke budet ha forbehold om at det skal holdes hemmelig ovenfor øvrige interessenter. Megler har iht lov om eiendomsmegling ikke anledning til å videreformidle disse budene, og de vil dermed heller ikke bli journalført.
Etter at eiendommen er solgt vil kjøper og selger få tilsendt budjournal. Øvrige budgivere kan få utlevert kopi av budjournalen i anonymisert form.
Hvitvaskingsreglene
I henhold til lov om hvitvasking og terrorfinansiering har megler plikt til å gjennomføre kontrolltiltak overfor kunder, herunder fullmektiger. Dette innebærer bl.a. å bekrefte kunders og reelle rettighetshaveres identitet på bakgrunn av fremvist gyldig legitimasjon eller på annen godkjent måte, samt å innhente opplysninger om kundeforholdets formål og tilsiktede art.
Dersom slike kundetiltak ikke kan gjennomføres, kan megler ikke etablere kundeforholdet eller utføre transaksjonen.
Hvis kjøper ikke bidrar til gjennomføring av kundekontrollen og dette fører til at transaksjonen blir forsinket eller ikke kan gjennomføres, vil dette ansees som mislighold av avtalen og gi selger rettigheter etter avhendingslova kapittel 5. I tilfeller der selger ikke bidrar til gjennomføring av løpende kundekontroll underveis i oppdraget, er det selger som misligholder sine forpliktelser etter avtalen og gi kjøper rettigheter etter avhendingslovens kapittel 4. Partene er selv ansvarlige for eventuelle kostnader og ansvar dette kan medføre. Eiendomsmegleren eller eiendomsmeglingsforetaket kan ikke holdes ansvarlig for de konsekvenser dette vil kunne få for partene eller andre som har interesser i eiendomshandelen.
Kjøper oppfordres til å innbetale kjøpesummen som ikke kommer fra låneinstitusjon i én samlet innbetaling fra egen konto i norsk bank. Megler har plikt til å melde fra til Økokrim om eiendomshandler som fremstår som mistenkelige. Melding sendes Økokrim uten at partene varsles.
Personopplysningsloven
I henhold til personopplysningsloven gjør vi oppmerksom på at interessenter kan bli registrert for videre oppfølging.
Lovanvendelse
Generelle bestemmelser
Salgsoppgaven er basert på de opplysningene selger har gitt til megler, den bygningssakyndiges tilstandsrapport, samt opplysninger innhentet fra kommunen, Kartverket og andre tilgjengelige kilder. Det er viktig at kjøper setter seg grundig inn i alle salgsdokumentene, herunder salgsoppgave, tilstandsrapport og selgers egenerklæring. Kjøper anses kjent med forhold som er tydelig beskrevet i salgsdokumentene, og slike forhold kan ikke påberopes som mangler. Dette gjelder uavhengig av om kjøper har lest dokumentene. Alle interessenter oppfordres til å undersøke eiendommen nøye, gjerne sammen med fagkyndig før bud inngis. Kjøper som velger å kjøpe usett kan ikke gjøre gjeldende som mangel noe han burde blitt kjent med ved undersøkelsen.
Dersom det er behov for avklaringer, anbefaler vi at interessenter rådfører seg med eiendomsmegler eller egne rådgivere før det legges inn bud.
En bolig som har blitt brukt i en viss tid, har vanligvis blitt utsatt for slitasje og skader kan ha oppstått. Slik bruksslitasje må kjøper regne med, og det kan avdekkes enkelte forhold etter overtakelse som nødvendiggjør utbedringer. Normal slitasje og skader som nødvendiggjør utbedring, er innenfor hva kjøper må forvente og vil ikke utgjøre en mangel.
Kjøper og selgers rettigheter og plikter reguleres av avtalen mellom partene, samt informasjonen som har vært tilgjengelig for kjøperen i forbindelse med handelen. Avtalen utfylles av avhendingsloven, og det gjelder ulike avtalevilkår avhengig av om kjøper er forbrukerkjøper eller ikke. Dette er nærmere beskrevet nedenfor.
På grunn av ulike avtalevilkår kan selger vurdere bud fra en som ikke er forbruker, ulikt fra en forbrukers bud. Dersom kjøper ikke er forbruker, er selger sitt mulige mangelsansvar begrenset fordi eiendommen selges "som den er". Selger kan ikke ta «som den er»- forbehold overfor en forbrukerkjøper. Selv et lavere bud fra en som ikke er forbruker kan foretrekkes fordi begrensningen i mulig mangelsansvar kan ha egenverdi for selger. Selger står fritt til å forkaste eller akseptere ethvert bud, og er for eksempel ikke forpliktet til å akseptere høyeste bud.
Budgiver skal i budskjema avgi egenerklæring om budgiver er forbruker eller næringsdrivende/ person som hovedsakelig handler som ledd i næringsvirksomhet. Budgivere får informasjon dersom andre bud er inngitt av en som ikke er forbruker.
Forbrukerkjøp - definisjon
Med forbrukerkjøp menes kjøp av eiendom når kjøperen er en fysisk person som ikke hovedsakelig handler som ledd i næringsvirksomhet.
Forbruker – avtalevilkår
Eiendommen har en mangel dersom den ikke er i samsvar med kravene som følger av avtalen, eller det foreligger brudd på bestemmelsene i avhendingsloven §§ 3-2 til 3-8. Hvis eiendommen ikke er i samsvar med det kjøperen må kunne forvente ut ifra alder, type og synlig tilstand, kan det være grunnlag for mangelskrav. Det samme gjelder hvis det er holdt tilbake eller gitt uriktige opplysninger om eiendommen. Dette gjelder likevel bare dersom man kan gå ut ifra at det virket inn på avtalen at opplysningen ikke ble gitt eller at mangelskravet ikke blir rettet i tide på en tydelig måte.
Boligen kan ha en mangel etter avhendingsloven § 3-3 andre ledd, dersom det er avvik mellom opplyst og faktisk innvendig areal, forutsatt at avviket er på 2% eller mer og minimum 1 kvm.
Ved beregning av et eventuelt prisavslag eller erstatning må kjøper selv dekke tap/kostnader opptil et beløp på kr 10 000 (egenandel).
Ikke-forbruker (næringsdrivende) – definisjon
Hvis kjøper er en juridisk person, eller en fysisk person som hovedsakelig handler som ledd i næringsvirksomhet, vil kjøpet ikke anses som et forbrukerkjøp.
Ikke-forbruker – avtalevilkår
Eiendommen har en mangel dersom den ikke er i samsvar med kravene som følger av avtalen.
Eiendommen selges «som den er», og selgers ansvar utover det konkret avtalte er da begrenset etter avhendingsloven § 3-9, første ledd andre setning.
Avhendingsloven § 3-3 andre ledd fravikes, og hvorvidt boligens arealsvikt utgjør en mangel vurderes etter avhendingsloven § 3-8.
Informasjon om kjøpers undersøkelsesplikt, herunder oppfordringen om å undersøke eiendommen nøye, gjelder også for kjøpere som ikke anses som forbrukere.
Det forutsettes at hjemmel overføres til kjøper. Hvis kjøper ikke ønsker hjemmelsoverføring av eiendommen, må det tas forbehold om dette i budet.
Meglers vederlag
Meglers vederlag betales av selger og er avtalt til:
Fastpris: 36 000,-
Vederlag:
Kontroll av hjemmel og heftelser kr 4 500,00
Markedsføringspakke, stor kr 29 900,00
Oppgjør kr 8 900,00
Tilrettelegging kr 16 900,00
Visninger pr stk / Overtagelse 3500,-. 1 stk. er inkl. kr 3 500,00
Utlegg:
Innhenting av offentlig opplysninger Tønsberg kommune m/formues kr 3 633,00
Tinglysing sikring kr 545,00
Andre utgifter:
Boligselgerforsikring Gjensidige Eiet - regnes av prisantydning - kr 18 272,00
Fotopakke, inkl. plantegninger og dronefoto kr 4 000,00
Tilstandsrapport kr 13 300,00
Vi er opptatt av verdiskapning, og har knyttet til oss samarbeidspartnere som skal sikre våre kunder de beste produkter og tjenester;
• I forbindelse med forberedelse av salget, innhenter vi informasjon om eiendommen hovedsakelig fra vår samarbeidspartner Ambita.
• Gjensidige leverer boligselgerforsikring og tilbyr bygningsforsikring
• Boligkjøperforsikring leveres av Hiscox og med Sedgwick som skadebehandler, og er formidlet gjennom Gjensidige.
• BN bank tilbyr finansieringsløsninger
• Vår avdeling Krogsveen Pluss tilbyr flyttetjenester som utvask, visningsvask, lager, tømming og transport av flyttelass, i tillegg til å formidle kontakt med Flip for overflateoppussing.
• I forbindelse med overtagelse av eiendommen tilbyr Overo avtale om strøm, alarm og bredbånd.
• Krogsveen er, sammen med øvrige bransjeaktører, medeier i Bomega AS som tilbyr den digitale annonseringsplattformen Hjem.
Opplysninger om oppdraget
Oppdragsnummer 21-0034/26
Eiendomsmegler Krogsveen AS, avd. Tønsberg
Torvgaten 6, 3110, TØNSBERG
NO 950 007 613 MVA
Oppdragets KR-kode KR21.2634
Dato
Sist oppdatert: 17. mars 2026 kl. 13:37
Dokumenter
Dokumenter
PDF – 950 KB
PDF – 3 MB
PDF – 764 KB
PDF – 12 MB
PDF – 312 KB
PDF – 29 KB
PDF – 127 KB
PDF – 392 KB
Område
Legg til steder som er viktige for deg
Visning
For å delta på visning, ber vi om at du melder deg på. Da sikrer vi at du får nødvendig informasjon og at det er satt av tilstrekkelig med tid. Kontakt megler dersom annet tidspunkt ønskes. Husk å lese salgsoppgaven før visningen, så du stiller forberedt.
Ønsker du kun å bli holdt orientert, kan du fra eiendommens hjemmeside få varsel om solgtpris, eller kontakte megler.
Lurer du på noe?
Unngå doble boligrenter
Vi tilbyr gunstig forsikring.
Vurderer du utleie?
Få et tilbud fra Utleie KrogsveenHva koster lånet?
Sjekk estimert lånekostnadVil du varsles om lignende boliger?
Ved å lagre ditt boligsøk hos oss får du beskjed når vi har en bolig som ligner denne, før den legges ut på markedet!

