Lageråvegen 356
2 600 000 kr
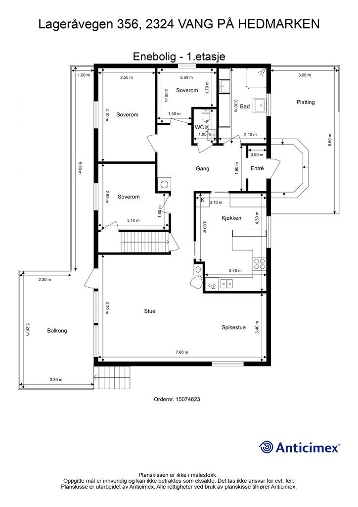
195 m²
3 soverom
Solgt
Vang
Landlig og sjarmerende enebolig i rolige omgivelser - Hobbyverksted, uthus og flotte uteplasser.
Prisantydning
2 600 000 krOmkostninger
85 990 krTotalpris
2 685 990 kr
Pris
Bruksareal
241 m²BRA-I (internt bruksareal)
195 m²BRA-E (eksternt bruksareal)
46 m²TBA (terrasse-balkongareal)
52 m²
Areal
Etasje
2Byggeår
1979Soverom
3 soveromBad
1 badTomteareal
1 458 m² (eiet)Type
Enebolig - FrittliggendeEierform
EietFasiliteter
Garasje/P-plass og Balkong/TerrasseEnergimerke
Oransje F
Nøkkelinfo
Unngå doble boligrenter
Vi tilbyr gunstig forsikring.
Vurderer du utleie?
Få et tilbud fra Utleie KrogsveenHva koster lånet?
Sjekk estimert lånekostnadBeskrivelse
Kort om eiendommen
Velkommen til Lageråvegen 356!
Innholdsrik enebolig på solrik tomt i landlige og barnevennlige omgivelser i Øvre Vang.
Her bor du usjenert med naturen tett på, samtidig som det er kort vei til skole, barnehage, butikk og buss.
Boligen har tre soverom, bad, toalettrom, kjøkken, spisestue og stue med varmepumpe og pelletsovn.
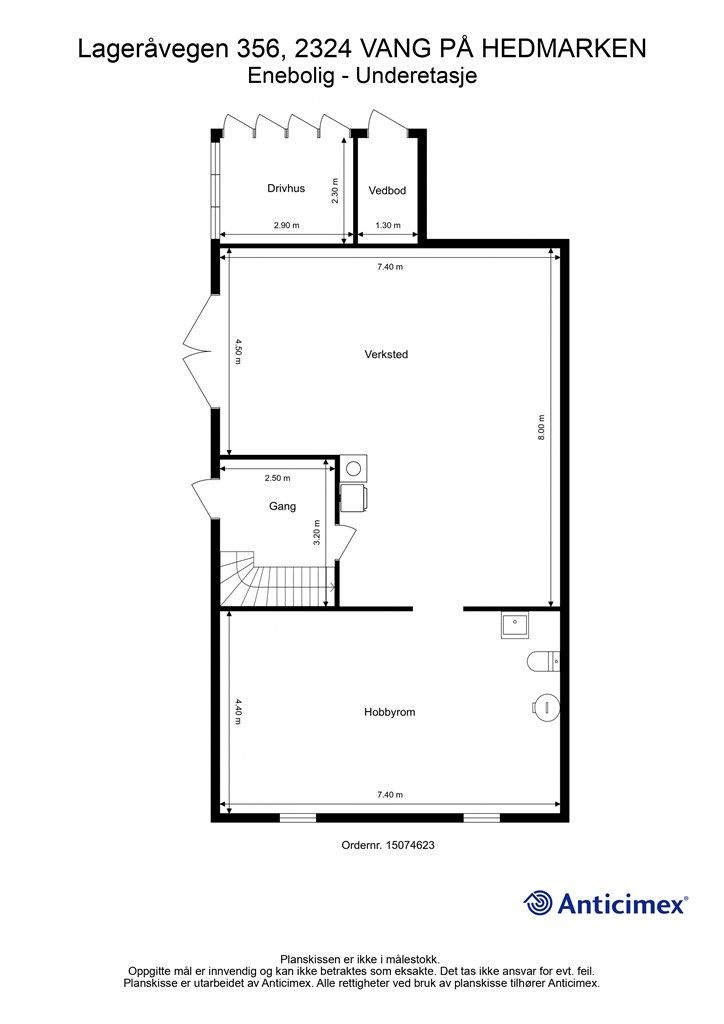
Underetasjen rommer et hobbyverksted med løftebukk, ideelt for enhver hobbymekaniker.
Ute finner du et uthus med garasje, hobbyrom og bod, samt en koselig gapahuk med peis/pizzaovn som gir en flott ramme for sosiale stunder.
Hagen er opparbeidet med plen og beplantning, i tillegg til drivhus for den som vil dyrke selv.
Kort vei til Gåsbu og Budor med flotte frilufts- og aktivitetstilbud året rundt.
Velkommen til en hyggelig visning!
Område
Legg til steder som er viktige for deg
På flyttefot? Tenk kjøp og salg samtidig.
Få din egen rådgiver gjennom hele kjøps- og salgsprosessen. Det starter med en verdivurdering.
Unngå doble boligrenter
Vi tilbyr gunstig forsikring.
Vurderer du utleie?
Få et tilbud fra Utleie KrogsveenHva koster lånet?
Sjekk estimert lånekostnadVil du varsles om lignende boliger?
Ved å lagre ditt boligsøk hos oss får du beskjed når vi har en bolig som ligner denne, før den legges ut på markedet!




