Trevaliglia 2
5 500 000 kr
77 m²
2 soverom
Komplett salgsoppgave

Løkenåsen / Fetsund
Nyere og moderne 3-roms i 5. etasje | Storslagen panorama- og vestvendt utsikt | Garasjeplass | Terrasse 17 kvm | Heis
Prisantydning
5 500 000 krOmkostninger
138 500 krTotalpris
5 638 500 kr
Pris
Bruksareal
82 m²BRA-I (internt bruksareal)
77 m²BRA-E (eksternt bruksareal)
5 m²TBA (terrasse-balkongareal)
17 m²
Areal
Etasje
5Byggeår
2022Soverom
2 soveromBad
1 badType
EierleilighetEierform
EierseksjonFasiliteter
Garasje/P-plass, Heis og Balkong/TerrasseFellesutgifter
4 277 krEnergimerke
Rød B
Nøkkelinfo
Unngå doble boligrenter
Vi tilbyr gunstig forsikring.
Vurderer du utleie?
Få et tilbud fra Utleie KrogsveenHva koster lånet?
Sjekk estimert lånekostnadBeskrivelse
Kort om eiendommen
Innhold og byggemåte
Innhold og byggemåte
Eiendommen
Trevaliglia 2, 1900 FETSUND
Kommunenummer 3205, gårdsnummer 439, bruksnummer 109, seksjonsnummer 33, ideell andel 1/1
Kommunenummer 3205, gårdsnummer 439, bruksnummer 109, seksjonsnummer 87, ideell andel 1/35
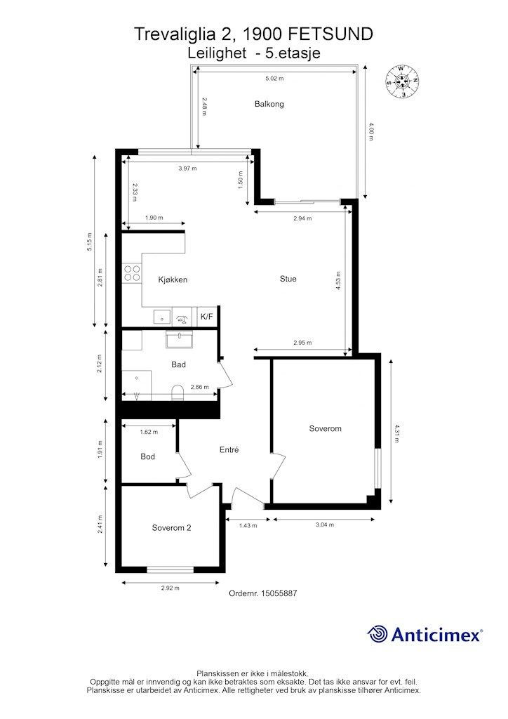
Innhold
BRA-i:
5. etasje 77 kvm: Entrè, bad, to soverom, stue med åpen kjøkkenløsning og bod/garderobe
Åpent areal:
5. etasje 17 kvm: Balkong
BRA-e:
Bod 5 kvm. Boligen disponerer 1 bod i underetasje.
Vedlagte plantegninger er ikke målbare. De oppgitte arealer er hentet fra rapport datert 03.05.2024 utført av Anticimex.
Byggemåte
Selger har fått utarbeidet en tilstandsrapport, dvs. en teknisk gjennomgang av boligen hvor eventuelle avvik, risiko for kjøper og prisoverslag for hva som bør gjøres av oppgradering, er skissert. Se særskilt TGIU (tilstandsgrad ikke undersøkt), samt TG2 og TG3 som viser hva som er avvik fra boligens normale slitasje, alder og type, eller som bør/må utbedres. Rapporten og selgers egenerklæring er en del av salgsoppgaven og må leses nøye før bud inngis. Kjøper overtar ansvaret for de opplysninger som fremkommer av salgsdokumentasjonen, og kan ikke gjøre gjeldende som mangel noe som burde vært kjent eller som ikke kan anses å ha betydning for avtalen.
Bygningen er iht. tilstandsrapporten oppført i tre/mur/betong. Les for øvrig mer om byggemåte og den tekniske tilstanden i rapporten.
Det gjøres oppmerksom på at følgende er gitt TG2 i rapporten:
Overflater vegger på bad.
Kjøper overtar ansvar og risiko for dette.
Standard
E n t r è
Hyggelig og romslig entré hvor det er plass til å montere garderobeløsning.
S t u e /
k j ø k k e n
Innbydende stue med store vindusflater og godt med naturlig lysinnfall.
Med den åpne løsningen mot kjøkkenet er dette et stort og sosialt rom perfekt for middagsgjester og tilstedeværelse i hverdagen.
Det er god plass i stuen for sittemøblement, spisestue og flere muligheter for møblering.
Det er balansert ventilasjon i boligen og varmepumpe er plassert i stuen.
Leiligheten har en stor og vestvendt terrasse på hele 17 kvm. Fantastiske sol- og utsiktsforhold.
Den herlige uteplassen har utebelysning, stikkontakt og elektrisk pergolatak med vegger.
Her kan sommeren virkelig nytes til det fulle.
Den åpne kjøkkenløsningen skilles av fra stuen med en praktisk kjøkkenøy som gir en god arbeidsplass.
Mellom benk og overskap er det flislagte flater, belysning og stikkontakter.
Kjøkkenet er utstyrt med integrerte hvitevarer som nedfelt koketopp, stekeovn, oppvaskmaskin og side-by-side kjøleskap.
Det er montert lekkasjestopper på vannrør og komfyrvakt på platetopp.
Hvitevarene medfølger handelen.
Kjøper må forvente normal slitasje som følge alder og normal bruk.
S o v e r o m
Leilighetene har to soverom. Hovedsoverommet er meget romslig med god plass til både dobbeltseng og stor garderobeløsning.
Det andre soverommet har plass til seng og garderobeskap. Begge soverom har store vinduer som gir godt med naturlig belysning.
B a d
Innbydende bad i nøytrale og klassiske farger.
Innredningen på badet består av servanter på underskap, speil og belysning over.
Vegghengt toalett med innebygget sisterne.
Dusjhjørne med innfellbare glassdører.
Opplegg for vaskemaskin og stikk til tørketrommel.
Downlights i himling og varmekabler i gulv.
B o d
Den innvendige boden har god plass til oppbevaring. Det er montert oppheng for klær og satt inn kommoder.
Aggregat for balansert ventilasjon, samt sikringsskap med automatsikringer er plassert i boden.
I tillegg disponerer boligen en bod i kjeller.
Oppvarming
Boligen har balansert ventilasjon og varmepumpe plassert i stuen.
Varmekabler i gulv på bad.
Dersom beboelsesrom ikke har vegg- eller fastmonterte varmekilder ved visning, følger dette heller ikke med.
Ferdigattest/brukstillatelse
Det foreligger ikke ferdigattest på eiendommen, men midlertidig brukstillatelse ble gitt 03.08.2022.
Tillatelsen er gitt på følgende vilkår:
1. Dere må fullføre det arbeidet som gjenstår og søke om ferdigattest innen 01.07.2025.
2. Forskriftsmessig sikkerhet i bruk skal være etablert.
3. Ved innflytting i del av prosjekt skal all ferdsel for brukere og beboere, herunder spesielt barn være skjermet mot pågående byggearbeider og byggeplass.
4. Nødvendige parkeringsplasser, boder, bod/ stativ for avfall med mer skal være etablert for de boenheter som flytter inn.
5. Adkomst skal være forskriftsmessig sikret for beboere og besøkende (nødetater)
Gjenstående arbeid skal være utført innen 01.07.2025 og bekreftelse om at dette er utført må
deretter sendes kommunen sammen med søknad om ferdigattest.
Ansvarlig søker har ansvar for å søke om ferdigattest.
Kjøper overtar eiendommen slik den framstår på visning.
Tinglyste heftelser og rettigheter
Leiligheten overdras fri for pengeheftelser.
Sameiet har legalpant for krav mot sameieren som følger av sameieforholdet iht. eierseksjonsloven § 31. Pantet er begrenset oppad til 2G, (G = folketrygdens grunnbeløp).
Det er tinglyst følgende servitutter på sameiets eiendom.
Dagboknr 1119296, tinglyst 20.02.2024, type heftelse: Bestemmelse om adkomstrett, bruksrett, vann/kloakk, teknisk rom, medlemskap i velforening/huseierforening og parkering
Servituttene vil følge eiendommen. Kjøpers bank vil få pant etter ovennevnte heftelser og servitutter.
Eventuell adgang til utleie
Leiligheten kan leies ut såfremt leiligheten har forsvarlige radonverdier. Leietaker må følge sameiets vedtekter og ordensregler på lik linje som eier.
Beliggenhet og tomteforhold
Beliggenhet og tomteforhold
Beliggenhet
Eiendommen ligger i et nyetablert, naturskjønt og trafikkstille boligområde på populære Løkenåsen ved Fetsund i Lillestrøm kommune. Eiendommen har en god intern beliggenhet på en høyde i terrenget med nydelig utsikt over nærområdet.
Fra eiendommen er det nærhet til flotte tur- og friluftsområder med utallige skiløyper, samt bademuligheter ved Hvalstjern og Heiavann. Kommunen har også et mangfoldig og variert tilbud innen kultur og idrett.
Fetsund lenser ligger få km unna og er i dag fredet som landets eneste gjenværende fløtningsanlegg. Det er bevart som et enestående kulturminne med verksteder for tradisjonelt håndverk, kafé og museumsbutikk. Fet Golfklubb har en 9-hulls golfbane som ligger i naturskjønne omgivelser nær Nordre Øyeren naturreservat.
Eiendommen sokner og har gangavstand til Riddersand barneskole (2,5 km) med SFO. For elever i ungdomstrinnene er det kort vei til Østersund ungdomsskole (2,4 km). I tillegg finnes det flere barnehager i nærheten. Romerike har flere videregående skoler, og OsloMet - storbyuniversitetet har avdeling på Kjeller ved Lillestrøm.
Området gir mulighet for offentlig kommunikasjon via buss. Nærmeste holdeplass er pt. Klokkerud og ligger ca. 15 minutters gange fra eiendommen. Det er planer om etablering av kollektiv transport over Løkenåsen/Granåsen ifølge selger. Det er meget gode pendlermuligheter fra Svingen togstasjon (3 km) med bl.a. tog til Oslo som tar ca. 22 min.
Dagligvarehandelen kan enkelt gjøres ved bl.a. nærbutikken Joker (1,5 km) eller via Rema1000 og Coop Extra i Fetsund (3,5 km). Fetsund sentrum har for øvrig et variert servicetilbud med blant annet vinmonopol, blomster- og interiørbutikk, flere frisører m.m. Ønsker du ytterligere servicetilbud ligger boligen nært Lillestrøm sentrum som innehar et godt og variert utvalg av butikker, shoppingsenter, post, bank, apotek, mote, vinmonopol, helsetilbud, cafeer, barer, restauranter, kino, kulturhus etc. Strømmen storsenter med over 200 butikker, samt Lørenskog og Oslo sentrum ligger også godt innen rekkevidde via god offentlig kommunikasjon og bil.
Tidsavstander i bil: Fetsund ca. 6 min, Lillestrøm ca. 13 min, Strømmen ca. 18 min, Oslo S ca. 35 min, Gardermoen ca. 42 min.
Barnehager, skoler og fritid
Riddersand skole (1-7 kl.)
Østersund ungdomsskole (8-10 kl.)
Lillestrøm videregående skole
Sørumsand videregående skole
Ramstadskogen barnehage (1-5 år)
Østersund idrettsbarnehage (0-5 år)
Fetsund barnehage (0-5 år)
Informasjon om tilhørende skolekretser er hentet fra Prognosesenteret som dataleverandør, og tilhørigheten kan årlig endres av kommunen. Dersom skole- og barnehagetilbud er av betydning for kjøpet, ber vi om at det rettes en særskilt henvendelse til kommunen/bydelsadministrasjonen for oppdatert informasjon.
Beskrivelse av tomt
Eiertomt på 10 612 kvm som tilhører sameiet. Tomten er fellesareal.
Parkering
Det medfølger en garasjeplass til leiligheten.
For øvrig parkering etter områdets bestemmelser.
Vei, vann og avløp
Eiendommen har adkomst via privat vei med felles vedlikeholdsansvar for Sameiet.
Eiendommen er tilknyttet kommunalt ledningsnett via private stikkledninger.
Sameiet er ansvarlig for private stikkledninger til bygningen.
Regulerings-og arealplaner
Eiendommen er regulert til boligbebyggelse i henhold til detaljreguleringsplan R1401 Løkenåsen 2 - øvre del vedtatt 19.06.2017 med tilhørende reguleringsbestemmelser.
Det er planlagt bebyggelse foran blokkene på naboeiendommen Trevaliglia 6. Byggenes høyde blir ca 13 meter lavere enn bygget denne leiligheten ligger i.
Det må påregnes byggestøy og anleggstrafikk i området.
Utsnitt av plan med tilhørende bestemmelser kan fås ved henvendelse til megler.
Økonomi
Økonomi
Boligens kostnader
Fellesutgiftene er kr 4 277,- pr. mnd. og inkluderer: bredbånd, kommunale avgifter, bygningsforsikring, forretningsførsel, drift og vedlikehold.
Fellesutgiftene justeres normalt en til to ganger årlig i forhold til sameiets faktiske utgifter.
Selger har ikke oppgitt kostnader knyttet til strømforbruk.
Kjøper må selv tegne innboforsikring.
Formuesverdi
Formuesverdi for 2022 var kr 1 293 241,- ifølge skatteetaten. Beløpet forutsetter at eier bor fast i boligen (primærbolig).
Ved eventuell øvrig bruk av eiendommen (f.eks. fritidsbolig, pendlerbolig, utleieobjekt) var formuesverdien for 2022 kr 5 172 964,-.
Formuesverdien justeres normalt årlig. Se skatteetaten.no for mer informasjon om fastsettelse av formuesverdien.
Eiendomsskatt
Eiendomsskatten utgjør kr 2 840,- pr år.
Opplysninger om fellesgjeld
Andel formue er kr 0,- pr. 31.12.2023
Andel fellesgjeld er kr 0,- pr. 05.05.2024
Det er ikke felles lån i sameiet.
Omkostninger
I tillegg til kjøpesummen må kjøper betale:
- Dokumentavgift til staten, 2,5 % av kjøpesummen og leilighetens andel av eventuell fellesgjeld,
samt
- Tinglysingsgebyr for skjøte kr 500,-.
- Tinglysingsgebyr for kjøpers eventuelle panterettsdokumenter kr 500,- pr. stk.
Total kjøpesum inkl. gebyrer/avgifter og evt. øvrige kostnader ved kjøp til prisantydning: kr 5 638 500,-.
I tillegg kommer valgfri Boligkjøperpakke hos Tryg Forsikring på kr 9 250,-
Tilbud om lånefinansiering
Megler formidler gjerne kontakt med rådgiver hos vår samarbeidspartner BN Bank. De har konkurransedyktige betingelser samt rask og løsningsorientert behandling av din lånesøknad. Krogsveen mottar et honorar for denne formidlingen.
Betalingsbetingelser
Kjøpesum inkludert omkostninger, samt pantedokument tilknyttet eventuelt lån, skal være disponibelt hos megler 2 virkedager før overtagelsen.
Annen viktig informasjon
Annen viktig informasjon
Eier
Richard Slorafoss
Informasjon om sameiet
Eiendommen er seksjonert, og leiligheten er tilknyttet Løkenåsen Panorama Sameie, med sameiebrøk 764/29054.
Sameiet består av 35 seksjoner.
Forretningsfører er Oslo og Omegn Boligforvaltning AS
Dugnad må påregnes.
Det er tillatt med dyr (hund/katt) i sameiet med inntil 2 pr leilighet.
Beboere som holder dyr skal sørge for at det ikke sjenerer noen, eller etterlater ekskre-menter på samleiets område.
Det er også et krav at dyrene ikke slippes fritt/ løse i fellesarealene i sameiet.
Det er ikke under noen omstendigheter lov til å holde reptiler eller andre dyr som ikke er lovlig i Norge i leiligheten.
Der er ikke lov til å montere/sette opp skillevegger, markiser, screens el. uten styrets godkjennelse.
Iht. sameiets vedtekter må kjøper godkjennes av styret som ny sameier. Det er kjøpers ansvar at styregodkjenning blir gitt, men styret kan ikke nekte godkjenning uten saklig grunn.
Vi gjør videre oppmerksom på at det iht. eierseksjonsloven ikke er anledning å erverve mer enn 2 seksjoner i sameiet, her teller også eierskap via. firma, nærstående og familie. Kjøper har risikoen for at overskjøting på denne bakgrunn kan nektes av Statens Kartverk. I så fall vil kjøper uansett være forpliktet til å gjennomføre handelen, og oppgjør til selger vil finne sted tross manglende overskjøting.
Konferer med megler for mer informasjon.
Dokumenter for sameiet og kopi av seksjonsbegjæringen kan fås ved henvendelse til megler.
Konsesjon
Da eiendommen er over 2 mål er den i utgangspunktet underlagt konsesjonslovgivning, og kjøper må ved kontrakt undertegne egenerklæring om konsesjonsfrihet. Denne erklæringen må godkjennes fra kommunen før eiendommen kan overskjøtes til kjøper.
Overtakelse
Etter nærmere avtale.
Boligselgerforsikring
Selger har i forbindelse med salget tegnet boligselgerforsikring hos Anticimex. Vedlagt salgsoppgaven følger selgers egenerklæringsskjema og tilstandsrapport. Interessenter må sette seg inn i dokumentene før bud inngis.
Boligselgerforsikringen dekker selgers ansvar etter avhendingsloven. Dersom kjøper oppdager forhold ved eiendommen som man mener utgjør en mangel ved eiendommen, vil Claims Handling AS behandle reklamasjonen på vegne av selger. Forsikringsvilkår kan fås ved henvendelse til megler.
Boligkjøperforsikring
Innen kontraktsmøtet må kjøper ta stilling til om det ønskes å bestille Boligkjøperpakken gjennom Tryg. I denne gunstige pakken er boligen ferdig forsikret og inkluderer fri rettshjelpsdekning i 1 år, dvs at de behandler ethvert mangelskrav kjøper måtte ha overfor selger.
For alle boligtyper, unntatt tomter, inneholder Boligkjøperpakken innboforsikring, renteforsikring(unntatt fritidsbolig) - i situasjoner hvor kjøper ikke får solgt nåværende primærbolig – og flytteforsikring. I tillegg inneholder den husforsikring for alle hus og hytter forutsatt at eiendommen ikke har seksjonsnummer/andel (tilhører et sameie/borettslag).
Kjøper mottar ingen særskilt faktura for Boligkjøperpakken da kostnaden det første året legges til kjøpesummen for boligen. Les mer om forsikringen i informasjonsarket fra Tryg. Krogsveen mottar et honorar for denne formidlingen.
Budgivning
Forbrukerinformasjon om budgivning er vedlagt denne salgsoppgaven og er også på vår hjemmeside www.krogsveen.no. Alle bud og budforhøyelser må inngis skriftlig. I tillegg må legitimasjon være fremlagt sammen med signatur fra budgiver.
Vi oppfordrer til å gi bud elektronisk via GI BUD-knappen på eiendommens hjemmeside på Krogsveen.no. Da vil samtlige vilkår bli oppfylt.
Eventuelle forhøyelser eller endringer av budet kan bekreftes pr SMS eller på e-post. Vi oppfordrer alltid til å kontakte megler pr. telefon i tillegg da forsinkelser i SMS og e-post kan forekomme.
For at budene skal kunne bli behandlet og videreformidlet skriftlig til alle involverte parter, må alle bud ha en tilstrekkelig lang akseptfrist, jf. eiendomsmeglingsforskriften § 6-3.
Selger må også skriftlig akseptere budet før aksept kan formidles til budgiver. Akseptfrist bør derfor være på minimum 30 minutter, og budforhøyelser må derfor skje i god tid før fristens utløp.
Bud kan uansett ikke settes med kortere frist enn kl. 12.00 første virkedag etter siste annonserte visning.
Etter at eiendommen er solgt vil kjøper og selger få tilsendt budjournal. Øvrige budgivere kan få utlevert kopi av budjournalen i anonymisert form.
Hvitvaskingsreglene
I henhold til lov om hvitvasking og terrorfinansiering har megler plikt til å gjennomføre kontrolltiltak overfor kunder, herunder fullmektiger. Dette innebærer bl.a. å bekrefte kunders og reelle rettighetshaveres identitet på bakgrunn av fremvist gyldig legitimasjon eller på annen godkjent måte, samt å innhente opplysninger om kundeforholdets formål og tilsiktede art.
Dersom slike kundetiltak ikke kan gjennomføres, kan megler ikke etablere kundeforholdet eller utføre transaksjonen.
Hvis kjøper ikke bidrar til gjennomføring av kundekontrollen og dette fører til at transaksjonen blir forsinket eller ikke kan gjennomføres, vil dette ansees som mislighold av avtalen og gi selger rettigheter etter avhendingslova kapittel 5. I tilfeller der selger ikke bidrar til gjennomføring av løpende kundekontroll underveis i oppdraget, er det selger som misligholder sine forpliktelser etter avtalen og gi kjøper rettigheter etter avhendingslovens kapittel 4. Partene er selv ansvarlige for eventuelle kostnader og ansvar dette kan medføre. Eiendomsmegleren eller eiendomsmeglingsforetaket kan ikke holdes ansvarlig for de konsekvenser dette vil kunne få for partene eller andre som har interesser i eiendomshandelen.
Kjøper oppfordres til å innbetale kjøpesummen som ikke kommer fra låneinstitusjon i én samlet innbetaling fra egen konto i norsk bank. Megler har plikt til å melde fra til Økokrim om eiendomshandler som fremstår som mistenkelige. Melding sendes Økokrim uten at partene varsles.
Personopplysningsloven
I henhold til personopplysningsloven gjør vi oppmerksom på at interessenter kan bli registrert for videre oppfølging.
Lovanvendelse
Generelle bestemmelser
Salgsoppgaven er basert på de opplysningene selger har gitt til megler, den bygningssakyndiges tilstandsrapport, samt opplysninger innhentet fra kommunen, Kartverket og andre tilgjengelige kilder. Det er viktig at kjøper setter seg grundig inn i alle salgsdokumentene, herunder salgsoppgave, tilstandsrapport og selgers egenerklæring. Kjøper anses kjent med forhold som er tydelig beskrevet i salgsdokumentene, og slike forhold kan ikke påberopes som mangler. Dette gjelder uavhengig av om kjøper har lest dokumentene. Alle interessenter oppfordres til å undersøke eiendommen nøye, gjerne sammen med fagkyndig før bud inngis. Kjøper som velger å kjøpe usett kan ikke gjøre gjeldende som mangel noe han burde blitt kjent med ved undersøkelsen.
Dersom det er behov for avklaringer, anbefaler vi at interessenter rådfører seg med eiendomsmegler eller egne rådgivere før det legges inn bud.
En bolig som har blitt brukt i en viss tid, har vanligvis blitt utsatt for slitasje og skader kan ha oppstått. Slik bruksslitasje må kjøper regne med, og det kan avdekkes enkelte forhold etter overtakelse som nødvendiggjør utbedringer. Normal slitasje og skader som nødvendiggjør utbedring, er innenfor hva kjøper må forvente og vil ikke utgjøre en mangel.
Kjøper og selgers rettigheter og plikter reguleres av avtalen mellom partene, samt informasjonen som har vært tilgjengelig for kjøperen i forbindelse med handelen. Avtalen utfylles av avhendingsloven, og det gjelder ulike avtalevilkår avhengig av om kjøper er forbrukerkjøper eller ikke. Dette er nærmere beskrevet nedenfor.
På grunn av ulike avtalevilkår kan selger vurdere bud fra en som ikke er forbruker, ulikt fra en forbrukers bud. Dersom kjøper ikke er forbruker, er selger sitt mulige mangelsansvar begrenset fordi eiendommen selges "som den er". Selger kan ikke ta «som den er»- forbehold overfor en forbrukerkjøper. Selv et lavere bud fra en som ikke er forbruker kan foretrekkes fordi begrensningen i mulig mangelsansvar kan ha egenverdi for selger. Selger står fritt til å forkaste eller akseptere ethvert bud, og er for eksempel ikke forpliktet til å akseptere høyeste bud.
Budgiver skal i budskjema avgi egenerklæring om budgiver er forbruker eller næringsdrivende/ person som hovedsakelig handler som ledd i næringsvirksomhet. Budgivere får informasjon dersom andre bud er inngitt av en som ikke er forbruker.
Forbrukerkjøp - definisjon
Med forbrukerkjøp menes kjøp av eiendom når kjøperen er en fysisk person som ikke hovedsakelig handler som ledd i næringsvirksomhet.
Forbruker – avtalevilkår
Eiendommen har en mangel dersom den ikke er i samsvar med kravene som følger av avtalen, eller det foreligger brudd på bestemmelsene i avhendingsloven §§ 3-2 til 3-8. Hvis eiendommen ikke er i samsvar med det kjøperen må kunne forvente ut ifra alder, type og synlig tilstand, kan det være grunnlag for mangelskrav. Det samme gjelder hvis det er holdt tilbake eller gitt uriktige opplysninger om eiendommen. Dette gjelder likevel bare dersom man kan gå ut ifra at det virket inn på avtalen at opplysningen ikke ble gitt eller at mangelskravet ikke blir rettet i tide på en tydelig måte.
Boligen kan ha en mangel etter avhendingsloven § 3-3 andre ledd, dersom det er avvik mellom opplyst og faktisk innvendig areal, forutsatt at avviket er på 2% eller mer og minimum 1 kvm.
Ved beregning av et eventuelt prisavslag eller erstatning må kjøper selv dekke tap/kostnader opptil et beløp på kr 10 000 (egenandel).
Ikke-forbruker (næringsdrivende) – definisjon
Hvis kjøper er en juridisk person, eller en fysisk person som hovedsakelig handler som ledd i næringsvirksomhet, vil kjøpet ikke anses som et forbrukerkjøp.
Ikke-forbruker – avtalevilkår
Eiendommen har en mangel dersom den ikke er i samsvar med kravene som følger av avtalen.
Eiendommen selges «som den er», og selgers ansvar utover det konkret avtalte er da begrenset etter avhendingsloven § 3-9, første ledd andre setning.
Avhendingsloven § 3-3 andre ledd fravikes, og hvorvidt boligens arealsvikt utgjør en mangel vurderes etter avhendingsloven § 3-8.
Informasjon om kjøpers undersøkelsesplikt, herunder oppfordringen om å undersøke eiendommen nøye, gjelder også for kjøpere som ikke anses som forbrukere.
Det forutsettes at hjemmel overføres til kjøper. Hvis kjøper ikke ønsker hjemmelsoverføring av eiendommen, må det tas forbehold om dette i budet.
Rett til fritt å velge megler
Valg av eiendomsmeglingsforetak skal være frivillig. Eiendomsmeglingsforetak kan ikke inngå oppdrag om eiendomsmegling dersom inngåelsen av oppdraget er satt som vilkår i avtale om annet enn eiendomsmegling, f.eks. tilbud om lån eller andre banktjenester, jf. Lov om eiendomsmegling § 6-3 (3)
Meglers vederlag
Meglers vederlag betales av selger og er avtalt til:
Vederlag: kr 30 000,-
Tilrettelegging fra kr 17 000,-
Oppgjør: kr 7 500,-
Markedspakke utvidet: kr 28 250,-
Foto Image Day: kr 7 500,-
Visninger/overtagelse: kr 2 500,- pr. stk.
Oppslag eiendomsregister: kr 2 900,-
Megler har i tillegg krav på dekning av utlegg.
Opplysninger om oppdraget
Oppdragsnummer 60-0180/24
Eiendomsmegler Krogsveen AS, avd. Lillestrøm
Adolph Tidemands gate 38, 2000, LILLESTRØM
950 007 613
Oppdragets KR-kode KR60.24180
Dato
Sist oppdatert: 27. juni 2024 kl. 19:56
Dokumenter
Dokumenter
PDF – 374 KB
PDF – 687 KB
PDF – 344 KB
PDF – 312 KB
PDF – 29 KB
PDF – 127 KB
PDF – 392 KB
Område
Legg til steder som er viktige for deg
Visning
Det er ingen planlagte visninger. Meld deg på for å avtale en tid som passer.
Lurer du på noe?
Unngå doble boligrenter
Vi tilbyr gunstig forsikring.
Vurderer du utleie?
Få et tilbud fra Utleie KrogsveenHva koster lånet?
Sjekk estimert lånekostnadVil du varsles om lignende boliger?
Ved å lagre ditt boligsøk hos oss får du beskjed når vi har en bolig som ligner denne, før den legges ut på markedet!

