Grefsenkollveien 12E
5 300 000 kr
79 m²
2 soverom
Solgt

Grefsen Terrassehus
Lys og romslig 3-roms eierleilighet med vestvendt terrasse (11kvm) med gode solforhold-Garasje-Heis i bygget-Oppussing
Prisantydning
5 300 000 krAndel fellesgjeld
229 009 krOmkostninger
149 260 krTotalpris
5 678 269 kr
Pris
Bruksareal
81 m²BRA-I (internt bruksareal)
79 m²BRA-E (eksternt bruksareal)
2 m²TBA (terrasse-balkongareal)
11 m²
Areal
Etasje
3Byggeår
1975Soverom
2 soveromBad
1 badType
EierleilighetEierform
EierseksjonFasiliteter
Garasje/P-plass, Heis og Balkong/TerrasseFellesutgifter
6 339 krEnergimerke
Rød D
Nøkkelinfo
Unngå doble boligrenter
Vi tilbyr gunstig forsikring.
Vurderer du utleie?
Få et tilbud fra Utleie KrogsveenHva koster lånet?
Sjekk estimert lånekostnadBeskrivelse
Kort om eiendommen
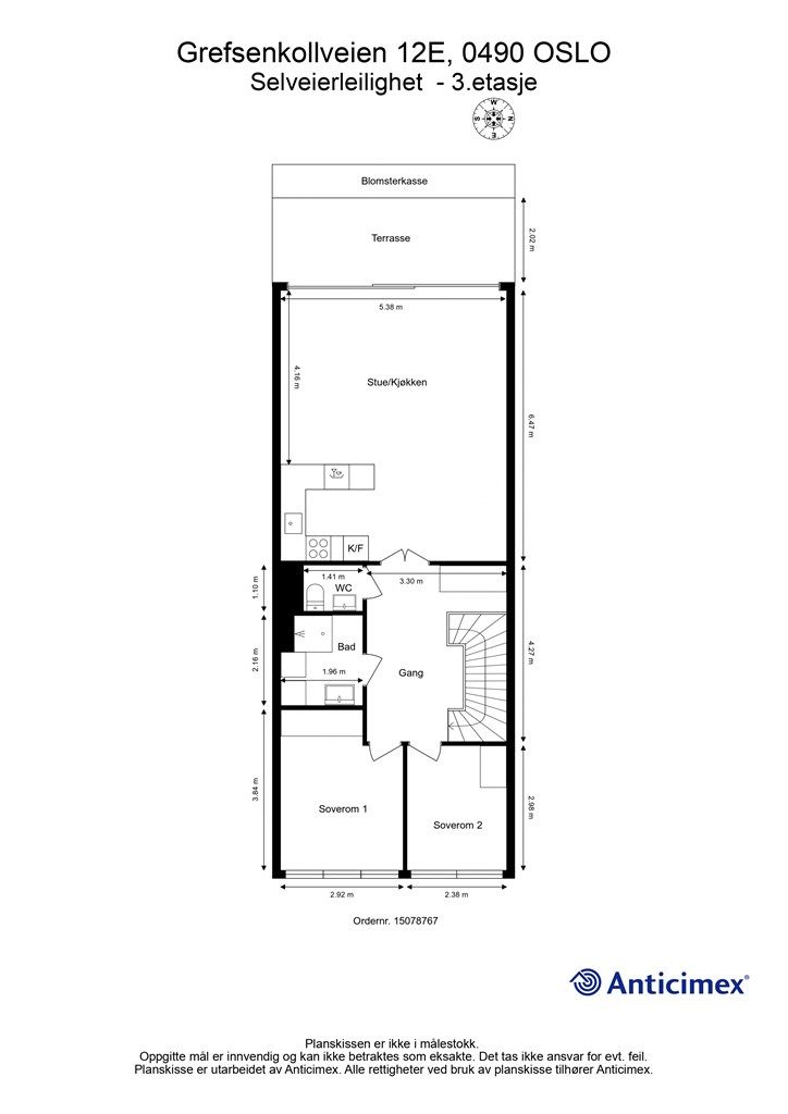
Lys og romslig 3-roms leilighet over 2 plan i populære Grefsen terrassehus. Leiligheten har en god planløsning med entré i 4. etasje og stor stue med åpen kjøkkenløsning, 2 gode soverom og bad + separat toalettrom i 3. etasje. De store vinduene gir masse lys inn. Vinduer og terrassedør er fra 2010 og 2012.
Fra stuen er det utgang til stor terrasse på 11 kvm som ble rehabilitert i 2018, med fin utsikt over nærområdet og sameiets parkmessige fellesarealer. Terrassen vender mot vest og har svært gode solforhold, med sol store deler av dagen og kvelden.
Det medfølger en garasjeplass i felles anlegg med mulighet for lader og en bod i 1. etasje. Det er heis i bygget.
Leiligheten holder en eldre standard og modernisering må påregnes, her har du muligheten til å skape et drømmehjem!
Område
Legg til steder som er viktige for deg
På flyttefot? Tenk kjøp og salg samtidig.
Få din egen rådgiver gjennom hele kjøps- og salgsprosessen. Det starter med en verdivurdering.
Unngå doble boligrenter
Vi tilbyr gunstig forsikring.
Vurderer du utleie?
Få et tilbud fra Utleie KrogsveenHva koster lånet?
Sjekk estimert lånekostnadVil du varsles om lignende boliger?
Ved å lagre ditt boligsøk hos oss får du beskjed når vi har en bolig som ligner denne, før den legges ut på markedet!






































