Hauanveien 17
4 690 000 kr
151 m²
4 soverom
Komplett salgsoppgave
Konnerud
Romslig enebolig med 2 etasjer. Bad og wc-rom. 3 sydøstvendte uteplasser. Garasje fra 2003 m/carport. Rolige omgivelser.
Prisantydning
4 690 000 krOmkostninger
138 240 krTotalpris
4 828 240 kr
Pris
Bruksareal
178 m²BRA-I (internt bruksareal)
151 m²BRA-E (eksternt bruksareal)
27 m²TBA (terrasse-balkongareal)
34 m²
Areal
Etasje
2Byggeår
1918Soverom
4 soveromBad
1 badTomteareal
503 m² (eiet)Type
Enebolig - FrittliggendeEierform
EietFasiliteter
Garasje/P-plass og Balkong/TerrasseEnergimerke
Rød G
Nøkkelinfo
Unngå doble boligrenter
Vi tilbyr gunstig forsikring.
Vurderer du utleie?
Få et tilbud fra Utleie KrogsveenHva koster lånet?
Sjekk estimert lånekostnadBeskrivelse
Kort om eiendommen
Innhold og byggemåte
Innhold og byggemåte
Eiendommen
Hauanveien 17, 3031 DRAMMEN
Kommunenummer 3301, gårdsnummer 80, bruksnummer 96
Innhold
BRA-i (internt bruksareal)
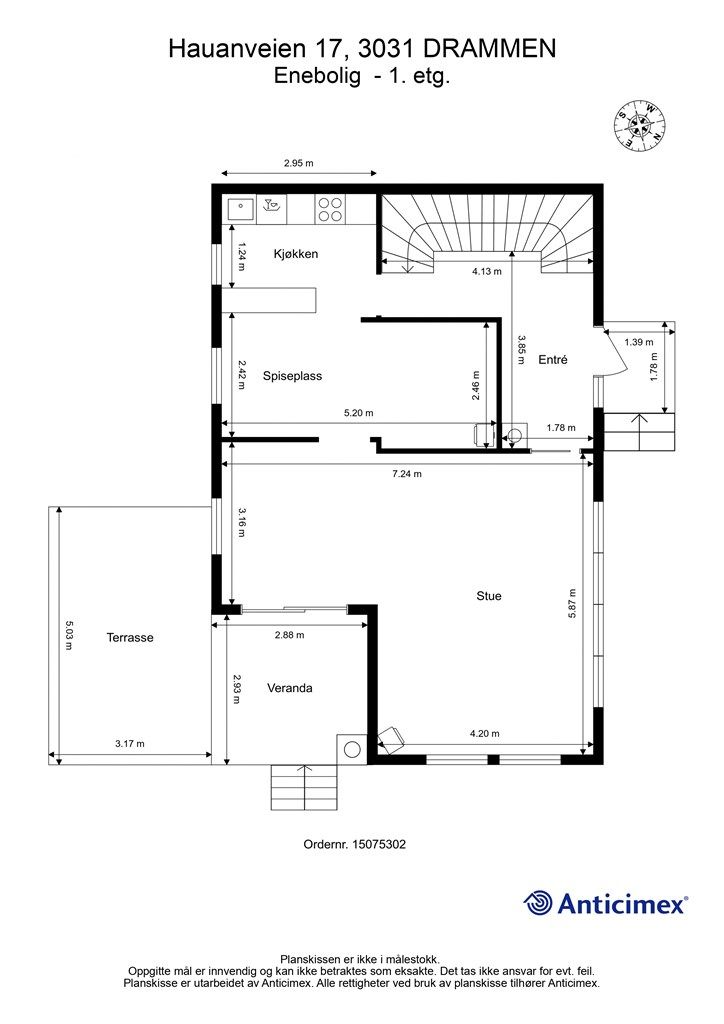
1. etasje:
72 kvm: Stue, kjøkken og entré.
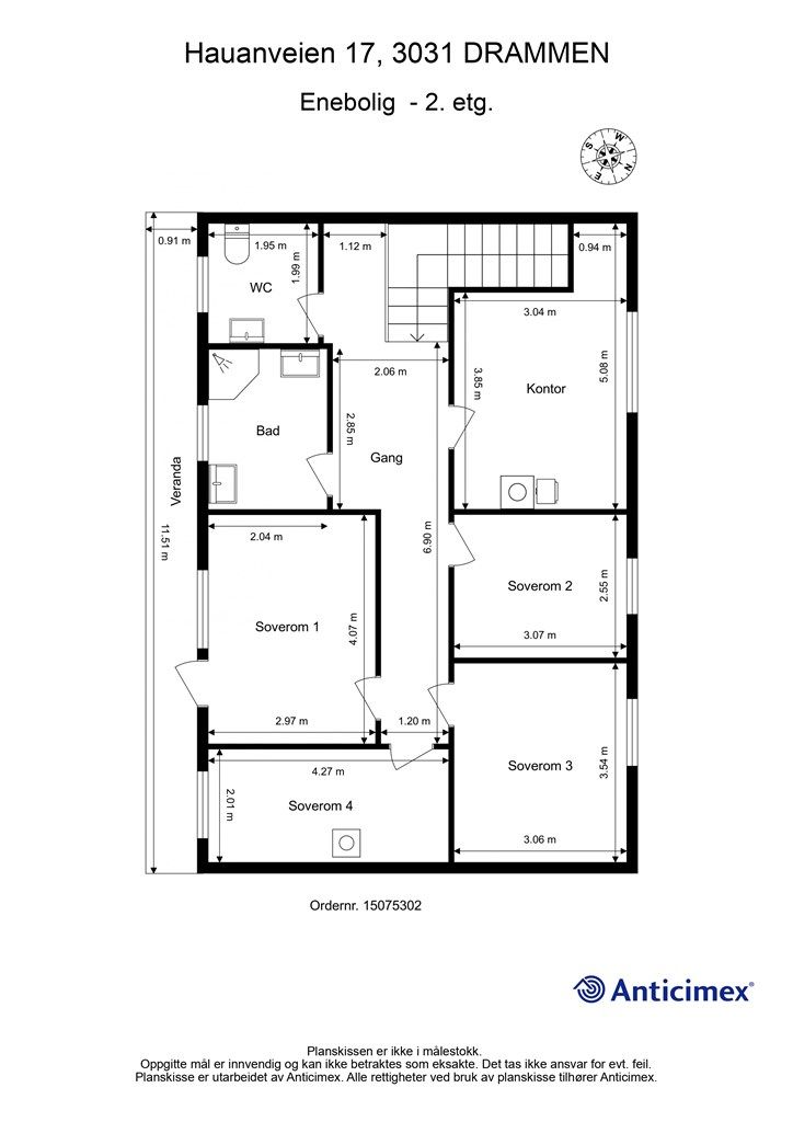
2. etasje:
79 kvm: Gang, bad, wc-rom, kontor og 4 soverom.
BRA-e (eksternt bruksareal)
Garasje - 1. etasje:
19 kvm: Garasje.
Frittstående utebod - 1. etasje:
8 kvm: Bod.
TBA (terrasse- og balkongareal)
1. etasje:
24 kvm: Veranda og terrasse.
2. etasje:
10 kvm: Veranda.
2. etasje har et totalt gulvareal (GUA) på 85 kvm, men grunnet skråtak/lav takhøyde er kun 79 kvm av arealet måleverdig som bruksareal. De delene av arealene som har lav himlingshøyde (ALH) utgjør 6 kvm.
De oppgitte arealer er hentet fra rapport utført av Nils Magnus Graff Fossnes. Arealene er beregnet og rom er definert etter dagens faktiske bruk, uavhengig av hva som er godkjent av bygningsmyndighetene.
Byggemåte
Bygningen er iht. tilstandsrapport, oppført med grunnmur av sparesteinsmur og lettklinkerblokker/murkonstruksjoner med krypekjeller. Etasjeskillere av trekonstruksjoner. Yttervegger av trekonstruksjoner med liggende og stående trekledning. Yttertak med saltaksform av trekonstruksjon tekket med takstein og metallplater. Boligen har ytterdør av tre med sidefelt fra 1977. Balkongdør med karmer av tre, og to-lags glass fra 1977. Balkongskyvedør med karmer av tre, og to-lags glass fra 1977. Vinduer med karmer av tre, og to-lags glass fra 1977 og 2009. Les forøvrig mer om byggemåte og den tekniske tilstanden i rapporten.
Tilstandsrapporten og selgers egenerklæring er vedlagt salgsoppgaven. Interessenter må sette seg inn i dokumentene før bud inngis.
Standard
Fra gårdsplassen er det adkomst til boligens overbygde inngangsparti i 1. etasje. Tilgang til en frittstående utebod på ca. 8 kvm.
1. etasje
Stue: Vinkelstue med sofaområde, spiseplass og sittegruppe. Delåpen løsning mot kjøkkenet. Rommet er gjennomgående og har godt med vindusflater langs tre yttervegger, som gir godt med lysinnslipp. Frittstående vedovn i hjørne med fliser på gulv og murvegger. Parkett på gulv, tapet på vegger og plater i himling. Utgang overbygget sydøstvendt veranda på ca. 8 kvm. Videre er det trappeadkomst til hageområde med tilgang til sydøstvendt terrasse på ca. 16 kvm.
Kjøkken: Profilert kjøkkeninnredning fra ca. 2005 med over- og underskap. Tilsvarende utførelse på kjøkkenhalvøy med over- og underskap. Takhøye skap i glatt utførelse. Flislagt felt på vegg over benkeplate av heltre. Lysarmaturer under overskap. Videre er kjøkkenet utstyrt med oppvaskkum og ventilator. Opplegg for oppvaskmaskin, komfyr og frittstående kjøleskap. Frittstående vedovn med plate på gulv og murvegger. Mulighet for spiseplass. Belegg på gulv, malt panel på vegger og panel i himling. Del av kjøkkenet er byggemeldt som vaskerom jf. godkjente byggetegninger datert 07.06.1978.
Entré: Innebygget skap i glatt utførelse. Garderobeskap i hvit og profilert utførelse. Trappegang til 2. etasje. Laminat på gulv, tapet på vegger og plater i himling.
2. etasje
Gang: Trappegang til 1. etasje. Laminat på gulv, tapet på vegger og plater i himling. Tilgang til uinnredet kaldtloft via luke.
Bad: Badet er fra ca. 2005. Servant over gulvstående servantskap i hvit og profilert utførelse. Tilsvarende utførelse på speilskap med hylle over servant. Dusjkabinett med regnfallsdusj. Opplegg for vaskemaskin. Gulvvarme. Belegg på gulv, våtromsplater på vegger og panel i himling.
Wc-rom: Vegghengt servant. Speil og lysarmatur over servant. Gulvstående toalett. Underskap med skuffer i hvit og glatt utførelse. Gulvvarme. Belegg på gulv, våtromsplater på vegger og panel i himling.
Kontor: Rommet er innredet som kontor. Frittstående vedovn med plate på gulv. Vegg-til-vegg teppe på gulv, tapet på vegger og plater i himling.
Soverom 1: Garderobeløsning i glatt utførelse. Laminat på gulv, tapet på vegger og plater i himling. Utgang til overbygget sydøstvendt veranda på ca. 10 kvm.
Soverom 2: Vegg-til-vegg teppe på gulv, tapet på vegger og plater i himling.
Soverom 3: Garderobeløsning i glatt utførelse. Vegg-til-vegg teppe på gulv, tapet på vegger og plater i himling.
Soverom 4: Rommet er innredet som soverom. Laminat på gulv, tapet på vegger og plater i himling. Rommet er ikke bruksendret/omsøkt.
Generelt om boligen: Tilgang til krypkjeller via luke i grunnmur. 200 liters varmtvannsbereder, plassert i krypkjeller. Sikringsskap med automat- og skrusikringer, plassert i entré.
Selger har fått utarbeidet en tilstandsrapport for eiendommen, dvs. en teknisk gjennomgang av boligen hvor eventuelle avvik, risiko for kjøper og prisoverslag for hva som bør gjøres av oppgradering, er skissert. Se særskilt TGIU (tilstandsgrad ikke undersøkt), samt TG2 og TG3 som viser hva som er avvik fra boligens normale slitasje, alder og type, eller som bør/må utbedres. Rapporten og selgers egenerklæring er en del av salgsoppgaven og må leses nøye før bud inngis. Kjøper overtar ansvaret for de opplysninger som fremkommer av salgsdokumentasjonen, og kan ikke gjøre gjeldende som mangel noe som burde vært kjent eller som ikke kan anses å ha betydning for avtalen.
I rapporten fremkommer det som takstmannen mener kjøper må være særskilt oppmerksom på, dette gjelder blant annet (se utfyllende tekst i rapporten):
Følgende kontrollpunkter/forhold har blitt tildelt TG2:
- Bad: Kun naturlig ventilasjon, noe fuktskader på servantskap, sprekk/riss i porselen på servant, sprekker/glipper i skjøt på gulvbelegg (usikkert om gulvbelegget er fortsatt tett) og ikke tilstrekkelig tettedetaljer for rørgjennomføring tilknyttet avløp under servant.
- Kjøkken: Vannrør av kobber pga. alder.
- Wc-rom: Manglende tilluftsspalte.
- Øvrige rom (1. etasje): Stedvis preg av slitasje på parkettgulv og moderate tegn til knirk i gulv.
- Øvrige rom (2. etasje): Indikasjoner på fuktmerker på enkelte himlingsflater og rundt pipe (utført fuktmåling som ikke viste forhøyede fuktverdier).
- Krypkjeller: Utvendig terreng inntil krypkjeller heller stedvis feil vei, tilsig av vann/fukt i krypkjeller, ikke etablert fuktsperre mot grunn, utført fuktmåling i bjelkelag som viser forhøyede fuktverdier og spor/ekskrementer etter mus/gangere i krypkjeller.
- Loft (uinnredet/råloft): Vepsebol og spor/ekskrementer etter mus/gnagere på loft.
- Innvendige trapper: For store åpninger i rekkverk samt trapp, stedvis for liten fri ganghøyde i trapp og noe knirk i trapp.
- Tekniske anlegg, VVS anlegg: Usikker restlevetid på varmtvannsbereder, vannrør av kobber pga. alder, ingen tilkomst til fordelerskap (ikke mulig å verifisere om utførelsen er korrekt eller om det foreligger feil) og avløpsrør som er eldre enn 30 år pga. alder.
- Radon: Ikke foretatt radonmåling i boligen.
- Elektrisk anlegg: Manglende deksler/kapslinger rundt automatsikringer og ikke fremlagt samsvarserklæring på utført arbeid på anlegget.
- Yttervegger inkl. fasader og konstruksjon: Panel er stedvis råteskadet og stedvis slitasjesymptomer samt avflassing på fasadene.
- Dører og vinduer: Vinduer fra 1977 pga. alder, vindu på kjøkken er punktert og ytterdør, balkongdør samt balkongskyvedør pga. alder.
- Yttertak: Symptomer på alder samt slitasje, fuktmerker i himlinger i 2. etasje (indikerer funksjonssvikt) og taket er ikke fysisk inspisert (kun meget begrenset undersøkt fra bakkeplan).
- Veranda (1. etasje): For lav rekkverkshøyde.
- Terrasse: Noe svikt i konstruksjonen og slitasjesymptomer på gulvflater samt rekkverk.
- Veranda (2. etasje): Noe overflateslitasje på rekkverk og gulvflater.
- Grunnmur, fundamenter: Stedvis sprekker/riss på grunnmur og råteskade på fundament i krypkjeller.
- Drenering: Terreng rundt bygg har stedvis fall mot grunnmur, kan ikke verifisere om hele grunnmuren har utvendig fuktsperre og drenering pga. alder samt observasjoner gjort fra innsiden.
- Stikkledninger og tanker: Vann- og avløpsledninger pga. alder, ukjent alder samt ingen dokumentasjon på type eller tilstand av septiktank og ingen dokumentasjon på oljetank.
- Frittstående byggverk (garasje): Tildelt tilstandsgraden ut i fra en helhetsvurdering pga. det kun er foretatt en forenklet og overordnet vurdering av tilstanden - moderat vedlikehold virker å være tilstrekkelig.
- Frittstående byggverk (bod): Tildelt tilstandsgraden ut i fra en helhetsvurdering pga. det kun er foretatt en forenklet og overordnet vurdering av tilstanden - relativt høy slitasje og registrert skjevheter på fundamenter.
Følgende kontrollpunkter/forhold har blitt tildelt TG3:
Det er ingen punkter som har blitt tildelt TG3.
Følgende kontrollpunkter/forhold har blitt tildelt TGIU (tilstandsgrad ikke undersøkt):
- Yttertak: Takgjennomføringer, skorsteiner over tak og belag, renner, nedløp samt snøfangere er ikke undersøkt pga. sikkerhetsmessige forhold.
Det anbefales ytterligere undersøkelser av disse punktene.
Se vedlagt tilstandsrapport for supplerende informasjon vedrørende boligens tilstand.
Løsøre og tilbehør
Hvitevarer på kjøkkenet kan medfølge etter nærmere avtale med selger.
Videre vises det til liste fra Norges Eiendomsmeglerforbund angående løsøre og tilbehør. Produkter og installasjoner som medfølger overdras uten noen form for garantier, utover eventuell gjenværende leverandørgaranti.
Oppvarming
Frittstående vedovn i stue, kjøkken og kontor. Gulvvarme på bad og wc-rom. Videre er boligen basert på elektrisk oppvarming ved evt. panelovner.
Det har blitt foretatt en kontroll av pipe og ildsted i 2020, utført av Drammensregionens brannvesen IKS og alt er funnet i orden.
Eiendommen har en nedgravd/skjult oljetank under verandaen i 1. etasje. Det er innført forbud mot oppvarming av boliger med fossil olje eller parafin fra 2020. Vi gjør derfor oppmerksom på at det kan komme pålegg for eiendommer med nedgravd oljetank/parafintank om at tanken må fjernes og erstattes med miljøvennlige alternativ, alternativt tømmes/spyles/plomberes. Kjøper overtar ansvaret og evt. økonomiske følger av dette. For utfyllende informasjon, se www.oljefri.no.
Dersom det ikke er vegg- eller fastmonterte varmekilder i rom ved visning, følger dette heller ikke med.
Ferdigattest/brukstillatelse
Drammen kommune opplyser om at det ikke foreligger ferdigattest eller midlertidig brukstillatelse for opprinnelig bygning i deres arkiv. I henhold til matrikkelen for eiendommen, er bygningen først registrert tatt i bruk i år 1918.
Det er gitt ferdigattest for tilbygg av boligen datert 23.05.1978, i tillegg er det tilhørende godkjente byggetegninger (påbygg og ombygging) datert 07.07.1977. Det foreligger også senere utstedte tegninger datert 07.06.1978 (etter ferdigattest ble gitt), som omhandler samme tiltak.
Det er innsendt melding om mindre byggearbeider til kommunen, som omfattet oppføring av garasje med carport. Svar fra kommunen om at tiltaket kunne gjennomføres ble gitt 26.03.2003. Ifbm. søknaden foreligger det tilhørende godkjente byggetegninger datert 23.01.2003. Iht. tillatelsen er det ikke stilt betingelser/krav om ferdigattest ved ferdigstillelse av tiltaket, det var kun krav om melding ved igangsettelse og ferdigstillelse til kommunen. Tiltaket er ferdigstilt per dags dato.
Det er gitt ferdigattest for rehabilitering av bad datert 09.11.2011, i tillegg er det tilhørende godkjente byggetegninger datert 11.04.2011.
Soverom 4 er byggemeldt som loft jf. godkjente byggetegninger datert 07.06.1978. Innredning av rommet til bruk for varig opphold er ikke bruksendret/omsøkt og er heller ikke godkjent av kommunen. Konsekvensen ved søknad kan være at rommet ikke godkjennes som varig opphold og at rommet da må brukes/tilbakeføres til opprinnelig godkjent formål. Kjøper overtar alt ansvar og risiko for dette videre.
Kjøper overtar eiendommen slik den framstår på visning.
Tinglyste heftelser og rettigheter
Eiendommen overdras fri for pengeheftelser.
Dagboknummer: 900162
Tinglysningsdato: 21.05.1918
Servitutten omhandler: Plikt til å holde parsellen forsvarlig inngjerdet.
Dagboknummer: 900158
Tinglysningsdato: 21.05.1918
Servitutten omhandler: Gnr. 80/bnr. 85 har rett til vann fra gnr. 80/bnr. 43, hvorav denne eiendommen er skilt ut fra. Rettighetshaver gnr. 80/bnr. 43.
Servituttene vil følge eiendommen. Kjøpers bank vil få pant etter ovennevnte heftelser og servitutter som ikke skal slettes ved overdragelse.
Eventuell adgang til utleie
Eiendommen har ikke separat utleieenhet. Det vil normalt være anledning til utleie av hele eiendommen eller enkeltrom, såfremt utleiearealet er bygningsmessig godkjent for varig opphold og har forsvarlige radonnivåer.
Diverse
Boligens selges ved fullmektig. Fullmektigen har ikke selv bebodd eiendommen og har derfor ikke kunnskap om eiendommens tilstand utover det som fremkommer i salgsoppgave og tilstandsrapport.
Tilbud av produkter og tjenester fra våre samarbeidspartnere
Vi er opptatt av verdiskapning, og har knyttet til oss samarbeidspartnere som skal sikre våre kunder de beste produkter og tjenester;
• Gjensidige leverer boligselgerforsikring og tilbyr bygningsforsikring
• Boligkjøperforsikring leveres av Hiscox og med Sedgwick som skadebehandler, og er formidlet gjennom Gjensidige.
• BN bank tilbyr finansieringsløsninger
• Vår avdeling Krogsveen Pluss tilbyr flyttetjenester som utvask, visningsvask, lager, tømming og transport av flyttelass, i tillegg til å formidle kontakt med Flip for overflateoppussing.
• I forbindelse med overtagelse av eiendommen tilbyr Overo avtale om strøm, alarm og bredbånd.
• Krogsveen er, sammen med øvrige bransjeaktører, medeier i den digitale annonseringsplattformen Hjem.
Energimerking
Komplett energiattest inkludert oppvarmingskarakter fås ved henvendelse til megler eller lastes ned fra www.krogsveen.no.
Beliggenhet og tomteforhold
Beliggenhet og tomteforhold
Beliggenhet
Eiendommen ligger godt til på attraktive Konnerud i stille og rolige omgivelser. Kort gangavstand (under 1 km) til barnehager og barneskole. Nærhet til Konnerud sentrum med blant annet Konnerudsenteret, flere servicetilbud og offentlig transport. Konnerudsenteret er bydelens naturlige samlingssted for handel, senteret har bl.a. dagligvarebutikker, frisør, apotek og treningssenter. Konnerud har et godt utbygget nett av gang- og sykkelstier. Nærhet til flotte markaområder med merkede stier, lysløyper og turveier.
Konnerud er en bydel som for det meste består av store boligområder. I dag er Konnerud en moderne forstad og et attraktivt boligområde. Bebyggelsen består stort sett av eneboliger og rekkehus. Hovedtyngden av utbyggingen skjedde i 1980-årene. Konnerud er omgitt av mye fin natur som er ypperlig egnet for fotturer og skiturer.
Det er en rekke fritids- og sportstilbud, med blant annet idrettsanlegg og flotte turterreng innover marka. Kort vei til Drammens største kunstgressanlegg for fotball, lysløype fra Konnerud stadion. Gangavstand til Stordammen som blant annet har badeplasser, stupetårn, toalett og opparbeidede turveier. Konnerud IL er et av Norges største idrettslag og er aktive i flere idretter med tilhørende idrettsanlegg. Flott langrennsarena hvor det har vært World Cup arrangement med tilhørende standard, med bla. kunstsnø og milevis med skiløyper. Flere nærliggende turisthytter bl.a. SIF-, MIF- og Hellashytta. Det er ca. 20 minutters kjøring til Skoger Golfbane (18 hulls) og ca. 12 minutters kjøring til Imjelt golfbane (9 hulls).
Gangavstand til bussholdeplass langs Konnerudgata (Bekkedalen) med bussforbindelser mot Drammen sentrum og Eikerdelet, se www.brakar.no for rutetider. Det er ca. 10 minutters kjøring fra eiendommen til Drammen togstasjon, hvor toget tar deg til Oslo på ca. 35 minutter, se www.vy.no for avganger. Generelt god offentlig kommunikasjon mot Kongsberg, Oslo og Sandefjord fra Drammen sentrum.
Adkomst
Det vil bli skiltet med Krogsveen visningsskilt ved fellesvisninger. Se kart i nettannonse eller Google Maps for nærmere veibeskrivelse. Velkommen til visning!
Barnehager, skoler og fritid
Godt sammensatt tilbud av private og offentlige barnehager.
Barnehager: Solhaugen barnehage (0,4 km), Blåbærtoppen barnehage (0,8 km), Espira Vannverksdammen barnehage (1,1 km).
Skoler: Hallermoen barneskole (0,7 km) og Svensedammen ungdomsskole (1,7 km).
Drammen kommune har tre private barne- og ungdomsskoler, Drammen Realfagsskole Heltberg, Norlights Montessoriskole Drammen og Rosendal skole (Mjøndalen).
Det ligger flere videregående skoler i Drammen og Lier, samt Universitetet i Sørøst-Norge som har campus på Papirbredden i Drammen, for mer informasjon se www.usn.no.
Dersom skole- og barnehagetilbud er av betydning for kjøpet, ber vi om at det rettes en særskilt henvendelse til kommunen for oppdatert informasjon.
Beskrivelse av tomt
Eiertomt på 503 kvm. Skrånende tomt som er opparbeidet med gressplen, hekk, trær, prydbusker og diverse beplantninger. Hellelagt adkomstvei til boligen. Asfaltert gårdsplass.
Parkering
Parkering i frittstående garasje fra 2003 på ca. 19 kvm med carport på ca. 19 kvm (gulvareal). Garasjen har elektrisk leddport.
Forøvrig er det parkering på asfaltert område foran garasjen.
Vei, vann og avløp
Eiendommen har adkomst via kommunal vei.
Eiendommen er tilknyttet kommunalt ledningsnett via private stikkledninger. Det opplyses om at septiktank er viderekoblet på kommunal avløpsledning. Eier er selv ansvarlig for private stikkledninger til boligen.
Regulerings-og arealplaner
Eiendommen er regulert til boligformål, i henhold til reguleringsplan for området Kirkegrenda datert 10.07.1981. Videre er eiendommen avsatt til boligbebyggelse med krav til vannforsyning, avløp, vei og annen transport ved kommuneplanens arealdel for Drammen kommune 2025-2037 datert 18.06.2025. Utsnitt av planer med tilhørende bestemmelser kan fås ved henvendelse til megler.
I henhold til kommuneplanen er deler av eiendommen innenfor et område med flomfare. Dette kan legge begrensninger for evt. utbygging, påbygg/tilbygg og andre terrenginngrep som på et generelt grunnlag er tillatt ifølge kommuneplanen. Konferer med megler dersom dette er aktuelt.
Økonomi
Økonomi
Kommunale utgifter
Kommunale avgifter (vann og avløp): kr 5.876,- pr. år (3 terminer), fakturert på eiendommen i 2024. Avgiftene vil variere etter forbruket i boligen.
Renovasjonskostnader: kr 4.930,- pr. år (2 terminer). Type renovasjonsordning: Standard renovasjon, 2025.
Det opplyses om at Drammen kommune har varslet om en vesentlig fremtidig økning av kommunale avgifter.
I tillegg påløper det en kostnad på kr 608,- pr. år for boliger med minst ett aktivt røykrør (kostnad pr. 2026). Det påløper også kostnader for feiing av ildsted, kontroll av fyringsanlegg m.m. Frekvens på feiing samt tilsyn er avhengig av behov og vurderes av feieren.
Det må påregnes kostnader til strøm og nettleie, dette vil variere avhengig av strøm-/nettselskap. Selger har ikke opplyst om forbruk.
Boligen har en årlig forsikringspremie via Gjensidige.
Selger har ikke bebodd eiendommen og har således ikke kjennskap til øvrige løpende utgifter for eiendommen.
Det må påregnes kostnader til bygningsforsikring, innboforsikring og evt. tv/internett.
Ovenstående er basert på nåværende eier/husstands senere års forbruk/utgifter. Dette vil variere avhengig av antall beboere, ønsket innetemperatur, egne fordelsavtaler, kanalvalg, hastighet på bredbånd m.m.
Formuesverdi
Formuesverdi for 2023 var kr 1 215 025,- ifølge skatteetaten. Beløpet forutsetter at eier bor fast i boligen (primærbolig).
Ved eventuell øvrig bruk av eiendommen (f.eks. fritidsbolig, pendlerbolig, utleieobjekt) var formuesverdien for 2023 kr 4 860 101,-.
Formuesverdien justeres normalt årlig. Se skatteetaten.no for mer informasjon om fastsettelse av formuesverdien.
Omkostninger
4 690 000,00 Prisantydning
Omkostninger
117 250,00 Dokumentavgift til staten (2,5% av kjøpesum)
19 900,00 Gjensidige Boligkjøperpakke (valgfri)
545,00 Tinglysing panterettsdokument
545,00 Tinglysing skjøte
--------------------------------------------------------
138 240,00 Omkostninger totalt
--------------------------------------------------------
4 828 240,00 Totalpris inkl. omkostninger
--------------------------------------------------------
Totalpris inkl. omkostninger forutsetter kjøp til prisantydning.
Det tas forbehold om endringer i avgifter og gebyrer.
Tilbud om lånefinansiering
Megler formidler gjerne kontakt med rådgiver hos vår samarbeidspartner BN Bank. De har konkurransedyktige betingelser samt rask og løsningsorientert behandling av din lånesøknad. Krogsveen mottar et honorar for denne formidlingen.
Betalingsbetingelser
Kjøpesum inkludert omkostninger, samt pantedokument tilknyttet eventuelt lån, skal være disponibelt hos megler 2 virkedager før overtagelsen.
Annen viktig informasjon
Annen viktig informasjon
Eier
Birger Kristian Johansen
Overtakelse
Etter nærmere avtale.
Boligselgerforsikring
Selger har i forbindelse med salget tegnet boligselgerforsikring levert av Gjensidige.
Boligselgerforsikringen dekker selgers ansvar etter avhendingsloven begrenset oppad til kr 14 millioner. Dersom kjøper oppdager forhold ved eiendommen som hen mener utgjør en mangel ved eiendommen, vil Gjensidige behandle reklamasjonen på vegne av selger. Forsikringsvilkår kan fås ved henvendelse til megler.
Vedlagt salgsoppgaven følger selgers egenerklæringsskjema og tilstandsrapport. Interessenter må sette seg inn i dokumentene før bud inngis.
Boligkjøperforsikring
Innen kontraktsmøtet må kjøper ta stilling til om det ønskes å bestille Boligkjøperpakken gjennom Gjensidige. I denne gunstige pakken er boligen ferdig forsikret og inkluderer rettshjelpsforsikring, også kalt Boligkjøperforsikring. Rettshjelpsforsikring gir trygghet og tilgang på profesjonell juridisk hjelp dersom det oppdages uventede feil eller mangler det første året etter overtagelse. Forsikringsselskapet behandler i så fall ethvert mangelskrav kjøper måtte ha overfor selger.
Boligkjøperpakken inkluderer bygningsforsikring for hus og hytte, innboforsikring, flytteforsikring og dobbel rentedekning - i situasjoner hvor kjøper ikke får solgt nåværende primærbolig.
Kjøper mottar ingen særskilt faktura for Boligkjøperpakken da kostnaden det første året legges til kjøpesummen for boligen. Det gjøres oppmerksom på Krogsveen mottar et honorar for denne formidlingen.
Produktark for Boligkjøperpakken ligger vedlagt i salgsoppgaven.
Dersom ikke boligkjøperpakke ønskes kan kun rettshjelpsforsikring, også kalt boligkjøperforsikring, tegnes særskilt via megler. Rettshjelpsforsikringen varer i 5 år fra overtagelse og leveres gjennom Gjensidige. Ta kontakt med megler for ytterligere informasjon.
Selskap og privatpersoner som driver med kjøp/salg/utvikling som ledd i egen næringsvirksomhet kan ikke tegne boligkjøperpakke eller rettshjelpsforsikring.
Budgivning
Forbrukerinformasjon om budgivning er vedlagt denne salgsoppgaven og er også på vår hjemmeside Krogsveen.no. Alle bud og budforhøyelser må inngis skriftlig. I tillegg må legitimasjon være fremlagt sammen med signatur fra budgiver.
Vi oppfordrer til å gi bud elektronisk via GI BUD-knappen på eiendommens hjemmeside på Krogsveen.no. Da vil samtlige vilkår bli oppfylt.
Eventuelle forhøyelser eller endringer av budet kan bekreftes pr SMS eller på e-post. Vi oppfordrer alltid til å kontakte megler pr. telefon i tillegg da forsinkelser i SMS og e-post kan forekomme.
For at budene skal kunne bli behandlet og videreformidlet skriftlig til alle involverte parter, må alle bud ha en tilstrekkelig lang akseptfrist, jf. eiendomsmeglingsforskriften § 6-3.
Selger må også skriftlig akseptere budet før aksept kan formidles til budgiver. Akseptfrist bør derfor være på minimum 30 minutter, og budforhøyelser må derfor skje i god tid før fristens utløp.
Bud i forbrukerforhold kan uansett ikke settes med kortere frist enn kl. 12.00 første virkedag etter siste annonserte visning. I tillegg kan ikke budet ha forbehold om at det skal holdes hemmelig ovenfor øvrige interessenter. Megler har iht lov om eiendomsmegling ikke anledning til å videreformidle disse budene, og de vil dermed heller ikke bli journalført.
Etter at eiendommen er solgt vil kjøper og selger få tilsendt budjournal. Øvrige budgivere kan få utlevert kopi av budjournalen i anonymisert form.
Hvitvaskingsreglene
I henhold til lov om hvitvasking og terrorfinansiering har megler plikt til å gjennomføre kontrolltiltak overfor kunder, herunder fullmektiger. Dette innebærer bl.a. å bekrefte kunders og reelle rettighetshaveres identitet på bakgrunn av fremvist gyldig legitimasjon eller på annen godkjent måte, samt å innhente opplysninger om kundeforholdets formål og tilsiktede art.
Dersom slike kundetiltak ikke kan gjennomføres, kan megler ikke etablere kundeforholdet eller utføre transaksjonen.
Hvis kjøper ikke bidrar til gjennomføring av kundekontrollen og dette fører til at transaksjonen blir forsinket eller ikke kan gjennomføres, vil dette ansees som mislighold av avtalen og gi selger rettigheter etter avhendingslova kapittel 5. I tilfeller der selger ikke bidrar til gjennomføring av løpende kundekontroll underveis i oppdraget, er det selger som misligholder sine forpliktelser etter avtalen og gi kjøper rettigheter etter avhendingslovens kapittel 4. Partene er selv ansvarlige for eventuelle kostnader og ansvar dette kan medføre. Eiendomsmegleren eller eiendomsmeglingsforetaket kan ikke holdes ansvarlig for de konsekvenser dette vil kunne få for partene eller andre som har interesser i eiendomshandelen.
Kjøper oppfordres til å innbetale kjøpesummen som ikke kommer fra låneinstitusjon i én samlet innbetaling fra egen konto i norsk bank. Megler har plikt til å melde fra til Økokrim om eiendomshandler som fremstår som mistenkelige. Melding sendes Økokrim uten at partene varsles.
Personopplysningsloven
I henhold til personopplysningsloven gjør vi oppmerksom på at interessenter kan bli registrert for videre oppfølging.
Lovanvendelse
Generelle bestemmelser
Salgsoppgaven er basert på de opplysningene selger har gitt til megler, den bygningssakyndiges tilstandsrapport, samt opplysninger innhentet fra kommunen, Kartverket og andre tilgjengelige kilder. Det er viktig at kjøper setter seg grundig inn i alle salgsdokumentene, herunder salgsoppgave, tilstandsrapport og selgers egenerklæring. Kjøper anses kjent med forhold som er tydelig beskrevet i salgsdokumentene, og slike forhold kan ikke påberopes som mangler. Dette gjelder uavhengig av om kjøper har lest dokumentene. Alle interessenter oppfordres til å undersøke eiendommen nøye, gjerne sammen med fagkyndig før bud inngis. Kjøper som velger å kjøpe usett kan ikke gjøre gjeldende som mangel noe han burde blitt kjent med ved undersøkelsen.
Dersom det er behov for avklaringer, anbefaler vi at interessenter rådfører seg med eiendomsmegler eller egne rådgivere før det legges inn bud.
En bolig som har blitt brukt i en viss tid, har vanligvis blitt utsatt for slitasje og skader kan ha oppstått. Slik bruksslitasje må kjøper regne med, og det kan avdekkes enkelte forhold etter overtakelse som nødvendiggjør utbedringer. Normal slitasje og skader som nødvendiggjør utbedring, er innenfor hva kjøper må forvente og vil ikke utgjøre en mangel.
Kjøper og selgers rettigheter og plikter reguleres av avtalen mellom partene, samt informasjonen som har vært tilgjengelig for kjøperen i forbindelse med handelen. Avtalen utfylles av avhendingsloven, og det gjelder ulike avtalevilkår avhengig av om kjøper er forbrukerkjøper eller ikke. Dette er nærmere beskrevet nedenfor.
På grunn av ulike avtalevilkår kan selger vurdere bud fra en som ikke er forbruker, ulikt fra en forbrukers bud. Dersom kjøper ikke er forbruker, er selger sitt mulige mangelsansvar begrenset fordi eiendommen selges "som den er". Selger kan ikke ta «som den er»- forbehold overfor en forbrukerkjøper. Selv et lavere bud fra en som ikke er forbruker kan foretrekkes fordi begrensningen i mulig mangelsansvar kan ha egenverdi for selger. Selger står fritt til å forkaste eller akseptere ethvert bud, og er for eksempel ikke forpliktet til å akseptere høyeste bud.
Budgiver skal i budskjema avgi egenerklæring om budgiver er forbruker eller næringsdrivende/ person som hovedsakelig handler som ledd i næringsvirksomhet. Budgivere får informasjon dersom andre bud er inngitt av en som ikke er forbruker.
Forbrukerkjøp - definisjon
Med forbrukerkjøp menes kjøp av eiendom når kjøperen er en fysisk person som ikke hovedsakelig handler som ledd i næringsvirksomhet.
Forbruker – avtalevilkår
Eiendommen har en mangel dersom den ikke er i samsvar med kravene som følger av avtalen, eller det foreligger brudd på bestemmelsene i avhendingsloven §§ 3-2 til 3-8. Hvis eiendommen ikke er i samsvar med det kjøperen må kunne forvente ut ifra alder, type og synlig tilstand, kan det være grunnlag for mangelskrav. Det samme gjelder hvis det er holdt tilbake eller gitt uriktige opplysninger om eiendommen. Dette gjelder likevel bare dersom man kan gå ut ifra at det virket inn på avtalen at opplysningen ikke ble gitt eller at mangelskravet ikke blir rettet i tide på en tydelig måte.
Boligen kan ha en mangel etter avhendingsloven § 3-3 andre ledd, dersom det er avvik mellom opplyst og faktisk innvendig areal, forutsatt at avviket er på 2% eller mer og minimum 1 kvm.
Ved beregning av et eventuelt prisavslag eller erstatning må kjøper selv dekke tap/kostnader opptil et beløp på kr 10 000 (egenandel).
Ikke-forbruker (næringsdrivende) – definisjon
Hvis kjøper er en juridisk person, eller en fysisk person som hovedsakelig handler som ledd i næringsvirksomhet, vil kjøpet ikke anses som et forbrukerkjøp.
Ikke-forbruker – avtalevilkår
Eiendommen har en mangel dersom den ikke er i samsvar med kravene som følger av avtalen.
Eiendommen selges «som den er», og selgers ansvar utover det konkret avtalte er da begrenset etter avhendingsloven § 3-9, første ledd andre setning.
Avhendingsloven § 3-3 andre ledd fravikes, og hvorvidt boligens arealsvikt utgjør en mangel vurderes etter avhendingsloven § 3-8.
Informasjon om kjøpers undersøkelsesplikt, herunder oppfordringen om å undersøke eiendommen nøye, gjelder også for kjøpere som ikke anses som forbrukere.
Det forutsettes at hjemmel overføres til kjøper. Hvis kjøper ikke ønsker hjemmelsoverføring av eiendommen, må det tas forbehold om dette i budet.
Meglers vederlag
Meglers vederlag betales av selger og er avtalt til:
Vederlag: 1,00 % av salgssummen
Vederlag
Kontroll av hjemmel og heftelser kr 2 900,00
Markedsføringspakke kr 27 400,00
Oppgjør kr 7 500,00
Tilrettelegging kr 17 000,00
Visninger pr stk kr 4 000,00
Utlegg
Innhenting av feierrapport fra Drammensreg. Brannvesen kr 573,00
Innhenting av off. oppl. Drammen kommune inkl. tegninger og RFD kr 2 833,00
Tinglysing sikring kr 545,00
Andre utgifter
AX tilstandsrapport enebolig kr 20 625,00
Boligfotografering kr 5 000,00
Boligselgerforsikring Gjensidige Eiet - 5,71 promille av prisantydning, valgfri
Opplysninger om oppdraget
Oppdragsnummer 20-0294/25
Eiendomsmegler Krogsveen AS, avd. Drammen
Nedre Storgate 16, 3015, DRAMMEN
950 007 613
Oppdragets KR-kode KR20.25294
Dato
Sist oppdatert: 18. januar 2026 kl. 12:35
Dokumenter
Dokumenter
PDF – 942 KB
PDF – 465 KB
PDF – 745 KB
PDF – 823 KB
PDF – 312 KB
PDF – 29 KB
PDF – 127 KB
PDF – 392 KB
Område
Legg til steder som er viktige for deg
Visning
For å delta på visning, ber vi om at du melder deg på. Da sikrer vi at du får nødvendig informasjon og at det er satt av tilstrekkelig med tid. Kontakt megler dersom annet tidspunkt ønskes. Husk å lese salgsoppgaven før visningen, så du stiller forberedt.
Ønsker du kun å bli holdt orientert, kan du fra eiendommens hjemmeside få varsel om solgtpris, eller kontakte megler.
Lurer du på noe?
Unngå doble boligrenter
Vi tilbyr gunstig forsikring.
Vurderer du utleie?
Få et tilbud fra Utleie KrogsveenHva koster lånet?
Sjekk estimert lånekostnadVil du varsles om lignende boliger?
Ved å lagre ditt boligsøk hos oss får du beskjed når vi har en bolig som ligner denne, før den legges ut på markedet!




