Krokliveien 37
4 800 000 kr
65 m²
3 soverom
Solgt

Presenteres av
Sebastian HåbeslandBJERKEDALEN
Flott beliggende 4-roms - solrik og innglasset balkong - fyring/vv inkl - god intern beliggenhet - lave kjøpsomkosninger
Prisantydning
4 800 000 krAndel fellesgjeld
193 049 krOmkostninger
11 040 krTotalpris
5 004 089 kr
Pris
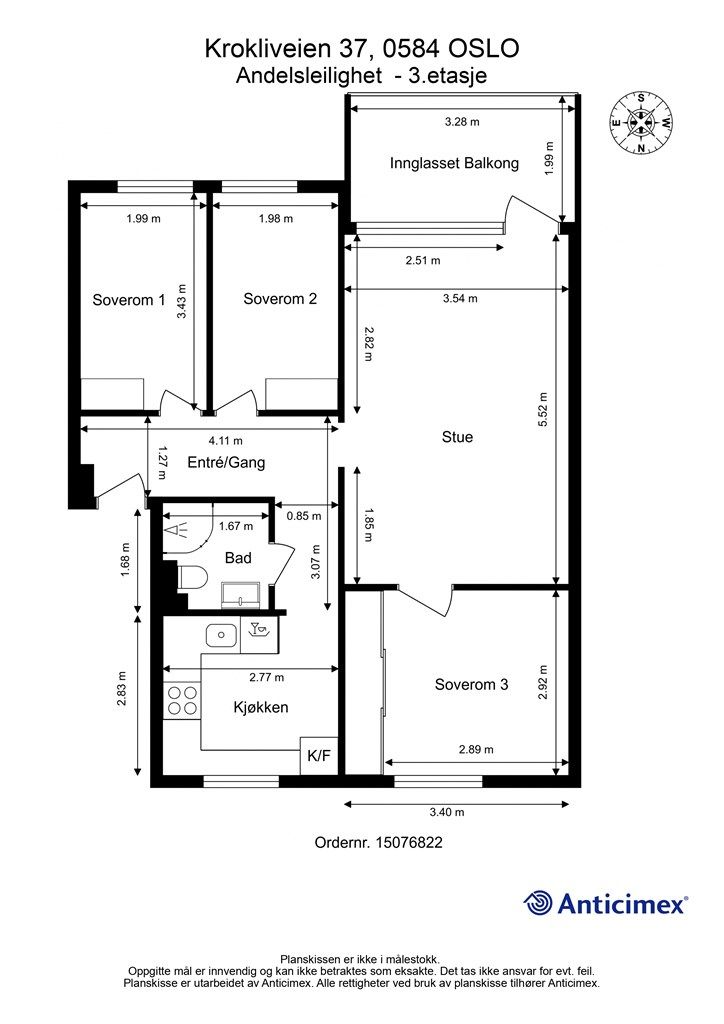
Bruksareal
80 m²BRA-I (internt bruksareal)
65 m²BRA-E (eksternt bruksareal)
8 m²
Areal
Etasje
3Byggeår
1960Soverom
3 soveromBad
1 badType
AndelsleilighetEierform
AndelFasiliteter
Balkong/TerrasseFellesutgifter
5 662 krEnergimerke
Grønn E
Nøkkelinfo
Unngå doble boligrenter
Vi tilbyr gunstig forsikring.
Vurderer du utleie?
Få et tilbud fra Utleie KrogsveenHva koster lånet?
Sjekk estimert lånekostnadBeskrivelse
Kort om eiendommen
Gjennomgående 4-roms leilighet i 3.etasje med utsyn til Bjerkedalen Park :
- Leilighet med sydvendt balkong og nydelig utsikt
- Gjennomgående og luftig planløsning
- Bredbånd, varmtvann og fyring inkl. i felleskostnader
- Populært og barnevennlig borettslag med blant annet grøntarealer, trimrom og 200 parkeringsplasser for utleie
- Kort vei til skoler, parker, dagligvare og offentlig kommunikasjon
- Ingen forkjøpsrett og lave kjøpsomkostninger
Område
Legg til steder som er viktige for deg
På flyttefot? Tenk kjøp og salg samtidig.
Få din egen rådgiver gjennom hele kjøps- og salgsprosessen. Det starter med en verdivurdering.
Unngå doble boligrenter
Vi tilbyr gunstig forsikring.
Vurderer du utleie?
Få et tilbud fra Utleie KrogsveenHva koster lånet?
Sjekk estimert lånekostnadVil du varsles om lignende boliger?
Ved å lagre ditt boligsøk hos oss får du beskjed når vi har en bolig som ligner denne, før den legges ut på markedet!
På flyttefot? Slik gjør vi det enklere for deg
Skreddersydd flyttepakke
Vi fikser håndverkere, vask, pakking, lagring og transport, og legger ut for utgiftene underveis.
Hjelp med både kjøp og salg
Hos oss har du din egen rådgiver gjennom hele kjøps- og salgsprosessen.
Hjelp til finansiering
Vårt samarbeid med BN Bank sikrer deg rask og løsningsorientert hjelp, til konkurransedyktige betingelser.

