Sjuestokkveien 20B
3 790 000 kr
71 m²
2 soverom
Komplett salgsoppgave

Melsomvik/Sjuestokk
Lekker gjennomgående leilighet med god ny standard! 2 soverom - stor solfylt balkong mot vest - rolig område - carport
Prisantydning
3 790 000 krOmkostninger
105 790 krTotalpris
3 895 790 kr
Pris
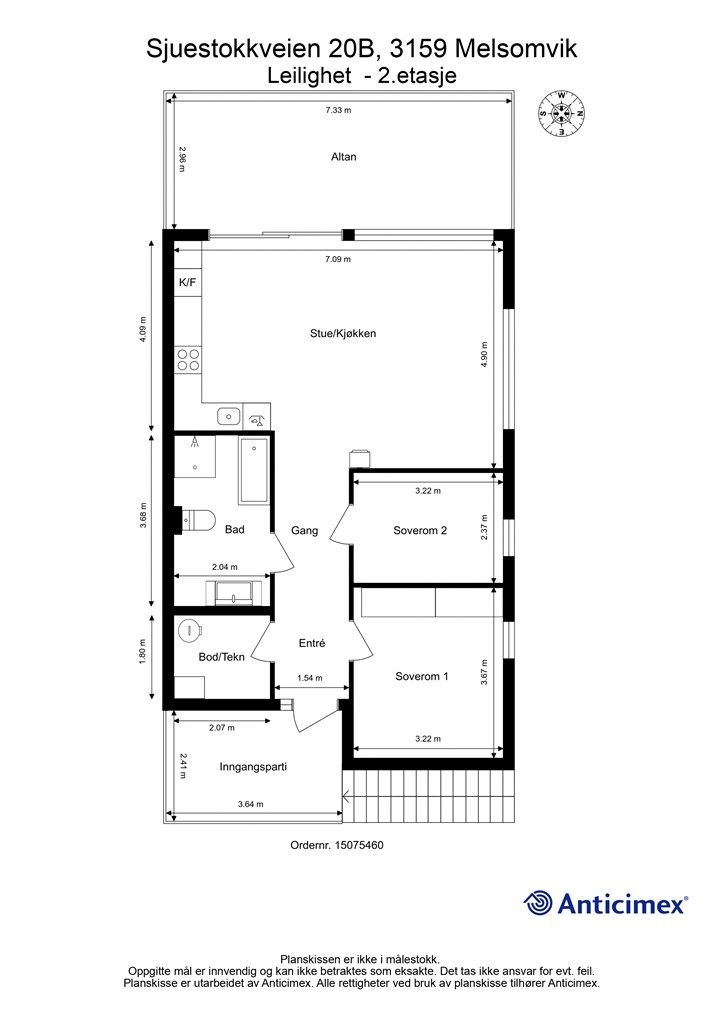
Bruksareal
76 m²BRA-I (internt bruksareal)
71 m²TBA (terrasse-balkongareal)
31 m²
Areal
Etasje
2Byggeår
2022Soverom
2 soveromBad
1 badType
EierleilighetEierform
EierseksjonFasiliteter
Garasje/P-plass og Balkong/TerrasseFellesutgifter
360 krEnergimerke
Oransje B
Nøkkelinfo
Unngå doble boligrenter
Vi tilbyr gunstig forsikring.
Vurderer du utleie?
Få et tilbud fra Utleie KrogsveenHva koster lånet?
Sjekk estimert lånekostnadBeskrivelse
Kort om eiendommen
Krogsveen v/Eirik Varmo presenterer en lun og attraktiv leilighet med god takhøyde, gode lysforhold og en romslig planløsning. Denne leiligheten byr på godt med ettermiddags/kveldssol, som kan nytes fra en romslig balkong med plass til flere sittegrupper og utsikt til omkringliggende og rolige omgivelser. Morgensol får du også på uteplassen ved inngangspartiet
Leiligheten har to gode soverom, en romslig åpen stue/kjøkkenløsning med moderne kjøkkeninnredning fra Ballingsløv, et pent flislagt bad, samt en gang med god plass for å henge av seg yttertøyet. Leiligheten er oppmalt i en lun og moderne farge og har gode møbleringsmuligheter med plass til både spisestue og sittegruppe.
Egen parkeringsplass utenfor døren i carport som også har montert el-bil lader
Velkommen hjem!
Innhold og byggemåte
Innhold og byggemåte
Eiendommen
Sjuestokkveien 20B, 3159 MELSOMVIK
Kommunenummer 3907, gårdsnummer 410, bruksnummer 24, seksjonsnummer 4, ideell andel 1/1
Innhold
Totalt bruksareal BRA: 76 kvm
BRA-i:
Leilighet:
2. etasje 71 kvm: Entré/gang, baderom, teknisk rom/bod, kjøkken, stue og 2 soverom.
BRA-b:
Leilighet:
1. etasje 5 kvm: Bod i carportanlegg
Åpent areal:
Leilighet:
2. etasje 31 kvm: Inngangsparti og altan.
Boligen disponerer bod i carportanlegg
Vedlagte plantegninger er ikke målbare. De oppgitte arealer er hentet fra rapport med befaringsdato 05.09.2025 utført av Anticimex Sandefjord AS. Arealene er beregnet og rom er definert etter dagens faktiske bruk, uavhengig av hva som er godkjent av bygningsmyndighetene.
Byggemåte
Selger har fått utarbeidet en tilstandsrapport, dvs. en teknisk gjennomgang av boligen hvor eventuelle avvik, risiko for kjøper og prisoverslag for hva som bør gjøres av oppgradering, er skissert. Se særskilt TGIU (tilstandsgrad ikke undersøkt), samt TG2 og TG3 som viser hva som er boligens normale slitasje, alder og type, hva som er avvik fra dette og hva som bør/må utbedres. Rapporten og selgers egenerklæring er en del av salgsoppgaven og må leses nøye før bud inngis. Kjøper overtar ansvaret for de opplysninger som fremkommer av salgsdokumentasjonen, og kan ikke gjøre gjeldende som mangel noe som burde vært kjent eller som ikke kan anses å ha betydning for avtalen.
Bygningen er iht. tilstandsrapporten oppført med støpt gulv mot grunn. Bærende konstruksjoner og etasjeskillere i trekonstruksjoner. Yttervegger med liggende trekledning. Tak med saltaksform tekket med takstein. Leiligheten har slett entrédør i tre med sidefelt i 3-lags glass. Terrassedør/skyvedør med karm/ramme av tre og 3-lags glass fra byggeår. Vinduer med karmer av tre og 3-lags glass fra byggeår. Oppvarming med vedfyring. Balansert ventilasjon med varmegjenvinner.
Se supplerende tekst i tilstandsrapporten og selgers egenerklæring om leiligheten. Kjøper overtar ansvar og risiko for dette.
Standard
Sjuestokkveien 20B har en fin og populær beliggenhet i rolige og barnevennlige omgivelser.
Leiligheten er beliggende 2.etg med sydvestvestvendt og romslig balkong. Den ligger fritt til med fin utsikt til omkringliggende og rolige omgivelser. På balkongen nyter du gode solforhold utover dagen og ettermiddagen/kvelden. På morgenen kan man nyte kaffen og frokosten på uteplassen ved inngangspartiet som vender mot øst.
Leiligheten er gjennomgående med naturlig godt lys fra flere store vindusflater.
Man entrer leiligheten i en romslig gang med plass til å henge av seg yttertøyet. To romslige soverom hvorav hovedsoverommet har en fin garderobeløsning.
Badet er flislagt i tidløse lyse fargevalg og med downlights i tak og varmekabler som gulvvarme. Det er her innredet med dusjhjørne, badekar, servant i innredning, vegghengt toalett og opplegg til vaskemaskin/tørketrommel.
Stue og kjøkken ligger i åpen løsning. Det er innredet med svært god kjøkkenløsning. Det er integrerte hvitevarer som kjøleskap, stekeovn, platetopp og oppvaskmaskin som vil medfølge handelen. Disse er fra byggeår. Spisestuen ligger også praktisk plassert mot kjøkkenet så matservering går lett som en lek.
Det er gode møbleringsmuligheter i stuen. Her er god plass til både salong og spisestue, slik at man kan samle hele familien i hyggelig selskap!
Videre er det gjennomgående god standard med lekre parkettgulv, delikate fargevalg på slette, malte overflater og tidløse flisevalg. Her kan man flytte rett inn i nytt hjem!
Videre medfølger 1 parkeringsplass i carport med montert el-bil lader, og 1 parkeringsplass utenfor husveggen på byggets nordlige side. Det er også gjesteparkeringer på felles gårdsplass.
Velkommen til visning og velkommen hjem!
Kort fortalt
- Usjenert beliggenhet i populært boligområde.
- Åpen planløsning med rikelig av lys fra flere vindusflater.
- Gjennomgående god standard.
- Lekkert kjøkken med gode arbeidsflater og integrerte hvitevarer.
- 2 romslige soverom.
- Solrik balkong mot vest og øst
- Parkering i carport med el-bil lader.
- Barnevennlig og trygt område med kort vei til skole og idrettsanlegg og dagligvarebutikk.
Løsøre og tilbehør
Vi viser til liste fra Norges Eiendomsmeglerforbund som gjelder fra 01.01.2020 angående løsøre og tilbehør. Montert el-bil lader medfølger. Vaskemaskin på bad, og fryser i bod følger ikke med.
Oppvarming
Leiligheten er oppvarmet med peisovn plassert i stue og ellers elektrisk oppvarming via ventilasjonsanlegg, og varmekabler på bad.
Dersom beboelsesrom ikke har vegg- eller fastmonterte varmekilder ved visning, følger dette heller ikke med.
Ferdigattest/brukstillatelse
Det foreligger ferdigattest datert 06.07.2022 Denne kan fås ved henvendelse til megler.
Tinglyste heftelser og rettigheter
Eiendommen overdras fri for pengeheftelser med unntak av:
Sameiet har legalpant for krav mot sameieren som følger av sameieforholdet iht. eierseksjonsloven § 31. Pantet er begrenset oppad til 2G, (G = folketrygdens grunnbeløp).
Det er tinglyst følgende servitutter på sameiets eiendom.
Dagboknr 932874, tinglyst 30.07.2021, type heftelse: Bestemmelse om veg: Den som til enhver tid er hjemmelshaver til gbnr 410/25 skal ha adgang til å opparbeide vei til tomten over gbnr 410/24 etter overkomst.
Det er tinglyst totalt 33 servitutter på eiendom. Disse omhandler blant annet forbud mot oppføring av kornmølle og formaling, kommunens rett til å legge vann/avløpsledninger og vedlikehold av disse, kraftlinjer og rett til vedlikehold samt anleggelse, grøfting av jordmark, tidligere jordskiftesak/grensesak fra 1960, Rett til å bygge inntil felles grense i en avstand på 3 m, Bestemmelse om kloakkpumpeledning, bestemmelse om adkomstrett, opprettelse av verneområde, bestemmelse om naturreservat, Bestemmelser om regulering av vannuttak i Akersvannet, bestemmelse om bebyggelse.
Servituttene er overført fra hovedbruket med gnr. 410 bnr. 1 og bnr. 2 mest sannsynlig i forbindelse med etablering/opprettelse av tidligere festenummer (festenumre utgikk i 2017).
Noen av disse servituttene stammer tilbake til 1902 og kan i den sammenheng antas til å ikke ha betydning for bruk av denne eiendommen.
Servituttene vil følge eiendommen. Kjøpers bank vil få pant etter ovennevnte heftelser og servitutter.
Eventuell adgang til utleie
Leiligheten kan leies ut såfremt leiligheten har forsvarlige radonverdier. Leietaker må følge sameiets vedtekter og ordensregler på lik linje som eier.
Diverse
Tilbud av produkter og tjenester fra våre samarbeidspartnere
Vi er opptatt av verdiskapning, og har knyttet til oss samarbeidspartnere som skal sikre våre kunder de beste produkter og tjenester;
• Gjensidige leverer boligselgerforsikring og tilbyr bygningsforsikring
• Boligkjøperforsikring leveres av Hiscox og med Sedgwick som skadebehandler, og er formidlet gjennom Gjensidige.
• BN bank tilbyr finansieringsløsninger
• Vår avdeling Krogsveen Pluss tilbyr flyttetjenester som utvask, visningsvask, lager, tømming og transport av flyttelass, i tillegg til å formidle kontakt med Flip for overflateoppussing.
• I forbindelse med overtagelse av eiendommen tilbyr Overo avtale om strøm, alarm og bredbånd.
• Krogsveen er, sammen med øvrige bransjeaktører, medeier i den digitale annonseringsplattformen Hjem.
Beliggenhet og tomteforhold
Beliggenhet og tomteforhold
Beliggenhet
Velkommen til Sjuestokkveien 20 B. Leiligheten ligger i et meget barnevennlig og veletablert område, så her kan de minste leke i trygge og gode omgivelser. For de som er glad i sjø og båtliv er det ikke lange turen inn til Tønsberg med restauranter, underholdning og yrende bryggeliv en varm sommerdag. Det er også kort avstand til den flotte skjærgården og destinasjoner som Tønsberg gjestehavn, Vrengen, Veierland, Lindholmen og populære Stauper samt den nyetablerte Færder Nasjonalpark. For øvrige må det nevnes at Vestfjorden har en er lun og trygg skjærgård, her er det gode omgivelser for unge båtførere.
Leiligheten ligger sentralt til med cirka 10 minutters kjøring til Tønsberg sentrum, 10 minutter til Stokke med en mengde butikker. Det er også naboen til den populære 18-hulls golfbanen på Vestfold Golfklubb samt nær dagligvareforretning i Melsomvik, i Stokke og ved Jarlsberg travbane. Kyststien fra Rakkevik og gjennom Brunstad og mot Bogen og Sundåsen er også verdt å få med seg. Perfekt for "søndagsturen". Det er også kort vei til flere badeplasser og rekreasjonsområder på Sjuestokkstranda, Rossnesodden og Melsomvik badestrand og båthavn.
Velkommen til en hyggelig visning.
Barnehager, skoler og fritid
Melsomvik barneskole, Bokemoa barneskole og Stokke Ungdomsskole, samt flere barnehager i nærområde. Dersom skole- og barnehagetilbud er av betydning for kjøpet, ber vi om at det rettes en særskilt henvendelse til kommunen for oppdatert informasjon.
Beskrivelse av tomt
Eiertomt på 1 856 kvm som tilhører sameiet. Tomten er fellesareal.
Parkering
Parkering i carport med montert el-bil lader, eller på felles biloppstillingsplass
Vei, vann og avløp
Eiendommen har adkomst via privat vei med felles vedlikeholdsansvar gjennom veilaget.
Eiendommen er tilknyttet kommunalt ledningsnett via private stikkledninger. Eier/Sameiet er selv ansvarlig for private stikkledninger til boligen.
Regulerings-og arealplaner
Eiendommen er regulert til Boligbebyggelse-frittliggende småhusbebyggelse i henhold til reguleringsplan Sjustokkveien boligområde datert 11.12.2016
I kommuneplan er område avsatt til boligbebyggelse, hensyn landskap, hensyn friluft og bevaring kulturmiljø.
Utsnitt av plan med tilhørende bestemmelser kan fås ved henvendelse til megler.
Økonomi
Økonomi
Boligens kostnader
Fellesutgiftene er kr 360,- pr. mnd. og inkluderer: Felles bygningsforsikring.
Nåværende eier har et strømforbruk som tilsvarer ca. 12000 kwh. pr. år.
Boligen er tilknyttet Viken fiber som leverandør av Tv/internett og har avgift på kr 1339,- pr. mnd. Tv-tuner/dekoder medfølger ikke.
Eiendommen har privat brøyting og koster ca 1500,- pr år men kan variere med snømengde.
Utgiftene er basert på nåværende eiers forbruk. Kjøper må selv tegne innboforsikring.
Kommunale utgifter
Kommunale avgifter er kr 14.888,- for inneværende år. I dette inngår gebyr for vann og avløp og renovasjon
Nåværende eier har et strømforbruk som tilsvarer ca. 12000 kwh. pr. år.
Boligen har en årlig forsikringspremie på kr 17.560. Dette er felles bygningsforsikring og kostnaden er fordelt på 4 enheter.
Velavgift til Sjuestokk Vel og veilag er kr 350 pr. år.
Boligen er tilknyttet Viken fiber som leverandør av Tv/internett og har avgift på kr 1339 pr. mnd. Tv-tuner/dekoder medfølger ikke.
Eiendommen har privat brøyting og koster ca 1500,- pr år men kan variere med snømengde.
Utgiftene er basert på nåværende eiers forbruk og avtaler.
Formuesverdi
Formuesverdi for 2023 var kr 909 016,- ifølge skatteetaten. Beløpet forutsetter at eier bor fast i boligen (primærbolig).
Ved eventuell øvrig bruk av eiendommen (f.eks. fritidsbolig, pendlerbolig, utleieobjekt) var formuesverdien for 2023 kr 3 636 065,-
Formuesverdien justeres normalt årlig. Se skatteetaten.no for mer informasjon om fastsettelse av formuesverdien.
Omkostninger
3 790 000,00 Prisantydning
Omkostninger
94 750,00 Dokumentavgift til staten (2,5% av kjøpesum)
9 950,00 Gjensidige Boligkjøperpakke (valgfri)* (valgfritt)
545,00 Tinglysing panterettsdokument
545,00 Tinglysing skjøte
--------------------------------------------------------
95 840,00 Omkostninger totalt (uten Gjensidige Boligkjøperpakke (valgfri))
105 790,00 Omkostninger totalt (med Gjensidige Boligkjøperpakke (valgfri))
--------------------------------------------------------
3 885 840,00 Totalpris inkl. omkostninger
3 895 790,00 Totalpris inkl. omkostninger (med Gjensidige Boligkjøperpakke (valgfri))
--------------------------------------------------------
Tilbud om lånefinansiering
Megler formidler gjerne kontakt med rådgiver hos vår samarbeidspartner BN Bank. De har konkurransedyktige betingelser samt rask og løsningsorientert behandling av din lånesøknad. Krogsveen mottar et honorar for denne formidlingen.
Betalingsbetingelser
Kjøpesum inkludert omkostninger, samt pantedokument tilknyttet eventuelt lån, skal være disponibelt hos megler 2 virkedager før overtagelsen.
Annen viktig informasjon
Annen viktig informasjon
Eier
Adrian Frednes og Guro Haugland
Overtakelse
Etter nærmere avtale.
Boligselgerforsikring
Selger har i forbindelse med salget tegnet boligselgerforsikring levert av Gjensidige.
Boligselgerforsikringen dekker selgers ansvar etter avhendingsloven begrenset oppad til kr 14 millioner. Dersom kjøper oppdager forhold ved eiendommen som hen mener utgjør en mangel ved eiendommen, vil Gjensidige behandle reklamasjonen på vegne av selger. Forsikringsvilkår kan fås ved henvendelse til megler.
Vedlagt salgsoppgaven følger selgers egenerklæringsskjema og tilstandsrapport. Interessenter må sette seg inn i dokumentene før bud inngis.
Boligkjøperforsikring
Innen kontraktsmøtet må kjøper ta stilling til om det ønskes å bestille Boligkjøperpakken gjennom Gjensidige. I denne gunstige pakken er boligen ferdig forsikret og inkluderer rettshjelpsforsikring, også kalt Boligkjøperforsikring. Rettshjelpsforsikring gir trygghet og tilgang på profesjonell juridisk hjelp dersom det oppdages uventede feil eller mangler det første året etter overtagelse. Forsikringsselskapet behandler i så fall ethvert mangelskrav kjøper måtte ha overfor selger.
Boligkjøperpakken inkluderer bygningsforsikring for hus og hytte, innboforsikring, flytteforsikring og dobbel rentedekning - i situasjoner hvor kjøper ikke får solgt nåværende primærbolig.
Kjøper mottar ingen særskilt faktura for Boligkjøperpakken da kostnaden det første året legges til kjøpesummen for boligen. Det gjøres oppmerksom på Krogsveen mottar et honorar for denne formidlingen.
Produktark for Boligkjøperpakken ligger vedlagt i salgsoppgaven.
Dersom ikke boligkjøperpakke ønskes kan kun rettshjelpsforsikring, også kalt boligkjøperforsikring, tegnes særskilt via megler. Rettshjelpsforsikringen varer i 5 år fra overtagelse og leveres gjennom Gjensidige. Ta kontakt med megler for ytterligere informasjon.
Selskap og privatpersoner som driver med kjøp/salg/utvikling som ledd i egen næringsvirksomhet kan ikke tegne boligkjøperpakke eller rettshjelpsforsikring.
Budgivning
Forbrukerinformasjon om budgivning er vedlagt denne salgsoppgaven og er også på vår hjemmeside Krogsveen.no. Alle bud og budforhøyelser må inngis skriftlig. I tillegg må legitimasjon være fremlagt sammen med signatur fra budgiver.
Vi oppfordrer til å gi bud elektronisk via GI BUD-knappen på eiendommens hjemmeside på Krogsveen.no. Da vil samtlige vilkår bli oppfylt.
Eventuelle forhøyelser eller endringer av budet kan bekreftes pr SMS eller på e-post. Vi oppfordrer alltid til å kontakte megler pr. telefon i tillegg da forsinkelser i SMS og e-post kan forekomme.
For at budene skal kunne bli behandlet og videreformidlet skriftlig til alle involverte parter, må alle bud ha en tilstrekkelig lang akseptfrist, jf. eiendomsmeglingsforskriften § 6-3.
Selger må også skriftlig akseptere budet før aksept kan formidles til budgiver. Akseptfrist bør derfor være på minimum 30 minutter, og budforhøyelser må derfor skje i god tid før fristens utløp.
Bud i forbrukerforhold kan uansett ikke settes med kortere frist enn kl. 12.00 første virkedag etter siste annonserte visning. I tillegg kan ikke budet ha forbehold om at det skal holdes hemmelig ovenfor øvrige interessenter. Megler har iht lov om eiendomsmegling ikke anledning til å videreformidle disse budene, og de vil dermed heller ikke bli journalført.
Etter at eiendommen er solgt vil kjøper og selger få tilsendt budjournal. Øvrige budgivere kan få utlevert kopi av budjournalen i anonymisert form.
Hvitvaskingsreglene
I henhold til lov om hvitvasking og terrorfinansiering har megler plikt til å gjennomføre kontrolltiltak overfor kunder, herunder fullmektiger. Dette innebærer bl.a. å bekrefte kunders og reelle rettighetshaveres identitet på bakgrunn av fremvist gyldig legitimasjon eller på annen godkjent måte, samt å innhente opplysninger om kundeforholdets formål og tilsiktede art.
Dersom slike kundetiltak ikke kan gjennomføres, kan megler ikke etablere kundeforholdet eller utføre transaksjonen.
Hvis kjøper ikke bidrar til gjennomføring av kundekontrollen og dette fører til at transaksjonen blir forsinket eller ikke kan gjennomføres, vil dette ansees som mislighold av avtalen og gi selger rettigheter etter avhendingslova kapittel 5. I tilfeller der selger ikke bidrar til gjennomføring av løpende kundekontroll underveis i oppdraget, er det selger som misligholder sine forpliktelser etter avtalen og gi kjøper rettigheter etter avhendingslovens kapittel 4. Partene er selv ansvarlige for eventuelle kostnader og ansvar dette kan medføre. Eiendomsmegleren eller eiendomsmeglingsforetaket kan ikke holdes ansvarlig for de konsekvenser dette vil kunne få for partene eller andre som har interesser i eiendomshandelen.
Kjøper oppfordres til å innbetale kjøpesummen som ikke kommer fra låneinstitusjon i én samlet innbetaling fra egen konto i norsk bank. Megler har plikt til å melde fra til Økokrim om eiendomshandler som fremstår som mistenkelige. Melding sendes Økokrim uten at partene varsles.
Personopplysningsloven
I henhold til personopplysningsloven gjør vi oppmerksom på at interessenter kan bli registrert for videre oppfølging.
Lovanvendelse
Generelle bestemmelser
Salgsoppgaven er basert på de opplysningene selger har gitt til megler, den bygningssakyndiges tilstandsrapport, samt opplysninger innhentet fra kommunen, Kartverket og andre tilgjengelige kilder. Det er viktig at kjøper setter seg grundig inn i alle salgsdokumentene, herunder salgsoppgave, tilstandsrapport og selgers egenerklæring. Kjøper anses kjent med forhold som er tydelig beskrevet i salgsdokumentene, og slike forhold kan ikke påberopes som mangler. Dette gjelder uavhengig av om kjøper har lest dokumentene. Alle interessenter oppfordres til å undersøke eiendommen nøye, gjerne sammen med fagkyndig før bud inngis. Kjøper som velger å kjøpe usett kan ikke gjøre gjeldende som mangel noe han burde blitt kjent med ved undersøkelsen.
Dersom det er behov for avklaringer, anbefaler vi at interessenter rådfører seg med eiendomsmegler eller egne rådgivere før det legges inn bud.
En bolig som har blitt brukt i en viss tid, har vanligvis blitt utsatt for slitasje og skader kan ha oppstått. Slik bruksslitasje må kjøper regne med, og det kan avdekkes enkelte forhold etter overtakelse som nødvendiggjør utbedringer. Normal slitasje og skader som nødvendiggjør utbedring, er innenfor hva kjøper må forvente og vil ikke utgjøre en mangel.
Kjøper og selgers rettigheter og plikter reguleres av avtalen mellom partene, samt informasjonen som har vært tilgjengelig for kjøperen i forbindelse med handelen. Avtalen utfylles av avhendingsloven, og det gjelder ulike avtalevilkår avhengig av om kjøper er forbrukerkjøper eller ikke. Dette er nærmere beskrevet nedenfor.
På grunn av ulike avtalevilkår kan selger vurdere bud fra en som ikke er forbruker, ulikt fra en forbrukers bud. Dersom kjøper ikke er forbruker, er selger sitt mulige mangelsansvar begrenset fordi eiendommen selges "som den er". Selger kan ikke ta «som den er»- forbehold overfor en forbrukerkjøper. Selv et lavere bud fra en som ikke er forbruker kan foretrekkes fordi begrensningen i mulig mangelsansvar kan ha egenverdi for selger. Selger står fritt til å forkaste eller akseptere ethvert bud, og er for eksempel ikke forpliktet til å akseptere høyeste bud.
Budgiver skal i budskjema avgi egenerklæring om budgiver er forbruker eller næringsdrivende/ person som hovedsakelig handler som ledd i næringsvirksomhet. Budgivere får informasjon dersom andre bud er inngitt av en som ikke er forbruker.
Forbrukerkjøp - definisjon
Med forbrukerkjøp menes kjøp av eiendom når kjøperen er en fysisk person som ikke hovedsakelig handler som ledd i næringsvirksomhet.
Forbruker – avtalevilkår
Eiendommen har en mangel dersom den ikke er i samsvar med kravene som følger av avtalen, eller det foreligger brudd på bestemmelsene i avhendingsloven §§ 3-2 til 3-8. Hvis eiendommen ikke er i samsvar med det kjøperen må kunne forvente ut ifra alder, type og synlig tilstand, kan det være grunnlag for mangelskrav. Det samme gjelder hvis det er holdt tilbake eller gitt uriktige opplysninger om eiendommen. Dette gjelder likevel bare dersom man kan gå ut ifra at det virket inn på avtalen at opplysningen ikke ble gitt eller at mangelskravet ikke blir rettet i tide på en tydelig måte.
Boligen kan ha en mangel etter avhendingsloven § 3-3 andre ledd, dersom det er avvik mellom opplyst og faktisk innvendig areal, forutsatt at avviket er på 2% eller mer og minimum 1 kvm.
Ved beregning av et eventuelt prisavslag eller erstatning må kjøper selv dekke tap/kostnader opptil et beløp på kr 10 000 (egenandel).
Ikke-forbruker (næringsdrivende) – definisjon
Hvis kjøper er en juridisk person, eller en fysisk person som hovedsakelig handler som ledd i næringsvirksomhet, vil kjøpet ikke anses som et forbrukerkjøp.
Ikke-forbruker – avtalevilkår
Eiendommen har en mangel dersom den ikke er i samsvar med kravene som følger av avtalen.
Eiendommen selges «som den er», og selgers ansvar utover det konkret avtalte er da begrenset etter avhendingsloven § 3-9, første ledd andre setning.
Avhendingsloven § 3-3 andre ledd fravikes, og hvorvidt boligens arealsvikt utgjør en mangel vurderes etter avhendingsloven § 3-8.
Informasjon om kjøpers undersøkelsesplikt, herunder oppfordringen om å undersøke eiendommen nøye, gjelder også for kjøpere som ikke anses som forbrukere.
Det forutsettes at hjemmel overføres til kjøper. Hvis kjøper ikke ønsker hjemmelsoverføring av eiendommen, må det tas forbehold om dette i budet.
Meglers vederlag
Meglers vederlag betales av selger og er avtalt til:
Vederlag: 38.000,-
Tilrettelegging fra kr 15.000,-
Oppgjør: kr 7.500,-
Markedspakke: kr 27.400,-
Visninger: kr 2.000,- pr. visning
Oppslag eiendomsregister: kr 2.900,-
Megler har i tillegg krav på dekning av følgende utlegg:
Foto ink drone og kveldsfoto: 7.500,-
Info sandefjord kommune: 3.166,-
Tilstandsrapport: 10.750,-
Opplysninger om oppdraget
Oppdragsnummer 22-0341/25
Eiendomsmegler Krogsveen AS, avd. Sandefjord
Jernbanealléen 13, 3210, SANDEFJORD
950 007 613
Oppdragets KR-kode KR22.25341
Dato
Sist oppdatert: 28. april 2026 kl. 10:21
Dokumenter
Dokumenter
PDF – 457 KB
PDF – 744 KB
PDF – 312 KB
PDF – 29 KB
PDF – 127 KB
PDF – 392 KB
Område
Legg til steder som er viktige for deg
Visning
For å delta på visning, ber vi om at du melder deg på. Da sikrer vi at du får nødvendig informasjon og at det er satt av tilstrekkelig med tid. Kontakt megler dersom annet tidspunkt ønskes. Husk å lese salgsoppgaven før visningen, så du stiller forberedt. NB. Visning utgår dersom det ikke er noen påmeldte.
Ønsker du kun å bli holdt orientert, kan du fra eiendommens hjemmeside få varsel om solgtpris, eller kontakte megler.
Lurer du på noe?
Unngå doble boligrenter
Vi tilbyr gunstig forsikring.
Vurderer du utleie?
Få et tilbud fra Utleie KrogsveenHva koster lånet?
Sjekk estimert lånekostnadVil du varsles om lignende boliger?
Ved å lagre ditt boligsøk hos oss får du beskjed når vi har en bolig som ligner denne, før den legges ut på markedet!

