Ekelyveien 11B
19 900 000 kr
153 m²
3 soverom
Komplett salgsoppgave

Vinderen
Elegant leilighet i idyllisk villavei på Ris - Heis - Peis - 2 garasjeplasser - Stor terrasse 34 kvm - Trafikkstille
Prisantydning
19 900 000 krOmkostninger
508 540 krTotalpris
20 408 540 kr
Pris
Bruksareal
158 m²BRA-I (internt bruksareal)
153 m²BRA-E (eksternt bruksareal)
5 m²TBA (terrasse-balkongareal)
34 m²
Areal
Etasje
1Byggeår
2002Soverom
3 soveromBad
2 badType
EierleilighetEierform
EierseksjonFasiliteter
Garasje/P-plass, Heis og Balkong/TerrasseFellesutgifter
7 610 krEnergimerke
Lysegrønn C
Nøkkelinfo
Unngå doble boligrenter
Vi tilbyr gunstig forsikring.
Vurderer du utleie?
Få et tilbud fra Utleie KrogsveenHva koster lånet?
Sjekk estimert lånekostnadBeskrivelse
Kort om eiendommen
Velkommen til Ekelyveien 11B!
En representativ og innholdsrik endeleilighet med attraktiv og fredelig beliggenhet i grønne omgivelser mellom Vinderen og Slemdal. Umiddelbar nærhet til et godt utvalg av forretninger og servicetilbud på Slemdal og Vinderen Senter, samt offentlig kommunikasjon. Kort gange til flotte turstier i nærområdet, sommer som vinter.
Høydepunkter:
- Representativt bygg fra 2002
- 2 garasjeplasser. EL-lader.
- Stor terrasse på 34 kvm.
- Heis i bygget
- Del av hagen er tinglyst som en tilleggsdel til seksjonen.
- Enkel, trappefri adkomst til leiligheten
- Peis
- Praktisk innvendig bod
- Hyggelig og velholdt lite sameie
- 2 bad, vaskerom og toalettrom
- Usjenert og tilbaketrukket fra veien
- Nærhet til byen og marka
Velkommen til visning!
Innhold og byggemåte
Innhold og byggemåte
Eiendommen
Ekelyveien 11B, 0374 OSLO
Kommunenummer 301, gårdsnummer 35, bruksnummer 5, seksjonsnummer 8, ideell andel 1/1
Innhold
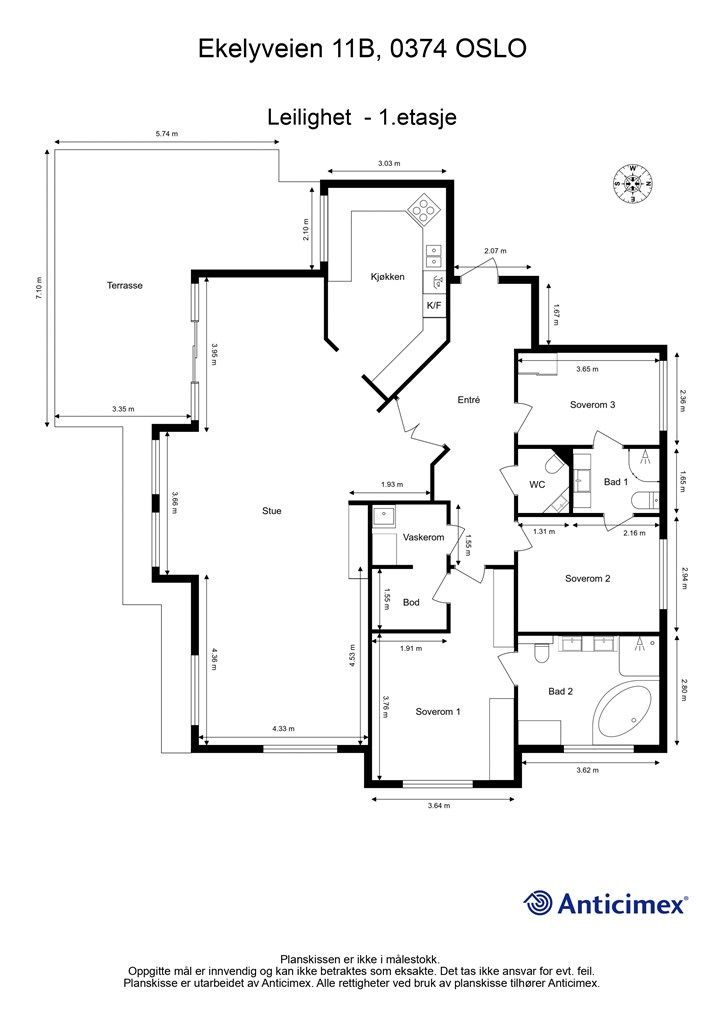
Totalt bruksareal BRA: 158 kvm
BRA-i:
1. etasje 153 kvm: Entré, to baderom, vaskerom, stue, kjøkken, tre soverom, toalettrom og bod.
BRA-e:
Kjeller: 5 kvm: Kjellerbod.
Åpent areal:
1. etasje 34 kvm: Terrasse.
Boligen disponerer 1 kjellerbod. Boden er tinglyst som en tilleggsdel til seksjonen.
Vedlagte plantegninger er ikke målbare. De oppgitte arealer er hentet fra rapport med befaringsdato 08.12.2025 utført av Anticimex AS.
Byggemåte
Selveierleilighet i Sameiet Ekelyveien 11 og 13 beliggende i bydel Vestre Aker, Oslo kommune. Boligbygg over 3 etasjer samt kjeller. Gulv mot grunn av betong. Grunnmur og skillende dekker av betong. Bærende konstruksjoner av tre -og stålkonstruksjoner. Valmet yttertak utvendig tekket med takstein/takplater (taket er ikke besiktiget). Utvendige fasader forblendet med teglstein og trekledning. Leiligheten har Slett entrédør med brannklasse B30 og lydklasse 40dB. Vindu og balkongskyvedør med to-lags glass fra byggeår. Les for øvrig mer om byggemåte og den tekniske tilstanden i rapporten.
Selger har fått utarbeidet en tilstandsrapport, dvs. en teknisk gjennomgang av boligen hvor eventuelle avvik, risiko for kjøper og prisoverslag for hva som bør gjøres av oppgradering, er skissert. Se særskilt TGIU (tilstandsgrad ikke undersøkt), samt TG2 som viser hva som er boligens normale slitasje, alder og type, hva som er avvik fra dette og hva som bør/må utbedres. Rapporten og selgers egenerklæring er en del av salgsoppgaven og må leses nøye før bud inngis. Kjøper overtar ansvaret for de opplysninger som fremkommer av salgsdokumentasjonen, og kan ikke gjøre gjeldende som mangel noe som burde vært kjent eller som ikke kan anses å ha betydning for avtalen.
Sammendrag av boligens tilstandsgrad:
TG1: 54%
TG2: 40%
TGIU: 6%
Det gjøres spesielt oppmerksom på:
Tilstandsgrad 2 (TG2):
- Baderom 1: Det er generelt gitt tilstandsgrad 2 som en helhetsvurdering. Fornying/oppgradering av våtrommet bør påregnes.
- Baderom 2: Det er generelt gitt tilstandsgrad 2 som en helhetsvurdering. Fornying/oppgradering av våtrommet bør påregnes.
- Vaskerom: Det er generelt gitt tilstandsgrad 2 som en helhetsvurdering. Fornying/oppgradering av våtrommet bør påregnes.
- Toalettrom: Overflater vegger, Overflater gulv, Sanitærutstyr/innredning.
- Rom under terreng: Overflater gulv, Etasjen har vegger under bakkenivå som er utlektet fra grunnmuren. Konstruksjonen er lukket, og det er ikke kjent hvordan oppbyggingen er utført. Dette sammen med dreneringens alder tilsier risiko for fuktskader i konstruksjonen.
- Elektrisk anlegg: Forenklet vurdering av det elektriske anlegget.
Tilstandsgrad ikke undersøkt (TGIU):
- Kjøkken: Vannrensesystem er ikke vurdert da dette krever spisskompetanse. Det er ikke etablert komfyrvakt på kjøkkenet.
- Tekniske anlegg, VVS anlegg: Stakeluke.
- Terrasse: Fundamentene var ikke tilgjengelig for undersøkelser, noe som gjorde at utførelsen/tilstanden ikke lot seg kontrollere.
Kjøper overtar ansvar og risiko for dette. For mer informasjon om overnevnte punkter, vennligst se boligens tilstandsrapport.
Sammendrag av selgers egenerklæring:
Har det vært feil på bad, vaskerom eller toalettrom? - "Ja."
Beskriv feilen og omfanget. -"Ja. Da vi overtok boligen var det skade på boblebadet uten at det var opplyst til oss Tidligere eier hadde eierskifteforsikring, men kostanden for reparasjon var for lav til at den ville dekke denne skaden. Motoren måtte skiftes og fliser etc ble tatt ned. Vi betalte over 20.000 kroner for reparasjon i 2011. Det var også en skade på vann t vaskerommet ca 4-5 år siden. Vannet rant ikke ut av vaskemaskin og rørlegger kom. Det viste seg at det ikke hadde noe med vår bruk å gjøre, men at det var en prop i røret ca 12-13 meter ut fra vår husvegg og røret var enten skadet eller stoppen kunne skyldes bruk fra andre i sameiet. Etter det har alt vært bra."
Er det utført arbeid på bad, vaskerom eller toalettrom? - "Ja."
Fortell kort hva som ble gjort av faglærte. -"Det første har jeg fortalt om i punktet over. I 2024 januar ble det satt inn nye dusjvegger på det store badet. Utført av Kjøkken og rør A/S"
Har du dokumentasjon på arbeidet? - "Ja."
Er det utført arbeid på tak, yttervegg, vindu eller annen fasade? - "Ja"
Fortell kort hva som ble gjort av faglærte. - "Skiftet ut diverse ødelagte takstein i 2024."
Har du dokumentasjon på arbeidet? - "Nei."
Har sameiet eller borettslaget hatt problemer med fukt, vann eller oversvømmelse i kjeller eller underetasje? - "Ja. Vært vann som kommer inn i garasjeanlegget ved kraftig regnværet. Risten utenfor garasjeinngangen har ikke alltid klart å ta unna alt regnet. Det har alltid vært 1 dag eller 2 før alt er tørket opp igjen. Det har ikke vært noen dramatikk. Det er skiftet ut noe taksteiner på taket fordi de har vært i stykker."
Er det utført arbeid med drenering? - "Ja."
Fortell kort hva som ble gjort av faglærte. - "Det ble lagt en rist like foran inngangen til garasjen for å bedreavrenning av vann i 2013. Utført i regi av sameiet."
Har du dokumentasjon på arbeidet? - "Nei."
Er det utført arbeid på det elektriske anlegget? - "Ja."
Fortell kort hva som ble gjort av faglærte. - "Utskifting til leddlys i 2025. Utført i regi av sameiet i ganger og i rom med boder."
Har du dokumentasjon på arbeidet? - "Nei."
Har det vært feil på utvendige eller innvendige avløpsrør eller vannrør? - "Ja. Vi fikk en stopp på avløp fra vaskemaskinen fra vaskerommet vårt. Det viste seg at det ikke var noe galt hos oss men at det var en propp i avløpet ca 12-13 meter utenfor husveggen Den kan ha oppstått fra andre brukere enn hos. Problemet ble løst."
Har det vært feil på varmeanlegg eller ventilasjonsanlegg? - "Ja."
Beskriv feilen og omfanget, og eventuelt hva som ble utført av arbeider på anlegget. - "Ventilasjonen fungerte ikke tilfredsstillende alle steder i sameiet. Blant annet var det dårlige vår leilighet. I årsskiftet 24/25 ble det utbedret i vårt bygg Ekelyveien 11B. Nå fungerer det veldig bra."
Er det utført arbeid på varmeanlegg eller ventilasjonsanlegg? - "Ja."
Fortell kort hva som ble gjort av faglærte. -"Skiftet motor til ventilasjonsanlegg oppe på taket i 2025. Dette ble gjort i regi av sameiet og utført av Bjerke Ventilasjon. Sameiet har dokumentasjon på arbeidet"
Foreligger det planer eller bestemmelser som kan medføre endringer av felleskostnader eller fellesgjeld? - "Ja."
Hvilke planer? Hvor stor endring vil kostnadene og/eller gjelden medføre? - "Snakk om gjennomgang av heiser på sikt. Det er 3 heiser i sameiet en i hver bygning. I vårt hus 11B ble heisen rehabilitert for 2-3 år siden."
Er sameiet eller borettslaget er involvert i konflikter av noe slag? - "Ja."
Fortell om konflikten og partene slik du har forstått det. - "Vi har hatt en diskusjon om hva som er vedlikehold og hva som er oppgradering. Det har skapt litt konflikt."
Standard
Entré:
Velkommen inn! Entréen er innbydende med rikelig med oppbevaringsplass. Her kan man henge fra seg jakker og sko, og entréen gir et godt førsteinntrykk av boligen. Varmekabler i gulv. Adkomst via felles trappegang eller heis med callinganlegg. Videre er det også et praktisk gjestetoalett i entréen som er utstyrt med gulvstående toalett og servant.
Stue:
Stuen er av god størrelse og kan enkelt innredes med en hyggelig sittegruppe og tilhørende salongbord og tv-seksjon. God takhøyde og store vindusflater slipper inn rikelig med lys og skaper en lys og luftig atmosfære. Det er også naturlig og fin plass for å innrede med et spisebord med god plass til å invitere på middag. Dette er et rom du virkelig kan sette ditt eget preg på og invitere venner og familie til hyggelige sammenkomster og hverdagskos. I stuen er det også en herlig peisovn - perfekt for kalde vinterkvelder. Fra stuen er det også utgang til leilighetens terrasse. På veggen bak spisestuen der det i dag står et skap er det et vindu som er blendet av, dette kan enklet tas frem igjen om man ønsker det.
Uteplass:
Stor og usjenert terrasse med adkomst fra stuen. Terrassen er oppmålt til 34 kvm og er belagt med terrassebord. Her er det rikelig med plass til å innrede med ønsket utemøblement og nyte årets varmere dager. Det er elektrisk markise, stikkontakt, utelys og varmelampe på terrassen. Uteplassen er dessuten det perfekte stedet å flytte middagen ut på sommerstid. Videre er det flotte muligheter for de minste og firbente til å boltre seg i hagen, sommer som vinter.
Kjøkken:
For mange er kjøkkenet det viktigste rommet i boligen. Kjøkkenet er holdt i en delvis åpen løsning mot stuen, som gjør at rommet blir et naturlig og sosialt samlingspunkt i boligen. Man kan enkelt sette inn dører om det er ønskelig. Kjøkkeninnredning er med profilerte fronter fra Huseby. Benkeplaten er i Corian med nedsenket oppvaskkum. Det er flotte fliser på vegg over kjøkkenbenken. Integrert kjøleskap, platetopp og 2 stekeovner. Den ene med stekeovn, varmluft og damp. Den andre med stekeovn, varmluft og microcontroller. Frittstående oppvaskmaskin. Vegghengt ventilator over kokeplass. Kjøkkenet har vannrensesystem. Det er et generøst og gjennomtenkt kjøkken, med rikelig av oppbevaringsplass.
Vaskerom og bod:
Praktisk vaskerom lokalisert i forbindelse med entréen. Rommet har opplegg og god plass til vaskemaskin og tørketrommel. Rommet har frittstående skap med ovenpåliggende benkeplate i laminat og vegghengt utslagsvask. Innvendig bod ligger i delvis åpen løsning til vaskerommet og har gode oppbevaringsmuligheter. Det er generelt gitt TG2 på vaskerommet. Vennligst se tilstandsrapporten for mer informasjon.
Soverom:
Leiligheten har 3 soverom av god størrelse. Stort og romslig hovedsoverom med god plass til dobbeltseng, tilhørende nattbord på begge sider og garderobeskap. Store vindusflater i kombinasjon med takhøyden gir rommet en lys og luftig atmosfære.
Soverom 2 og 3 kan innredes etter ønske og behov. Rommene oppleves møbleringsvennlig hvor soverom 2 har plass til dobbeltseng, nattbord og og garderobeskap. Soverom 3 har plass til seng, nattbord og garderobeskap. Rommene egner seg også godt som barnerom, kontor eller gjesterom.
Bad:
Leiligheten har 2 bad. Begge badene er flislagt med varme i gulv og nedsenket himling med downlights. Baderom 1 er svært romlig og ligger i tilknytning til hovedsoverommet. Dette er innredet med vegghengt toalett og servantskap med ovenpåliggende dobbeltvask, samt speilskap over servant. Videre er det egen dusjnisje med innfellbare dusjdører i glass og innmurt boblebadekar. Baderom 2 er av god størrelse og ligger plassert mellom soverom 2 og 3. Badet er innredet med vegghengt servantskap med ovenpåliggende vask, samt speil, skap og lys over servanten. Det er egen dusjsone med skyvedører i glass og vegghengt toalett. Badene er TG2 som helhetsvurdering. Vennligst se tilstandsrapporten for mer informasjon.
Øvrig:
Gulv: Gulvflater belagt med parkettbord samt fliser i entré
Vegger: Vegger i malte flater.
Himling: Himlinger i malte flater samt nedsenket himling med downlights i entré og stue.
Takhøyde: 2,48 meter i kjøkken, stue, entré, vaskerom og soverom. 2,28 meter i baderom.
Løsøre og tilbehør
Vi viser til liste fra Norges Eiendomsmeglerforbund som gjelder fra 01.01.2020 angående løsøre og tilbehør.
Oppvaskmaskin vil medfølge.
Vegghengt glassbilde i stuen vil ikke medfølge.
Oppvarming
Leiligheten er tilknyttet felles varmtvann. Oppvarming med varmepumpe kombinert med vedfyring.
Dersom beboelsesrom ikke har vegg- eller fastmonterte varmekilder ved visning, følger dette heller ikke med.
Selger har avtalt Norgespris på strøm på eiendommen for perioden 03.10.2025-31.12.2026, og denne er pt på 50 øre inkl mva. Nettleie, avgifter og påslag fra kraftleverandøren kommer i tillegg. Er det fjernvarme vil det også komme kostnader i tillegg.
Denne avtalen vil følge eiendommen i den avtalte perioden.
Les mer om Norgespris her: https://www.regjeringen.no/no/aktuelt/legg-fram-lov-om-norgespris-pa-straum-og-fjernvarme/id3102642/
Ferdigattest/brukstillatelse
Det foreligger ferdigattest på eiendommen, datert 19.12.2011.
Det foreligger ferdigattest for tilbygg (utvidelse av underjordisk garasje), datert 09.06.2009.
Det foreligger ferdigattest for utskiftning av skorstein, datert 15.03.2023.
Disse kan fås ved henvendelse til megler.
Dagens planløsning stemmer overens med siste godkjente tegninger.
Kjøper overtar leiligheten slik den fremstår på visning. Kjøper overtar alt ansvar, kostnad og risiko for dette videre.
Tinglyste heftelser og rettigheter
Leiligheten overdras fri for pengeheftelser.
Sameiet har legalpant for krav mot sameieren som følger av sameieforholdet iht. eierseksjonsloven § 31. Pantet er begrenset oppad til 2G, (G = folketrygdens grunnbeløp).
Det er tinglyst 12 servitutter på sameiets eiendom. Disse omhandler blant annet bestemmelse om veg, bestemmelse om bebyggelse, bestemmelse om deleforhold, bestemmelse om vannledning, bestemmelse om vann/kloakkledning, bestemmelse om gjerdeplikt, bestemmelse om adkomstrett, rett for kommunen til å anlegge og vedlikeholde ledninger mv., midlertidig dispensasjon fra bygningsloven vedrørende utskillelse/bebyggelse. Forpliktelse til vederlagsfritt å overdra grunn til vei i en bredde av inntil 10 m, erklæring/avtale.
Servituttene vil følge eiendommen. Kjøpers bank vil få prioritet etter ovennevnte heftelser og servitutter.
Det er tinglyst 2 rettigheter på sameiets eiendom. Disse omhandler blant annet bestemmelse om vannrett og bestemmelse om vannledning.
Eventuell adgang til utleie
Leiligheten kan leies ut såfremt leiligheten har forsvarlige radonverdier. Leietaker må følge sameiets vedtekter og ordensregler på lik linje som eier.
Beliggenhet og tomteforhold
Beliggenhet og tomteforhold
Beliggenhet
Her bor du fredelig og idyllisk til med en hyggelig hage. Området er stille og rolig, samtidig som det er kort vei til både byen, marka, sjøen og kollektivforbindelser. Dette er den perfekte boligen for dere som ønsker å bo sentrumsnært, men med mulighet for å slippe barna rett ut.
Fem minutters gangavstand til Vinderen sentrum med et godt utvalg av forretninger; dagligvarebutikker, kaféer i tillegg til servicefunksjoner som post i butikk, apotek, renseri, tannlege og lege. På Vinderen finner du blant annet Baker Hansen, Little Italy pizza take away, Vinderen sushi, Billie’s Kitchen, egen fiskebutikk, frisør, SATS og Mudo treningsstudio, Vinmonopol, flere klesforretninger, Jernia, Rema 1000 og Coop Mega m.m.
Fra Ekelyveien er det kort avstand til offentlig kommunikasjon i form av T-bane fra Vinderen eller Ris stasjon og til buss i Holmenveien. T banen tar deg til Majorstuen på fem minutter og til Jernbanetorget på tolv minutter. Flybuss fra Ris. Ekelyveien ligger i et meget veletablert og populært boligstrøk skjermet fra støy og trafikk.
Nærhet til markaportene ved Rugdeveien og Rikshospitalet med fantastiske bade-, tur-, sykkel- og skimuligheter innover marka via Sognsvann. Gangavstand til bl.a. Majorstuen og Frognerparken med gode rekreasjonsmuligheter. Kort vei også til Heming og Holmenkollen Tennisklubb, Hemingbanen og Gressbanen. Flere barnehager i nærområdet og umiddelbar nærhet til Holmenveien barnehage. Eiendommen sogner til Vinderen skole og Ris ungdomsskole.
Adkomst
Ekelyveien har adkomst fra både Risalléen og fra Holmenveien. Det vil bli skiltet med Krogsveen visningsskilt ved fellesvisninger.
Barnehager, skoler og fritid
Informasjon om tilhørende skolekretser er hentet fra Prognosesenteret som dataleverandør, og tilhørigheten kan årlig endres av kommunen. Dersom skole- og barnehagetilbud er av betydning for kjøpet, ber vi om at det rettes en særskilt henvendelse til kommunen/bydelsadministrasjonen for oppdatert informasjon.
Beskrivelse av tomt
Eiertomt på 4 284 kvm som tilhører sameiet. Tomten er fellesareal og er pent opparbeidet med blant annet steinbelagt adkomst, gressplen, trær, prydbusker og diverse beplantning. Del av hagen (4 meter ut fra husveggen) er tinglyst som en tilleggsdel til seksjonen og oppmåling fremkommer i vedlagt kart i reseksjoneringen.
Parkering
Leiligheten disponerer to biloppstillingsplasser ved siden av hverandre i felles garasjeanlegg med en el-bil lader. Fastmontert lader for el-bil medfølger. Alle ladere har egen måler til strøm og det blir sendt ut separat regning for strømforbruket en gang i løpet av året.
Det er varmekabler i bakken fra vei/fortau inn til hovedinngangsdører og til nedkjøring til garasjeanlegget.
Ellers er det gateparkering etter områdets bestemmelser.
Vei, vann og avløp
Eiendommen har adkomst via privat vei med felles vedlikeholdsansvar for sameiet.
Eiendommen er tilknyttet kommunalt ledningsnett via private stikkledninger. Sameiet er ansvarlig for private stikkledninger til bygningen.
Regulerings-og arealplaner
Eiendommen er regulert til boligformål i henhold til reguleringsplan S-4220 datert 15.03.2006 med tilhørende reguleringsbestemmelser. Bystyret har vedtatt en ny småhusplan, men den er ikke rettskraftig enda grunnet innsigelser fra Norges Vassdrags- og energidirektorat (NVE). Eiendommer omfattet av småhusplanen har derfor et gjeldende midlertidig forbud mot tiltak (MFT), med visse unntak. Søknader som er omfattet av unntakene i MFT tas fortsatt til behandling. Konferer megler for ytterligere informasjon.
Området blir berørt av kommuneplanens arealdel fra 2015: «Oslo mot 2030 - Smart, trygg og grønn». Ny kommuneplan «Oslo fram mot 2040: Variert boligbygging og styrking av det grønne» er under revidering, men er ikke endelig vedtatt. Denne planen får betydning for en rekke vedtatte reguleringsplaner i Oslo. Inntil ny arealdel er vedtatt, gjelder arealdelen fra 2015. Henviser til kommunens nettsider for ytterligere informasjon: https://www.oslo.kommune.no/politikk-og-administrasjon/politikk/kommuneplan/.
Utsnitt av plan med tilhørende bestemmelser kan fås ved henvendelse til megler.
Pågående byggesaker:
Saksnummer 202515578: Ekelyveien 16 C-D - tilbygg med ny boenhet, fasadeendring og bruksendring fra enebolig til tomannsbolig, riving av garasje - Tidligere adresse: Ekelyveien 16. Det foreligger igangsettingstillatelse datert 23.04.2025.
Saksnummer 202519287: Ekelyveien 14 - oppføring av enebolig. Det foreligger rammetillatelse datert 06.05.2024.
Saksnummer 2025/18630: Ekelyveien 14 - oppføring av garasje og trapp. Det foreligger rammetillatelse datert 30.05.2024.
Opplistingen er ikke uttømmende og interessenter oppfordres til å sette seg inn i reguleringsplaner for området. For flere byggesaker og informasjon i området, gå inn på Oslo kommune, plan og bygg sine nettsider: https://od2.pbe.oslo.kommune.no/kart/
Økonomi
Økonomi
Boligens kostnader
Fellesutgiftene er kr 7 610,- pr. mnd. og inkluderer: Varmtvann, internett/tv (grunnpakke), felles bygningsforsikring, diverse honorarer, kommunale avgifter, drift og vedlikehold m.m.
Fellesutgiftene justeres normalt en til to ganger årlig i forhold til sameiets faktiske utgifter og ble sist justert april 2025. Iht. mailkorrespondanse med styreleder 14.01.2026 vil det kanskje komme en indeksregulering av fellesutgiftene i 2026 grunnet økning i offentlige utgifter.
Nåværende eier har et strømforbruk som tilsvarer ca. kr 21 759,- pr. år. / 15 054 kwh. pr. år.
Boligen er tilknyttet Telia som leverandør av kabel-tv og internett (grunnpakke) og er inkludert i felleskostnadene. Tv-tuner/dekoder medfølger ikke.
Boligen er tilknyttet alarm. Abonnementet medfølger ikke.
Det er vedtatt eiendomsskatt i Oslo kommune. Eiendomsskatten er ca. kr 9 705,- for inneværende år.
Utgiftene er basert på nåværende eiers forbruk. Kjøper må selv tegne innboforsikring.
Formuesverdi
Formuesverdi for 2023 var kr 3 153 451,- ifølge selgers skattemelding. Beløpet forutsetter at eier bor fast i boligen (primærbolig).
Ved eventuell øvrig bruk av eiendommen (f.eks. fritidsbolig, pendlerbolig, utleieobjekt) var formuesverdien for 2023 kr 10 933 502,-.
Formuesverdien justeres normalt årlig. Se skatteetaten.no for mer informasjon om fastsettelse av formuesverdien.
Opplysninger om fellesgjeld
Andel formue er kr 49 254,- pr. 31.12.2024
Leiligheten har pt. ikke andel fellesgjeld og det er ikke felles lån i sameiet.
Omkostninger
19 900 000,00 Prisantydning
Omkostninger
497 500,00 Dokumentavgift til staten (2,5% av kjøpesum)
9 950,00 Gjensidige Boligkjøperpakke (valgfri)* (valgfritt)
545,00 Tinglysing panterettsdokument
545,00 Tinglysing skjøte
--------------------------------------------------------
498 590,00 Omkostninger totalt (uten Gjensidige Boligkjøperpakke (valgfri))
508 540,00 Omkostninger totalt (med Gjensidige Boligkjøperpakke (valgfri))
--------------------------------------------------------
20 398 590,00 Totalpris inkl. omkostninger
20 408 540,00 Totalpris inkl. omkostninger (med Gjensidige Boligkjøperpakke (valgfri))
--------------------------------------------------------
Dersom sameiet har fellesgjeld, vil leilighetens andel av fellesgjelden komme i tillegg til kjøpesummen. Denne gjelden skal ikke innbetales i oppgjøret, men følger leiligheten.
Totalpris inkl. omkostninger forutsetter kjøp til prisantydning.
Det tas forbehold om endringer i avgifter og gebyrer.
Tilbud om lånefinansiering
Megler formidler gjerne kontakt med rådgiver hos vår samarbeidspartner BN Bank. De har konkurransedyktige betingelser samt rask og løsningsorientert behandling av din lånesøknad. Krogsveen mottar et honorar dersom lån opprettes.
Betalingsbetingelser
Kjøpesum inkludert omkostninger, samt pantedokument tilknyttet eventuelt lån, skal være disponibelt hos megler 2 virkedager før overtagelsen.
Annen viktig informasjon
Annen viktig informasjon
Eier
Anne Kristine Lie
Informasjon om sameiet
Eiendommen er seksjonert, og leiligheten er tilknyttet Sameiet Ekelyveien 11 og 13, med sameiebrøk 170/2388.
Sameiet består av 14 leiligheter.
Regnskapsfører er Obos Eiendomsforvaltning AS.
Dugnad må påregnes.
Dyrehold er tillatt så lenge det ikke medfører urimelig sjenanse for naboer.
Oversikt over foretatte påkostninger foreligger ikke fra regnskapsfører.
Planlagte påkostninger:
Iht. mailkorrespondanse 14.01.2026 er det pt. ingen planlagte påkostninger. Styreleder informerer videre at de har to "gamle" heiser (fra byggene var nye) og dersom noen av de ryker og må fornyes/oppgraderes må vi se hvordan vi løser det økonomisk. Vi har lagt opp en buffer for å håndtere uforutsette store utgifter, men avhengig av kostnadene på en slik jobb vil det muligens medføre en ekstra innbetaling på 10.000-20.000 pr boenhet. Det var slik vi løste det da heisen i 11B ble overhalt for noen år siden.
Vi gjør videre oppmerksom på at det iht. eierseksjonsloven ikke er anledning å erverve mer enn 2 seksjoner i sameiet, her teller også eierskap via. firma, nærstående og familie. Kjøper har risikoen for at overskjøting på denne bakgrunn kan nektes av Statens Kartverk. I så fall vil kjøper uansett være forpliktet til å gjennomføre handelen, og oppgjør til selger vil finne sted tross manglende overskjøting.
Konferer med megler for mer informasjon.
Dokumenter for sameiet og kopi av seksjonsbegjæringen kan fås ved henvendelse til megler.
Overtakelse
Etter nærmere avtale.
Boligselgerforsikring
Selger har i forbindelse med salget tegnet boligselgerforsikring levert av Gjensidige.
Boligselgerforsikringen dekker selgers ansvar etter avhendingsloven begrenset oppad til kr 14 millioner. Dersom kjøper oppdager forhold ved eiendommen som hen mener utgjør en mangel ved eiendommen, vil Gjensidige behandle reklamasjonen på vegne av selger. Forsikringsvilkår kan fås ved henvendelse til megler.
Vedlagt salgsoppgaven følger selgers egenerklæringsskjema og tilstandsrapport. Interessenter må sette seg inn i dokumentene før bud inngis.
Boligkjøperforsikring
Innen kontraktsmøtet må kjøper ta stilling til om det ønskes å bestille Boligkjøperpakken gjennom Gjensidige. I denne gunstige pakken er boligen ferdig forsikret og inkluderer rettshjelpsforsikring, også kalt Boligkjøperforsikring. Rettshjelpsforsikring gir trygghet og tilgang på profesjonell juridisk hjelp dersom det oppdages uventede feil eller mangler det første året etter overtagelse. Forsikringsselskapet behandler i så fall ethvert mangelskrav kjøper måtte ha overfor selger.
Boligkjøperpakken inkluderer bygningsforsikring for hus og hytte, innboforsikring, flytteforsikring og dobbel rentedekning - i situasjoner hvor kjøper ikke får solgt nåværende primærbolig.
Kjøper mottar ingen særskilt faktura for Boligkjøperpakken da kostnaden det første året legges til kjøpesummen for boligen. Det gjøres oppmerksom på Krogsveen mottar et honorar for denne formidlingen.
Produktark for Boligkjøperpakken ligger vedlagt i salgsoppgaven.
Dersom ikke boligkjøperpakke ønskes kan kun rettshjelpsforsikring, også kalt boligkjøperforsikring, tegnes særskilt via megler. Rettshjelpsforsikringen varer i 5 år fra overtagelse og leveres gjennom Gjensidige. Ta kontakt med megler for ytterligere informasjon.
Selskap og privatpersoner som driver med kjøp/salg/utvikling som ledd i egen næringsvirksomhet kan ikke tegne boligkjøperpakke eller rettshjelpsforsikring.
Budgivning
Forbrukerinformasjon om budgivning er vedlagt denne salgsoppgaven og er også på vår hjemmeside Krogsveen.no. Alle bud og budforhøyelser må inngis skriftlig. I tillegg må legitimasjon være fremlagt sammen med signatur fra budgiver.
Vi oppfordrer til å gi bud elektronisk via GI BUD-knappen på eiendommens hjemmeside på Krogsveen.no. Da vil samtlige vilkår bli oppfylt.
Eventuelle forhøyelser eller endringer av budet kan bekreftes pr SMS eller på e-post. Vi oppfordrer alltid til å kontakte megler pr. telefon i tillegg da forsinkelser i SMS og e-post kan forekomme.
For at budene skal kunne bli behandlet og videreformidlet skriftlig til alle involverte parter, må alle bud ha en tilstrekkelig lang akseptfrist, jf. eiendomsmeglingsforskriften § 6-3.
Selger må også skriftlig akseptere budet før aksept kan formidles til budgiver. Akseptfrist bør derfor være på minimum 30 minutter, og budforhøyelser må derfor skje i god tid før fristens utløp.
Bud i forbrukerforhold kan uansett ikke settes med kortere frist enn kl. 12.00 første virkedag etter siste annonserte visning. I tillegg kan ikke budet ha forbehold om at det skal holdes hemmelig ovenfor øvrige interessenter. Megler har iht lov om eiendomsmegling ikke anledning til å videreformidle disse budene, og de vil dermed heller ikke bli journalført.
Etter at eiendommen er solgt vil kjøper og selger få tilsendt budjournal. Øvrige budgivere kan få utlevert kopi av budjournalen i anonymisert form.
Hvitvaskingsreglene
I henhold til lov om hvitvasking og terrorfinansiering har megler plikt til å gjennomføre kontrolltiltak overfor kunder, herunder fullmektiger. Dette innebærer bl.a. å bekrefte kunders og reelle rettighetshaveres identitet på bakgrunn av fremvist gyldig legitimasjon eller på annen godkjent måte, samt å innhente opplysninger om kundeforholdets formål og tilsiktede art.
Dersom slike kundetiltak ikke kan gjennomføres, kan megler ikke etablere kundeforholdet eller utføre transaksjonen.
Hvis kjøper ikke bidrar til gjennomføring av kundekontrollen og dette fører til at transaksjonen blir forsinket eller ikke kan gjennomføres, vil dette ansees som mislighold av avtalen og gi selger rettigheter etter avhendingslova kapittel 5. I tilfeller der selger ikke bidrar til gjennomføring av løpende kundekontroll underveis i oppdraget, er det selger som misligholder sine forpliktelser etter avtalen og gi kjøper rettigheter etter avhendingslovens kapittel 4. Partene er selv ansvarlige for eventuelle kostnader og ansvar dette kan medføre. Eiendomsmegleren eller eiendomsmeglingsforetaket kan ikke holdes ansvarlig for de konsekvenser dette vil kunne få for partene eller andre som har interesser i eiendomshandelen.
Kjøper oppfordres til å innbetale kjøpesummen som ikke kommer fra låneinstitusjon i én samlet innbetaling fra egen konto i norsk bank. Megler har plikt til å melde fra til Økokrim om eiendomshandler som fremstår som mistenkelige. Melding sendes Økokrim uten at partene varsles.
Personopplysningsloven
I henhold til personopplysningsloven gjør vi oppmerksom på at interessenter kan bli registrert for videre oppfølging.
Lovanvendelse
Generelle bestemmelser
Salgsoppgaven er basert på de opplysningene selger har gitt til megler, den bygningssakyndiges tilstandsrapport, samt opplysninger innhentet fra kommunen, Kartverket og andre tilgjengelige kilder. Det er viktig at kjøper setter seg grundig inn i alle salgsdokumentene, herunder salgsoppgave, tilstandsrapport og selgers egenerklæring. Kjøper anses kjent med forhold som er tydelig beskrevet i salgsdokumentene, og slike forhold kan ikke påberopes som mangler. Dette gjelder uavhengig av om kjøper har lest dokumentene. Alle interessenter oppfordres til å undersøke eiendommen nøye, gjerne sammen med fagkyndig før bud inngis. Kjøper som velger å kjøpe usett kan ikke gjøre gjeldende som mangel noe han burde blitt kjent med ved undersøkelsen.
Dersom det er behov for avklaringer, anbefaler vi at interessenter rådfører seg med eiendomsmegler eller egne rådgivere før det legges inn bud.
En bolig som har blitt brukt i en viss tid, har vanligvis blitt utsatt for slitasje og skader kan ha oppstått. Slik bruksslitasje må kjøper regne med, og det kan avdekkes enkelte forhold etter overtakelse som nødvendiggjør utbedringer. Normal slitasje og skader som nødvendiggjør utbedring, er innenfor hva kjøper må forvente og vil ikke utgjøre en mangel.
Kjøper og selgers rettigheter og plikter reguleres av avtalen mellom partene, samt informasjonen som har vært tilgjengelig for kjøperen i forbindelse med handelen. Avtalen utfylles av avhendingsloven, og det gjelder ulike avtalevilkår avhengig av om kjøper er forbrukerkjøper eller ikke. Dette er nærmere beskrevet nedenfor.
På grunn av ulike avtalevilkår kan selger vurdere bud fra en som ikke er forbruker, ulikt fra en forbrukers bud. Dersom kjøper ikke er forbruker, er selger sitt mulige mangelsansvar begrenset fordi eiendommen selges "som den er". Selger kan ikke ta «som den er»- forbehold overfor en forbrukerkjøper. Selv et lavere bud fra en som ikke er forbruker kan foretrekkes fordi begrensningen i mulig mangelsansvar kan ha egenverdi for selger. Selger står fritt til å forkaste eller akseptere ethvert bud, og er for eksempel ikke forpliktet til å akseptere høyeste bud.
Budgiver skal i budskjema avgi egenerklæring om budgiver er forbruker eller næringsdrivende/ person som hovedsakelig handler som ledd i næringsvirksomhet. Budgivere får informasjon dersom andre bud er inngitt av en som ikke er forbruker.
Forbrukerkjøp - definisjon
Med forbrukerkjøp menes kjøp av eiendom når kjøperen er en fysisk person som ikke hovedsakelig handler som ledd i næringsvirksomhet.
Forbruker – avtalevilkår
Eiendommen har en mangel dersom den ikke er i samsvar med kravene som følger av avtalen, eller det foreligger brudd på bestemmelsene i avhendingsloven §§ 3-2 til 3-8. Hvis eiendommen ikke er i samsvar med det kjøperen må kunne forvente ut ifra alder, type og synlig tilstand, kan det være grunnlag for mangelskrav. Det samme gjelder hvis det er holdt tilbake eller gitt uriktige opplysninger om eiendommen. Dette gjelder likevel bare dersom man kan gå ut ifra at det virket inn på avtalen at opplysningen ikke ble gitt eller at mangelskravet ikke blir rettet i tide på en tydelig måte.
Boligen kan ha en mangel etter avhendingsloven § 3-3 andre ledd, dersom det er avvik mellom opplyst og faktisk innvendig areal, forutsatt at avviket er på 2% eller mer og minimum 1 kvm.
Ved beregning av et eventuelt prisavslag eller erstatning må kjøper selv dekke tap/kostnader opptil et beløp på kr 10 000 (egenandel).
Ikke-forbruker (næringsdrivende) – definisjon
Hvis kjøper er en juridisk person, eller en fysisk person som hovedsakelig handler som ledd i næringsvirksomhet, vil kjøpet ikke anses som et forbrukerkjøp.
Ikke-forbruker – avtalevilkår
Eiendommen har en mangel dersom den ikke er i samsvar med kravene som følger av avtalen.
Eiendommen selges «som den er», og selgers ansvar utover det konkret avtalte er da begrenset etter avhendingsloven § 3-9, første ledd andre setning.
Avhendingsloven § 3-3 andre ledd fravikes, og hvorvidt boligens arealsvikt utgjør en mangel vurderes etter avhendingsloven § 3-8.
Informasjon om kjøpers undersøkelsesplikt, herunder oppfordringen om å undersøke eiendommen nøye, gjelder også for kjøpere som ikke anses som forbrukere.
Det forutsettes at hjemmel overføres til kjøper. Hvis kjøper ikke ønsker hjemmelsoverføring av eiendommen, må det tas forbehold om dette i budet.
Meglers vederlag
Meglers vederlag betales av selger og er avtalt til:
Vederlag: 0,90 % av salgssummen inkl. eventuell fellesgjeld.
Vederlag:
Kontroll av hjemmel og heftelser kr 2 900,-
Markedsføringspakke kr 28 250,-
Oppgjør kr 7 500,-
Salgsoppgaver kr 3 500,-
Tilrettelegging kr 20 000,-
Visninger pr stk kr 4 000,-
Utlegg:
Eierskiftegebyr forretningsfører - Obos kr 6 725,-
Innhenting av informasjon forretningsfører Obos kr 4 038,-
Innhenting av offentlig opplysninger, ferdigattest m/byggetegn kr 950,-
Tinglysing sikring kr 545,-
Andre utgifter:
AX tilstandsrapport leilighet kr 10 750,-
Foto ekstraoppgave Chris Borowiak kr 3 750,-
Fotografering chris Borowiak kr 9 900,-
Vi er opptatt av verdiskapning, og har knyttet til oss samarbeidspartnere som skal sikre våre kunder de beste produkter og tjenester;
• I forbindelse med forberedelse av salget, innhenter vi informasjon om eiendommen hovedsakelig fra vår samarbeidspartner Amibita.
• Gjensidige leverer boligselgerforsikring og tilbyr bygningsforsikring
• Boligkjøperforsikring leveres av Hiscox og med Sedgwick som skadebehandler, og er formidlet gjennom Gjensidige.
• BN bank tilbyr finansieringsløsninger
• Vår avdeling Krogsveen Pluss tilbyr flyttetjenester som utvask, visningsvask, lager, tømming og transport av flyttelass, i tillegg til å formidle kontakt med Flip for overflateoppussing.
• I forbindelse med overtagelse av eiendommen tilbyr Overo avtale om strøm, alarm og bredbånd.
• Krogsveen er, sammen med øvrige bransjeaktører, medeier i Bomega AS som tilbyr den digitale annonseringsplattformen Hjem.
Opplysninger om oppdraget
Oppdragsnummer 40-0242/25
Eiendomsmegler Krogsveen AS, avd. Majorstuen og Oslo Vest
Hegdehaugsveien 31, 0352, OSLO
950 007 613
Oppdragets KR-kode KR40.25242
Dato
Sist oppdatert: 27. mai 2026 kl. 08:56
Dokumenter
Dokumenter
PDF – 418 KB
PDF – 138 KB
PDF – 902 KB
PDF – 312 KB
PDF – 29 KB
PDF – 127 KB
PDF – 392 KB
Område
Legg til steder som er viktige for deg
Visning
For å delta på visning, ber vi om at du melder deg på. Da sikrer vi at du får nødvendig informasjon og at det er satt av tilstrekkelig med tid. Kontakt megler dersom annet tidspunkt ønskes. Husk å lese salgsoppgaven før visningen, så du stiller forberedt. NB. Visning utgår dersom det ikke er noen påmeldte. Ønsker du kun å bli holdt orientert, kan du fra eiendommens hjemmeside få varsel om solgtpris, eller kontakte megler.
Lurer du på noe?
Unngå doble boligrenter
Vi tilbyr gunstig forsikring.
Vurderer du utleie?
Få et tilbud fra Utleie KrogsveenHva koster lånet?
Sjekk estimert lånekostnadVil du varsles om lignende boliger?
Ved å lagre ditt boligsøk hos oss får du beskjed når vi har en bolig som ligner denne, før den legges ut på markedet!














































