Oberst Rodes vei 41D
10 800 000 kr
172 m²
3 soverom
Solgt

Presenteres av
Christoffer S. AkerjordetNordstrand
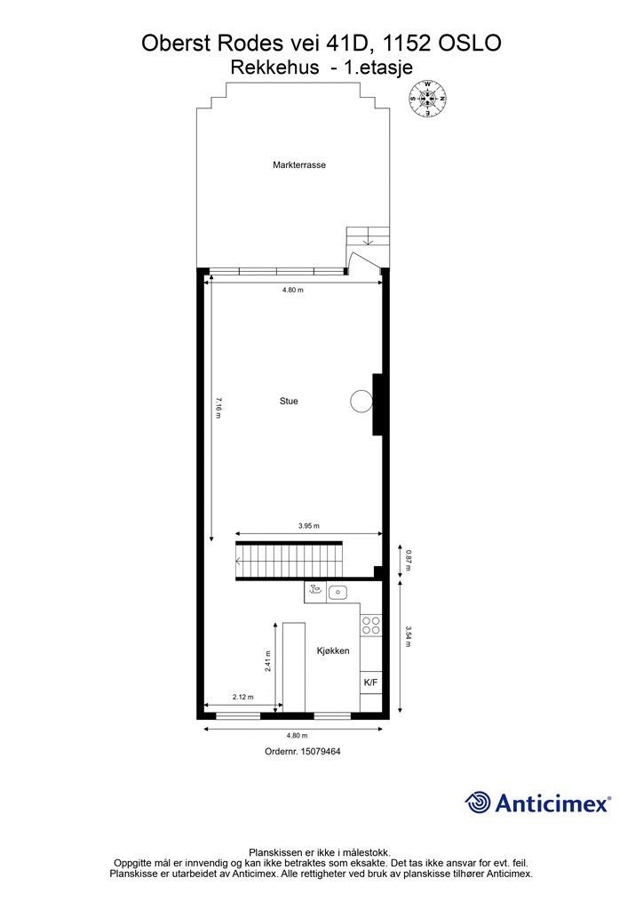
Innholdsrik og stor (185 BRA) familiebolig m/ 3 sov | Vestvendt og solrik markterrasse og hage | To bad | Garasje |
Prisantydning
10 800 000 krOmkostninger
290 990 krTotalpris
11 090 990 kr
Pris
Bruksareal
185 m²BRA-I (internt bruksareal)
172 m²BRA-E (eksternt bruksareal)
13 m²
Areal
Byggeår
1969Soverom
3 soveromBad
2 badTomteareal
220 m² (eiet)Type
RekkehusEierform
EietFasiliteter
Garasje/P-plass og Balkong/TerrasseEnergimerke
Oransje E
Nøkkelinfo
Unngå doble boligrenter
Vi tilbyr gunstig forsikring.
Vurderer du utleie?
Få et tilbud fra Utleie KrogsveenHva koster lånet?
Sjekk estimert lånekostnadBeskrivelse
Kort om eiendommen
Velkommen til Oberst Rodes Vei 41D! En innholdsrik og tiltalende familiebolig over fire plan med garasje og vestvendt hage.
Dette er et flott hjem i et trygt og barnevennlig nabolag på Nordstrand. Her bor du med kort gangavstand til T-bane, skoler, barnehager og butikker. Fra stuen er det direkte utgang til en stor, skjermet vestvendt markterrasse og hage – en herlig forlengelse av boligen med unike solforhold.
Kort fortalt:Innholdsrik familiebolig på 185 BRA Nordseter skolekrets Moderne kjøkken fra 2010 med integrerte hvitevarer To ildsteder Stor vestvendt markterrasse på ca. 21 m² og hage Garasje og 2 biloppstillingsplasser Nytt yttertak i 2019 og malt fasade i 2020 2 bad Sentral beliggenhet med off.kom rett i nærheten
Velkommen til visning!
Område
Legg til steder som er viktige for deg
På flyttefot? Tenk kjøp og salg samtidig.
Få din egen rådgiver gjennom hele kjøps- og salgsprosessen. Det starter med en verdivurdering.
Unngå doble boligrenter
Vi tilbyr gunstig forsikring.
Vurderer du utleie?
Få et tilbud fra Utleie KrogsveenHva koster lånet?
Sjekk estimert lånekostnadVil du varsles om lignende boliger?
Ved å lagre ditt boligsøk hos oss får du beskjed når vi har en bolig som ligner denne, før den legges ut på markedet!
På flyttefot? Slik gjør vi det enklere for deg
Skreddersydd flyttepakke
Vi fikser håndverkere, vask, pakking, lagring og transport, og legger ut for utgiftene underveis.
Hjelp med både kjøp og salg
Hos oss har du din egen rådgiver gjennom hele kjøps- og salgsprosessen.
Hjelp til finansiering
Vårt samarbeid med BN Bank sikrer deg rask og løsningsorientert hjelp, til konkurransedyktige betingelser.






















































