Danielsnes 16
7 750 000 kr
68 m²
3 soverom
Solgt

Sørlandsidyll på Danielsnes – Solrik og lunt beliggende fritidsbolig med brygge, store terrasser, strandlinje & hage
Prisantydning
7 750 000 krOmkostninger
214 740 krTotalpris
7 964 740 kr
Pris
Bruksareal
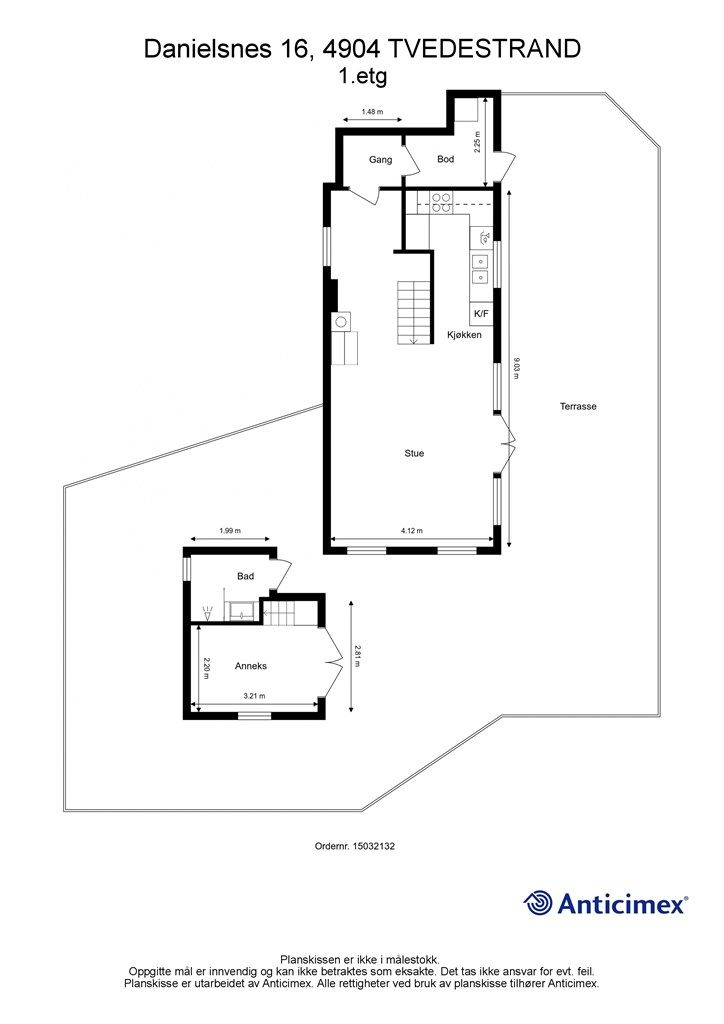
83 m²BRA-I (internt bruksareal)
68 m²BRA-E (eksternt bruksareal)
15 m²TBA (terrasse-balkongareal)
100 m²
Areal
Etasje
2Byggeår
1991Soverom
3 soveromBad
2 badTomteareal
999 m² (eiet)Type
Fritidseiendom ved sjøenEierform
EietFasiliteter
Balkong/TerrasseEnergimerke
Oransje F
Nøkkelinfo
Vurderer du utleie?
Få et tilbud fra Utleie KrogsveenHva koster lånet?
Sjekk estimert lånekostnadBeskrivelse
Kort om eiendommen
Velkommen til Danielsnes 16!
Her får du en meget hyggelig hytte i Sørlandsarkitektur med flott og attraktiv beliggenhet rett ved sjøen i skjærgården midt mellom Tvedestrand og Lyngør.
Eiendommen byr på et hovedhus, anneks, frittstående bod, store terrasser på over 100kvm, egen strandlinje og ny dypvannsbrygge på ca 27kvm.
Beliggenheten er unik: Svært solrikt og samtidig pga beskyttet for de vanligste vindretningene, midt mellom Lyngør og Tvedestrand.
Her får du virkelig følelsen av frihet, ferie og avkobling fra byliv og hverdag. Eiendommen ligger i naturskjønne og rolige omgivelser med få naboer og umiddelbar nærhet til den nydelige skjærgården, ytterst på fastlandet.
Velkommen til visning.
Område
Legg til steder som er viktige for deg
På flyttefot? Tenk kjøp og salg samtidig.
Få din egen rådgiver gjennom hele kjøps- og salgsprosessen. Det starter med en verdivurdering.
Vurderer du utleie?
Få et tilbud fra Utleie KrogsveenHva koster lånet?
Sjekk estimert lånekostnadVil du varsles om lignende boliger?
Ved å lagre ditt boligsøk hos oss får du beskjed når vi har en bolig som ligner denne, før den legges ut på markedet!

