Markaholen 1
4 200 000 kr
129 m²
3 soverom
Komplett salgsoppgave
Innholdsrik og gjennomgående 4-roms i toppetasje | Balkong |Parkering| Barnevennlig.
Prisantydning
4 200 000 krAndel fellesgjeld
224 584 krOmkostninger
19 252 krTotalpris
4 443 836 kr
Pris
Bruksareal
134 m²BRA-I (internt bruksareal)
129 m²BRA-E (eksternt bruksareal)
5 m²TBA (terrasse-balkongareal)
15 m²
Areal
Etasje
3Byggeår
1993Soverom
3 soveromBad
1 badType
AndelsleilighetEierform
AndelFasiliteter
Garasje/P-plass og Balkong/TerrasseFellesutgifter
6 000 kr
Nøkkelinfo
Unngå doble boligrenter
Vi tilbyr gunstig forsikring.
Vurderer du utleie?
Få et tilbud fra Utleie KrogsveenHva koster lånet?
Sjekk estimert lånekostnadBeskrivelse
Kort om eiendommen
Velkommen til Markaholen 1, presentert av Sissel Pham v/Krogsveen.
Dette er en romslig og arealeffektiv 4-roms på Gausel. Boligen ligger i byggets 3.etasje og inneholder entré, tre soverom, gjeste WC, baderom og delvis åpen kjøkken og stue løsning. Fra stuen er det utgang til en balkong.
Leiligheten har en flott beliggenhet på Gausel. Et barnevennlig og rolig område med nærhet til barnehage og skole.
Kort fortalt:
- 3 soverom
- Separat gjeste WC
- Tilgang til skråloft via trapp i gangen
- Romslig balkong på ca 15 kvm
- Parkering i anlegg med elbillader.
- Innholdsrik hvor en kan gjøre oppgraderinger etter eget ønske.
- Kort vei til offentlig kommunikasjon
- Beliggende i rolige og barnevennlige omgivelser på Gausel.
Velkommen til visning!
Innhold og byggemåte
Innhold og byggemåte
Eiendommen
Markaholen 1, 4032 STAVANGER
Kommunenummer 1103, gårdsnummer 14, bruksnummer 949
Andelsnummer 28, Borettslaget Solåsen, organisasjonsnummer 952 072 765
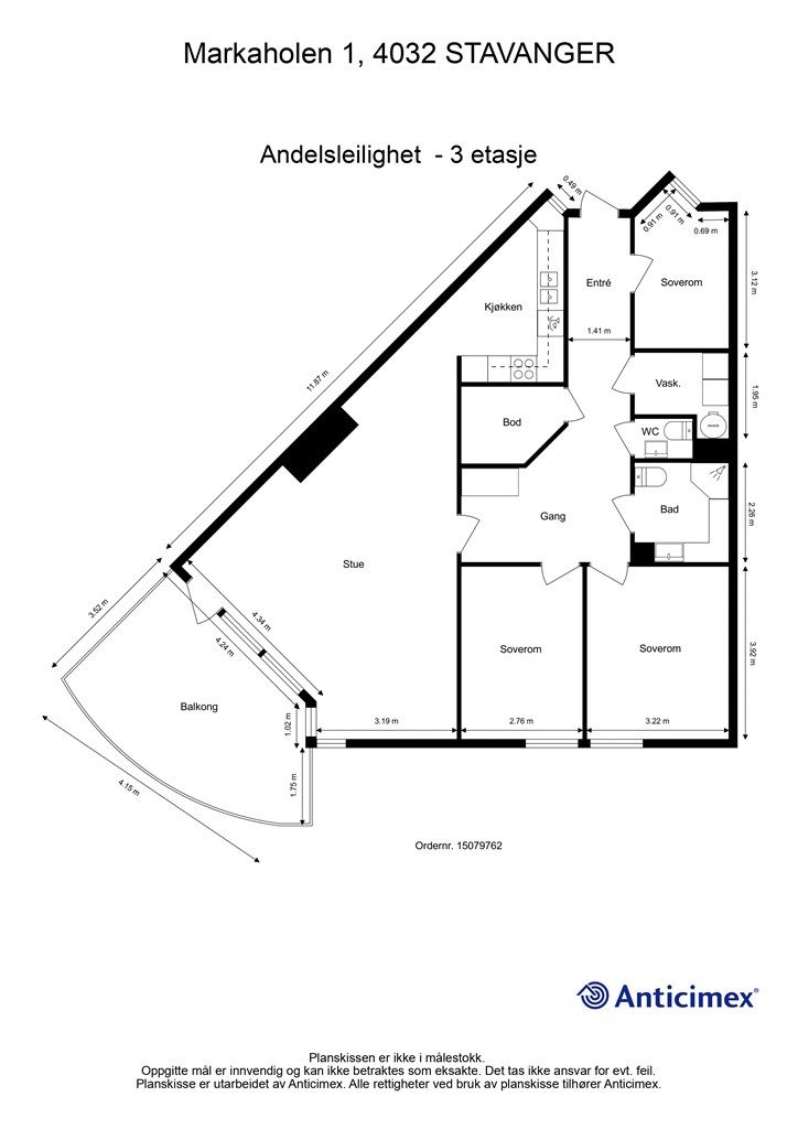
Innhold
Totalt bruksareal BRA: 134 kvm
BRA-i:
3. etasje 111 kvm: Entré, gang, bod, bad, vaskerom, wc, kjøkken, stue, 3 soverom
4. etasje 18 kvm: Loftetasje - Kaldtloft
BRA-e:
3. etasje 5 kvm: Bod
Åpent areal:
3. etasje 15 kvm: Balkong
Deler av arealene på kaldtloftet oppfyller vilkår for måleverdighet og er derfor medregnet som en del av boligens bruksarealer. Kaldtloftet har et totalt
gulvareal (GUA) på 39 m2, men grunnet skråtak/takhøyde er kun 18 m2 av arealet måleverdig som bruksareal. De delene av arealene som har lav
himlingshøyde (ALH) utgjør 21 m2.
Boligen disponerer én kjellerbod på ca. 5 kvm. I tillegg disponerer boligen én parkeringsplass i fellesgarasje, utstyrt med elbillader.
Vedlagte plantegninger er ikke målbare. De oppgitte arealer er hentet fra rapport med befaringsdato 06.03.2026 utført av Anticimex v/ Yngve Paulsen. Arealene er beregnet og rom er definert etter dagens faktiske bruk, uavhengig av hva som er godkjent av bygningsmyndighetene.
Byggemåte
Selger har fått utarbeidet en tilstandsrapport, dvs. en teknisk gjennomgang av boligen hvor eventuelle avvik, risiko for kjøper og prisoverslag for hva som bør gjøres av oppgradering, er skissert. Se særskilt TGIU (tilstandsgrad ikke undersøkt), samt TG2 og TG3 som viser hva som er boligens normale slitasje, alder og type, hva som er avvik fra dette og hva som bør/må utbedres. Rapporten og selgers egenerklæring er en del av salgsoppgaven og må leses nøye før bud inngis. Kjøper overtar ansvaret for de opplysninger som fremkommer av salgsdokumentasjonen, og kan ikke gjøre gjeldende som mangel noe som burde vært kjent eller som ikke kan anses å ha betydning for avtalen.
Leilighetsbygg oppført i 1993. Grunnmur av betong. Yttervegger i en kombinasjon av tre- og betongkonstruksjoner. Utvendige fasader er kledd med
liggende trekledning og fasadeplater. Etasjeskillere av betong. Saltak i trekonstruksjoner. Yttertak er belagt med takstein. Entrédør med glassfelter. Vinduer
med karmer av tre. Balkongdør med karmer av tre. Boligen ventileres hovedsakelig med naturlig ventilasjon gjennom vinduer og ventiler.
Les for øvrig mer om byggemåte og den tekniske tilstanden i rapporten.
Rapporten inneholder 68% TG1, 66% TG2, 1% TG3 og 4% TGIU.
Det gjøres spesielt oppmerksom på:
TG3
Våtrom - Vaskerom :
- Vanntett sjikt / membran i gulv og vegger: Vanntett sjikt har en alder som erfaringsmessig tilsier at fremtidig funksjon er svært usikker (gjelder for produkter/løsninger etablert før år 2000). Konsekvensen er at bygningsdelen erfaringsmessig har risiko for nedsatt funksjon, utettheter eller andre aldersrelaterte problemer.
Fornying av tettesjikt krever i de fleste tilfeller tiltak som komplett utskiftning/renovering av våtrom. Bygningsdelen er skjult, så den faktiske tilstanden/dagens tettefunksjon er ukjent. TG3 er satt i henhold til NS 3600. Foreslått strakstiltak er videre undersøkelser for å kartlegge dagens tilstand og avdekke om det er behov for større inngrep og utskiftninger, eller om lokale utbedringer og lignende tiltak er tilstrekkelig.
TG2
Våtrom - Bad :
- Overflater vegger: Det observeres stedvis tegn til riss i veggflis i dusjsonen. Eksakt årsak er ikke kjent. Konsekvens/foreslått tiltak er videre overvåking, slik at tiltak kan iverksettes hvis forholdet utvikler seg.
- Fallforhold rundt sluk: Lokalfallet i sluksonen er mindre enn anbefalt. Konsekvens er at fallforholdet vurderes å ikke gi tilfredsstillende bortledning av bruksvann ved normal bruk. Foreslått tiltak er lokale tilpasninger eller utbedring dersom fremtidig bruk viser at det er nødvendig.
- Vanntett sjikt / membran i gulv og vegger: Det registreres åpning rundt avløpsrøret til servanten og tettesjiktet i veggen. Konsekvens er at eventuelle lekkasjer kan gi følgeskader i tilliggende konstruksjoner. Foreslått tiltak er lokal utbedring.
- Vannrør: Se punkt "Vannrør" under avsnitt om tekniske anlegg.
- Sanitærutstyr og innredning: Drenering fra innebygget toalettsisterne er ikke registrert. Konsekvens er at det derfor ikke kan verifiseres om installasjonen er utført slik at eventuelt lekkasjevann raskt blir synliggjort. Foreslått tiltak er lokal utbedring, og andre tiltak som videre undersøkelser eventuelt viser at er nødvendig.
Toalettrom:
- Vannrør: Se punkt "Vannrør" under avsnitt om tekniske anlegg.
- Ventilasjon: Det vurderes at det ikke er tilstrekkelige åpninger/luftespalter mellom rom for å sikre tilfredsstillende luftgjennomstrømning, noe som er et viktig prinsipp for ventilasjon av boliger. Konsekvens er at ventilasjon kan svekkes, noe som kan medføre økt fuktbelastning og redusert luftkvalitet. Foreslått tiltak er videre overvåking, slik at lokal utbedring kan iverksettes hvis dette vurderes som nødvendig.
Kjøkken:
- Vannrør: Se punkt "Vannrør" under avsnitt om tekniske anlegg.
Andre rom:
- Innerdører: Dørbladet enkelte dører kommer i kontakt med karmen/gulv slik at døren ikke kan åpnes og lukkes som normalt. Konsekvens er at dette påvirker brukerfunksjonen. Justering av dør/karm eller lignende tiltak kan iverksettes ved behov.
Tekniske anlegg:
- Vannrør (utover det som nevnes under andre sjekkpunkter): Boligens vannrør av kobber (og tilhørende komponenter) har en alder som tilsier at fremtidig funksjon er usikker. Konsekvensen er at bygningsdelen erfaringsmessig har risiko for nedsatt funksjon, funksjonssvikt eller andre aldersrelaterte problemer. Bygningsdelen er skjult, så den faktiske tilstanden er ukjent. Foreslått tiltak er videre overvåking, slik at lokale reparasjoner eller utskiftninger kan iverksettes når dette viser seg å være nødvendig.
- Varmtvannsbereder: På bakgrunn av berederens alder vurderes det at fremtidig funksjon er usikker. Konsekvensen er at bygningsdelen erfaringsmessig har risiko for nedsatt funksjon, funksjonssvikt eller andre aldersrelaterte problemer. Foreslått tiltak er videre overvåking av tilstanden, slik at reparasjon eller utskiftning kan iverksettes når dette blir nødvendig.
Loft - uinnredet / kaldt loft:
- Ventilasjon, oppbygning og materialbruk: Ventilasjonen av konstruksjonen vurderes til å være utilstrekkelig grunnet manglende ventiler. Konstruksjonen viser likevel ikke synlige tegn til skader eller lignende symptomer på befaringsdagen. Konsekvens er at utilstrekkelig ventilasjon kan medføre fuktskader grunnet kondens, snøsmelting og lignende forhold. Foreslått tiltak er videre undersøkelser for å avdekke hvilke tiltak som er nødvendige for å sikre god og korrekt ventilering av konstruksjonen.
Våtrom - Vaskerom :
- Vannrør: Se punkt "Vannrør" under avsnitt om tekniske anlegg.
- Ventilasjon: Våtrommet har kun naturlig ventilasjon. Konsekvens er at dette erfaringsmessig gir lavere luftutskifting enn mekanisk ventilasjon. Tilstandsgrad er satt i henhold til NS3600. Foreslått tiltak er forbedring av ventilasjonen eller kompenserende tiltak hvis bruk av våtrommet viser at dette er nødvendig.
Vinduer og ytterdører:
- Vinduer og omramming: Enkelte vinduer viser begynnende tegn til slitasje på overflatebehandling. Konsekvens er svekket beskyttelse av materialene. Det er derimot ikke registrert synlige skader av vesentlig betydning. Foreslått tiltak er at det iverksettes forebyggende vedlikehold.
- Ytterdører og omramming: Det registreres følgende avvik på entrédør og balkongdør: Døren viser begynnende tegn til utvendig slitasje. Det er derimot ikke registrert synlige skader av vesentlig betydning. Foreslått tiltak er at det iverksettes forebyggende vedlikehold.
Yttertak:
- Helhetsvurdering: Det er valgt å vurdere yttertaket med en samlet helhetsvurdering. Følgende hovedmomenter er lagt til grunn for vurderingen:
På bakrunn av bygningsdelens alder er det grunn til å varsle om risiko for skade, svekket funksjon, eller lignende forhold som utvikles over tid. Ingen tilkomst til yttertaket på befaringen, samt av sikkerhetsmessige hensyn. Vurderingen er derfor kun basert på informasjon om yttertakets alder og eventuelle observasjoner gjort fra utsiden og innsiden, med den begrensning dette innebærer. Det gjøres oppmerksom på at en komplett undersøkelsene av yttertaket bør gjøres når forholdene ligger til rette, og det tas forbehold om eventuell feil utførelse og skjulte feil og mangler.
Balkonger:
- Membraner og vanntett sjikt: Vanntett sjikt har en alder som tilsier at fremtidig funksjon er usikker. Konsekvens er at usikker fremtidig funksjon betyr at bygningsdelen erfaringsmessig har risiko for nedsatt funksjon, funksjonssvikt eller andre aldersrelaterte problemer. Bygningsdelen er skjult, så den faktiske tilstanden/dagens tettefunksjon er ukjent. Foreslått tiltak er videre undersøkelser for å kartlegge dagens tilstand og avdekke om det er behov for større inngrep og utskiftninger, eller om lokale utbedringer og lignende tiltak er tilstrekkelig.
Rapporten og selgers egenerklæring er en del av salgsoppgaven og må leses nøye før bud inngis. Kjøper overtar ansvaret for de opplysninger som fremkommer av salgsdokumentasjonen, og kan ikke gjøres gjeldende som mangel, noe som burde vært kjent eller som ikke kan anses å ha betydning for avtalen. Se supplerende tekst i tilstandsrapporten. Kjøper overtar ansvar og risiko for dette. Rapporten og selgers egenerklæring er en del av salgsoppgaven og må leses nøye før bud inngis. Kjøper overtar ansvaret for de opplysninger som fremkommer av salgsdokumentasjonen, og kan ikke gjøres gjeldende som mangel, noe som burde vært kjent eller som ikke kan anses å ha betydning for avtalen. Se supplerende tekst i tilstandsrapporten. Kjøper overtar ansvar og risiko for dette.
Standard
En gjennomgående 4-roms leilighet. Boligen ligger i byggets 3. etasje og inneholder entré, tre soverom, bod, bad, WC, vaskerom og delvis åpen kjøkken og stue løsning.
Fra stuen er det utgang til en romslig balkong på ca 15 kvm.
Leiligheten har en flott beliggenhet på Gausel. Et barnevennlig og rolig område, med nærhet til barnehager, skoler og lekeplasser. Gausel Fritidsgård er ikke lange gåturen unna, her kan både store og små ha det gøy omringet av dyr og natur.
- Lys og luftig stue og spisestue.
- 3 soverom av god størrelse
- Gjeste WC
- Bod i leiligheten
- Tilgang til skråloft via trapp i gangen
Løsøre og tilbehør
Vi viser til liste fra Norges Eiendomsmeglerforbund som gjelder fra 01.01.2020 angående løsøre og tilbehør.
Det gjøres oppmerksom på at veggmonterte møbler medfølger handelen, herunder den svarte hyllen i stuen samt det hvite skapet nærmest vinduet på kjøkkenet.
Kjøleskapet medfølger handelen.
Det gjøres oppmerksom på at kjøper må forvente slitasje som følge alder og normal bruk på hvitevarer som medfølger.
Selger er også fleksibel med hensyn til salg av øvrige møbler i leiligheten. Eventuelle ønsker bes spesifisert i budgivningen.
Oppvarming
Oppvarming av boligen skjer i hovedsak ved bruk av panelovner (elektrisk oppvarming), og varmepumpe plassert i stue.
Ferdigattest/brukstillatelse
Det foreligger ikke ferdigattest på eiendommen, men midlertidig brukstillatelse ble gitt 05.05.1993.
Det foreligger ferdigattest på nedgravde avfallscontainere datert 2016.
For at ferdigattest kan utstedes må følgende arbeider utføres:
1. Innreguleringsrapport for ventilasjonsanlegget i garasjene må fremlegges.
2. Det må monteres håndlister på begge sider av alle trappeløp.
3. Rekkverk på trapper til boligene må ferdigstilles.
4. Rekkverk på balkonger må ferdigstilles.
5. Det må monteres rekkverk på utvendige trapper til garasjen i Markaveien 2.
6. Byggeforskriftenes krav til lydisolasjon mellom leilighetene bør dokumenteres.
7. Det må dokumenteres at ikke lyd fra plast avløpsrør overstiger 32daA i oppholdsrom. ( Konf. byggeforskriftens krav i kap. 52:32)
8. Utendørsanlegget må ferdigstilles.
9. Feierattester må fremlegges
10. Attest fra byingeniøren for sanitæranlegget må fremlegges.
11. Lekeplassene må ferdigstilles.
Det er uklart om dette er utført. Kjøper overtar ansvaret for dette.
Det gjøres oppmerksom på at det ikke lenger utstedes ferdigattest på tiltak det er søkt om før 1998 jf. plan- og bygningsloven § 21-10. Kommunen vil ikke kreve ferdigattest for disse tiltakene og vil avvise eventuelle søknader. Bestemmelsen innebærer ikke at tiltak med manglende søknad blir lovlige, men at man ikke trenger å avslutte gamle byggesaker. Normalt sett kreves ferdigattest for alle søknadspliktige tiltak som gjøres etter plan- og bygningsloven. Kjøper overtar eiendommen slik den framstår på visning.
Tinglyste heftelser og rettigheter
Utover andel fellesgjeld overdras leiligheten fri for pengeheftelser.
Det er ingen tinglyste servitutter på eiendommen.
Borettslaget har legalpant for forfalte felleskostnader og andre krav som følger av borettslagsforholdet iht. burettslagsloven § 5-20. Pantet er begrenset oppad til 2G (G = folketrygdens grunnbeløp).
Eventuell adgang til utleie
Andelseier kan ikke uten samtykke fra styret i borettslaget overlate bruken av boligen til andre. Med samtykke kan andelseier overlate boligen til andre i inntil tre år hvis andelseier har bodd i boligen i minst ett av de to siste år. Utleie i andre tilfeller kan godtas ved særlige grunner, jf. burettslagslova § 5-6. Utleie forutsetter at leiligheten har forsvarlige radonverdier. Se også borettslagets vedtekter og konferer megler ved spørsmål.
Diverse
- Lavblokkleiligheter, 2, 3 og 4-roms fordelt på 5 bygninger. Garasjeanlegg med 1 garasjeplass til hver leil.
- Standard ordensregler. Dyrehold ikke tillatt ihht generalforsamlingsvedtak 2000. Kan søkes innen gitte retningslinjer. Kontakt styret for
informasjon.
- Har vaktmestertjenester.
- Borettslaget har kollektiv avtale med Altibox. Kontakt selger for mer informasjon
- Det er tilrettelagt for el-bil lading på biloppstillingsplassene i garasjeanlegget. Det er vedtatt lader fra Zaptec som bekostes av
andelseier og installeres av Rønning Elektro. Styret må kontaktes for bestilling og informasjon.
- Lån i DNB refinansiert feb. 2021 grunnet vedlikeholdsprosjekt på tak og loft.
- Borettslaget styre vil ikke godkjenne kjøpere som har til hensikt å drive boligspekulasjon
- Medlem av sikringsordning i Klare Finans AS
- Bate avregner og fordeler felleskostnadene mellom selger og kjøper ved eierskifter. Kjøper skal betale felleskostnader fra og med
overtakelsesdato, og mottar faktura i eget navn.
Dugnad samt trappevask må påregnes. Dugnad samt trappevask må påregnes.
I følge eierne så har andelseierne ansvar for snørydding foran eget inngangspartiet under vinterforhold.
Beliggenhet og tomteforhold
Beliggenhet og tomteforhold
Beliggenhet
Leiligheten har en flott beliggenhet på Gausel. Et barnevennlig og rolig område, med nærhet til barnehager, skoler og lekeplasser. Gausel Fritidsgård er ikke lange gåturen unna, her kan både store og små ha det gøy omringet av dyr og natur.
Nærbutikken er Coop Mega, og det er også kort vei til Rema 1000 og Kiwi blant annet.
Stadionparken kjøpesenter ligger et steinkast unna og her har man alt man trenger av fasiliteter som butikker, apotek, spisesteder, Vinmonopolet og treningssenter. Er man glad i fotball befinner Sr- Bank Arena (Viking stadion) seg i samme område.
Det er godt kollektivtilbud med hyppige avganger til Stavanger og Sandnes med bussholdeplass et par minutters gange fra boligen. Det er også enkel tilkomst til E39. IKEA, Kvadrat og Næringsparken på Forus ligger kun et par minutters kjøretur unna. Ved å benytte bil tar det ca. 15 min til Stavanger sentrum og 15 min til Sandnes.
Boligen har flotte tur- og rekreasjonsområder i umiddelbar nærhet, med både Jåttånuten og Hinnamarka. Videre er det kort vei ned til sjøen, med idylliske badestrender og fine turstier langs vannet. Det flotte nærområdet legger godt til rette for en aktiv hverdag. Forus og Gausel IL har et bredt tilbud for barn og unge i området.
For mer informasjon se vedlagt nabolagsprofil.
Adkomst
Veibeskrivelse Se Google maps - det er enkelt å finne frem i kartet.
Barnehager, skoler og fritid
Skoler
Godeset skole (1-7 kl.) 0.8 km
BISS Gausel (1-10 kl.) 1.1 km
Gausel skole (1-7 kl.)1.2 km
Norlights Montessoriskole Stavanger (1-101 k9l .m)1.4 km
Gautesete skole (8-10 kl.) 0.4 km
Jåttå videregående skole 21 min
Barnehager
Gautesete barnehage (1-5 år) 0.2 km
Heddeveien Fus barnehage (0-5 år) 0.5 km
Bamsefaret barnehage (1-5 år) 0.6 km
Informasjon om tilhørende skolekretser er hentet fra Prognosesenteret som dataleverandør, og tilhørigheten kan årlig endres av kommunen. Dersom skole- og barnehagetilbud er av betydning for kjøpet, ber vi om at det rettes en særskilt henvendelse til kommunen for oppdatert informasjon.
Parkering
Fastmontert lader for EL-bil følger med.
Fastmonterte løsninger for oppheng og lagring i garasje følger med.
Vei, vann og avløp
Eiendommen har adkomst via kommunal vei.
Eiendommen er tilknyttet kommunalt ledningsnett via private stikkledninger.
Borettslaget er ansvarlig for private stikkledninger til bygningen.
Regulerings-og arealplaner
Eiendommen er regulert til boligbebyggelse, friområde og andre sikringssoner (formål) i henhold til kommuneplan KP 2023-2040 datert 28.06.2024 med tilhørende bestemmelser.
Eiendommen er regulert til offentlig bygg/barnehage (0,4 kvm) i henhold til reguleringsplan 2127 datert 06.12.2006 med tilhørende reguleringsbestemmelser.
Eiendommen er regulert til Høyspenningsanlegg, boliger, fellesområder og kjørevei i henhold til reguleringsplan 1057B12B datert 19.12.1991 med tilhørende bestemmelser.
Eiendommen er regulert til Høyspenningsanlegg, gang/sykkelvei og park i henhold til reguleringsplan 1057 datert 07.03.1984 med tilhørende bestemmelser.
Det er ingen reguleringsplaner under arbeid innenfor 100 meter fra boligen.
Utsnitt av plan med tilhørende bestemmelser kan fås ved henvendelse til megler.
Økonomi
Økonomi
Boligens kostnader
- Nedbetaling av lån og renter på borettslagets fellesgjeld
- Kostnader til vedlikehold av bygninger og uteområder
- Forsikring og kommunale avgifter
- Daglig drift av borettslaget
Formuesverdi
Ved hjelp av skatteetatens boligkalkulator er boligens formuesverdi beregnet til kr. 1 318 555,- for fjoråret når boligen benyttes som primærbolig.
Formuesverdien er en gitt prosent av den beregnede markedsverdien. Beregnet markedsverdi er basert på Statistisk sentralbyrå (SSB) sine opplysninger om omsatte boliger. I beregningen tas det hensyn til boligens beliggenhet, areal, byggeår og boligtype.
Det er eier av boligen som fastsetter formuesverdien, jf. skatteforvaltningsloven § 9-1 første ledd, men skattemyndighetene kan kontrollere at verdien er satt riktig.
Formuesverdi skal ikke overstige:
Primærbolig: 25 % av beregnet eller dokumentert markedsverdi opp til kr. 10 000 000, og deretter 70 % av den overskytende markedsverdi.
Sekundærbolig: 100 % av beregnet eller dokumentert markedsverdi.
Formuesverdier som overstiger disse grensene, kan kreves nedjustert av eier.
Fra 2026 har Stortinget vedtatt en oppdatert modell for beregning av formuesverdi for primærbolig, så avvik kan forekomme.
For mer informasjon se skatteetaten.no
Eiendomsskatt
Det er p.t ikke vedtatt eiendomsskatt for eiendommer i kommunen.
Opplysninger om fellesgjeld
Andel formue er kr 28.098,- pr.
Andel fellesgjeld er kr 224 584,- pr. 01.03.2026
Borettslaget har ett lån:
Lånenummer: 15160902938, DNB Bank ASA
Annuitetslån, 4 terminer per år.
Rentesats per 23.02.2026: 4.99% pa.
Antall terminer til innfrielse: 118
Saldo per 23.02.2026: 18 732 265
Andel av saldo: 219 438
Første termin/første avdrag: 30.12.2025 ( siste termin 30.06.2055 )
Omkostninger
4 200 000,00 Prisantydning
224 584,00 Andel av fellesgjeld
--------------------------------------------------------
4 424 584,00 Pris inkl. fellesgjeld
Omkostninger
8 212,00 Forkjøpsrett - forhåndsutlyst (kjøper)
9 950,00 Gjensidige Boligkjøperpakke (valgfri)
545,00 Tinglysing hjemmel
545,00 Tinglysing panterettsdokument
--------------------------------------------------------
19 252,00 Omkostninger totalt
--------------------------------------------------------
4 443 836,00 Totalpris inkl. omkostninger
--------------------------------------------------------
Dersom kjøper ikke er medlem av boligbyggelaget, må det påregnes en innmeldingsavgift og årlig medlemsgebyr pr. ny andelseier. Dette faktureres direkte fra boligbyggelaget.
Dersom borettslaget har fellesgjeld, vil leilighetens andel av fellesgjelden komme i tillegg til kjøpesummen. Denne gjelden skal ikke innbetales i oppgjøret, men følger leiligheten.
Det tas forbehold om endringer i avgifter og gebyrer.
Tilbud om lånefinansiering
Megler formidler gjerne kontakt med rådgiver hos vår samarbeidspartner BN Bank. De har konkurransedyktige betingelser samt rask og løsningsorientert behandling av din lånesøknad. Krogsveen mottar et honorar dersom lån opprettes.
Betalingsbetingelser
Kjøpesum inkludert omkostninger, samt pantedokument tilknyttet eventuelt lån, skal være disponibelt hos megler 2 virkedager før overtagelsen.
Annen viktig informasjon
Annen viktig informasjon
Eier
Mirela Juric og Roman Juric
Informasjon om borettslaget
Leiligheten er tilknyttet Borettslaget Solåsen. Borettslaget består av 84 leiligheter.
Forretningsfører er Bate.
E-post: solaasen-brl@styretmitt.no
Webside: www.solaasen-brl.no
Dugnad samt trappevask må påregnes.
Dyrehold IKKE tillatt ihht generalforsamlingsvedtak 2000. Kan søkes innen gitte retningslinjer. Kontakt styret for informasjon.
Borettslaget har kollektiv avtale med Altibox.
Møtevirksomhet:
Det har i denne perioden vært avholdt 8 styremøter hvor i alt 42 protokollerte saker har
vært behandlet.
Det har ikke vært arrangert dugnad eller andre arrangementer.
Styret har arbeidet med følgende viktige saker i perioden:
Vedlikehold av bygg og anlegg.
Rengjøring av felles garasjene og veiene.
Vedlikehold av vindus lister og karmer ferdig.
Løpende fysisk kontroll av takene. spesielt etter uvær. Mye utskiftning av takpanner.
Ny lade tjeneste for el-bil fra 1. oktober.
Montert inspeksjonsluker på alle nedløp fra tak.
Oppstart av behovsvurdering energi kartlegging.
Stavanger Kommune er andelseiere av 17 boliger i borettslaget som leies ut. Dette har gitt styret ekstra arbeid. Oppfølging fra kommunen har ikke vært tilfredsstillende.
Informasjon til alle beboere.
HMS-arbeid:
HMS arbeidet er ivaretatt i henhold til HMS plan (BevarHMS).
Styrets planer fremover:
Styrets planer fremover er å ivareta vedlikehold av alle bygg og anlegg. Ekstra fokus på å forebygging av vannlekkasjer.
Felles garasjene og veiene blir rengjort maskinelt før 17 mai.
Innvendig rens av Villavent ventilasjon i løpet av 2025.
Behovsvurdering energi kartlegging fullføres.
Det er ikke planlagt dugnad, da det meste som tidligere ble gjort på dugnader, nå gjøres maskinelt av HMS årsaker.
Styret oppfordrer beboere til selv å arrangere sosiale arrangementer på uteområdet.
Styret kan gjerne ta kostnaden. En kan ikke forvente lenger at styret alene skal ta ansvar for sosiale arrangementer.
Dokumenter for borettslaget kan fås ved henvendelse til megler.
Informasjon om forkjøpsrett
Øvrige andelseiere i borettslaget og eventuelt medlemmer av boligbyggelaget har forkjøpsrett. Dersom boligen tas på forkjøpsrett løses kjøper fra avtalen.
Overtakelse
Etter nærmere avtale. Selger ønsker midten av juni 2026.
Boligselgerforsikring
Selger har i forbindelse med salget tegnet boligselgerforsikring levert av Gjensidige.
Boligselgerforsikringen dekker selgers ansvar etter avhendingsloven begrenset oppad til kr 14 millioner. Dersom kjøper oppdager forhold ved eiendommen som hen mener utgjør en mangel ved eiendommen, vil Gjensidige behandle reklamasjonen på vegne av selger. Forsikringsvilkår kan fås ved henvendelse til megler.
Vedlagt salgsoppgaven følger selgers egenerklæringsskjema og tilstandsrapport. Interessenter må sette seg inn i dokumentene før bud inngis.
Boligkjøperforsikring
Innen kontraktsmøtet må kjøper ta stilling til om det ønskes å bestille Boligkjøperpakken gjennom Gjensidige. I denne gunstige pakken er boligen ferdig forsikret og inkluderer rettshjelpsforsikring, også kalt Boligkjøperforsikring. Rettshjelpsforsikring gir trygghet og tilgang på profesjonell juridisk hjelp dersom det oppdages uventede feil eller mangler det første året etter overtagelse. Forsikringsselskapet behandler i så fall ethvert mangelskrav kjøper måtte ha overfor selger.
Boligkjøperpakken inkluderer bygningsforsikring for hus og hytte, innboforsikring, flytteforsikring og dobbel rentedekning - i situasjoner hvor kjøper ikke får solgt nåværende primærbolig.
Kjøper mottar ingen særskilt faktura for Boligkjøperpakken da kostnaden det første året legges til kjøpesummen for boligen. Det gjøres oppmerksom på Krogsveen mottar et honorar for denne formidlingen.
Produktark for Boligkjøperpakken ligger vedlagt i salgsoppgaven.
Dersom ikke boligkjøperpakke ønskes kan kun rettshjelpsforsikring, også kalt boligkjøperforsikring, tegnes særskilt via megler. Rettshjelpsforsikringen varer i 5 år fra overtagelse og leveres gjennom Gjensidige. Ta kontakt med megler for ytterligere informasjon.
Selskap og privatpersoner som driver med kjøp/salg/utvikling som ledd i egen næringsvirksomhet kan ikke tegne boligkjøperpakke eller rettshjelpsforsikring.
Budgivning
Forbrukerinformasjon om budgivning er vedlagt denne salgsoppgaven og er også på vår hjemmeside Krogsveen.no. Alle bud og budforhøyelser må inngis skriftlig. I tillegg må legitimasjon være fremlagt sammen med signatur fra budgiver.
Vi oppfordrer til å gi bud elektronisk via GI BUD-knappen på eiendommens hjemmeside på Krogsveen.no. Da vil samtlige vilkår bli oppfylt.
Eventuelle forhøyelser eller endringer av budet kan bekreftes pr SMS eller på e-post. Vi oppfordrer alltid til å kontakte megler pr. telefon i tillegg da forsinkelser i SMS og e-post kan forekomme.
For at budene skal kunne bli behandlet og videreformidlet skriftlig til alle involverte parter, må alle bud ha en tilstrekkelig lang akseptfrist, jf. eiendomsmeglingsforskriften § 6-3.
Selger må også skriftlig akseptere budet før aksept kan formidles til budgiver. Akseptfrist bør derfor være på minimum 30 minutter, og budforhøyelser må derfor skje i god tid før fristens utløp.
Bud i forbrukerforhold kan uansett ikke settes med kortere frist enn kl. 12.00 første virkedag etter siste annonserte visning. I tillegg kan ikke budet ha forbehold om at det skal holdes hemmelig ovenfor øvrige interessenter. Megler har iht lov om eiendomsmegling ikke anledning til å videreformidle disse budene, og de vil dermed heller ikke bli journalført.
Etter at eiendommen er solgt vil kjøper og selger få tilsendt budjournal. Øvrige budgivere kan få utlevert kopi av budjournalen i anonymisert form.
Hvitvaskingsreglene
I henhold til lov om hvitvasking og terrorfinansiering har megler plikt til å gjennomføre kontrolltiltak overfor kunder, herunder fullmektiger. Dette innebærer bl.a. å bekrefte kunders og reelle rettighetshaveres identitet på bakgrunn av fremvist gyldig legitimasjon eller på annen godkjent måte, samt å innhente opplysninger om kundeforholdets formål og tilsiktede art.
Dersom slike kundetiltak ikke kan gjennomføres, kan megler ikke etablere kundeforholdet eller utføre transaksjonen.
Hvis kjøper ikke bidrar til gjennomføring av kundekontrollen og dette fører til at transaksjonen blir forsinket eller ikke kan gjennomføres, vil dette ansees som mislighold av avtalen og gi selger rettigheter etter avhendingslova kapittel 5. I tilfeller der selger ikke bidrar til gjennomføring av løpende kundekontroll underveis i oppdraget, er det selger som misligholder sine forpliktelser etter avtalen og gi kjøper rettigheter etter avhendingslovens kapittel 4. Partene er selv ansvarlige for eventuelle kostnader og ansvar dette kan medføre. Eiendomsmegleren eller eiendomsmeglingsforetaket kan ikke holdes ansvarlig for de konsekvenser dette vil kunne få for partene eller andre som har interesser i eiendomshandelen.
Kjøper oppfordres til å innbetale kjøpesummen som ikke kommer fra låneinstitusjon i én samlet innbetaling fra egen konto i norsk bank. Megler har plikt til å melde fra til Økokrim om eiendomshandler som fremstår som mistenkelige. Melding sendes Økokrim uten at partene varsles.
Personopplysningsloven
I henhold til personopplysningsloven gjør vi oppmerksom på at interessenter kan bli registrert for videre oppfølging.
Lovanvendelse
Generelle bestemmelser
Salgsoppgaven er basert på de opplysningene selger har gitt til megler, den bygningssakyndiges tilstandsrapport, samt opplysninger innhentet fra kommunen, Kartverket og andre tilgjengelige kilder. Det er viktig at kjøper setter seg grundig inn i alle salgsdokumentene, herunder salgsoppgave, tilstandsrapport og selgers egenerklæring. Kjøper anses kjent med forhold som er tydelig beskrevet i salgsdokumentene, og slike forhold kan ikke påberopes som mangler. Dette gjelder uavhengig av om kjøper har lest dokumentene. Alle interessenter oppfordres til å undersøke eiendommen nøye, gjerne sammen med fagkyndig før bud inngis. Kjøper som velger å kjøpe usett kan ikke gjøre gjeldende som mangel noe han burde blitt kjent med ved undersøkelsen.
Dersom det er behov for avklaringer, anbefaler vi at interessenter rådfører seg med eiendomsmegler eller egne rådgivere før det legges inn bud.
En bolig som har blitt brukt i en viss tid, har vanligvis blitt utsatt for slitasje og skader kan ha oppstått. Slik bruksslitasje må kjøper regne med, og det kan avdekkes enkelte forhold etter overtakelse som nødvendiggjør utbedringer. Normal slitasje og skader som nødvendiggjør utbedring, er innenfor hva kjøper må forvente og vil ikke utgjøre en mangel.
Kjøper og selgers rettigheter og plikter reguleres av avtalen mellom partene, samt informasjonen som har vært tilgjengelig for kjøperen i forbindelse med handelen. Avtalen utfylles av avhendingsloven, og det gjelder ulike avtalevilkår avhengig av om kjøper er forbrukerkjøper eller ikke. Dette er nærmere beskrevet nedenfor.
På grunn av ulike avtalevilkår kan selger vurdere bud fra en som ikke er forbruker, ulikt fra en forbrukers bud. Dersom kjøper ikke er forbruker, er selger sitt mulige mangelsansvar begrenset fordi eiendommen selges "som den er". Selger kan ikke ta «som den er»- forbehold overfor en forbrukerkjøper. Selv et lavere bud fra en som ikke er forbruker kan foretrekkes fordi begrensningen i mulig mangelsansvar kan ha egenverdi for selger. Selger står fritt til å forkaste eller akseptere ethvert bud, og er for eksempel ikke forpliktet til å akseptere høyeste bud.
Budgiver skal i budskjema avgi egenerklæring om budgiver er forbruker eller næringsdrivende/ person som hovedsakelig handler som ledd i næringsvirksomhet. Budgivere får informasjon dersom andre bud er inngitt av en som ikke er forbruker.
Forbrukerkjøp - definisjon
Med forbrukerkjøp menes kjøp av eiendom når kjøperen er en fysisk person som ikke hovedsakelig handler som ledd i næringsvirksomhet.
Forbruker – avtalevilkår
Eiendommen har en mangel dersom den ikke er i samsvar med kravene som følger av avtalen, eller det foreligger brudd på bestemmelsene i avhendingsloven §§ 3-2 til 3-8. Hvis eiendommen ikke er i samsvar med det kjøperen må kunne forvente ut ifra alder, type og synlig tilstand, kan det være grunnlag for mangelskrav. Det samme gjelder hvis det er holdt tilbake eller gitt uriktige opplysninger om eiendommen. Dette gjelder likevel bare dersom man kan gå ut ifra at det virket inn på avtalen at opplysningen ikke ble gitt eller at mangelskravet ikke blir rettet i tide på en tydelig måte.
Boligen kan ha en mangel etter avhendingsloven § 3-3 andre ledd, dersom det er avvik mellom opplyst og faktisk innvendig areal, forutsatt at avviket er på 2% eller mer og minimum 1 kvm.
Ved beregning av et eventuelt prisavslag eller erstatning må kjøper selv dekke tap/kostnader opptil et beløp på kr 10 000 (egenandel).
Ikke-forbruker (næringsdrivende) – definisjon
Hvis kjøper er en juridisk person, eller en fysisk person som hovedsakelig handler som ledd i næringsvirksomhet, vil kjøpet ikke anses som et forbrukerkjøp.
Ikke-forbruker – avtalevilkår
Eiendommen har en mangel dersom den ikke er i samsvar med kravene som følger av avtalen.
Eiendommen selges «som den er», og selgers ansvar utover det konkret avtalte er da begrenset etter avhendingsloven § 3-9, første ledd andre setning.
Avhendingsloven § 3-3 andre ledd fravikes, og hvorvidt boligens arealsvikt utgjør en mangel vurderes etter avhendingsloven § 3-8.
Informasjon om kjøpers undersøkelsesplikt, herunder oppfordringen om å undersøke eiendommen nøye, gjelder også for kjøpere som ikke anses som forbrukere.
Det forutsettes at hjemmel overføres til kjøper. Hvis kjøper ikke ønsker hjemmelsoverføring av eiendommen, må det tas forbehold om dette i budet.
Meglers vederlag
Vi er opptatt av verdiskapning, og har knyttet til oss samarbeidspartnere som skal sikre våre kunder de beste produkter og tjenester;
• I forbindelse med forberedelse av salget, innhenter vi informasjon om eiendommen hovedsakelig fra vår samarbeidspartner Amibita.
• Gjensidige leverer boligselgerforsikring og tilbyr bygningsforsikring
• Boligkjøperforsikring leveres av Hiscox og med Sedgwick som skadebehandler, og er formidlet gjennom Gjensidige.
• BN bank tilbyr finansieringsløsninger
• Vår avdeling Krogsveen Pluss tilbyr flyttetjenester som utvask, visningsvask, lager, tømming og transport av flyttelass, i tillegg til å formidle kontakt med Flip for overflateoppussing.
• I forbindelse med overtagelse av eiendommen tilbyr Overo avtale om strøm, alarm og bredbånd.
• Krogsveen er, sammen med øvrige bransjeaktører, medeier i Bomega AS som tilbyr den digitale annonseringsplattformen Hjem.
Opplysninger om oppdraget
Oppdragsnummer 33-0013/26
Eiendomsmegler Krogsveen AS, avd. Mariero
Langflåtveien 29, 4017, STAVANGER
950 007 613
Oppdragets KR-kode KR33.2613
Dato
Sist oppdatert: 01. april 2026 kl. 11:54
Dokumenter
Dokumenter
PDF – 959 KB
PDF – 4 MB
PDF – 312 KB
PDF – 29 KB
PDF – 127 KB
PDF – 392 KB
Område
Legg til steder som er viktige for deg
Visning
Unngå doble boligrenter
Vi tilbyr gunstig forsikring.
Vurderer du utleie?
Få et tilbud fra Utleie KrogsveenHva koster lånet?
Sjekk estimert lånekostnadVil du varsles om lignende boliger?
Ved å lagre ditt boligsøk hos oss får du beskjed når vi har en bolig som ligner denne, før den legges ut på markedet!




