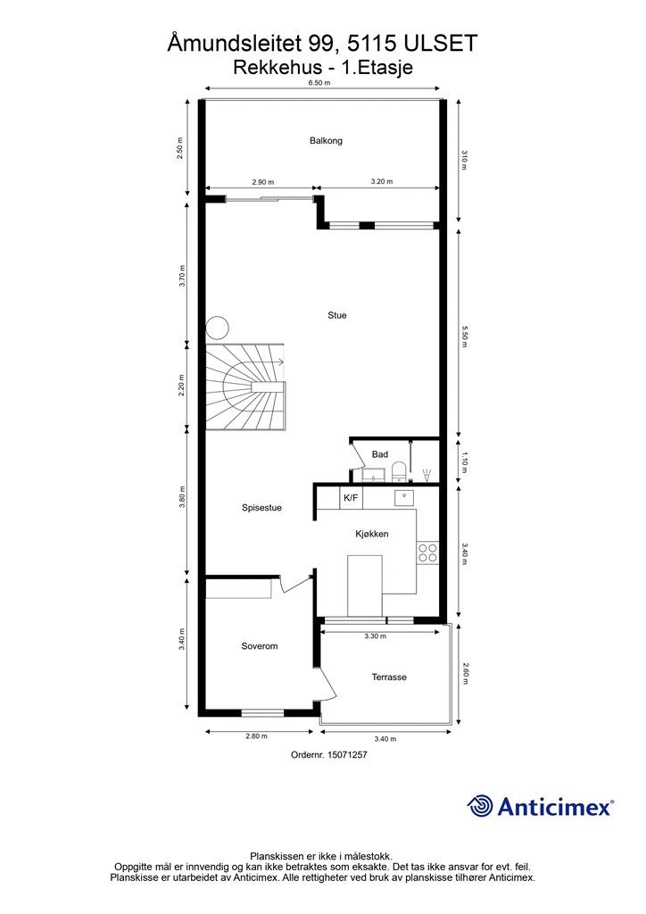
Åmundsleitet 99
4 350 000 kr
147 m²
3 soverom
Solgt

Åsane
Lyst og moderne rekkehus i populært boligområde | Solrik balkong, 2 bad og peis | Sentral beliggenhet i Åsane
Prisantydning
4 350 000 krAndel fellesgjeld
429 833 krOmkostninger
11 040 krTotalpris
4 790 873 kr
Pris
Bruksareal
150 m²BRA-I (internt bruksareal)
147 m²BRA-E (eksternt bruksareal)
3 m²TBA (terrasse-balkongareal)
27 m²
Areal
Etasje
2Byggeår
1977Soverom
3 soveromBad
2 badType
RekkehusEierform
AndelFasiliteter
Balkong/TerrasseFellesutgifter
7 889 krEnergimerke
Rød E
Nøkkelinfo
Unngå doble boligrenter
Vi tilbyr gunstig forsikring.
Vurderer du utleie?
Få et tilbud fra Utleie KrogsveenHva koster lånet?
Sjekk estimert lånekostnadBeskrivelse
Kort om eiendommen
Velkommen til Åmundsleitet 99 - et innholdsrikt rekkehus over to plan. Boligen ligger i et svært attraktivt område med kort vei til "alt" man har behov for. Det er gangavstand til skole, barnehage og dagligvarebutikk. I tillegg er det kort vei til kollektivtransport, servicetilbud og flere kjøpesenter. For de aktive er det fine turområder, treningssenter og en rekke fritidsaktiviteter i nærheten.
Høydepunkter:
-Peis i stue
-Parkeringsplass
-Kjøkken fra 2016
-Balansert ventilasjon
-Balkong med gode solforhold
-3 romslige soverom og 2 bad
-Bilfri gangavstand til skole og barnehage
-Nærhet til fine turområder og en rekke fritidstilbud
-Tak, vinduer og fasade rehabilitert i regi av borettslag i 2013/2014
-Kort vei til dagligvare, Åsane Storsenter, Horisont, buss og servicetilbud
Område
Legg til steder som er viktige for deg
På flyttefot? Tenk kjøp og salg samtidig.
Få din egen rådgiver gjennom hele kjøps- og salgsprosessen. Det starter med en verdivurdering.
Unngå doble boligrenter
Vi tilbyr gunstig forsikring.
Vurderer du utleie?
Få et tilbud fra Utleie KrogsveenHva koster lånet?
Sjekk estimert lånekostnadVil du varsles om lignende boliger?
Ved å lagre ditt boligsøk hos oss får du beskjed når vi har en bolig som ligner denne, før den legges ut på markedet!

