Tore Hals Mejdells vei 7
7 250 000 kr
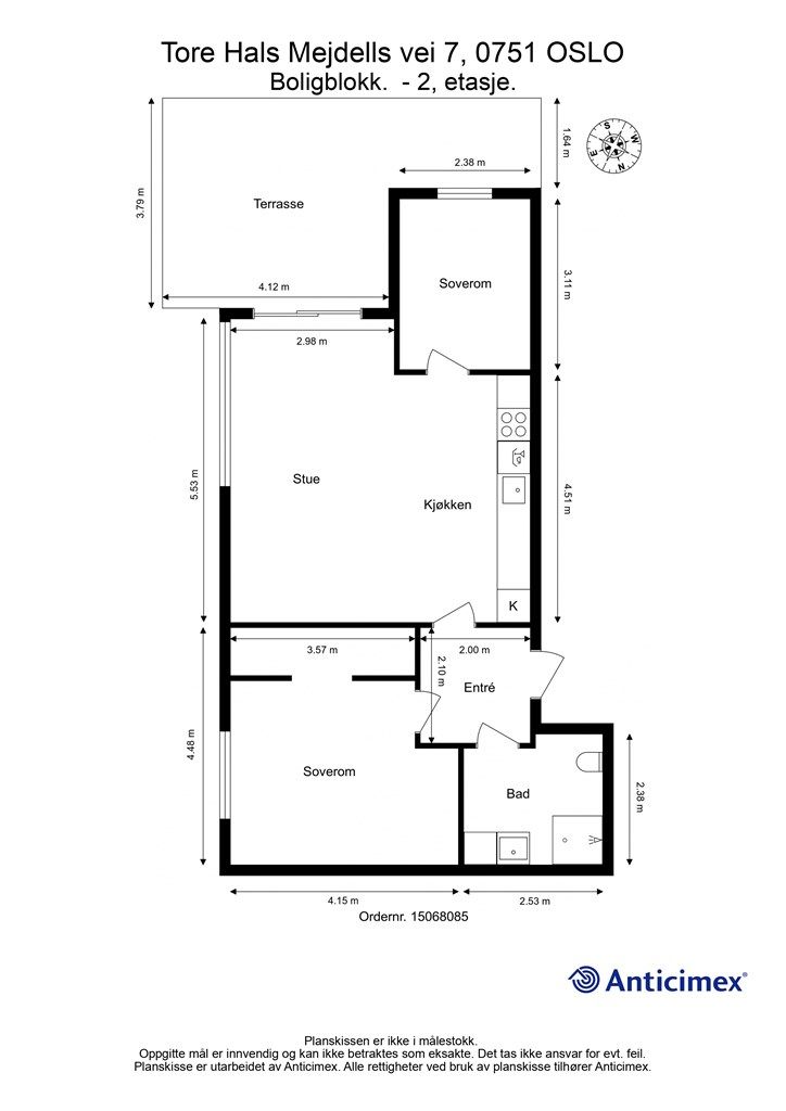
66 m²
2 soverom
Solgt

Røa sentrum
Lys, moderne 3-roms | Heis | Sydvendt terrasse 19 kvm | A-konto oppv./vv. inkl. | Ingen forkjøpsrett | Kort vei til alt!
Prisantydning
7 250 000 krOmkostninger
11 040 krTotalpris
7 261 040 kr
Pris
Bruksareal
72 m²BRA-I (internt bruksareal)
66 m²BRA-E (eksternt bruksareal)
6 m²TBA (terrasse-balkongareal)
19 m²
Areal
Etasje
2Byggeår
2020Soverom
2 soveromBad
1 badType
AndelsleilighetEierform
AndelFasiliteter
Heis og Balkong/TerrasseFellesutgifter
3 745 krEnergimerke
Gul A
Nøkkelinfo
Unngå doble boligrenter
Vi tilbyr gunstig forsikring.
Vurderer du utleie?
Få et tilbud fra Utleie KrogsveenHva koster lånet?
Sjekk estimert lånekostnadDette liker selger best ved boligen
Nærhet til kjøpesenter, bibliotek, kafe og kollektivtrafikk. Stor solrik terrasse. Skjermet fra trafikkstøy.
Beskrivelse
Kort om eiendommen
Velkommen til Tore Hals Mejdells vei 7 - en meget tiltalende 3-roms med standard fra byggeår 2020.
Kvaliteter:
• Heis
• Felles takterrasse
• Balansert ventilasjon
• Vannbåren gulvvarme
• Sydvendt terrasse på 19 kvm (uttak for gass på vegg)
• A-konto oppvarming/varmtvann inkl. i felleskostnadene => lave strømkostnader
• Store vindusflater fra gulv til tak
• Gulvflater belagt med parkett
• Hele leiligheten nymalt i 2025
• Pent, flislagt bad med dusjhjørne og opplegg for vaskemaskin
• Åpen stue-/kjøkkenløsning
• HTH kjøkkeninnredning med integrerte hvitevarer
• 2 romslige soverom
• Disponibel bod i kjeller på 6 kvm
• Umiddelbar nærhet til forretninger og servicetilbud
• Kun 190 m til Røa T
• Kort vei til flotte tur- og rekreasjonsområder
• Brl. har ikke bestemmelser om forkjøpsrett
Område
Legg til steder som er viktige for deg
På flyttefot? Tenk kjøp og salg samtidig.
Få din egen rådgiver gjennom hele kjøps- og salgsprosessen. Det starter med en verdivurdering.
Unngå doble boligrenter
Vi tilbyr gunstig forsikring.
Vurderer du utleie?
Få et tilbud fra Utleie KrogsveenHva koster lånet?
Sjekk estimert lånekostnadVil du varsles om lignende boliger?
Ved å lagre ditt boligsøk hos oss får du beskjed når vi har en bolig som ligner denne, før den legges ut på markedet!

