Solberg terrasse 10
5 700 000 kr
199 m²
5 soverom
Solgt

Presenteres av
Sondre Trøseng GjellumSolbergmoen
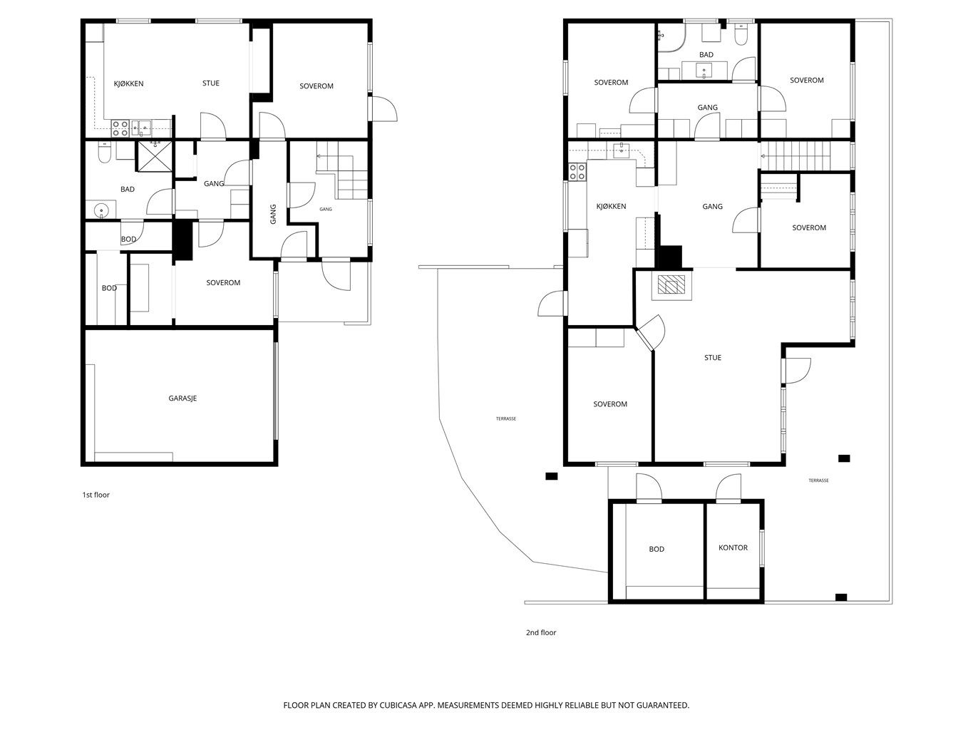
Enebolig med attraktiv beliggenhet på Solbergmoen i blindvei. Kort vei til marka. Garasje. Stor terrasse og flott utsikt.
Prisantydning
5 700 000 krOmkostninger
163 490 krTotalpris
5 863 490 kr
Pris
Bruksareal
240 m²BRA-I (internt bruksareal)
199 m²BRA-E (eksternt bruksareal)
41 m²TBA (terrasse-balkongareal)
97 m²
Areal
Byggeår
1965Soverom
5 soveromBad
1 badTomteareal
1 160 m² (eiet)Type
Enebolig - FrittliggendeEierform
EietFasiliteter
Garasje/P-plass og Balkong/TerrasseEnergimerke
F
Nøkkelinfo
Unngå doble boligrenter
Vi tilbyr gunstig forsikring.
Vurderer du utleie?
Få et tilbud fra Utleie KrogsveenHva koster lånet?
Sjekk estimert lånekostnadBeskrivelse
Kort om eiendommen
Enebolig med attraktiv beliggenhet på Solbergmoen
- Parkering i garasje og på gårdsplassen
- Eiendommen har flott utsikt
- Boligen er plassert i en blindvei, som medfører ingen gjennomgangstrafikk
- Fin uteplass på stor og delvis overbygget terrasse med god plass til utemøbler
- Boblebad på terrassen medfølger salget
- Fem soverom
- Gode solforhold
- To boder med adkomst fra terrassen på tilsammen ca. 13 kvm
- Bod med adkomst fra hagen på ca. 8 kvm
- Kort kjørevei (ca. 5 min) til barneskole og ungdomsskole
- Gangavstand til flott turterreng både sommer og vinter
Område
Legg til steder som er viktige for deg
På flyttefot? Tenk kjøp og salg samtidig.
Få din egen rådgiver gjennom hele kjøps- og salgsprosessen. Det starter med en verdivurdering.
Unngå doble boligrenter
Vi tilbyr gunstig forsikring.
Vurderer du utleie?
Få et tilbud fra Utleie KrogsveenHva koster lånet?
Sjekk estimert lånekostnadVil du varsles om lignende boliger?
Ved å lagre ditt boligsøk hos oss får du beskjed når vi har en bolig som ligner denne, før den legges ut på markedet!
På flyttefot? Slik gjør vi det enklere for deg
Skreddersydd flyttepakke
Vi fikser håndverkere, vask, pakking, lagring og transport, og legger ut for utgiftene underveis.
Hjelp med både kjøp og salg
Hos oss har du din egen rådgiver gjennom hele kjøps- og salgsprosessen.
Hjelp til finansiering
Vårt samarbeid med BN Bank sikrer deg rask og løsningsorientert hjelp, til konkurransedyktige betingelser.























































