Skogstuveien 17
13 950 000 kr
224 m²
4 soverom
Solgt

Presenteres av
Fredrik NordstrømSJØNÆRT PÅ NEDRE HØVIK
Svært attraktiv enebolig/ atriumshus i barnevennlige og sjønære omgivelser| Peis| Garasje| Store, felles grøntarealer
Prisantydning
13 950 000 krOmkostninger
369 740 krTotalpris
14 319 740 kr
Pris
Bruksareal
239 m²BRA-I (internt bruksareal)
224 m²BRA-E (eksternt bruksareal)
15 m²TBA (terrasse-balkongareal)
5 m²
Areal
Etasje
2Byggeår
1965Soverom
4 soveromBad
2 badTomteareal
426 m² (eiet)Type
Enebolig i kjedeEierform
EietFasiliteter
Garasje/P-plass og Balkong/TerrasseEnergimerke
Oransje F
Nøkkelinfo
Unngå doble boligrenter
Vi tilbyr gunstig forsikring.
Vurderer du utleie?
Få et tilbud fra Utleie KrogsveenHva koster lånet?
Sjekk estimert lånekostnadBeskrivelse
Kort om eiendommen
Hyggelig og innbydende atriumhus beliggende i et meget populært og ettertraktet boligområde på Nedre Høvik. Boligen har en barnevennlig og rolig beliggenhet med korte avstander til barnehager, skoler, offentlig kommunikasjon og butikker, samt nærhet til sjøen og nydelige turområder.
Innhold:
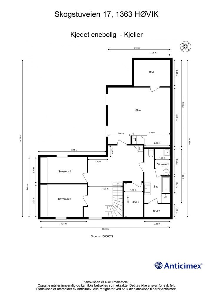
Kjeller: 110 kvm: Gang, bad, vaskerom, kjellerstue, to soverom og tre boder
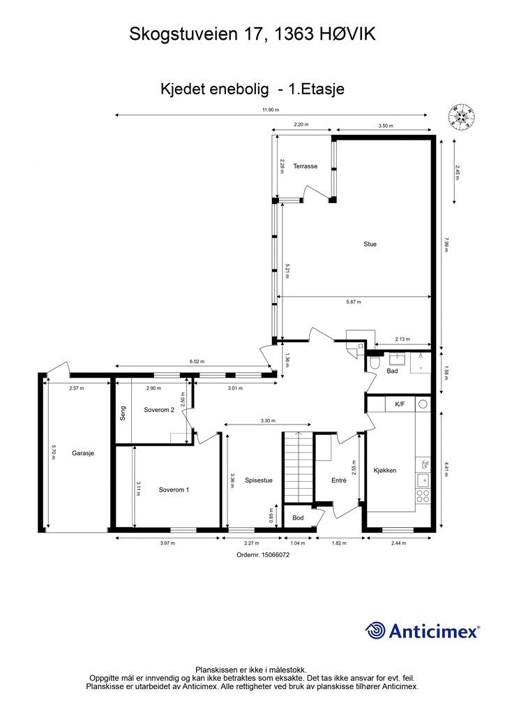
1. etasje 114 kvm: Entré, gang/spisestue, stue, kjøkken, bad og to soverom
Innholdsrik og god planløsning
To stuer, fire soverom og to bad
Nydelig, solrik terrasse og privat atrium
Tilgang til fellesareal på ca. 6 mål rett fra eget atrium
Parkering i garasje
Meget barnevennlig boligområde, rett ved Høvik Verk barneskole
Sjønær beliggenhet med kort avstand til offentlig tilgjengelig strand
Område
Legg til steder som er viktige for deg
På flyttefot? Tenk kjøp og salg samtidig.
Få din egen rådgiver gjennom hele kjøps- og salgsprosessen. Det starter med en verdivurdering.
Unngå doble boligrenter
Vi tilbyr gunstig forsikring.
Vurderer du utleie?
Få et tilbud fra Utleie KrogsveenHva koster lånet?
Sjekk estimert lånekostnadVil du varsles om lignende boliger?
Ved å lagre ditt boligsøk hos oss får du beskjed når vi har en bolig som ligner denne, før den legges ut på markedet!
På flyttefot? Slik gjør vi det enklere for deg
Skreddersydd flyttepakke
Vi fikser håndverkere, vask, pakking, lagring og transport, og legger ut for utgiftene underveis.
Hjelp med både kjøp og salg
Hos oss har du din egen rådgiver gjennom hele kjøps- og salgsprosessen.
Hjelp til finansiering
Vårt samarbeid med BN Bank sikrer deg rask og løsningsorientert hjelp, til konkurransedyktige betingelser.

