Bråtenvegen 6
5 190 000 kr
172 m²
2 soverom
Solgt

Enebolig m/barnevennlig beliggenhet i blindvei | Egen inngang i kjeller | Stor dobbeltgarasje m/kjeller | Solrik tomt
Prisantydning
5 190 000 krOmkostninger
150 740 krTotalpris
5 340 740 kr
Pris
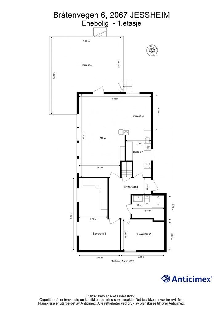
Bruksareal
239 m²BRA-I (internt bruksareal)
172 m²BRA-E (eksternt bruksareal)
67 m²TBA (terrasse-balkongareal)
36 m²
Areal
Etasje
2Byggeår
1964Soverom
2 soveromBad
1 badTomteareal
610 m² (eiet)Type
Enebolig - FrittliggendeEierform
EietFasiliteter
Garasje/P-plass og Balkong/Terrasse
Nøkkelinfo
Unngå doble boligrenter
Vi tilbyr gunstig forsikring.
Vurderer du utleie?
Få et tilbud fra Utleie KrogsveenHva koster lånet?
Sjekk estimert lånekostnadBeskrivelse
Kort om eiendommen
Velkommen til Bråtenvegen 6!
En enebolig med attraktiv og familievennlig beliggenhet hvor alt ligger til rette for å skape sin egen drømmebolig. Praktisk planløsning som vil kunne passe hele familien. Godt med boltreplass både ute og inne. Tomten er romslig med både plen, belegningsstein i innkjørsel og stor dobbeltgarasje med kjeller.
Her bor du i nærheten av alt du trenger. Boligen har gangavstand til flere barnehager og kun noen minutters gange på trygg skolevei til barneskole på Hovin. Det er kort vei til matbutikker, Jessheim sentrum samt kollektivtrafikk.
Kort fortalt:
- Stor dobbeltgarasje med kjellerrom.
- Mulighet for tre soverom i hovedetasje.
- Egen inngang til kjeller.
- Modernisering/oppussingsbehov.
- Barnevennlig beliggenhet i blindvei- Kort vei til kollektivt.
Område
Legg til steder som er viktige for deg
Megler

Kine Johansen Ruud
Eiendomsmegler
På flyttefot? Tenk kjøp og salg samtidig.
Få din egen rådgiver gjennom hele kjøps- og salgsprosessen. Det starter med en verdivurdering.
Unngå doble boligrenter
Vi tilbyr gunstig forsikring.
Vurderer du utleie?
Få et tilbud fra Utleie KrogsveenHva koster lånet?
Sjekk estimert lånekostnadVil du varsles om lignende boliger?
Ved å lagre ditt boligsøk hos oss får du beskjed når vi har en bolig som ligner denne, før den legges ut på markedet!
