Vestengsletta 9A
2 090 000 kr
71 m²
2 soverom
Solgt

Råholt
Pen og praktisk 1/2 av tomannsbolig i 1. etasje med garasjeplass, utvendig p-plass og solrik terrasse | Barnevennlig!
Prisantydning
2 090 000 krAndel fellesgjeld
636 084 krOmkostninger
11 040 krTotalpris
2 737 124 kr
Pris
Bruksareal
76 m²BRA-I (internt bruksareal)
71 m²BRA-E (eksternt bruksareal)
5 m²TBA (terrasse-balkongareal)
16 m²
Areal
Etasje
1Byggeår
2007Soverom
2 soveromBad
1 badType
Halvpart horisontaldelt boligEierform
AndelFasiliteter
Garasje/P-plass og Balkong/TerrasseFellesutgifter
10 228 krEnergimerke
Rød D
Nøkkelinfo
Unngå doble boligrenter
Vi tilbyr gunstig forsikring.
Vurderer du utleie?
Få et tilbud fra Utleie KrogsveenHva koster lånet?
Sjekk estimert lånekostnadBeskrivelse
Kort om eiendommen
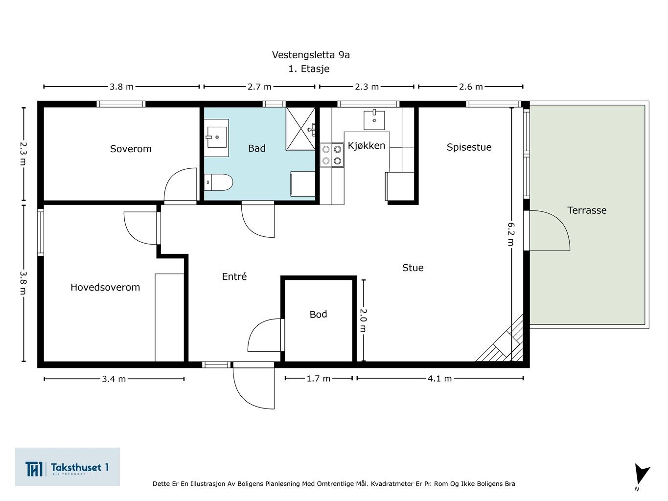
Vestengsletta 9A er en innbydende og praktisk 1/2 av horisontaldelt tomannsbolig beliggende i et barnevennlig og etablert boområde på Råholt. Det er kort vei til barnehager, skole og offentlig kommunikasjon med buss- og togstasjon i nærheten. Det er ca. 1 km til Råholt sentrum hvor man kan bl.a. kan finne flere dagligvarehandler, et nyere Amfi-senter med over 50 butikker og spisesteder, bibliotek, svømmehall og flere treningssentre. Området byr på gode tur- og rekreasjonsmuligheter.
Boligen ligger til i 1. etasje og rommer entré, stue og kjøkken i åpen løsning, bad med gulvvarme, to gode soverom og en praktisk bod. I tillegg utvendig bod på ca. 5 kvm. Solfylt terrasse på ca. 16 kvm som blir en naturlig forlengelse av boligen på sommertid. Parkering i garasje og utvendig parkeringsplass.
Område
Legg til steder som er viktige for deg
På flyttefot? Tenk kjøp og salg samtidig.
Få din egen rådgiver gjennom hele kjøps- og salgsprosessen. Det starter med en verdivurdering.
Unngå doble boligrenter
Vi tilbyr gunstig forsikring.
Vurderer du utleie?
Få et tilbud fra Utleie KrogsveenHva koster lånet?
Sjekk estimert lånekostnadVil du varsles om lignende boliger?
Ved å lagre ditt boligsøk hos oss får du beskjed når vi har en bolig som ligner denne, før den legges ut på markedet!

