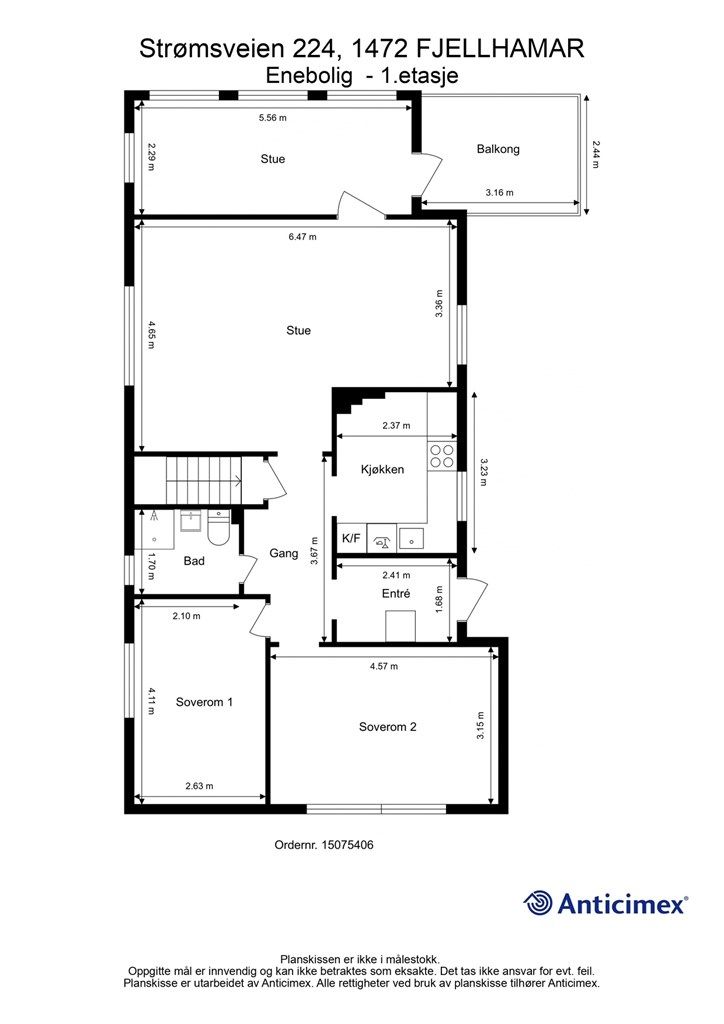
Strømsveien 224
5 500 000 kr
154 m²
3 soverom
Solgt

Lørenskog / Fjellhamar
Enebolig med fin og sentral beliggenhet, på opparbeidet solrik tomt. Underetasje med egen inngang. Moderniseringsbehov.
Prisantydning
5 500 000 krOmkostninger
158 490 krTotalpris
5 658 490 kr
Pris
Bruksareal
188 m²BRA-I (internt bruksareal)
154 m²BRA-E (eksternt bruksareal)
34 m²TBA (terrasse-balkongareal)
8 m²
Areal
Etasje
2Byggeår
1959Soverom
3 soveromBad
2 badTomteareal
769 m² (eiet)Type
Enebolig - FrittliggendeEierform
EietFasiliteter
Garasje/P-plass og Balkong/TerrasseEnergimerke
Rød G
Nøkkelinfo
Unngå doble boligrenter
Vi tilbyr gunstig forsikring.
Vurderer du utleie?
Få et tilbud fra Utleie KrogsveenHva koster lånet?
Sjekk estimert lånekostnadBeskrivelse
Kort om eiendommen
Strømsveien 224 ligger i blindvei nær grensen til Strømmen. Her er det hovedsakelig etablert bebyggelse med småhus som naboer.
Gangavstand til Strømmen Storsenter, A-hus, kollektivtransport og skoler. Den tilbyr en sjelden kombinasjon av rolige omgivelser, kombinert med nærhet til bylivet.
Enten du foretrekker avslappende stunder i den avskjermende terrassen, turer i marka, eller en spasertur til Strømmen for shopping og kafebesøk, gir denne eiendommen deg det perfekte utgangspunkt.
Boligen går over 2 plan, med god størrelse på de ulike rom. Det er muligheter for etablering av et soverom til om det er behov.
Kjelleren har takhøyde over 2,0m. og har egen inngang.
Eiendommen har garasje og carport for parkering, samt ekstra lagringsplass i stor utebod.
Velkommen!
Område
Legg til steder som er viktige for deg
På flyttefot? Tenk kjøp og salg samtidig.
Få din egen rådgiver gjennom hele kjøps- og salgsprosessen. Det starter med en verdivurdering.
Unngå doble boligrenter
Vi tilbyr gunstig forsikring.
Vurderer du utleie?
Få et tilbud fra Utleie KrogsveenHva koster lånet?
Sjekk estimert lånekostnadVil du varsles om lignende boliger?
Ved å lagre ditt boligsøk hos oss får du beskjed når vi har en bolig som ligner denne, før den legges ut på markedet!

