Røyseløkka 5C
2 175 000 kr
73 m²
2 soverom
Solgt

Gjekstad/Lahelle
BUD INNKOMMET - Barnevennlig og populært beliggende leilighet med solrike utearealer - Flotte turområder, samt kort vei til badestrand
Prisantydning
2 175 000 krAndel fellesgjeld
406 937 krOmkostninger
11 040 krTotalpris
2 592 977 kr
Pris
Bruksareal
79 m²BRA-I (internt bruksareal)
73 m²BRA-E (eksternt bruksareal)
6 m²TBA (terrasse-balkongareal)
28 m²
Areal
Etasje
1Byggeår
1989Soverom
2 soveromBad
1 badType
AndelsleilighetEierform
AndelFasiliteter
Balkong/TerrasseFellesutgifter
6 172 krEnergimerke
Rød E
Nøkkelinfo
Unngå doble boligrenter
Vi tilbyr gunstig forsikring.
Vurderer du utleie?
Få et tilbud fra Utleie KrogsveenHva koster lånet?
Sjekk estimert lånekostnadBeskrivelse
Kort om eiendommen
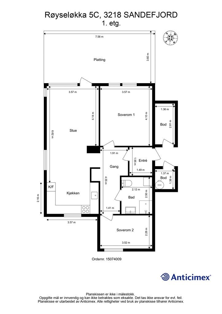
Velkommen til en lettstelt og praktisk bolig med alt på en flate!
Planløsningen er godt utnyttet og byr på en luftig stue med store vindusflater som slipper inn rikelig med naturlig lys. Stuen har åpen løsning mot kjøkkenet, noe som skaper en romslig atmosfære med god plass til både spisebord og sofagruppe. Fra stuen er det direkte utgang til en solrik platting med god plass til utemøbler– et fint sted å nyte rolige dager eller samle venner og familie.
Boligen inneholder to soverom av god størrelse samt et bad. Det er et moderniseringsbehov, noe som gir mulighet til å sette eget preg på boligen. Enheten har god lagringsplass med hele to boder tilknyttet, praktisk for oppbevaring.
Her bor man i et rolig område med kort vei til både butikk og badestrender rett utenfor døren.
Område
Legg til steder som er viktige for deg
På flyttefot? Tenk kjøp og salg samtidig.
Få din egen rådgiver gjennom hele kjøps- og salgsprosessen. Det starter med en verdivurdering.
Unngå doble boligrenter
Vi tilbyr gunstig forsikring.
Vurderer du utleie?
Få et tilbud fra Utleie KrogsveenHva koster lånet?
Sjekk estimert lånekostnadVil du varsles om lignende boliger?
Ved å lagre ditt boligsøk hos oss får du beskjed når vi har en bolig som ligner denne, før den legges ut på markedet!

