Sletteveien 18 A +B
4 500 000 kr
90 m²
3 soverom
Solgt

Presenteres av
Amir Pedersen-Paydar Innflyttingsklar, familievennlig ½-del av nyoppført tomannsbolig. Moderne og påkostet standard. Vannbåren gulvvarme.
Prisantydning
4 500 000 krOmkostninger
19 840 krTotalpris
4 519 840 kr
Pris
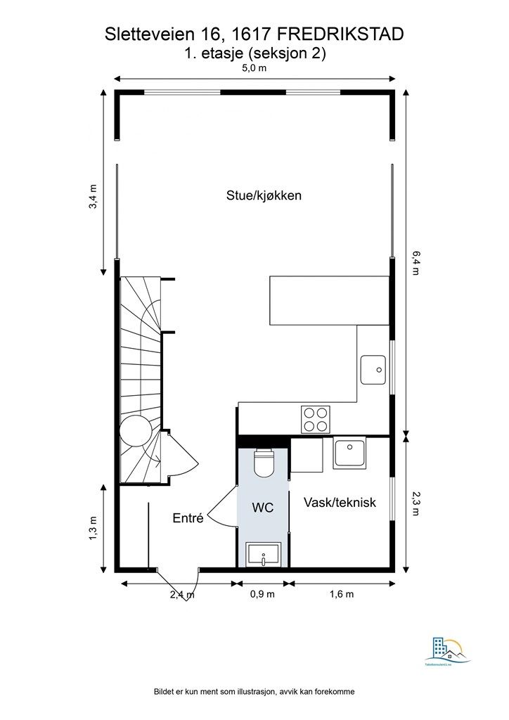
Bruksareal
90 m²BRA-I (internt bruksareal)
90 m²TBA (terrasse-balkongareal)
14 m²
Areal
Etasje
2Byggeår
2024Soverom
3 soveromBad
1 badType
Halvpart vertikaldelt boligEierform
Eierseksjon
Nøkkelinfo
Unngå doble boligrenter
Vi tilbyr gunstig forsikring.
Vurderer du utleie?
Få et tilbud fra Utleie KrogsveenHva koster lånet?
Sjekk estimert lånekostnadBeskrivelse
Kort om eiendommen
Innflyttingsklar halvdel av helt ny og moderne tomannsbolig på Lisleby
- Familievennlig romløsning med 3 store soverom
- Påkostet Sigdal kjøkkeninnredning med italiensk carrara marmor
- Elegant, flislagt bad i samme etasje som soverom
- Gjestetoalett med tilknyttet vaskerom
- Vannbåren gulvvarme på bad og i hele første etasje
- Biloppstillingsmulighet på felles gårdsplass
- Kort avstand til barnehager, skoler, dagligvare og turområder i marka
- Godt kollektivtilbud i området, svært hyppig avganger mellom byene
Område
Legg til steder som er viktige for deg
På flyttefot? Tenk kjøp og salg samtidig.
Få din egen rådgiver gjennom hele kjøps- og salgsprosessen. Det starter med en verdivurdering.
Unngå doble boligrenter
Vi tilbyr gunstig forsikring.
Vurderer du utleie?
Få et tilbud fra Utleie KrogsveenHva koster lånet?
Sjekk estimert lånekostnadVil du varsles om lignende boliger?
Ved å lagre ditt boligsøk hos oss får du beskjed når vi har en bolig som ligner denne, før den legges ut på markedet!
På flyttefot? Slik gjør vi det enklere for deg
Skreddersydd flyttepakke
Vi fikser håndverkere, vask, pakking, lagring og transport, og legger ut for utgiftene underveis.
Hjelp med både kjøp og salg
Hos oss har du din egen rådgiver gjennom hele kjøps- og salgsprosessen.
Hjelp til finansiering
Vårt samarbeid med BN Bank sikrer deg rask og løsningsorientert hjelp, til konkurransedyktige betingelser.

