Dyregrenda Sør BFR 9 - 2056 og 2058
7 850 000 kr
142 m²
5 soverom
Komplett salgsoppgave
Nye eksklusive hytter ved alpinsenteret – 166 m², 5 soverom, garasje, fantastisk utsikt – klar til høsten!
Prisantydning
7 850 000 krTotalpris
7 850 000 kr
Pris
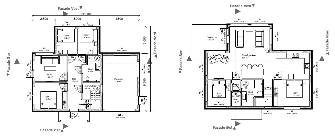
Bruksareal
166 m²BRA-I (internt bruksareal)
142 m²BRA-E (eksternt bruksareal)
24 m²
Areal
Etasje
2Byggeår
2026Soverom
5 soveromBad
2 badType
Fritidseiendom på fjelletEierform
EietFasiliteter
Garasje/P-plass og Balkong/Terrasse
Nøkkelinfo
Vurderer du utleie?
Få et tilbud fra Utleie KrogsveenHva koster lånet?
Sjekk estimert lånekostnadBeskrivelse
Kort om enheten
- Velkommen til Dyregrenda -
Drømmer du om den perfekte hytta på fjellet? Flytt inn til høsten! 2 stk. eksklusive nøkkelferdige hytter på 166 m² med høy standard – som på bildene.
5 soverom, 2 stuer, 2 bad med dusj og garasje inkludert.
Hyttene ligger luftig til med stor solrik veranda og fantastisk utsikt.
Uslåelig beliggenhet rett ved alpinsenteret og gangavstand til sentrum, badeland, skiløyper og alt Hovden har å by på.
Ingen betaling før overtakelse.
Ring selger døgnet rundt for opplysninger.
Visning hver dag – tlf: 458 04647 / 900 30119.
Tomt:
Gnr 2 bnr 2056 – 524 m²
Gnr 2 bnr 2058 – 561 m²
Video illustrasjon/visualisering: https://youtu.be/l2BULAxbvTQ?si=W29TkgDKeaIPAtbu
Innhold og byggemåte
Innhold og byggemåte
Eiendommen
Dyregrenda Sør BFR 9 - 2056 og 2058, 4755 HOVDEN I SETESDAL
Kommunenummer 4222, gårdsnummer 2, bruksnummer 2056, ideell andel 1/1
Kommunenummer 4222, gårdsnummer 2, bruksnummer 2058, ideell andel 1/1
Økonomi
Økonomi
Omkostninger
Prisantydning - Kr 7.850.000 pr hytte.
Omkostninger:
Pantattest kjøper kr. 240,-
Tinglysning pantedokument kr. 500,-
Tinglysning skjøte kr. 500,-
Dokumentavgift (tomteverdi 1.750.000) kr. 43.750,-
Tilkoblingsavgift Bykle kommune kr. 103.000,-
Sum omkostninger kr. 146.750,-
Totalpris inkl. omkostninger kr. 7.996.750,-pr. hytte.
Annen viktig informasjon
Annen viktig informasjon
Eier
Jekmo AS
Opplysninger om oppdraget
Oppdragsnummer 32-0026/26
Eiendomsmegler Krogsveen AS, avd. Hovden
Setesdalsvegen 4275, 4755, HOVDEN I SETESDAL
950 007 613
Oppdragets KR-kode KR32.2626
Dato
Sist oppdatert: 27. mars 2026 kl. 20:10
Dokumenter
Dokumenter
PDF – 392 KB
Interessert?
Dette prosjektet har ingen planlagte visninger, kontakt megler for mer informasjon eller meld din interesse så holder vi deg oppdatert om prosjektet.
Vurderer du utleie?
Få et tilbud fra Utleie KrogsveenHva koster lånet?
Sjekk estimert lånekostnad



