Tors vei 69
3 990 000 kr
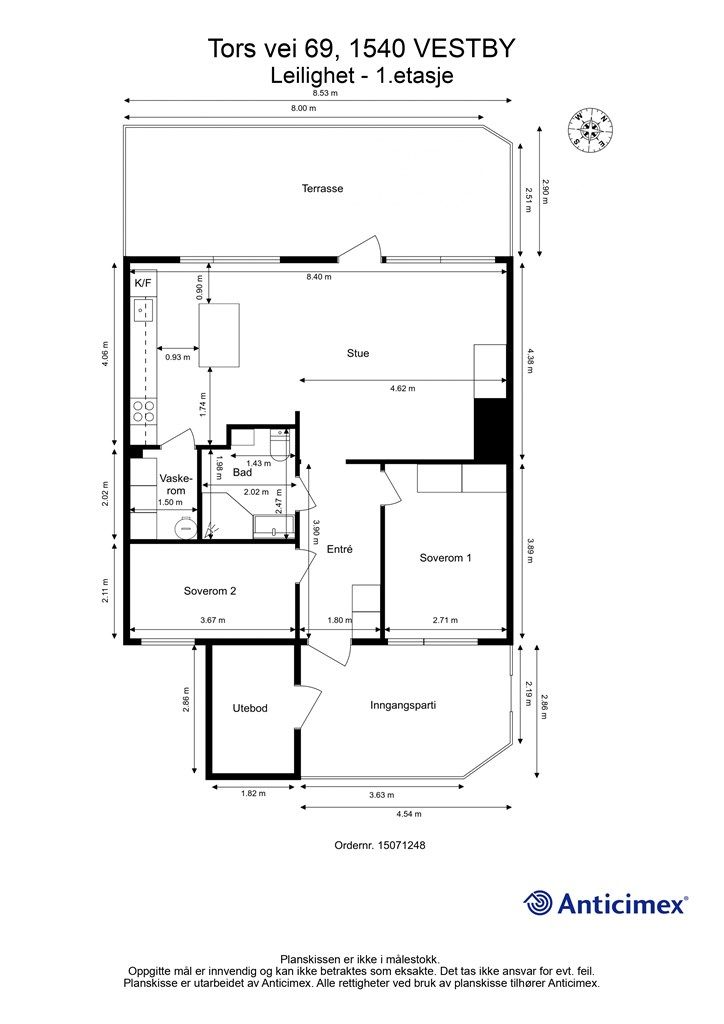
71 m²
2 soverom
Solgt

Presenteres av
Dina DahlSole/Vestby sentrum
Lekker 3-roms endeleilighet, pusset opp i 2023. Terrasser med sol fra tidlig til sent. Trinnfri, enkel adkomst. Garasje.
Prisantydning
3 990 000 krAndel fellesgjeld
55 350 krOmkostninger
112 170 krTotalpris
4 157 520 kr
Pris
Bruksareal
76 m²BRA-I (internt bruksareal)
71 m²BRA-E (eksternt bruksareal)
5 m²TBA (terrasse-balkongareal)
38 m²
Areal
Etasje
1Byggeår
1999Soverom
2 soveromBad
1 badType
EierleilighetEierform
EierseksjonFellesutgifter
4 400 krEnergimerke
Oransje E
Nøkkelinfo
Unngå doble boligrenter
Vi tilbyr gunstig forsikring.
Vurderer du utleie?
Få et tilbud fra Utleie KrogsveenHva koster lånet?
Sjekk estimert lånekostnadBeskrivelse
Kort om eiendommen
Lekker tre-roms endeleilighet i rolige omgivelser på Sole, sentralt i Vestby
- Helhetlig oppusset og modernisert i 2023
- Nye gulv og fornyede veggflater i de fleste rom
- Stilfullt, praktisk IKEA-kjøkken fra 2023 med integrerte hitevarer
- Bad med gulvvarme, pusset opp og modernisert i 2023
- Bod tatt i bruk som vaskerom uten godkjent bruksendring
- Vestvendt terrasse med ettermiddags- og kveldssol
- Inngangsparti med morgen- og formiddagssol
- Trinnfri og enkel adkomst
- Fast garasjeplass, biloppstillingsmulighet også på felles område
- Omfangsrike tur- og rekreasjonsområder i umiddelbar nærhet
- Praktisk nærhet til skoler og alle sentrums tilbud
- 10 min. gange/5 min. med sykkel til toget - 24 min. videre til Oslo S
Område
Legg til steder som er viktige for deg
Megler

Dina Dahl
Eiendomsmegler
På flyttefot? Tenk kjøp og salg samtidig.
Få din egen rådgiver gjennom hele kjøps- og salgsprosessen. Det starter med en verdivurdering.
Unngå doble boligrenter
Vi tilbyr gunstig forsikring.
Vurderer du utleie?
Få et tilbud fra Utleie KrogsveenHva koster lånet?
Sjekk estimert lånekostnadVil du varsles om lignende boliger?
Ved å lagre ditt boligsøk hos oss får du beskjed når vi har en bolig som ligner denne, før den legges ut på markedet!
På flyttefot? Slik gjør vi det enklere for deg
Skreddersydd flyttepakke
Vi fikser håndverkere, vask, pakking, lagring og transport, og legger ut for utgiftene underveis.
Hjelp med både kjøp og salg
Hos oss har du din egen rådgiver gjennom hele kjøps- og salgsprosessen.
Hjelp til finansiering
Vårt samarbeid med BN Bank sikrer deg rask og løsningsorientert hjelp, til konkurransedyktige betingelser.
