Syd-Fossum 19
11 390 000 kr
175 m²
3 soverom
Komplett salgsoppgave

Eiksmarka/ Fossum
Familieidyll ved marka|Stort enderekkehus med solrik hage| Tre uteplasser| Garasjeplass m/lader| Peis.
Prisantydning
11 390 000 krOmkostninger
305 740 krTotalpris
11 695 740 kr
Pris
Bruksareal
191 m²BRA-I (internt bruksareal)
175 m²BRA-E (eksternt bruksareal)
16 m²TBA (terrasse-balkongareal)
33 m²
Areal
Byggeår
1982Soverom
3 soveromBad
2 badTomteareal
343 m² (eiet)Type
RekkehusEierform
EietFasiliteter
Garasje/P-plass og Balkong/TerrasseFellesutgifter
1 253,42 krEnergimerke
Gul D
Nøkkelinfo
Unngå doble boligrenter
Vi tilbyr gunstig forsikring.
Vurderer du utleie?
Få et tilbud fra Utleie KrogsveenHva koster lånet?
Sjekk estimert lånekostnadBeskrivelse
Kort om eiendommen
Velkommen til Syd-Fossum 19!
Her bor du i et enderekkehus over to plan, i et barnevennlig og rolig område med marka rett utenfor døren. Boligen har en praktisk og familievennlig planløsning og inneholder bl.a.:
To stuer, tre soverom, bad, separat WC, vaskerom, store boder og lagringsloft. Huset har flere uteplasser og en flott hage. Hagen ligger vendt mot sørvest som sikrer gode solforhold.
Høydepunkter:
- Tre soverom og to stuer
- Pent bad, separat WC og vaskerom
- Peisovn i hver etasje og varmepumpe
- Solrik veranda med utsikt over nærområdet
- Tre innvendige boder, lagringsloft og garasje m/lader
- Ca. 100 meter til kollektivt, barnehage, fotballbane/isbane og akebakke.
Innhold og byggemåte
Innhold og byggemåte
Eiendommen
Syd-Fossum 19, 1359 EIKSMARKA
Kommunenummer 3201, gårdsnummer 31, bruksnummer 28, ideell andel 1/1
Kommunenummer 3201, gårdsnummer 31, bruksnummer 41, ideell andel 1/20
Innhold
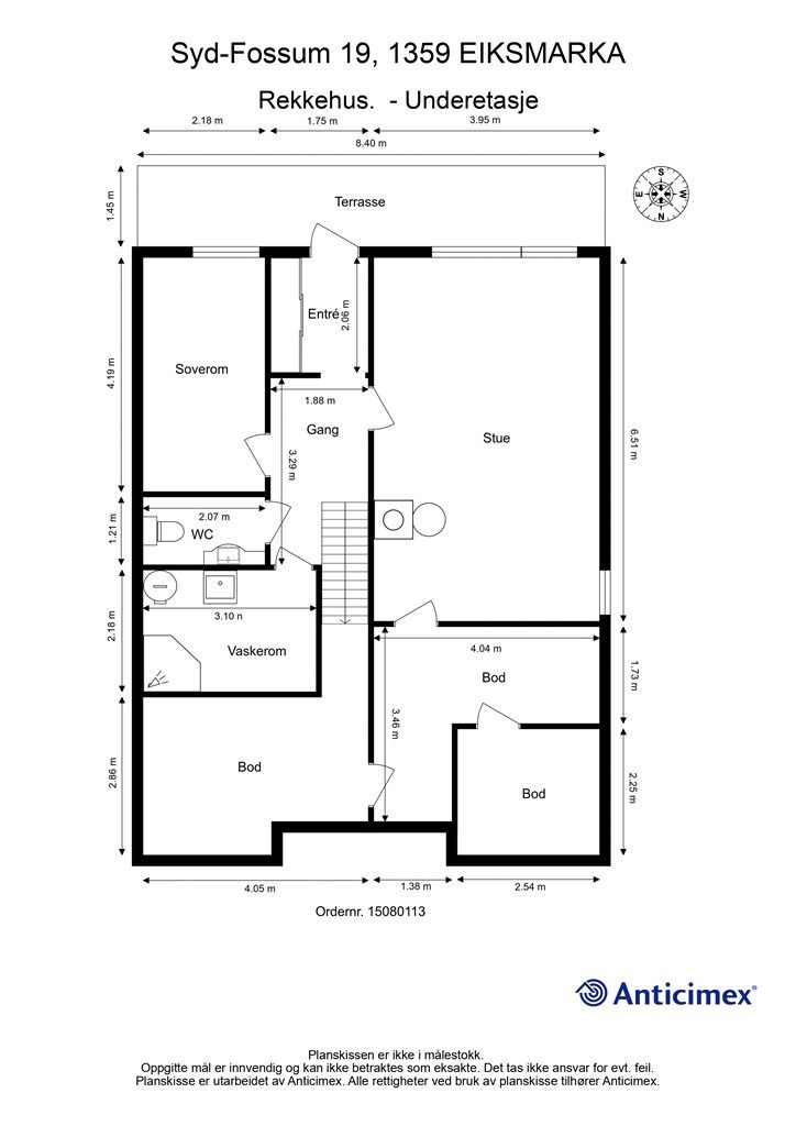
Totalt bruksareal BRA: 191 kvm
BRA-i:
Underetasje 86 kvm: Entré, gang, vaskerom, toalettrom, soverom, tre innvendige boder og stue.
1. etasje 89 kvm: Bad, to soverom, spisestue, stue og kjøkken.
BRA-e:
Garasjerekke 16 kvm: Garasje.
Terrasse- og balkongareal (TBA):
Underetasje 12 kvm: Terrasse.
1. etasje 21 kvm: Veranda og terrasse.
Arealet på kaldtloft er målt til 28 m² (ALH), men grunnet lav takhøyde er ingen deler av arealet måleverdig som bruksareal.
Vedlagte plantegninger er ikke målbare. De oppgitte arealer er hentet fra rapport med befaringsdato 06.03.2026 utført av Anticimex AS v/Henrik Landberg.
Byggemåte
Tilstandsrapporten er inntatt i salgsoppgaven. Rapporten inneholder informasjon om eventuelle avvik og konsekvensen av disse. Dersom det er registrert avvik med TG3, har den bygningssakkyndige i tillegg gitt et anslag på hva det vil koste å utbedre disse. Ettersom kjøper regnes å være kjent med forhold som tydelig fremgår av tilstandsrapporten, oppfordres du til å sette deg grundig inn i rapporten i sin helhet.
Bygningen er iht. tilstandsrapport et rekkehus oppført i 1982. Bygningen har grunnmur av betong, støpt gulv mot grunn, yttervegger og etasjeskillere av trekonstruksjoner. Utvendige fasader er kledd med liggende trekledning. Taket er en saltakskonstruksjon i tre, og yttertaket er belagt med takstein fra byggeår med undertak av duk. Loftet er et uinnredet kaldt loft. Boligen har vinduer med karmer og rammer av tre fra 2017 og byggeår. Det er to entrédører med glassfelt og en balkongdør med karm og ramme av tre fra byggeår. Innvendige dører er profilerte.
Det gjøres spesielt oppmerksom på at følgende bygningsdeler er gitt Tilstandsgrad 3 (TG3) — Store eller alvorlige avvik:
Våtrom - Vaskerom
- Vanntett sjikt / membran i gulv og vegger: Eventuell vanntett sjikt på gulv har en alder som erfaringsmessig tilsier at fremtidig funksjon er svært usikker (gjelder for produkter/løsninger etablert før år 2000). Bygningsdelen er skjult, så den faktiske tilstanden/dagens tettefunksjon er ukjent. TG3 er satt i henhold til NS 3600.
Våtrom - Bad
- Tettesjiktets tilslutning til sluk: Det er registrert at våtrommet er oppgradert, men eksisterende sluk er ikke skiftet ut og vurderes å være fra byggeår. Videre er det observert at ny membran ikke er ført ned og tilkoblet sluket med klemring. Løsningen avviker fra anbefalt utførelse for våtrom, hvor membran skal føres ned og klemmes til sluk for å sikre en tett overgang.
Følgende bygningsdeler er gitt Tilstandsgrad 2 (TG2) — Avvik som kan kreve tiltak:
Våtrom - Vaskerom
- Tettesjiktets tilslutning til sluk: Overgang mellom sluk og vanntett sjikt er uoversiktlig.
- Vannrør: Vannrør av kobber (og tilhørende komponenter) har en alder som tilsier at fremtidig funksjon er usikker. Bygningsdelen er skjult, så den faktiske tilstanden er ukjent.
- Avløp (inkl. sluk): Avløpsrør har en alder som tilsier at fremtidig funksjon er usikker. Bygningsdelen er skjult, så den faktiske tilstanden er ukjent.
- Utført kontroll i tilliggende konstruksjon: Det er foretatt hulltaking og utført fuktmåling med egnet instrument i veggkonstruksjon fra tilstøtende rom. Målingen gir kun et øyeblikksbilde og kan endre seg f.eks. med årstider, fukt- og temperaturforhold. Relativ fuktighet ble målt til 48 prosent, ved 20 celsius med duggpunkt på 9 celsius. Det ble ikke registrert forhøyet fuktnivå. Det er påvist feil bruk av dampsperre i konstruksjonen, som f.eks. kan hindre uttørking og som ikke tyder på faglig god utførelse. Undersøkelsene gir kun et begrenset bilde av forholdet i umiddelbar nærhet til hullet. Omfanget er derfor ikke fullt ut kartlagt.
Våtrom - Bad
- Vannrør: Vannrør av kobber (og tilhørende komponenter) har en alder som tilsier at fremtidig funksjon er usikker. Bygningsdelen er skjult, så den faktiske tilstanden er ukjent.
- Avløp (inkl. sluk): Avløpsrør har en alder som tilsier at fremtidig funksjon er usikker. Bygningsdelen er skjult, så den faktiske tilstanden er ukjent.
Kjøkken
- Overflate gulv: Det er registrert knirk i større deler av gulvet. Eksakt årsak er ukjent, men dette kan tyde på underliggende forhold som ikke lar seg fastslå ved visuell inspeksjon alene.
- Vannrør: Vannrør av kobber (og tilhørende komponenter) har en alder som tilsier at fremtidig funksjon er usikker. Bygningsdelen er skjult, så den faktiske tilstanden er ukjent.
- Avløpsrør: Avløpsrør (og tilhørende komponenter) har en alder som tilsier at fremtidig funksjon er usikker. Bygningsdelen er skjult, så den faktiske tilstanden er ukjent.
Toalettrom
- Vannrør: Vannrør av kobber (og tilhørende komponenter) har en alder som tilsier at fremtidig funksjon er usikker. Bygningsdelen er skjult, så den faktiske tilstanden er ukjent.
- Avløpsrør: Avløpsrør (og tilhørende komponenter) har en alder som tilsier at fremtidig funksjon er usikker. Bygningsdelen er skjult, så den faktiske tilstanden er ukjent.
Tekniske anlegg
- Vannrør (utover det som nevnes under andre sjekkpunkter): Boligens vannrør av kobber (og tilhørende komponenter) har en alder som tilsier at fremtidig funksjon er usikker. Bygningsdelen er skjult, så den faktiske tilstanden er ukjent.
- Fordelerskap og fordelerstammer: Koblinger for vannrør har ikke avrenning til rom med sluk, eller tilsvarende sikring mot fuktskader.
- Innvendig stoppekran: Innvendig stoppekran er ikke funksjonstestet grunnet komponentens høye alder og lignende symptomer.
- Avløprør (utover det som nevnes under andre sjekkpunkter): Boligens avløpsrør (og tilhørende komponenter) har en alder som tilsier at fremtidig funksjon er usikker. Bygningsdelen er skjult, så den faktiske tilstanden er ukjent.
- Varmtvannsbereder: På bakgrunn av berederens alder vurderes det at fremtidig funksjon er usikker. Det er observert oppbygging av kalk/saltutslag (symptomer på mindre lekkasjer) fra rør tilkoblet berederen.
- Mekaniske ventilasjonsanlegg (utover det som nevnes under andre sjekkpunkter): Mekanisk ventilasjonsanlegg og tilknyttet utstyr har en alder som tilsier at fremtidig funksjon er usikker.
Andre rom
- Overflate gulv: Synlige deler av gulvets overflatemateriale bærer preg av slitasje. Forholdet vurderes i hovedsak til å være av estetisk betydning, uten nevneverdige konsekvenser utover dette. Det er registrert knirk i større deler av gulvet. Eksakt årsak er ukjent, men dette kan tyde på underliggende forhold som ikke lar seg fastslå ved visuell inspeksjon alene.
- Innerdører: Dørbladet på soverom 1 kommer i kontakt med karmen slik at døren ikke kan åpnes og lukkes som normalt.
Rom under terreng
- Overflate gulv: Synlige deler av gulvets overflatemateriale bærer preg av slitasje med enkelte riper og hakk. Forholdet vurderes i hovedsak til å være av estetisk betydning, men riper og hakk av en viss dybde kan gjøre at fuktighet som for eksempel fra rengjøring forårsaker misfarging eller lignende konsekvenser.
- Kontroll i lukkede konstruksjoner: Det er foretatt hulltaking og utført fuktmåling i utlektet veggkonstruksjon. Målingen gir kun et øyeblikksbilde og kan eksempelvis endre seg med årstider, fukt- og temperaturforhold. Relativ luftfuktighet ble målt til 51 prosent, ved 19 celsius med duggpunkt på 9 celsius. Dette måleresultatet tilsier at det ikke ble registrert forhøyet fuktnivå. Det er observert dampsperre i veggkonstruksjonen, en løsning som erfaringsmessig gir økt risiko for fuktproblemer siden dette sperresjiktet reduserer konstruksjonens evne til uttørking. Undersøkelsene gir kun et begrenset bilde av forholdene i umiddelbar nærhet til hullet, noe som betyr at det helhetlige tilstandsbilde av konstruksjonen ikke er kartlagt. Det er ikke kjent om fuktnivået har ført til skjulte fuktskader i konstruksjonen.
Loft - uinnredet / kaldt loft
- Inspeksjonsmulighet: Kaldtloftet har stedvis lav takhøyde og deler av gulvet mangler gangbart gulv. Bygningsdelen er inspisert etter beste evne, men deler av kaldtloftet lot seg ikke undersøke grunnet denne begrensningen (mangler stedvis gangbart gulv).
- Synlige overflater (taktro, vegger, gulv, o.l): Misfarging observeres stedvis ved mekaniskventilasjonsanlegg, noe som tyder på negativ påvirkning av fukt. Det ble likevel ikke målt høye fuktnivåer i berørte materialer i området (stikkprøveprinsippet er benyttet). Fuktinnholdet i treverket ble målt med piggelektroder til 15 vektprosent, som er under grensen for kritisk fuktinnhold (på materialer plassert i et åpent rom ligger denne grensen rundt 20 vektprosent).
- Skadedyr og fuktkrevende insekter: Huseier opplyser om observasjon av én mus på loft i 2025. Nøyaktig hvor eller hvordan gnagere kommer seg inn i bygningen, har ikke latt seg påvise.
1. Etasje
- Etasjeskiller og gulv på grunn (skjevhetsmåling): På stue er det på tilfeldige punkter målt lokale høydeforskjeller opptil 16 mm. På soverom er det på tilfeldige punkter målt lokale høydeforskjeller opptil 14 mm. Stikkprøvene som er utført har avdekket stedvise vesentlige skjevheter. Eksakt årsak er ikke kjent, men det anses som lite sannsynlig at forholdet skyldes strukturelle skader.
Yttervegger inkl. fasader
- Gnagersikring: Ytterkledningen mangler stedvis tilstrekkelig gnagersikring. Sett i sammenheng med at det er registrert tegn på gnagere inne i boligen, vurderes konsekvensen at åpningen bak kledningen kan være en mulig inntrekksvei. Det er ikke kjent om det finnes andre inntrekksveier eller hvilke som faktisk benyttes.
Vinduer og ytterdører
- Vinduer og omramming: Enkelte vinduer viser begynnende tegn til slitasje på overflatebehandling. Det er derimot ikke registrert synlige skader av vesentlig betydning.
Yttertak
- Helhetsvurdering: Vurderingene av yttertaket er kun gjort fra toppen av en stige med den begrensningen dette innebærer. Taktekkingen (med tilhørende beslag) er ikke fysisk undersøkt, og derfor kun vurdert på bakgrunn av bygningsdelens alder, med den begrensning dette innebærer. Taktekkingen har nådd en alder og tilstand der fremtidig funksjon vurderes som usikker. Undertaket (inkluderer sløyfer, lekter, innfestninger og lignende) med tilhørende komponenter har en alder som tilsier at fremtidig funksjon er usikker. Bygningsdelen er skjult, så den faktiske tilstanden er ukjent. Takrenner og nedløp viser begynnende tegn til slitasje og elde. Snøfangerutstyr er ikke etablert. På grunn av oppføringstidspunktet vurderes det at kravet for snøfangerutstyr trolig ikke var gjeldende, men TG2 er valgt siden forholdet kan påvirke sikkerheten. Tilstandsgrad er satt i henhold til NS 3600. Takgjennomføringer med tilhørende tettedetaljer viser begynnende tegn til slitasje. På bakgrunn av begrensningene i inspeksjonsmuligheten av taket, lot ikke skorsteinen seg undersøke. Tilstand og utførelse er derfor ukjent, og forholdet bør derfor undersøkes nærmere.
Balkonger - Veranda
- Tilstand på rekkverk og overflatematerialer: Overflatematerialer på balkongen viser tegn til slitasje.
Terrasse / platting (4m2)
- Konstruksjon og fundamenter: Enkelte søyler til terrassen har liten avstand til terrenget.
Drenering
- Helhetsvurdering: Drenering har en alder som tilsier at fremtidig funksjon er usikker. Stedvis lite terrengfall vekk fra grunnmuren. Det kan ikke verifiseres at grunnmuren har utvendig fuktsperre.
Stikkledninger og tanker
- Utvendige vannledninger: Utvendige vannledninger har en alder som tilsier at fremtidig funksjon er usikker. Bygningsdelen er skjult, så den faktiske tilstanden er ukjent.
- Utvendige avløpsledninger: Utvendige avløpsrør har en alder som tilsier at fremtidig funksjon er usikker. Bygningsdelen er skjult, så den faktiske tilstanden er ukjent.
Følgende bygningsdeler er ikke undersøkt (TGIU):
Terrasse / platting (12m2)
- Konstruksjon og fundamenter: Fundamentene var ikke tilgjengelige for undersøkelser grunnet konstruksjonen er bygd inn, noe som gjorde at utførelsen/tilstanden ikke lot seg kontrollere.
Grunnmur, fundament
- Grunnmur og fundament: Grunnmuren er ikke tilgjengelig for undersøkelser på grunn av at overflatene er dekket av utvendig platekledning.
Helse, miljø og sikkerhet
Balkonger - Veranda - Rekkverkshøyde og lysåpninger: Rekkverkshøyder, lysåpninger og andre sikkerhetsmessige forhold er kontrollert opp mot dagens gjeldende byggtekniske forskrift, selv om denne ikke har tilbakevirkende kraft. Det registreres følgende: Rekkverkshøyden er under 1,0 meter. Basert på ovennevnte forhold oppfyller ikke balkongen dagens krav til sikkerhet. Om balkongen oppfylte kravene som var gjeldende på oppføringstidspunktet eller ikke, er ikke tatt stilling til.
Terrasse / platting (4m2) - Rekkverkshøyde og lysåpninger: Rekkverkshøyder, lysåpninger og andre sikkerhetsmessige forhold er kontrollert opp mot dagens gjeldende byggtekniske forskrift, selv om denne ikke har tilbakevirkende kraft. Det registreres følgende: Rekkverkshøyden er under 1,0 meter. Basert på ovennevnte forhold oppfyller ikke rekkverket dagens krav til sikkerhet. Om rekkverket oppfylte kravene som var gjeldende på oppføringstidspunktet eller ikke, er ikke tatt stilling til.
Se vedlagt tilstandsrapport for supplerende informasjon vedrørende boligens tilstand.
Moderniseringer og påkostninger
Følgende moderniseringer er foretatt de senere år:
2025:
- Installert varmepumpe i stue i underetasje.
- Utbedring av avvik i el-anlegg (sikringsskap, stue, terrasse). Faktura foreligger.
2024:
- Byttet råtne bord på husveggen.
2023:
- Oppgradert våtrom (bad) av Tyszlak servicearbeid.
2022:
- Byttet fra skrusikringer til automatsikringer.
2020:
- Montert dusjkabinett på vaskerom av Bademiljø Jar-Tek Rør AS.
- Kledd inn pipe med beslag av Gunvaldsen & sønn.
2017:
- Skiftet to stuevinduer av Okside.
2010:
- Byttet viftemotor på loft.
ca. 2005:
- Nye fliser og innredning på vaskerom.
- Utbedring av vannskade på vaskeromstak.
1996:
- Sikringsskap flyttet til kjeller i forbindelse med kjøkkenutvidelse.
Standard
Boligen er et rekkehus oppført i 1982 med grunnmur av betong, støpt gulv mot grunn, yttervegger og etasjeskillere av trekonstruksjoner, og et saltak i trekonstruksjon belagt med takstein. Dreneringen er fra byggeår, og det kan ikke verifiseres at grunnmuren har utvendig fuktsperre. Yttertaket er belagt med takstein fra byggeår, med undertak av duk. Vinduer med karmer og ramme av tre er fra 2017 og byggeår. Varmtvannsberederen på 198L er fra 2006. Boligens vann- og avløpsrør av kobber og plast har en alder som tilsier at fremtidig funksjon er usikker. Det er observert misfarging stedvis ved mekanisk ventilasjonsanlegg på kaldloftet, noe som tyder på fukt. Huseier har observert mus på loftet i 2025 og i garasjene. Ytterkledningen mangler stedvis tilstrekkelig gnagersikring. En utvidet kontroll av det elektriske anlegget anbefales, da det mangler samsvarserklæring for arbeider utført etter 1999, og ufaglærte har byttet sikringer i 2022. Rekkverkshøyden på verandaen og terrassen er under 1,0 meter, og oppfyller ikke dagens krav til sikkerhet.
KJØKKEN:
Kjøkkenet har innredning fra 2006 med profilerte fronter og benkeplate av tre. Det er utstyrt med kjøkkenvask med armatur, integrert stekeovn, platetopp, oppvaskmaskin og fryser under benkeplate, samt et frittstående kjøleskap og vegghengt ventilator. En fuktsensor er montert under kjøkkenet. Gulvet har knirk i større deler, og vannrør og avløpsrør har en alder som tilsier usikker fremtidig funksjon.
BAD 1. ETASJE:
Baderommet fikk overflatene oppgradert i 2023. Innredningen består av vegghengt servantinnredning, speil med lys, vegghengt baderomsmøbel, dusjhjørne med dører og vegghengt toalett. Mekanisk avtrekk er installert i himlingen. Eksisterende sluk er ikke skiftet ut, og ny membran er ikke ført ned og tilkoblet sluket med klemring, noe som medfører økt risiko for lekkasjer. Vannrør og avløpsrør har en alder som tilsier usikker fremtidig funksjon.
TOALETTROM UNDERETASJE:
Toalettrommet er innredet med vegghengt servantinnredning og gulvstående toalett. Mekanisk avtrekk er installert på vegg. Vannrør og avløpsrør har en alder som tilsier usikker fremtidig funksjon.
VASKEROM UNDERETASJE:
Vaskerommet, som er fra byggeår, er utstyrt med vegghengt utslagsvask med armatur, dusjkabinett med dusjarmatur og opplegg for vaskemaskin. Varmtvannsbereder er plassert i hjørnet. Eventuell vanntett sjikt på gulv har en alder som tilsier svært usikker fremtidig funksjon. Overgang mellom sluk og vanntett sjikt er uoversiktlig. Vannrør og avløpsrør har en alder som tilsier usikker fremtidig funksjon. Det er påvist feil bruk av dampsperre i konstruksjonen i tilstøtende rom.
Overflater:
Gulvoverflater: Heltre, parkett, gulvbelegg og fliser. Vegger: Tapetserte flater og malt panel. Himling: Takplater og panelbord.
Lagring:
Eiendommen har tre innvendige boder i underetasjen, hvorav én inneholder sentralstøvsuger og én huser sikringsskapet. I tillegg disponeres en garasjeplass på ca. 16 m² med utvendig adkomst.
For fullstendig teknisk informasjon om boligen, se punktet Byggemåte i salgsoppgaven.
Løsøre og tilbehør
Vi viser til liste fra Norges Eiendomsmeglerforbund som gjelder fra 01.01.2020 angående løsøre og tilbehør.
Medfølger salget:
- Oppvaskmaskin, fryser, koketopp, stekeovn og mikrobølgeovn.
- Frittstående kjøleskap
Medfølger ikke:
Speil i gangene og i stuen medfølger ikke.
Skap rundt vaskemaskinen medfølger ikke.
To stk vitrineskap i stuen medfølger ikke.
Smalt glasskap ved inngangen til kjøkkenet medfølger ikke.
Tre stk lampetter rundt sofaen og lampe over spisebordet medfølger ikke.
Løs hylle i boden (svart metal) medfølger ikke.
Hyllen ved peisen i kjellerstuen medfølger ikke.
Fryseskapet i innerste bod medfølger.
Oppvarming
Boligen varmes opp med elektrisitet via panelovner. Det er gulvvarme/varmekabler på våtrom. Ildsted er plassert i underetasje og 1. etasje, med en peisovn i stuen. En varmepumpe er plassert i stue i underetasje, montert i 2025. Varmekabler på vaskerom og soverommet i u.etg.
Ferdigattest/brukstillatelse
Det er utstedt ferdigattest for 4-mannsbolig datert 09.05.1983. Denne kan fås ved henvendelse til megler.
Boligen disponerer en garasjeplass i en garasjerekke. Det er ikke funnet en egen byggesak for garasjen i kommunens arkiver.
Det er endinger fra godkjente byggetegninger.
- Soverom 2 nærmest stuen var opprinnelig en del av stuen, mens et soverom som opprinnelig var i stuen er fjernet. Det var opprinnelig vindfang i deler av dagens kjøkken.
- Stuen i underetasjen er opprinnelig byggemeldt som hobbyrom/sport og er ikke godkjent til varig opphold. Innredning av rommene til bruk for varig opphold er ikke bruksendret/omsøkt og er heller ikke godkjent av kommunen. Konsekvensen ved søknad kan være at rommet ikke godkjennes som varig opphold og at rommet da må brukes som bod/midlertidig oppbevaring.
Kjøper overtar alt ansvar, kostnad og risiko for dette videre.
Tinglyste heftelser og rettigheter
Eiendommen overdras fri for pengeheftelser.
Kommunen har legalpant i eiendommen for forfalte krav på eiendomsskatt og kommunale avgifter/gebyrer.
Heftelser på gnr. 31, bnr. 28:
1981/16860-1/100 07.08.1981 BEST. OM VANN/KLOAKKLEDN.
Kan ikke slettes uten samtykke fra kommunen
Denne erklæringen forplikter nåværende og fremtidige eiere til å følge Bærum kommunes vannforsynings- og kloakkreglement. Erklæringen kan ikke avlyses uten samtykke fra Bærum Vann- og kloakkvesen. Eier er ansvarlig for anleggs- og vedlikeholdsutgifter for private sanitæranlegg, samt betaling av vann- og kloakkavgifter. Kommunen har rett til å besiktige anlegg, kreve utbedringer og stenge vanntilførselen ved overtredelser.
1981/28437-2/100 30.12.1981 ERKLÆRING/AVTALE
PLIKTIG MEDLEMSKAP I HUSEIERFORENING M.V.
Skjøtet inneholder betingelser som gir Løvenskiold-Vækerø A/S forkjøpsrett i syv år (Forkjøpsrett utløpt) fra innflytting ved salg til andre enn nær familie, for å sikre bolig for ansatte. Det er også en tilbakeføringsplikt dersom kjøper slutter i selskapet innen to år. Kjøper plikter å være medlem av huseierforening/vel-forening.
Heftelser på realsameiet gnr. 31, bnr. 41:
Ingen heftelser registrert.
Servituttene vil følge eiendommen. Kjøpers bank vil få prioritet etter ovennevnte heftelser og servitutter.
Eventuell adgang til utleie
Leiligheten kan leies ut såfremt leiligheten har forsvarlige radonverdier. Leietaker må følge sameiets vedtekter og ordensregler på lik linje som eier.
Diverse
Eiendommen er tilknyttet SYD-FOSSUM SAMEIE.
- Sameiet består av 20 seksjoner.
- Sameiet er forsikret i Gjensidige.
Felleskostnader betales en gang i året og selger opplyser at de betalte kr 15 148,- i mars 2026, men at det er uvisst om dette vil øke i 2026.
Dette inkluderer sameiets årskontingent på kr 5650,- som går til forsikring av garasjer, gatebelysning, snøbrøyting og strøing, og medlemskap i Eikmarka Vel, samt en kollektiv avtale for TV og internett.
Styret har innhentet tilbud på asfaltering av veiene i sameiet, med en estimert kostnad på ca. 16 000 - 25 000 kr per husstand. Saken ble behandlet som en orienteringssak på årsmøtet i mai 2025, og det vil bli innkalt til et ekstraordinært årsmøte på et senere tidspunkt for endelig beslutning. Dette kan medføre en økning i fellesutgiftene eller en engangsinnbetaling.
Klipping av plen utføres med rundgang blant beboerne. Hver enkelt har ansvar for vedlikehold av sin garasje, med unntak av endeveggene som vedlikeholdes av fellesskapet. Sameiet har drift av EL-bil anlegg. Parkering skal kun skje på parkeringsplass eller i garasje. Snørydding på egen tomt må gjøres selv. Beboerene soper opp og fjerner strøgrus fra vinteren på veier og parkeringsplasser. Alle klipper og vedlikeholder egen hage. Fellesområdet nedenfor huset mot fotballbanen er et fellesområder
som klippes på rundgang. Estimert 1-2 ganger i sesongen.
De innvendige bodene og loftet blir ikke ytterligere vasket før overtagelse.
Selger har tegnet abonnement hos Sector Alarm med tilhørende alarmutstyr. Kjøper velger selv hvorvidt det er ønskelig å videreføre dette abonnementet eller ikke.
Det er noe skjolder/fargeforskjeller der det har hengt bilder og under teppet på kjøkken.
Dokumenter for sameiet kan fås ved henvendelse til megler.
Energimerking
Denne boligen er energimerket. På en skala fra A til G, der A er best, har denne boligen oppnådd D (en normalbolig vil gjerne ligge i området C-F). Kopi av energiattest ligger vedlagt i salgsoppgaven eller kan fås ved henvendelse til megler.
Beliggenhet og tomteforhold
Beliggenhet og tomteforhold
Beliggenhet
Velkommen til Syd-Fossum, et område som gir deg det beste fra to verdener. Her bor du med Bærumsmarka som nærmeste nabo, hvor turstier og skiløyper starter praktisk talt rett utenfor døren. Dette er et nabolag for deg som verdsetter frisk luft og naturopplevelser, enten det er en løpetur etter jobb, en skitur i helgene ved Fossum idrettsanlegg, eller rolige søndagsturer med familien.
Nabolaget er veletablert og trygt, med et godt bomiljø for barnefamilier. Flere barnehager, som Barnehagenvår Fossum Grendehus og Grini barnehage, ligger bare noen få minutters gange unna, noe som forenkler hverdagslogistikken. For skolebarna er det gangavstand til Eiksmarka skole, og for de eldre er det kort vei til ungdomsskoler som Østerås og Hosletoppen. Området har en god blanding av rekkehus og grønne fellesarealer som inviterer til lek og naboskap.
Selv om du bor tett på naturen, er det kort vei til alt du trenger i hverdagen. En kort kjøretur tar deg til servicetilbudene på Røa Senter eller Eiksmarka senter, hvor du finner dagligvarebutikker, apotek og vinmonopol. Kollektivtilbudet er også godt, med busstoppet Syd-Fossum i umiddelbar nærhet og Ekraveien T-banestasjon en kort spasertur unna, som gir enkel og effektiv reisevei inn til Oslo sentrum.
Adkomst
Det vil bli skiltet med Krogsveen visningsskilt ved fellesvisninger.
Barnehager, skoler og fritid
Barnehager:
- Barnehagen vår Fossum Grendehus
- Grini barnehage Avd Fossum
- Montessoribhg - Solsikken Knerten
Barneskoler:
- Eiksmarka skole
Ungdomsskoler:
- Østerås skole
- Hosletoppen skole
- Ringstabekk skole
Dersom skole- og barnehagetilbud er av betydning for kjøpet, ber vi om at det rettes en særskilt henvendelse til kommunen/bydelsadministrasjonen for oppdatert informasjon.
Beskrivelse av tomt
Eiertomt på 343,1 kvm. Tomten er opparbeidet med asfalterte veier, plenarealer og diverse beplantning. Eiendommen har en ideell andel på 1/20 i et realsameie (gnr. 31, bnr. 41) som har til formål å ivareta vedlikehold av fellesarealer, garasjeanlegg og andre fellesinnretninger. Oppgitt tomteareal er hentet fra digitalt eiendomskart fra Bærum kommune. Oppgitt/anslått areal kan derfor avvike fra nøyaktig areal. Tomten er ca. 4 meter ut fra husveggen, skråningen ned er et fellesområde. Se tomtekart og beskrivelse i egenerklæring.
Parkering
Boligen disponerer en garasjeplass i garasjerekke på 16 m². Det er ladepunkt i garasjeplassen. Sameiet har drift av EL-bil anlegg.
Vei, vann og avløp
Eiendommen har adkomst via privat vei. Eiendommen er tilknyttet kommunalt ledningsnett via private stikkledninger. Sameiet er ansvarlig for private stikkledninger til bygningen. Det er ikke registrert vannmåler på eiendommen.
Regulerings-og arealplaner
Eiendommen er regulert til konsentrert småhusbebyggelse innenfor felt E5, i reguleringsplan FOSSUM (ID: 1969190), vedtatt 15.09.1980, med tilhørende reguleringsbestemmelser.
Eiendommen omfattes av Kommuneplanens arealdel 2022-2042 (ID: 202101), vedtatt 21.06.2023. Arealbruken er i planen avsatt til boligbebyggelse, nåværende. For konsentrert småhusbebyggelse der reguleringsplanen ikke angir utnyttelse, tillater kommuneplanen en utnyttelse på inntil 20 % bebygd areal (% BYA).
Utsnitt av plan med tilhørende bestemmelser kan fås ved henvendelse til megler.
Økonomi
Økonomi
Eiendommens utgifter
Totale fellesutgifter er kr 1 262,- per måned. Beløpet dekker sameiets årskontingent samt en kollektiv avtale for TV og internett. Årskontingenten dekker blant annet forsikring av garasjer, gatebelysning, snøbrøyting og strøing, og medlemskap i Eikmarka Vel.
Fellesutgiftene er fordelt slik:
Årskontingent: kr 5 650,- pr. år
TV/internett (Canal Digital): kr 9 391,- pr. år
I tillegg til fellesutgiftene blir strøm til garasjene fakturert i henhold til den enkelte husstands forbruk i etterkant av regnskapsperioden.
Styret har innhentet tilbud på asfaltering av veiene i sameiet, med en estimert kostnad på ca. 16 000 - 25 000 kr per husstand. Saken ble behandlet som en orienteringssak på årsmøtet i mai 2025, og det vil bli innkalt til et ekstraordinært årsmøte på et senere tidspunkt for endelig beslutning. Dette kan medføre en økning i fellesutgiftene eller en engangsinnbetaling.
Kommunale utgifter
Kommunale avgifter inkluderer avløp, feiing, renovasjon og vann.
Fakturert beløp i 2025:
- Avløp: kr 5 687,88,-
- Feiing: kr 392,04,-
- Renovasjon: kr 5 384,28,-
- Vann: kr 4 866,60,-
Totalt: kr 16 330,80,-
Årsprognose for 2026 er kr 20 630,59,-.
Det er ikke registrert vannmåler på eiendommen. Gebyrene for vann og avløp beregnes derfor etter areal.
Utgiftene er basert på nåværende eiers forbruk og avtaler.
Formuesverdi
Formuesverdi for 2024 var kr 2 149 912,- ifølge selgers skatteetaten. Beløpet forutsetter at eier bor fast i boligen (primærbolig).
Ved eventuell øvrig bruk av eiendommen (f.eks. fritidsbolig, pendlerbolig, utleieobjekt) var formuesverdien for 2023 kr 8 599 649,-.
Fra 2026 har Stortinget vedtatt en oppdatert modell for beregning av formuesverdi for primærbolig, så avvik kan forekomme.
For mer informasjon se skatteetaten.no
Eiendomsskatt
Det er p.t ikke vedtatt eiendomsskatt for eiendommer i kommunen.
Opplysninger om fellesgjeld
Andel formue er kr 5 952,- pr. 31.03.2025.
Andel fellesgjeld er kr 0,- pr. 31.03.2025.
Det er pr. 31.03.2025 ingen lån registrert på sameiet.
Omkostninger
11 390 000,00 Prisantydning
Omkostninger
284 750,00 Dokumentavgift til staten (2,5% av kjøpesum)
19 900,00 Gjensidige Boligkjøperpakke (valgfri)* (valgfritt)
545,00 Tinglysing panterettsdokument
545,00 Tinglysing skjøte
--------------------------------------------------------
285 840,00 (Omkostninger totalt (uten Gjensidige Boligkjøperpakke (valgfri)))
305 740,00 Omkostninger totalt (med Gjensidige Boligkjøperpakke (valgfri)))
--------------------------------------------------------
11 675 840,00 Totalpris inkl. omkostninger
11 695 740,00 Totalpris inkl. omkostninger (med Gjensidige Boligkjøperpakke (valgfri))
--------------------------------------------------------
Tilbud om lånefinansiering
Megler formidler gjerne kontakt med rådgiver hos vår samarbeidspartner BN Bank. De har konkurransedyktige betingelser samt rask og løsningsorientert behandling av din lånesøknad. Krogsveen mottar et honorar dersom lån opprettes.
Betalingsbetingelser
Kjøpesum inkludert omkostninger, samt pantedokument tilknyttet eventuelt lån, skal være disponibelt hos megler 2 virkedager før overtagelsen.
Annen viktig informasjon
Annen viktig informasjon
Eier
Jan Ivar Sparingen
Overtakelse
Etter nærmere avtale.
Boligselgerforsikring
Selger har i forbindelse med salget tegnet boligselgerforsikring levert av Gjensidige.
Boligselgerforsikringen dekker selgers ansvar etter avhendingsloven begrenset oppad til kr 14 millioner. Dersom kjøper oppdager forhold ved eiendommen som hen mener utgjør en mangel ved eiendommen, vil Gjensidige behandle reklamasjonen på vegne av selger. Forsikringsvilkår kan fås ved henvendelse til megler.
Vedlagt salgsoppgaven følger selgers egenerklæringsskjema og tilstandsrapport. Interessenter må sette seg inn i dokumentene før bud inngis.
Boligkjøperforsikring
Innen kontraktsmøtet må kjøper ta stilling til om det ønskes å bestille Boligkjøperpakken gjennom Gjensidige. I denne gunstige pakken er boligen ferdig forsikret og inkluderer rettshjelpsforsikring, også kalt Boligkjøperforsikring. Rettshjelpsforsikring gir trygghet og tilgang på profesjonell juridisk hjelp dersom det oppdages uventede feil eller mangler det første året etter overtagelse. Forsikringsselskapet behandler i så fall ethvert mangelskrav kjøper måtte ha overfor selger.
Boligkjøperpakken inkluderer bygningsforsikring for hus og hytte, innboforsikring, flytteforsikring og dobbel rentedekning - i situasjoner hvor kjøper ikke får solgt nåværende primærbolig.
Kjøper mottar ingen særskilt faktura for Boligkjøperpakken da kostnaden det første året legges til kjøpesummen for boligen. Det gjøres oppmerksom på Krogsveen mottar et honorar for denne formidlingen.
Produktark for Boligkjøperpakken ligger vedlagt i salgsoppgaven.
Dersom ikke boligkjøperpakke ønskes kan kun rettshjelpsforsikring, også kalt boligkjøperforsikring, tegnes særskilt via megler. Rettshjelpsforsikringen varer i 5 år fra overtagelse og leveres gjennom Gjensidige. Ta kontakt med megler for ytterligere informasjon.
Selskap og privatpersoner som driver med kjøp/salg/utvikling som ledd i egen næringsvirksomhet kan ikke tegne boligkjøperpakke eller rettshjelpsforsikring.
Budgivning
Forbrukerinformasjon om budgivning er vedlagt denne salgsoppgaven og er også på vår hjemmeside Krogsveen.no. Alle bud og budforhøyelser må inngis skriftlig. I tillegg må legitimasjon være fremlagt sammen med signatur fra budgiver.
Vi oppfordrer til å gi bud elektronisk via GI BUD-knappen på eiendommens hjemmeside på Krogsveen.no. Da vil samtlige vilkår bli oppfylt.
Eventuelle forhøyelser eller endringer av budet kan bekreftes pr SMS eller på e-post. Vi oppfordrer alltid til å kontakte megler pr. telefon i tillegg da forsinkelser i SMS og e-post kan forekomme.
For at budene skal kunne bli behandlet og videreformidlet skriftlig til alle involverte parter, må alle bud ha en tilstrekkelig lang akseptfrist, jf. eiendomsmeglingsforskriften § 6-3.
Selger må også skriftlig akseptere budet før aksept kan formidles til budgiver. Akseptfrist bør derfor være på minimum 30 minutter, og budforhøyelser må derfor skje i god tid før fristens utløp.
Bud i forbrukerforhold kan uansett ikke settes med kortere frist enn kl. 12.00 første virkedag etter siste annonserte visning. I tillegg kan ikke budet ha forbehold om at det skal holdes hemmelig ovenfor øvrige interessenter. Megler har iht lov om eiendomsmegling ikke anledning til å videreformidle disse budene, og de vil dermed heller ikke bli journalført.
Etter at eiendommen er solgt vil kjøper og selger få tilsendt budjournal. Øvrige budgivere kan få utlevert kopi av budjournalen i anonymisert form.
Hvitvaskingsreglene
I henhold til lov om hvitvasking og terrorfinansiering har megler plikt til å gjennomføre kontrolltiltak overfor kunder, herunder fullmektiger. Dette innebærer bl.a. å bekrefte kunders og reelle rettighetshaveres identitet på bakgrunn av fremvist gyldig legitimasjon eller på annen godkjent måte, samt å innhente opplysninger om kundeforholdets formål og tilsiktede art.
Dersom slike kundetiltak ikke kan gjennomføres, kan megler ikke etablere kundeforholdet eller utføre transaksjonen.
Hvis kjøper ikke bidrar til gjennomføring av kundekontrollen og dette fører til at transaksjonen blir forsinket eller ikke kan gjennomføres, vil dette ansees som mislighold av avtalen og gi selger rettigheter etter avhendingslova kapittel 5. I tilfeller der selger ikke bidrar til gjennomføring av løpende kundekontroll underveis i oppdraget, er det selger som misligholder sine forpliktelser etter avtalen og gi kjøper rettigheter etter avhendingslovens kapittel 4. Partene er selv ansvarlige for eventuelle kostnader og ansvar dette kan medføre. Eiendomsmegleren eller eiendomsmeglingsforetaket kan ikke holdes ansvarlig for de konsekvenser dette vil kunne få for partene eller andre som har interesser i eiendomshandelen.
Kjøper oppfordres til å innbetale kjøpesummen som ikke kommer fra låneinstitusjon i én samlet innbetaling fra egen konto i norsk bank. Megler har plikt til å melde fra til Økokrim om eiendomshandler som fremstår som mistenkelige. Melding sendes Økokrim uten at partene varsles.
Personopplysningsloven
I henhold til personopplysningsloven gjør vi oppmerksom på at interessenter kan bli registrert for videre oppfølging.
Lovanvendelse
Generelle bestemmelser
Salgsoppgaven er basert på de opplysningene selger har gitt til megler, den bygningssakyndiges tilstandsrapport, samt opplysninger innhentet fra kommunen, Kartverket og andre tilgjengelige kilder. Det er viktig at kjøper setter seg grundig inn i alle salgsdokumentene, herunder salgsoppgave, tilstandsrapport og selgers egenerklæring. Kjøper anses kjent med forhold som er tydelig beskrevet i salgsdokumentene, og slike forhold kan ikke påberopes som mangler. Dette gjelder uavhengig av om kjøper har lest dokumentene. Alle interessenter oppfordres til å undersøke eiendommen nøye, gjerne sammen med fagkyndig før bud inngis. Kjøper som velger å kjøpe usett kan ikke gjøre gjeldende som mangel noe han burde blitt kjent med ved undersøkelsen.
Dersom det er behov for avklaringer, anbefaler vi at interessenter rådfører seg med eiendomsmegler eller egne rådgivere før det legges inn bud.
En bolig som har blitt brukt i en viss tid, har vanligvis blitt utsatt for slitasje og skader kan ha oppstått. Slik bruksslitasje må kjøper regne med, og det kan avdekkes enkelte forhold etter overtakelse som nødvendiggjør utbedringer. Normal slitasje og skader som nødvendiggjør utbedring, er innenfor hva kjøper må forvente og vil ikke utgjøre en mangel.
Kjøper og selgers rettigheter og plikter reguleres av avtalen mellom partene, samt informasjonen som har vært tilgjengelig for kjøperen i forbindelse med handelen. Avtalen utfylles av avhendingsloven, og det gjelder ulike avtalevilkår avhengig av om kjøper er forbrukerkjøper eller ikke. Dette er nærmere beskrevet nedenfor.
På grunn av ulike avtalevilkår kan selger vurdere bud fra en som ikke er forbruker, ulikt fra en forbrukers bud. Dersom kjøper ikke er forbruker, er selger sitt mulige mangelsansvar begrenset fordi eiendommen selges "som den er". Selger kan ikke ta «som den er»- forbehold overfor en forbrukerkjøper. Selv et lavere bud fra en som ikke er forbruker kan foretrekkes fordi begrensningen i mulig mangelsansvar kan ha egenverdi for selger. Selger står fritt til å forkaste eller akseptere ethvert bud, og er for eksempel ikke forpliktet til å akseptere høyeste bud.
Budgiver skal i budskjema avgi egenerklæring om budgiver er forbruker eller næringsdrivende/ person som hovedsakelig handler som ledd i næringsvirksomhet. Budgivere får informasjon dersom andre bud er inngitt av en som ikke er forbruker.
Forbrukerkjøp - definisjon
Med forbrukerkjøp menes kjøp av eiendom når kjøperen er en fysisk person som ikke hovedsakelig handler som ledd i næringsvirksomhet.
Forbruker – avtalevilkår
Eiendommen har en mangel dersom den ikke er i samsvar med kravene som følger av avtalen, eller det foreligger brudd på bestemmelsene i avhendingsloven §§ 3-2 til 3-8. Hvis eiendommen ikke er i samsvar med det kjøperen må kunne forvente ut ifra alder, type og synlig tilstand, kan det være grunnlag for mangelskrav. Det samme gjelder hvis det er holdt tilbake eller gitt uriktige opplysninger om eiendommen. Dette gjelder likevel bare dersom man kan gå ut ifra at det virket inn på avtalen at opplysningen ikke ble gitt eller at mangelskravet ikke blir rettet i tide på en tydelig måte.
Boligen kan ha en mangel etter avhendingsloven § 3-3 andre ledd, dersom det er avvik mellom opplyst og faktisk innvendig areal, forutsatt at avviket er på 2% eller mer og minimum 1 kvm.
Ved beregning av et eventuelt prisavslag eller erstatning må kjøper selv dekke tap/kostnader opptil et beløp på kr 10 000 (egenandel).
Ikke-forbruker (næringsdrivende) – definisjon
Hvis kjøper er en juridisk person, eller en fysisk person som hovedsakelig handler som ledd i næringsvirksomhet, vil kjøpet ikke anses som et forbrukerkjøp.
Ikke-forbruker – avtalevilkår
Eiendommen har en mangel dersom den ikke er i samsvar med kravene som følger av avtalen.
Eiendommen selges «som den er», og selgers ansvar utover det konkret avtalte er da begrenset etter avhendingsloven § 3-9, første ledd andre setning.
Avhendingsloven § 3-3 andre ledd fravikes, og hvorvidt boligens arealsvikt utgjør en mangel vurderes etter avhendingsloven § 3-8.
Informasjon om kjøpers undersøkelsesplikt, herunder oppfordringen om å undersøke eiendommen nøye, gjelder også for kjøpere som ikke anses som forbrukere.
Det forutsettes at hjemmel overføres til kjøper. Hvis kjøper ikke ønsker hjemmelsoverføring av eiendommen, må det tas forbehold om dette i budet.
Meglers vederlag
Meglers vederlag betales av selger og er avtalt til:
Vederlag: 0,65 % av salgssummen inkl. eventuell fellesgjeld. Minimumsprovisjon er kr 60 000,00
Vederlag:
Foto rekkehus kr 5 000,00
Markedsføringspakke kr 25 000,00
Oppgjør kr 8 900,00
Tilrettelegging kr 18 000,00
Visninger pr stk 2.500,- (De to første er inkludert) 3 visning er betalt og videre visninger er inkludert kr 0,00
Utlegg:
Innhenting av offentlig opplysninger Bærum kommune kr 4 426,00
Tinglysing sikring kr 545,00
Andre utgifter:
AX tilstandsrapport rekkehus kr 17 500,00
Boligoptimalisering kr 2 950,00
Boligselgerforsikring Gjensidige Eiet - regnes av prisantydning kr 65 000,00
Opplysninger om oppdraget
Oppdragsnummer 10-0096/26
Eiendomsmegler Krogsveen AS, avd. Bærum
Gml. Ringeriksvei 40, 1357, BEKKESTUA
950 007 613
Oppdragets KR-kode KR10.2696
Dato
Sist oppdatert: 29. april 2026 kl. 13:49
Dokumenter
Dokumenter
PDF – 932 KB
PDF – 171 KB
PDF – 5 MB
PDF – 312 KB
PDF – 29 KB
PDF – 127 KB
PDF – 392 KB
Område
Legg til steder som er viktige for deg
Visning
Det er ingen planlagte visninger. Meld deg på for å avtale en tid som passer.
Lurer du på noe?
Unngå doble boligrenter
Vi tilbyr gunstig forsikring.
Vurderer du utleie?
Få et tilbud fra Utleie KrogsveenHva koster lånet?
Sjekk estimert lånekostnadVil du varsles om lignende boliger?
Ved å lagre ditt boligsøk hos oss får du beskjed når vi har en bolig som ligner denne, før den legges ut på markedet!











































