Åsane Terrasse 5
5 500 000 kr
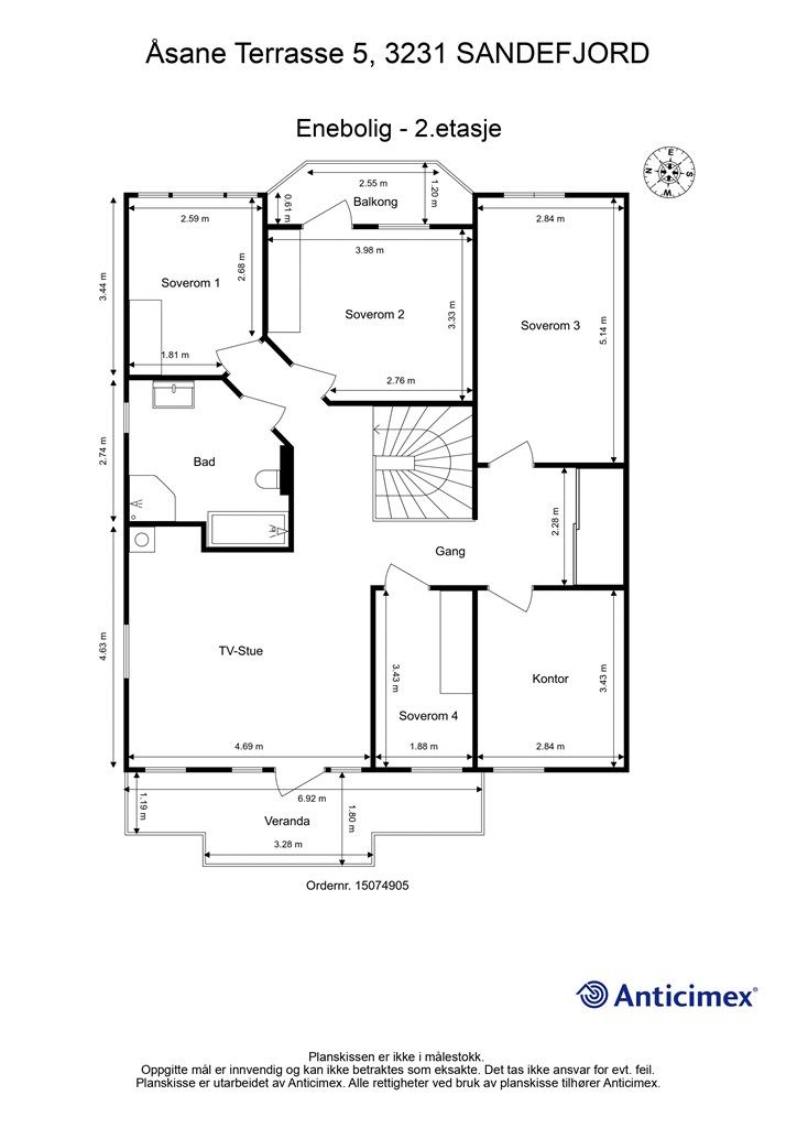
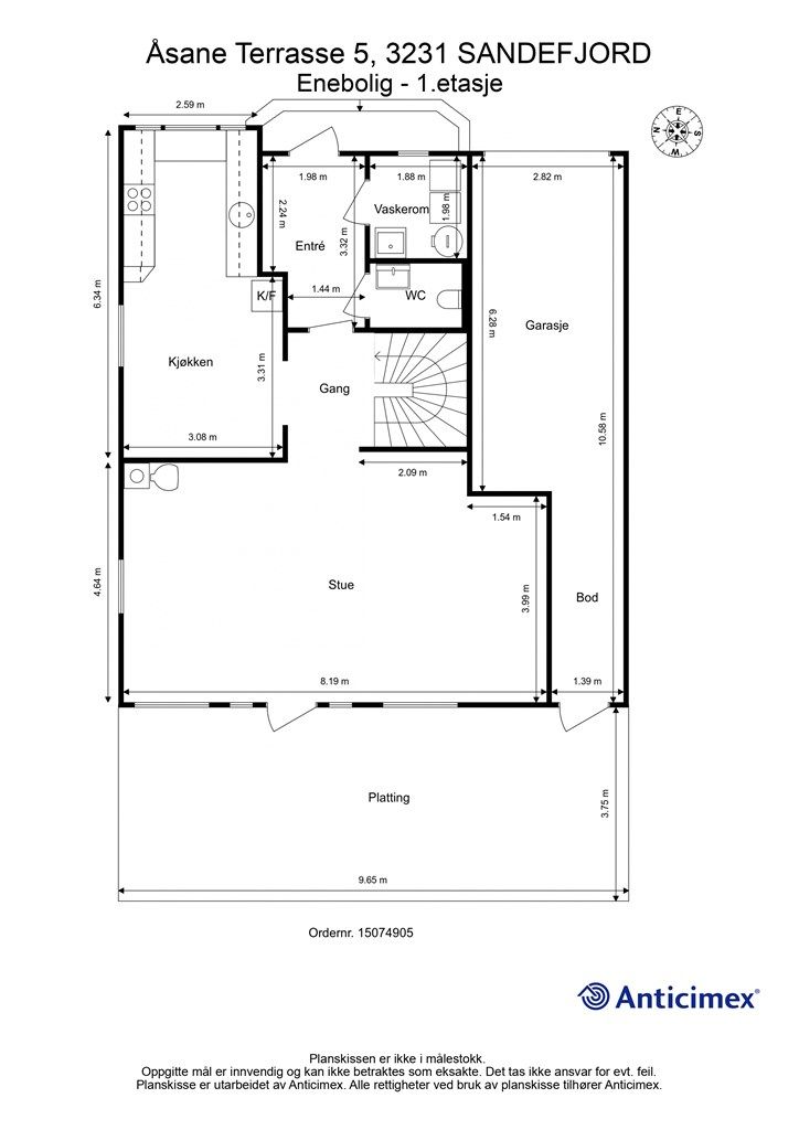
169 m²
4 soverom
Solgt

Åsane
Barnevennlig beliggende enebolig fra 2002 med fantastiske solforhold - Idyllisk utsikt ut over jorde, samt Marumskogen
Prisantydning
5 500 000 krOmkostninger
158 490 krTotalpris
5 658 490 kr
Pris
Bruksareal
194 m²BRA-I (internt bruksareal)
169 m²BRA-E (eksternt bruksareal)
25 m²
Areal
Byggeår
2001Soverom
4 soveromBad
1 badTomteareal
362 m² (eiet)Type
Enebolig - FrittliggendeEierform
EietFasiliteter
Garasje/P-plass og Balkong/TerrasseEnergimerke
Oransje D
Nøkkelinfo
Unngå doble boligrenter
Vi tilbyr gunstig forsikring.
Vurderer du utleie?
Få et tilbud fra Utleie KrogsveenHva koster lånet?
Sjekk estimert lånekostnadBeskrivelse
Kort om eiendommen
Meget populært beliggende enebolig like ved fantastiske Marumskogen. Her starter idylliske turområder like på utsiden av utgangsdøren, og det er kort gangavstand til Meny Åsane samt populære Granholmen badestrand.
Boligen er perfekt tilpasset en aktiv barnefamilie, da det er rikelig med lagringsplass i boligen og flere fine alternativer til både soverom og tv-stuer.
På den romslige terrassen er det plass til hele familien på grilling og sommerhygge, og utearealene kan trygt kalles for solrike (vestvendt) da det er sol til sent på kveld. Fra boligen er det en sjarmerende og idyllisk utsikt ut over jord, samt Marumskogen.
Boligen har aldri vært for salg tidligere, og nåværende eiere har bodd der siden byggeår (23 år).
Praktisk innredet bolig som er godt vedlikeholdt!
Område
Legg til steder som er viktige for deg
På flyttefot? Tenk kjøp og salg samtidig.
Få din egen rådgiver gjennom hele kjøps- og salgsprosessen. Det starter med en verdivurdering.
Unngå doble boligrenter
Vi tilbyr gunstig forsikring.
Vurderer du utleie?
Få et tilbud fra Utleie KrogsveenHva koster lånet?
Sjekk estimert lånekostnadVil du varsles om lignende boliger?
Ved å lagre ditt boligsøk hos oss får du beskjed når vi har en bolig som ligner denne, før den legges ut på markedet!

