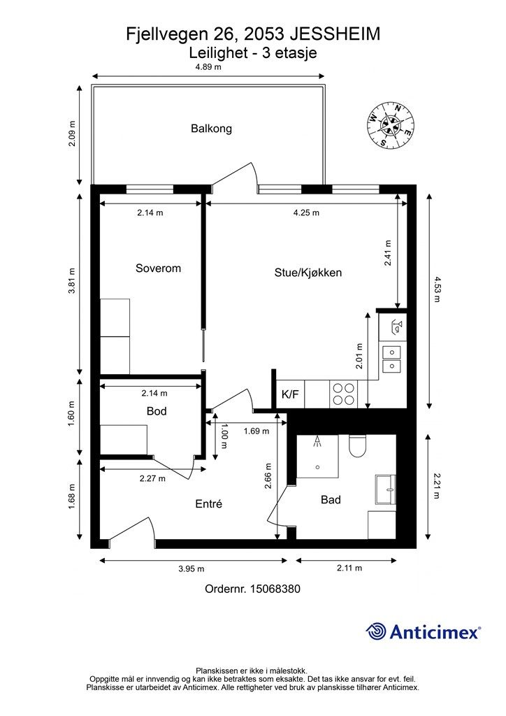
Fjellvegen 26
3 595 000 kr
47 m²
1 soverom
Solgt

Presenteres av
Eirik HermansenJessheim - Skogmo
Lekker 2-roms med garasje og balkong | Sentralt på Jessheim med gangavstand til "alt"! Gode solforhold
Prisantydning
3 595 000 krOmkostninger
100 910 krTotalpris
3 695 910 kr
Pris
Bruksareal
52 m²BRA-I (internt bruksareal)
47 m²BRA-E (eksternt bruksareal)
5 m²TBA (terrasse-balkongareal)
10 m²
Areal
Etasje
3Byggeår
2021Soverom
1 soveromBad
1 badType
EierleilighetEierform
EierseksjonFellesutgifter
1 866 krEnergimerke
Grønn C
Nøkkelinfo
Unngå doble boligrenter
Vi tilbyr gunstig forsikring.
Vurderer du utleie?
Få et tilbud fra Utleie KrogsveenHva koster lånet?
Sjekk estimert lånekostnadBeskrivelse
Kort om eiendommen
Velkommen til Fjellvegen 26!
Tiltalende og nyere 2-roms eierleilighet fra 2021 - her kan du flytte rett inn! Moderne og flott leilighet med meget god planløsning som utnytter plassen godt, samt et flott fargevalg som gir et stilrent uttrykk. Nytt gulv i 2025. Leiligheten har vannbåren gulvvarme, et pent kjøkken fra Sigdal med integrerte hvitevarer, en romslig stue på ca. 19 kvm med takhøyde på 3,04 m og utgang til solrik balkong. God lagringsplass i innvendig bod på ca. 4 kvm, samt i sportsbod på ca. 6 kvm. Det disponeres en p-plass i garasje.
Leiligheten har en sentral beliggenhet på Jessheim, kun noen hundre meter fra sentrum. Her bor du med gangavstand til alt du trenger i hverdagen! Kort vei til buss, tog, butikker, treningssenter, turområder m.m.
Velkommen!
Område
Legg til steder som er viktige for deg
På flyttefot? Tenk kjøp og salg samtidig.
Få din egen rådgiver gjennom hele kjøps- og salgsprosessen. Det starter med en verdivurdering.
Unngå doble boligrenter
Vi tilbyr gunstig forsikring.
Vurderer du utleie?
Få et tilbud fra Utleie KrogsveenHva koster lånet?
Sjekk estimert lånekostnadVil du varsles om lignende boliger?
Ved å lagre ditt boligsøk hos oss får du beskjed når vi har en bolig som ligner denne, før den legges ut på markedet!
På flyttefot? Slik gjør vi det enklere for deg
Skreddersydd flyttepakke
Vi fikser håndverkere, vask, pakking, lagring og transport, og legger ut for utgiftene underveis.
Hjelp med både kjøp og salg
Hos oss har du din egen rådgiver gjennom hele kjøps- og salgsprosessen.
Hjelp til finansiering
Vårt samarbeid med BN Bank sikrer deg rask og løsningsorientert hjelp, til konkurransedyktige betingelser.

