Bråtejordet 35
6 890 000 kr
137 m²
3 soverom
Solgt

Strømmen / Bråtejordet
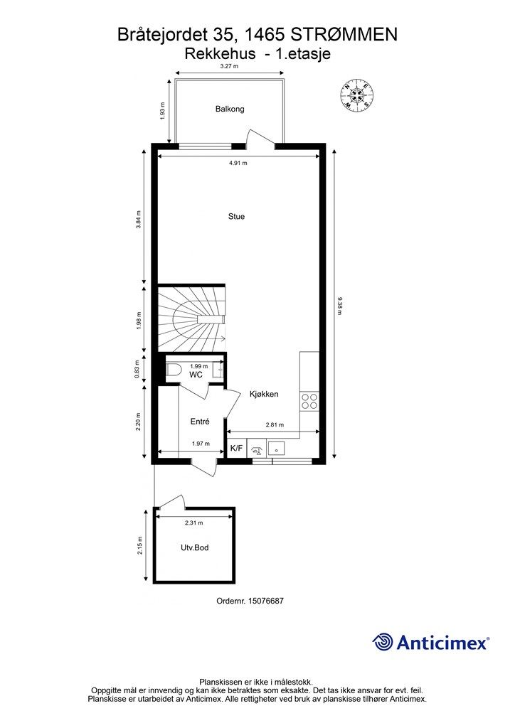
Stort, moderne og familievennlig rekkehus på 137 kvm. 3 plan, god standard, 2 stuer, 2 bad, 3 wc og sentralt. Garasje.
Prisantydning
6 890 000 krOmkostninger
194 040 krTotalpris
7 084 040 kr
Pris
Bruksareal
142 m²BRA-I (internt bruksareal)
137 m²BRA-E (eksternt bruksareal)
5 m²TBA (terrasse-balkongareal)
28 m²
Areal
Etasje
3Byggeår
2018Soverom
3 soveromBad
2 badType
RekkehusEierform
EierseksjonFasiliteter
Garasje/P-plass og Balkong/TerrasseFellesutgifter
3 580 krEnergimerke
Grønn D
Nøkkelinfo
Unngå doble boligrenter
Vi tilbyr gunstig forsikring.
Vurderer du utleie?
Få et tilbud fra Utleie KrogsveenHva koster lånet?
Sjekk estimert lånekostnadBeskrivelse
Kort om eiendommen
Velkommen til Bråtejordet 35!
Dette moderne rekkehuset fra 2018 byr på tre etasjer med gjennomført god standard. Praktisk og familievennlig planløsning med egen kjellerstue gir god plass til alle.
Boligen har to pene bad, ekstra wc og et stilrent Sigdal-kjøkken som blir hjemmets naturlige samlingspunkt. Parkettgulv og vannbåren varme gir både komfort og kvalitet.
Fra boligen er det utgang til store, solrike uteplasser på begge sider, fordelt over flere nivåer.
Boligen disponerer en garasjeplass med elbil lader, og en utendørs biloppstillingsplass.
Her bor du sentralt med kort vei til barnehager, skoler og offentlig kommunikasjon. Gangavstand til Strømmen sentrum med kjøpesenter og togstasjon, samt marka rett ved.
Et perfekt hjem for familien som ønsker å bo med nærhet til det meste
Område
Legg til steder som er viktige for deg
På flyttefot? Tenk kjøp og salg samtidig.
Få din egen rådgiver gjennom hele kjøps- og salgsprosessen. Det starter med en verdivurdering.
Unngå doble boligrenter
Vi tilbyr gunstig forsikring.
Vurderer du utleie?
Få et tilbud fra Utleie KrogsveenHva koster lånet?
Sjekk estimert lånekostnadVil du varsles om lignende boliger?
Ved å lagre ditt boligsøk hos oss får du beskjed når vi har en bolig som ligner denne, før den legges ut på markedet!

