Nellymarka 6
4 800 000 kr
147 m²
4 soverom
Solgt

Hessa syd
Lys og flott 1/2 tomannsbolig beliggende i et populært og barnevennlig område|4 soverom| |3 bad| |Garasje m/Elbillader|
Prisantydning
4 800 000 krOmkostninger
131 040 krTotalpris
4 931 040 kr
Pris
Bruksareal
165 m²BRA-I (internt bruksareal)
147 m²BRA-E (eksternt bruksareal)
18 m²TBA (terrasse-balkongareal)
35 m²
Areal
Etasje
2Byggeår
2013Soverom
4 soveromBad
3 badType
Halvpart vertikaldelt boligEierform
EierseksjonEnergimerke
Gul B
Nøkkelinfo
Unngå doble boligrenter
Vi tilbyr gunstig forsikring.
Vurderer du utleie?
Få et tilbud fra Utleie KrogsveenHva koster lånet?
Sjekk estimert lånekostnadBeskrivelse
Kort om eiendommen
Vertikaldelt tomannsbolig beliggende i et populært og barnevennlig område på Hessa.
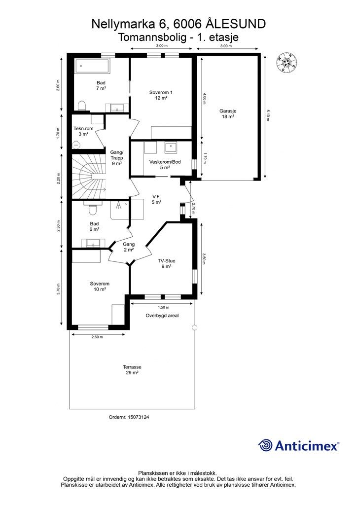
Innhold:
1.etasje:
Entré, teknisk rom, to ganger, to bad og tre soverom
2.etasje:
Trappegang, stue/kjøkken, bad og soverom
Fra boligen er det gangavstand til både Hessa skole, Norlandia barnehage, Slinningen barnehage, Osane idrettshall m.m. Like ved boligen er det også en liten lekeplass. For friluftsinteresserte er det flotte turmuligheter både langs sjøen og på Sukkertoppen, som ligger på midten av øya. I tillegg er Atlanterhavsparken, et av Nord-Europas største saltvannsakvarier, lett tilgjengelig fra området. I nærområdet finner man også dagligvarebutikk og treningssenter i Skarbøvika.
Område
Legg til steder som er viktige for deg
På flyttefot? Tenk kjøp og salg samtidig.
Få din egen rådgiver gjennom hele kjøps- og salgsprosessen. Det starter med en verdivurdering.
Unngå doble boligrenter
Vi tilbyr gunstig forsikring.
Vurderer du utleie?
Få et tilbud fra Utleie KrogsveenHva koster lånet?
Sjekk estimert lånekostnadVil du varsles om lignende boliger?
Ved å lagre ditt boligsøk hos oss får du beskjed når vi har en bolig som ligner denne, før den legges ut på markedet!

