Alex Olssons vei 28
9 800 000 kr
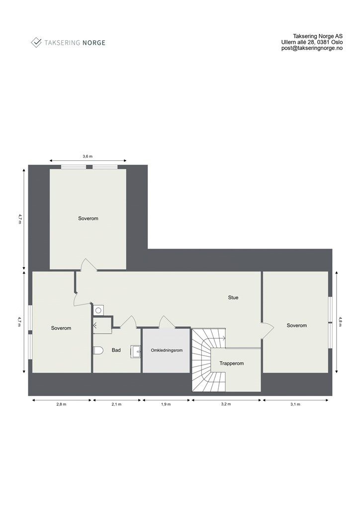
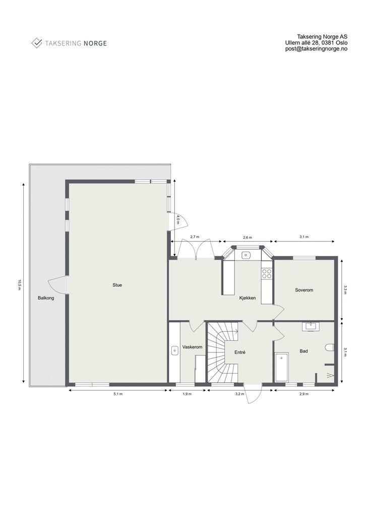
232 m²
5 soverom
Solgt
Hellvik
Lekker, innholdsrik enebolig med stor, skjermet hage, godkjent hybel og isolert garasje – sentralt i populært boområde.
Prisantydning
9 800 000 krOmkostninger
265 990 krTotalpris
10 065 990 kr
Pris
Bruksareal
268 m²BRA-I (internt bruksareal)
232 m²BRA-E (eksternt bruksareal)
36 m²TBA (terrasse-balkongareal)
26 m²
Areal
Byggeår
2003Soverom
5 soveromBad
3 badTomteareal
807 m² (eiet)Type
Enebolig - FrittliggendeEierform
EietFasiliteter
Garasje/P-plass og Balkong/TerrasseEnergimerke
Rød C
Nøkkelinfo
Unngå doble boligrenter
Vi tilbyr gunstig forsikring.
Vurderer du utleie?
Få et tilbud fra Utleie KrogsveenHva koster lånet?
Sjekk estimert lånekostnadDette liker selger best ved boligen
Veldig nærme barneskole, videregående skole, Hellvik strand. Stille område i blindvei, flott opparbeidet uteplass (med intrigert Tv på garasje). Flott på sommeren.
Beskrivelse
Kort om eiendommen
Drømmer dere om god plass, trygg beliggenhet og en hage barna kan boltre seg i?
Denne arkitekttegnede eneboligen har en stor og solrik hage, flere terrasseområder og en meget pent opparbeidet eiendom.
Stor isolert garasje med god lagringsplass i loftetg, godkjent utleiedel med forventet skattefri leieinntekt på ca. kr. 10.000/mnd.
Beliggende i en rolig blindvei med trygt og sosialt nabolag. Kort vei til bl.a marka, badestrender, skoler, barnehager, idrettsanlegg og forretninger.
Enkel tilgang til buss og båt – perfekt for pendling til Lysaker og Aker brygge.
Område
Legg til steder som er viktige for deg
På flyttefot? Tenk kjøp og salg samtidig.
Få din egen rådgiver gjennom hele kjøps- og salgsprosessen. Det starter med en verdivurdering.
Unngå doble boligrenter
Vi tilbyr gunstig forsikring.
Vurderer du utleie?
Få et tilbud fra Utleie KrogsveenHva koster lånet?
Sjekk estimert lånekostnadVil du varsles om lignende boliger?
Ved å lagre ditt boligsøk hos oss får du beskjed når vi har en bolig som ligner denne, før den legges ut på markedet!

















































