Reinert Svendsens gate 44
5 700 000 kr
259 m²
6 soverom
Solgt
Hamar
Innholdsrik, hel tomannsbolig beliggende i etablert område på Dalsløkka.
Prisantydning
5 700 000 krOmkostninger
163 490 krTotalpris
5 863 490 kr
Pris
Bruksareal
301 m²BRA-I (internt bruksareal)
259 m²BRA-E (eksternt bruksareal)
42 m²TBA (terrasse-balkongareal)
26 m²
Areal
Byggeår
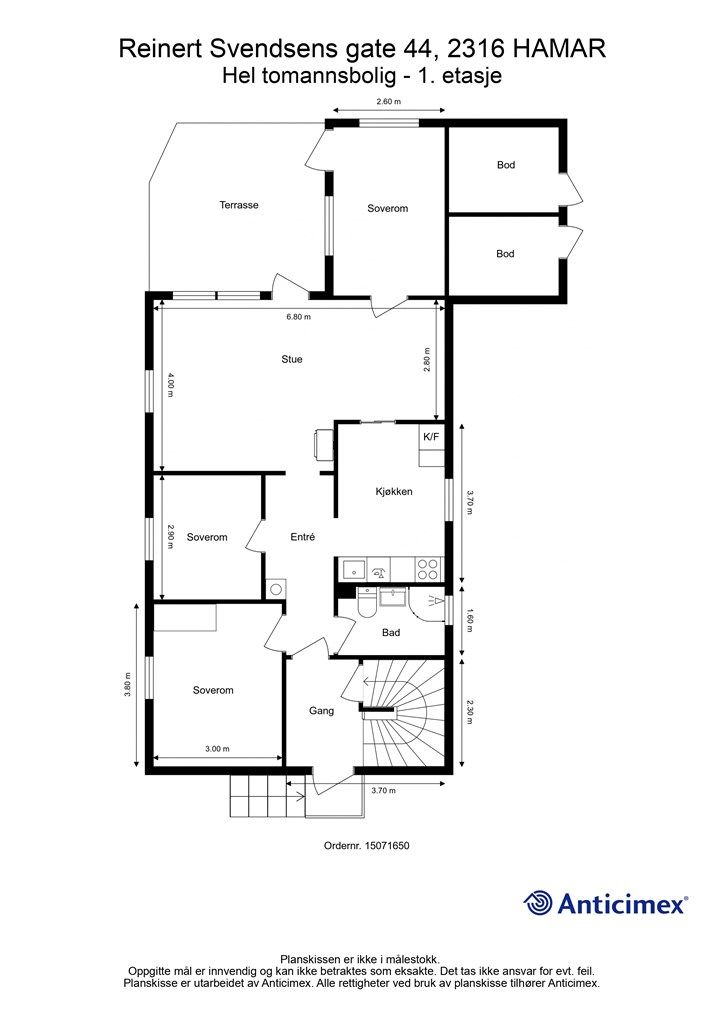
1951Soverom
6 soveromBad
2 badTomteareal
831 m² (eiet)Type
Hel 2-mannsboligEierform
EietFasiliteter
Garasje/P-plass og Balkong/Terrasse
Nøkkelinfo
Unngå doble boligrenter
Vi tilbyr gunstig forsikring.
Vurderer du utleie?
Få et tilbud fra Utleie KrogsveenHva koster lånet?
Sjekk estimert lånekostnadBeskrivelse
Kort om eiendommen
Hel horisontaldelt tomannsbolig med sentral og god beliggenhet på Dalsløkka med kort vei til skoler, barnehager og Maxi med blant annet matbutikk og apotek.
Begge etasjene inneholder 3 soverom, kjøkken, stue og baderom, og begge boenhetene med utgang til uteplass. Kjeller med eget vaskerom og flere boder som gir gode oppbevaringsmuligheter.
Romslig og relativt flat tomt med gode solforhold. Parkering i dobbelgarasje og ellers gode parkeringsforhold på tomten.
Gangavstand til sentrum samt til Domkirkeodden, Furuberget og Ankerskogen med store friarealer. Gang/sykkelveg langs Mjøsa til Brumunddal.
Velkommen til en hyggelig visning.
Område
Legg til steder som er viktige for deg
På flyttefot? Tenk kjøp og salg samtidig.
Få din egen rådgiver gjennom hele kjøps- og salgsprosessen. Det starter med en verdivurdering.
Unngå doble boligrenter
Vi tilbyr gunstig forsikring.
Vurderer du utleie?
Få et tilbud fra Utleie KrogsveenHva koster lånet?
Sjekk estimert lånekostnadVil du varsles om lignende boliger?
Ved å lagre ditt boligsøk hos oss får du beskjed når vi har en bolig som ligner denne, før den legges ut på markedet!




