Pauline Halls vei 57
7 300 000 kr
125 m²
3 soverom
Solgt
KOLBOTN
Familieidyll på Vestre Ingieråsen! Solrik tomannsbolig m/ idyllisk terrasse, 2 bad og garasje. Topp beliggenhet!
Prisantydning
7 300 000 krOmkostninger
183 590 krTotalpris
7 483 590 kr
Pris
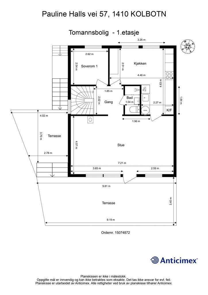
Bruksareal
130 m²BRA-I (internt bruksareal)
125 m²BRA-E (eksternt bruksareal)
5 m²TBA (terrasse-balkongareal)
45 m²
Areal
Etasje
2Byggeår
1982Soverom
3 soveromBad
2 badTomteareal
369 m² (eiet)Type
Halvpart vertikaldelt boligEierform
EietFasiliteter
Garasje/P-plass og Balkong/TerrasseEnergimerke
Oransje F
Nøkkelinfo
Unngå doble boligrenter
Vi tilbyr gunstig forsikring.
Vurderer du utleie?
Få et tilbud fra Utleie KrogsveenHva koster lånet?
Sjekk estimert lånekostnadBeskrivelse
Kort om eiendommen
Velkommen til Pauline Halls vei 57 – en meget innbydende halvpart av tomannsbolig med attraktiv intern beliggenhet på et barnevennlig tun på Vestre Ingieråsen. Her bor du fredelig og skjermet, med grønne omgivelser og lite innsyn. Boligen har en funksjonell rominndeling som gjør hverdagen enkel, og den store terrassen som omkranser huset blir et herlig samlingspunkt for både lek, avslapning og lange sommerkvelder!
Høydepunkter:
• Svært barnevennlig område med kort og trygg vei til barnehage og skole
• Stor platting/uteareal med mange bruksområder
• Kjøkken fra 2020
• 2 bad + vaskerom
• Rolig beliggenhet i idylliske og grønne omgivelser
• Garasjeplass
• Rikelig med oppbevaringsplass i tre boder + loft
En unik mulighet til å sikre seg en av feltets beste beliggenheter!
Område
Legg til steder som er viktige for deg
På flyttefot? Tenk kjøp og salg samtidig.
Få din egen rådgiver gjennom hele kjøps- og salgsprosessen. Det starter med en verdivurdering.
Unngå doble boligrenter
Vi tilbyr gunstig forsikring.
Vurderer du utleie?
Få et tilbud fra Utleie KrogsveenHva koster lånet?
Sjekk estimert lånekostnadVil du varsles om lignende boliger?
Ved å lagre ditt boligsøk hos oss får du beskjed når vi har en bolig som ligner denne, før den legges ut på markedet!




