Nedre Livollkroken 15
6 390 000 kr
126 m²
4 soverom
Komplett salgsoppgave
Farhovd/Livoll/Flotubu
Rålekker kvalitetshytte fra Flatdal Handlaft med panoramautsikt! 2 bad, 2 stuer, 4 soverom - Selveiertomt
Prisantydning
6 390 000 krOmkostninger
180 740 krTotalpris
6 570 740 kr
Pris
Bruksareal
131 m²BRA-I (internt bruksareal)
126 m²BRA-E (eksternt bruksareal)
5 m²
Areal
Byggeår
2015Soverom
4 soveromBad
2 badTomteareal
659 m² (eiet)Type
Fritidseiendom på fjelletEierform
EietEnergimerke
Oransje C
Nøkkelinfo
Vurderer du utleie?
Få et tilbud fra Utleie KrogsveenHva koster lånet?
Sjekk estimert lånekostnadBeskrivelse
Kort om eiendommen
Fantastisk hytte oppført av Flatdal Handlaft i 2015. Kvalitetsbygg med gode materialvalg i alle ledd.
Eiendommen ligger særdeles flott til med panoramautsikt mot blant annet Bossnuten, Uvatn, Vierli og Gaustatoppen. Her ligger du høyt og fritt i terrenget uten hinder for utsikt med gode solforhold på godt etablert uteområde.
Rauland er et eldorado hele året, og byr på ca. 150km med oppkjørte langrennsløyper og alpinanlegg rundt 12 heiser og 26 nedfarter. Så her har du noe for alle uansett ferdighetsgrad. Sommerstid er Uvatn egnet for bading, badstuer og våt/kano-utleie.
Det er montert Easee elbil-lader på hyttevegg.
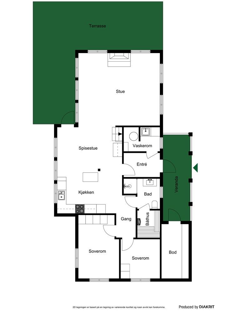
Hytta inneholder:
1. etg: Bad, stue, kjøkken, entré, 2 soverom, vaskerom, badstue og gang
2. etg: Loftstue/gang, 2 soverom og bad
Velkommen til Nedre Livollkroken 15!
Innhold og byggemåte
Innhold og byggemåte
Eiendommen
Nedre Livollkroken 15, 3864 RAULAND
Kommunenummer 4036, gårdsnummer 151, bruksnummer 631, ideell andel 1/1
Innhold
Totalt bruksareal BRA: 131 kvm
BRA-i:
1. etasje 92 kvm: Bad, stue, kjøkken, entré, soverom, soverom 2, vaskerom, badstue, gang
2. etasje 34 kvm: Loftstue/gang, soverom, soverom 2, bad
BRA-e:
1. etasje 5 kvm: Bod
Deler av loft er ikke målbart areal. Areal lav himling og GUA - gulvareal = 12kvm.
Vedlagte plantegninger er ikke målbare. De oppgitte arealer er hentet fra rapport med befaringsdato utført av Anders Molland v/Byggtek Norge AS.
Byggemåte
Selger har fått utarbeidet en tilstandsrapport, dvs. en teknisk gjennomgang av boligen hvor eventuelle avvik, risiko for kjøper og prisoverslag for hva som bør gjøres av oppgradering, er skissert. Se særskilt TGIU (tilstandsgrad ikke undersøkt), samt TG2 og TG3 som viser hva som er boligens normale slitasje, alder og type, hva som er avvik fra dette og hva som bør/må utbedres. Rapporten og selgers egenerklæring er en del av salgsoppgaven og må leses nøye før bud inngis. Kjøper overtar ansvaret for de opplysninger som fremkommer av salgsdokumentasjonen, og kan ikke gjøre gjeldende som mangel noe som burde vært kjent eller som ikke kan anses å ha betydning for avtalen.
Bygningen er iht. tilstandsrapporten oppført i tre/mur/betong. Les for øvrig mer om byggemåte og den tekniske tilstanden i rapporten.
Det gjøres spesielt oppmerksom på:
TG2:
- Veggkonstruksjon: Lite lufting i nedre kant mot grunnmur
- Understøtting takoverbygg ved inngangsparti.
- Bad 2.etg: Manglende spalte inn til dusj/sluk.
- Bad 1.etg: Manglende spalte inn til dusj/sluk. Ikke påvist tilfredsstillende løsning for å synliggjøre lekkasje fra innebygget sisterne.
- Vaskerom: Rommet har ikke vegger med fuktbestandig utførelse innenfor vaskens våtsone. Avvik i fallforhold. Kun naturlig ventilering.
Se supplerende tekst i tilstandsrapporten om det ovennevnte. Kjøper overtar ansvar og risiko for dette.
Standard
Hytta er i sin helhet oppført av kvalitetsleverandøren Flatdal Handlaft, kjent for å være blant de beste i bransjen.
Det er gjennomgående 1-stav eikeparkett på alle gulv, utenom bad, vaskerom og entré som er flislagt. Hele 1. etg har varmekabler i gulv delt opp i flere soner.
Høykvalitetskjøkken fra Kistefos som er godt utstyrt med skuffer, skap og rikelig med benkeplass. Praktisk liten kjøkkenøy gir gode arbeidsforhold for flere personer.
Det er integrerte hvitevarer, som medfølger: Kjøl/frys, stekeovn, induksjonstopp, oppvaskmaskin og ventilator.
Det gjøres oppmerksom på at hvitevarene er kjøpt for noen år tilbake, og kjøper må forvente slitasje som følge alder og normal bruk.
Begge bad er pent flislagt på gulv og vegg. Varmekabler i gulv. Dusjnisje med regnfallsdusj, wc og servantinnredning med skuffer. Bad i 1.etg har også en lekker badstue.
Stuen i første etasje har ekstra høy himling, noe som gir samlingspunktet er luftig og godt rom å oppholde seg i. Det er rikelig med vindusflater som gir flott utsikt og rikelig med naturlig lysinnslipp. Stua har en lekker skiferbelagt peisanordning med peisinnsats.
Praktisk loftstue som gir mulighet for at voksne og barn kan få sine egne avdelte områder.
Løsøre og tilbehør
Vi viser til liste fra Norges Eiendomsmeglerforbund som gjelder fra 01.01.2020 angående løsøre og tilbehør.
Eventuell overtakelse av møbler etter nærmere avtale.
Oppvarming
Varmekabel i gulv hele 1. etg og bad 2. etg. Vedfyring i stue. Diverse panelovner.
Hytta er utstyrt med Sikom fjernstyring (app) for varmestyring.
Ferdigattest/brukstillatelse
Det foreligger ferdigattest på Fritidsbustad - Frittliggende, datert 11.11.2015. Denne kan fås ved henvendelse til megler.
Tinglyste heftelser og rettigheter
På eiendommen er det tinglyst følgende heftelser som følger eiendommens matrikkel ved overskjøting til ny hjemmelshaver:
4036/151/631:
20.04.2006 - Dokumentnr: 1511 - Kjøpekontrakt
Byggjeforbod på nærare fastsett avstand/område
Med flere bestemmelser
Rettshavar: Storhaug DA
Overført fra: Knr:4036 Gnr:151 Bnr:2
Gjelder denne registerenheten med flere
Eventuell adgang til utleie
Fritidseiendommen har ikke separat utleiedel. Det vil normalt være anledning til utleie av hele eiendommen eller enkeltrom, såfremt utleiearealet er bygningsmessig godkjent for varig opphold.
Diverse
Det gjøres oppmerksom på at oppdragsgiver er i familie med en ansatt ved Krogsveens avdeling Tønsberg, men at dette ikke er i strid med egenhandelsreglene i lov om eiendomsmegling.
Beliggenhet og tomteforhold
Beliggenhet og tomteforhold
Beliggenhet
Eiendommen ligger på en av Raulands mest attraktive plasser - Farhovd/Livoll/Flotubu. Hytta ligger særdeles fint til høyt i terrenget med lekker utsikt uten hinder.
Rauland er et eldorado for langrennsentusiasten. Her har man ca. 150 kilometer med preparerte løyper i meget variert terreng. Noen løyper har i tillegg egen skøytetrasé. Løypenettet strekker seg overalt i Rauland og nærmeste løype ligger kun noen få hundre meter fra eiendommen:
- 150 km godt preparerte langrennsløyper i variert terreng
- 60 km preparert med skøytetrasé og eitt klassisk spor
- 90 km preparert med to doble klassiske spor
- 70 km høgfjellsløyper
- 80 kilometer skogsløyper
- 6 km (tur/retur) flombelyst langrennsarena med kunstsnø (lys på til kl. 22.00)
- 8 km lysløype i sentrum
Ønsker du deg en sportslig utfordring i mektig og rik høyfjellsnatur bør du melde deg på det årlige Helterennet.
Rauland er meget familievennlig og har totalt 12 heiser og 26 nedfarter kombinert. Holtardalen har blant annet en 4-seters stolheis, et skitrekk og et skibånd for de aller minste.
Tiur (Skisenteret) har du 2-seters stolheis, t-krok og 4 skitrekk.
Hotellheisen ved Rauland Høgfjellshotell knyttes også til Tiur og Holtardalen med skitrassé.
Vierli er stedet for de aller minste med en liten heis, barnebakke med akemuligheter og mye mye mer. Her kan man leie minikjelker til barn som en del av "Aktiivtetskortet". Det er felles heiskort for alle heiser i hele Rauland. Les mer på www.visitrauland.com
På Vierli kan man også leie minisnøscooter på bane, samt en vinteråpen lekeplass med lekestativ, husker, trampoline og Tarzan-slynge. Vierli Kafeteria tilbyr god mat og er ofte en perfekt avslutning på dagen.
Om sommeren er også Vierli et perfekt sted å være. Her finner du blant annet frisbeegolf, minigolf, stor lekeplass, barnas seter (1. juli-30. august), badstuer og båt/kano-utleie ved Uvatn og mye mer. Det finnes også utallige badestrender og plasser, hvor kanskje Fagersand er den mest populære.
Skal man nyte et måltid, finnes det i tillegg til nevnte Vierli Kafeteria, blant annet: Tiurstoga, Holtarstua, Paviljongen og Austbø Hotell.
Afterski tar man på Heishuset eller Paviljongen. I påsken har de de siste årene blitt satt opp et stort telt ved Tiur(Skisenteret) i måneden før påsken med diverse konserter og arrangementer. Et meget godt og populært tilbud.
Det er 2 matbutikker i Rauland sentrum du kan ordne mathandlingen: Coop Extra og Spar. Spar holder søndagsåpent.
Rauland har kort avstand til de aller fleste steder i den sørlige delen av Norge, som gjør dette området til et av Norges mest populære steder for hytteeiere og skientusiaster.
Avstander (ca):
Haugesund 240 km
Oslo 210 km
Skien 140 km
Kristiansand 240 km
Bergen 275 km
Drammen 165 km
Adkomst
Veibeskrivelse Se Google maps - det er enkelt å finne frem i kartet. Det vil bli skiltet med Krogsveen visningsskilt ved fellesvisninger.
Beskrivelse av tomt
Eiertomt på 659 kvm med meget flott beliggenhet og utsikt.
Parkering
Parkering på egen tomt/gårdsplass. Det er plass til 2-4 biler.
Vei, vann og avløp
Eiendommen har adkomst via privat vei med felles vedlikeholdsansvar.
Eiendommen er tilknyttet kommunalt ledningsnett via private stikkledninger. Eier er selv ansvarlig for private stikkledninger til boligen.
Regulerings-og arealplaner
Eiendommen er regulert til Fritidsbebyggelse - Frittliggende i henhold til reguleringsplan Farhovd, Livoll og Flotebu 151/2, 153/19, 21, 153/20, datert 10.11.2016 med tilhørende reguleringsbestemmelser datert 10.11.2016.
Eiendommen er også en del av kommunedelplan Rukkemo-Torvetjønn og regulert til Fritidsbebyggelse - Nåværende, datert 14.09.2023.
Utsnitt av plan med tilhørende bestemmelser kan fås ved henvendelse til megler.
Økonomi
Økonomi
Kommunale utgifter
Kommunale avgifter er kr 14 987,- for 2025r. I dette inngår gebyr for vann, avløp, renovasjon og feiing/tilsyn.
Brannvesenet er pålagt å føre tilsyn med, og å feie pipeløp i alle fritidseiendommer. Det vil kunne medføre kostnader for kjøper til utbedring av evt. fremtidige pålegg og anmerkninger.
Nåværende eier har et strømforbruk som tilsvarer ca. 9755 kwh pr. år. Hytta er utstyrt med Sikom fjernstyring (app) for varmestyring.
Boligen har en årlig forsikringspremie på kr 5129,-inkl. innboforsikring.
Brøyteavgift er kr 12 925,- pr. år.
I tillegg betales det for trykkøkningsstasjon for området kr 660,- per år.
Boligen er tilknyttet Altibox som leverandør av TV og internett og har avgift på kr 823 pr. mnd. Tv-tuner/dekoder medfølger.
Utgiftene er basert på nåværende eiers forbruk og avtaler.
Selger har avtalt Norgespris på strøm på eiendommen for perioden 01.10.25-31.12.26, og denne er pt på kr 50 øre inkl mva. Nettleie, avgifter og påslag fra kraftleverandøren kommer i tillegg.
Denne avtalen vil følge eiendommen i den avtalte perioden.
Les mer om Norgespris her: https://www.regjeringen.no/no/aktuelt/legg-fram-lov-om-norgespris-pa-straum-og-fjernvarme/id3102642/
Formuesverdi
Formuesverdi for 2023 var kr 1537 500,- ifølge selger/skatteetaten.
Omkostninger
6 390 000,00 Prisantydning
Omkostninger
159 750,00 Dokumentavgift til staten (2,5% av kjøpesum)
19 900,00 Gjensidige Boligkjøperpakke (valgfri)
545,00 Tinglysing panterettsdokument
545,00 Tinglysing skjøte
--------------------------------------------------------
180 740,00 Omkostninger totalt
--------------------------------------------------------
6 570 740,00 Totalpris inkl. omkostninger
--------------------------------------------------------
Totalpris inkl. omkostninger forutsetter kjøp til prisantydning.
Det tas forbehold om endringer i avgifter og gebyrer.
Betalingsbetingelser
Kjøpesum inkludert omkostninger, samt pantedokument tilknyttet eventuelt lån, skal være disponibelt hos megler 2 virkedager før overtagelsen.
Annen viktig informasjon
Annen viktig informasjon
Eier
Arne Hellenes og Gerd Hellenes
Konsesjon
Eiendommen er ikke konsesjonspliktig, men det er boplikt i Vinje kommune. For at eiendommen skal kunne overskjøtes må kjøper signere på egenerklæring om konsesjonsfrihet om at boplikten ikke gjelder for denne eiendommen.
Overtakelse
Etter nærmere avtale.
Boligselgerforsikring
Selger har i forbindelse med salget tegnet boligselgerforsikring levert av Gjensidige.
Boligselgerforsikringen dekker selgers ansvar etter avhendingsloven begrenset oppad til kr 14 millioner. Dersom kjøper oppdager forhold ved eiendommen som hen mener utgjør en mangel ved eiendommen, vil Gjensidige behandle reklamasjonen på vegne av selger. Forsikringsvilkår kan fås ved henvendelse til megler.
Vedlagt salgsoppgaven følger selgers egenerklæringsskjema og tilstandsrapport. Interessenter må sette seg inn i dokumentene før bud inngis.
Boligkjøperforsikring
Innen kontraktsmøtet må kjøper ta stilling til om det ønskes å bestille Boligkjøperpakken gjennom Gjensidige. I denne gunstige pakken er boligen ferdig forsikret og inkluderer rettshjelpsforsikring, også kalt Boligkjøperforsikring. Rettshjelpsforsikring gir trygghet og tilgang på profesjonell juridisk hjelp dersom det oppdages uventede feil eller mangler det første året etter overtagelse. Forsikringsselskapet behandler i så fall ethvert mangelskrav kjøper måtte ha overfor selger.
Boligkjøperpakken inkluderer bygningsforsikring for hus og hytte, innboforsikring, flytteforsikring og dobbel rentedekning - i situasjoner hvor kjøper ikke får solgt nåværende primærbolig.
Kjøper mottar ingen særskilt faktura for Boligkjøperpakken da kostnaden det første året legges til kjøpesummen for boligen. Det gjøres oppmerksom på Krogsveen mottar et honorar for denne formidlingen.
Produktark for Boligkjøperpakken ligger vedlagt i salgsoppgaven.
Dersom ikke boligkjøperpakke ønskes kan kun rettshjelpsforsikring, også kalt boligkjøperforsikring, tegnes særskilt via megler. Rettshjelpsforsikringen varer i 5 år fra overtagelse og leveres gjennom Gjensidige. Ta kontakt med megler for ytterligere informasjon.
Selskap og privatpersoner som driver med kjøp/salg/utvikling som ledd i egen næringsvirksomhet kan ikke tegne boligkjøperpakke eller rettshjelpsforsikring.
Budgivning
Forbrukerinformasjon om budgivning er vedlagt denne salgsoppgaven og er også på vår hjemmeside Krogsveen.no. Alle bud og budforhøyelser må inngis skriftlig. I tillegg må legitimasjon være fremlagt sammen med signatur fra budgiver.
Vi oppfordrer til å gi bud elektronisk via GI BUD-knappen på eiendommens hjemmeside på Krogsveen.no. Da vil samtlige vilkår bli oppfylt.
Eventuelle forhøyelser eller endringer av budet kan bekreftes pr SMS eller på e-post. Vi oppfordrer alltid til å kontakte megler pr. telefon i tillegg da forsinkelser i SMS og e-post kan forekomme.
For at budene skal kunne bli behandlet og videreformidlet skriftlig til alle involverte parter, må alle bud ha en tilstrekkelig lang akseptfrist, jf. eiendomsmeglingsforskriften § 6-3.
Selger må også skriftlig akseptere budet før aksept kan formidles til budgiver. Akseptfrist bør derfor være på minimum 30 minutter, og budforhøyelser må derfor skje i god tid før fristens utløp.
Bud i forbrukerforhold kan uansett ikke settes med kortere frist enn kl. 12.00 første virkedag etter siste annonserte visning. I tillegg kan ikke budet ha forbehold om at det skal holdes hemmelig ovenfor øvrige interessenter. Megler har iht lov om eiendomsmegling ikke anledning til å videreformidle disse budene, og de vil dermed heller ikke bli journalført.
Etter at eiendommen er solgt vil kjøper og selger få tilsendt budjournal. Øvrige budgivere kan få utlevert kopi av budjournalen i anonymisert form.
Hvitvaskingsreglene
I henhold til lov om hvitvasking og terrorfinansiering har megler plikt til å gjennomføre kontrolltiltak overfor kunder, herunder fullmektiger. Dette innebærer bl.a. å bekrefte kunders og reelle rettighetshaveres identitet på bakgrunn av fremvist gyldig legitimasjon eller på annen godkjent måte, samt å innhente opplysninger om kundeforholdets formål og tilsiktede art.
Dersom slike kundetiltak ikke kan gjennomføres, kan megler ikke etablere kundeforholdet eller utføre transaksjonen.
Hvis kjøper ikke bidrar til gjennomføring av kundekontrollen og dette fører til at transaksjonen blir forsinket eller ikke kan gjennomføres, vil dette ansees som mislighold av avtalen og gi selger rettigheter etter avhendingslova kapittel 5. I tilfeller der selger ikke bidrar til gjennomføring av løpende kundekontroll underveis i oppdraget, er det selger som misligholder sine forpliktelser etter avtalen og gi kjøper rettigheter etter avhendingslovens kapittel 4. Partene er selv ansvarlige for eventuelle kostnader og ansvar dette kan medføre. Eiendomsmegleren eller eiendomsmeglingsforetaket kan ikke holdes ansvarlig for de konsekvenser dette vil kunne få for partene eller andre som har interesser i eiendomshandelen.
Kjøper oppfordres til å innbetale kjøpesummen som ikke kommer fra låneinstitusjon i én samlet innbetaling fra egen konto i norsk bank. Megler har plikt til å melde fra til Økokrim om eiendomshandler som fremstår som mistenkelige. Melding sendes Økokrim uten at partene varsles.
Personopplysningsloven
I henhold til personopplysningsloven gjør vi oppmerksom på at interessenter kan bli registrert for videre oppfølging.
Lovanvendelse
Generelle bestemmelser
Salgsoppgaven er basert på de opplysningene selger har gitt til megler, den bygningssakyndiges tilstandsrapport, samt opplysninger innhentet fra kommunen, Kartverket og andre tilgjengelige kilder. Det er viktig at kjøper setter seg grundig inn i alle salgsdokumentene, herunder salgsoppgave, tilstandsrapport og selgers egenerklæring. Kjøper anses kjent med forhold som er tydelig beskrevet i salgsdokumentene, og slike forhold kan ikke påberopes som mangler. Dette gjelder uavhengig av om kjøper har lest dokumentene. Alle interessenter oppfordres til å undersøke eiendommen nøye, gjerne sammen med fagkyndig før bud inngis. Kjøper som velger å kjøpe usett kan ikke gjøre gjeldende som mangel noe han burde blitt kjent med ved undersøkelsen.
Dersom det er behov for avklaringer, anbefaler vi at interessenter rådfører seg med eiendomsmegler eller egne rådgivere før det legges inn bud.
En bolig som har blitt brukt i en viss tid, har vanligvis blitt utsatt for slitasje og skader kan ha oppstått. Slik bruksslitasje må kjøper regne med, og det kan avdekkes enkelte forhold etter overtakelse som nødvendiggjør utbedringer. Normal slitasje og skader som nødvendiggjør utbedring, er innenfor hva kjøper må forvente og vil ikke utgjøre en mangel.
Kjøper og selgers rettigheter og plikter reguleres av avtalen mellom partene, samt informasjonen som har vært tilgjengelig for kjøperen i forbindelse med handelen. Avtalen utfylles av avhendingsloven, og det gjelder ulike avtalevilkår avhengig av om kjøper er forbrukerkjøper eller ikke. Dette er nærmere beskrevet nedenfor.
På grunn av ulike avtalevilkår kan selger vurdere bud fra en som ikke er forbruker, ulikt fra en forbrukers bud. Dersom kjøper ikke er forbruker, er selger sitt mulige mangelsansvar begrenset fordi eiendommen selges "som den er". Selger kan ikke ta «som den er»- forbehold overfor en forbrukerkjøper. Selv et lavere bud fra en som ikke er forbruker kan foretrekkes fordi begrensningen i mulig mangelsansvar kan ha egenverdi for selger. Selger står fritt til å forkaste eller akseptere ethvert bud, og er for eksempel ikke forpliktet til å akseptere høyeste bud.
Budgiver skal i budskjema avgi egenerklæring om budgiver er forbruker eller næringsdrivende/ person som hovedsakelig handler som ledd i næringsvirksomhet. Budgivere får informasjon dersom andre bud er inngitt av en som ikke er forbruker.
Forbrukerkjøp - definisjon
Med forbrukerkjøp menes kjøp av eiendom når kjøperen er en fysisk person som ikke hovedsakelig handler som ledd i næringsvirksomhet.
Forbruker – avtalevilkår
Eiendommen har en mangel dersom den ikke er i samsvar med kravene som følger av avtalen, eller det foreligger brudd på bestemmelsene i avhendingsloven §§ 3-2 til 3-8. Hvis eiendommen ikke er i samsvar med det kjøperen må kunne forvente ut ifra alder, type og synlig tilstand, kan det være grunnlag for mangelskrav. Det samme gjelder hvis det er holdt tilbake eller gitt uriktige opplysninger om eiendommen. Dette gjelder likevel bare dersom man kan gå ut ifra at det virket inn på avtalen at opplysningen ikke ble gitt eller at mangelskravet ikke blir rettet i tide på en tydelig måte.
Boligen kan ha en mangel etter avhendingsloven § 3-3 andre ledd, dersom det er avvik mellom opplyst og faktisk innvendig areal, forutsatt at avviket er på 2% eller mer og minimum 1 kvm.
Ved beregning av et eventuelt prisavslag eller erstatning må kjøper selv dekke tap/kostnader opptil et beløp på kr 10 000 (egenandel).
Ikke-forbruker (næringsdrivende) – definisjon
Hvis kjøper er en juridisk person, eller en fysisk person som hovedsakelig handler som ledd i næringsvirksomhet, vil kjøpet ikke anses som et forbrukerkjøp.
Ikke-forbruker – avtalevilkår
Eiendommen har en mangel dersom den ikke er i samsvar med kravene som følger av avtalen.
Eiendommen selges «som den er», og selgers ansvar utover det konkret avtalte er da begrenset etter avhendingsloven § 3-9, første ledd andre setning.
Avhendingsloven § 3-3 andre ledd fravikes, og hvorvidt boligens arealsvikt utgjør en mangel vurderes etter avhendingsloven § 3-8.
Informasjon om kjøpers undersøkelsesplikt, herunder oppfordringen om å undersøke eiendommen nøye, gjelder også for kjøpere som ikke anses som forbrukere.
Det forutsettes at hjemmel overføres til kjøper. Hvis kjøper ikke ønsker hjemmelsoverføring av eiendommen, må det tas forbehold om dette i budet.
Meglers vederlag
Meglers vederlag betales av selger og er avtalt til:
Vederlag: 1,00 % av salgssummen inkl. eventuell fellesgjeld. Minimumsprovisjon er kr 50 000,00
Vederlag:
Kontroll av hjemmel og heftelser kr 2 900,00
Kunderabatt - Markedspakke kr -5 000,00
Kunderabatt - Tilrettelegging kr -5 000,00
Markedsføringspakke Fritid kr 27 400,00
Oppgjør kr 7 500,00
Tilrettelegging kr 17 000,00
Visninger pr stk kr 2 500,00
Utlegg:
Innhenting av offentlig opplysninger Vinje komm. inkl tegninger kr 4 152,00
Tinglysing sikring kr 545,00
Andre utgifter:
Boligselgerforsikring Gjensidige Tomt/Fritid regnes av prisant. kr 39 689,90
Foto inkl. plantegning og dronebilder, ca. kr. inkl kjøring kr 8 000,00
Vi er opptatt av verdiskapning, og har knyttet til oss samarbeidspartnere som skal sikre våre kunder de beste produkter og tjenester;
• I forbindelse med forberedelse av salget, innhenter vi informasjon om eiendommen hovedsakelig fra vår samarbeidspartner Amibita.
• Gjensidige leverer boligselgerforsikring og tilbyr bygningsforsikring
• Boligkjøperforsikring leveres av Hiscox og med Sedgwick som skadebehandler, og er formidlet gjennom Gjensidige.
• BN bank tilbyr finansieringsløsninger
• Vår avdeling Krogsveen Pluss tilbyr flyttetjenester som utvask, visningsvask, lager, tømming og transport av flyttelass, i tillegg til å formidle kontakt med Flip for overflateoppussing.
• I forbindelse med overtagelse av eiendommen tilbyr Overo avtale om strøm, alarm og bredbånd.
• Krogsveen er, sammen med øvrige bransjeaktører, medeier i Bomega AS som tilbyr den digitale annonseringsplattformen Hjem.
Opplysninger om oppdraget
Oppdragsnummer 26-0102/25
Eiendomsmegler Krogsveen AS, avd. Skien
Langbrygga 9, 3724, SKIEN
950 007 613
Oppdragets KR-kode KR26.25102
Dato
Sist oppdatert: 04. februar 2026 kl. 15:31
Dokumenter
Dokumenter
PDF – 1001 KB
PDF – 4 MB
PDF – 745 KB
PDF – 312 KB
PDF – 29 KB
PDF – 127 KB
PDF – 392 KB
Område
Legg til steder som er viktige for deg
Visning
For å delta på visning, ber vi om at du melder deg på. Da sikrer vi at du får nødvendig informasjon og at det er satt av tilstrekkelig med tid. Kontakt megler dersom annet tidspunkt ønskes. Husk å lese salgsoppgaven før visningen, så du stiller forberedt. NB!!! Visning utgår dersom det ikke er noen påmeldte innen kl 12:00 dagen før visning!
Ønsker du kun å bli holdt orientert, kan du fra eiendommens hjemmeside få varsel om solgtpris, eller kontakte megler.
Lurer du på noe?
Vurderer du utleie?
Få et tilbud fra Utleie KrogsveenHva koster lånet?
Sjekk estimert lånekostnadVil du varsles om lignende boliger?
Ved å lagre ditt boligsøk hos oss får du beskjed når vi har en bolig som ligner denne, før den legges ut på markedet!




