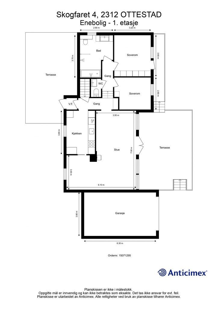
Skogfaret 4
3 850 000 kr
124 m²
2 soverom
Solgt

Ottestad
Pen enebolig med god beliggenhet i Sandvika - Solrik tomt, store uteplasser og garasje
Prisantydning
3 850 000 krOmkostninger
117 240 krTotalpris
3 967 240 kr
Pris
Bruksareal
173 m²BRA-I (internt bruksareal)
124 m²BRA-E (eksternt bruksareal)
49 m²TBA (terrasse-balkongareal)
76 m²
Areal
Etasje
2Byggeår
1969Soverom
2 soveromBad
1 badTomteareal
1 110 m² (eiet)Type
Enebolig - FrittliggendeEierform
EietFasiliteter
Garasje/P-plass og Balkong/TerrasseEnergimerke
Gul F
Nøkkelinfo
Unngå doble boligrenter
Vi tilbyr gunstig forsikring.
Vurderer du utleie?
Få et tilbud fra Utleie KrogsveenHva koster lånet?
Sjekk estimert lånekostnadBeskrivelse
Kort om eiendommen
Velkommen til Skogfaret 4!
Lys og innbydende enebolig i populære og barnevennlige omgivelser nederst i Bekkelaget.
Boligen går over to plan og har både en garasje og et romslig uthus med garasjeport.
Stort, oppusset bad fra 2019 med fliser, dusj, badekar, toalett og innredning. Boligen har gulvvarme i mange rom.
Solrik hjørnetomt beliggende i nærheten av Sandvika i en rolig gate. Eiendommen ligger ca. 15 minutters gange fra Mjøsa med båthavn og badestrand.
Kort gangavstand til skoler og barnehage, lekeplasser og friområder, samt til Vikasenteret.
Tomten har pent opparbeidet hage, store terrasser, lekestue og god plass til både uteaktiviteter og avslapning.
Velkommen til en hyggelig visning!
Område
Legg til steder som er viktige for deg
På flyttefot? Tenk kjøp og salg samtidig.
Få din egen rådgiver gjennom hele kjøps- og salgsprosessen. Det starter med en verdivurdering.
Unngå doble boligrenter
Vi tilbyr gunstig forsikring.
Vurderer du utleie?
Få et tilbud fra Utleie KrogsveenHva koster lånet?
Sjekk estimert lånekostnadVil du varsles om lignende boliger?
Ved å lagre ditt boligsøk hos oss får du beskjed når vi har en bolig som ligner denne, før den legges ut på markedet!

