Nørvegata 11C
1 600 000 kr
37 m²
Solgt

NØRVE
Arealutnyttet og trivelig leilighet med sentral beliggenhet | Sydvendt balkong på 7m² | Herlig utsikt
Prisantydning
1 600 000 krAndel fellesgjeld
271 000 krOmkostninger
11 040 krTotalpris
1 882 040 kr
Pris
Bruksareal
41 m²BRA-I (internt bruksareal)
37 m²BRA-E (eksternt bruksareal)
4 m²TBA (terrasse-balkongareal)
7 m²
Areal
Etasje
1Byggeår
1962Bad
1 badType
AndelsleilighetEierform
AndelFasiliteter
Balkong/TerrasseFellesutgifter
3 662 krEnergimerke
Rød E
Nøkkelinfo
Unngå doble boligrenter
Vi tilbyr gunstig forsikring.
Vurderer du utleie?
Få et tilbud fra Utleie KrogsveenHva koster lånet?
Sjekk estimert lånekostnadDette liker selger best ved boligen
Overbygd balkong med fantastisk utsikt. Svært gode parkeringsmuligheter. Smart romløsning - får mye ut av kvadratmeterne. Beliggenheten - kort vei til både by, Volsdalsberga og NTNU. Ny Kiwi like ved. Godt med lagringsplass i 3 boder. Veldrevet borettslag, med ny fasade i 2017.
Beskrivelse
Kort om eiendommen
Nørvegata 11C ligger nydelig til med kort veg til dagligvarebutikk, friluftsområder, kollektiv trafikk og kompetanseklyngen ved NTNU.
Leiligheten ligger i 1. etasje i boligblokk med underetasje og har adkomst fra bakkeplan med få trappetrinn til leiligheten.
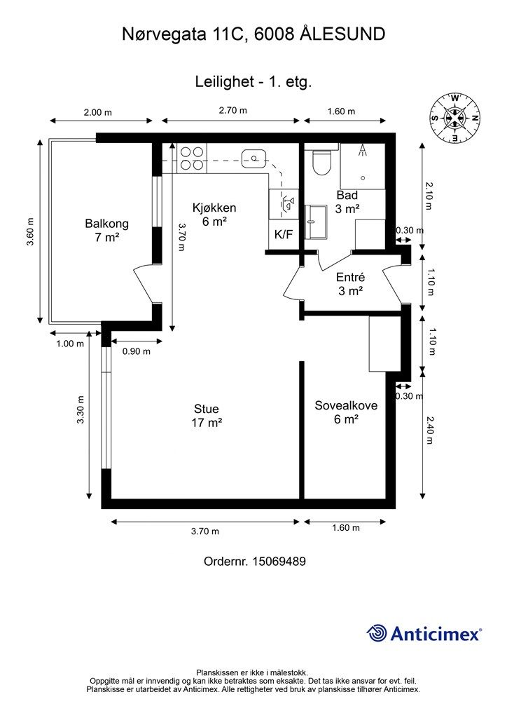
Planløsningen fordeler seg på entré, bad, stue-kjøkken og sovealkove, med en tiltalende standard. Fra kjøkken er det direkte utgang til sydvendt balkong på 7m² i tillegg til at man disponerer 3 boder.
Fra leilighetens oppholdsrom er det store vindusflater som sørger for godt lysinnslipp og som gir en nydelig utsikt mot syd. Utsikten kan og nytes fra balkongen, hvor det er montert varmelamper.
Parkeringsmulighetene er godt ivaretatt med gratis parkering langs Nørvegata og egne oppstillingsplasser på borettslagets tomt.
Område
Legg til steder som er viktige for deg
På flyttefot? Tenk kjøp og salg samtidig.
Få din egen rådgiver gjennom hele kjøps- og salgsprosessen. Det starter med en verdivurdering.
Unngå doble boligrenter
Vi tilbyr gunstig forsikring.
Vurderer du utleie?
Få et tilbud fra Utleie KrogsveenHva koster lånet?
Sjekk estimert lånekostnadVil du varsles om lignende boliger?
Ved å lagre ditt boligsøk hos oss får du beskjed når vi har en bolig som ligner denne, før den legges ut på markedet!

