Tybakken 22
6 890 000 kr
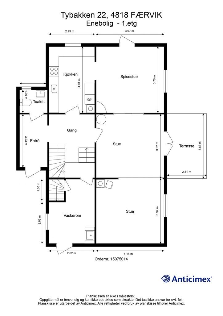
239 m²
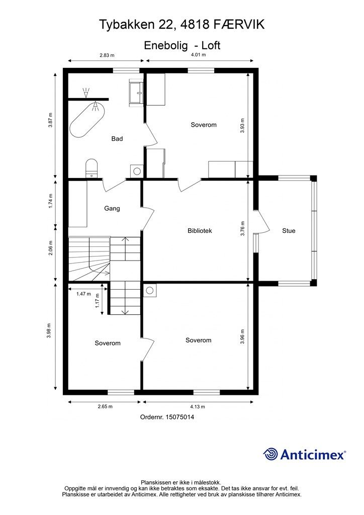
4 soverom
Solgt

Tromøy
Nydelig klassisk sveitservilla med stor idyllisk hage, anneks fra 2013 og tinglyst båtplass - Vestvendt og romslig tomt
Prisantydning
6 890 000 krOmkostninger
193 240 krTotalpris
7 083 240 kr
Pris
Bruksareal
280 m²BRA-I (internt bruksareal)
239 m²BRA-E (eksternt bruksareal)
41 m²TBA (terrasse-balkongareal)
71 m²
Areal
Byggeår
1920Soverom
4 soveromTomteareal
1 354 m² (eiet)Type
Enebolig - FrittliggendeEierform
EietFasiliteter
Garasje/P-plass og Balkong/TerrasseEnergimerke
Gul G
Nøkkelinfo
Unngå doble boligrenter
Vi tilbyr gunstig forsikring.
Vurderer du utleie?
Få et tilbud fra Utleie KrogsveenHva koster lånet?
Sjekk estimert lånekostnadBeskrivelse
Kort om eiendommen
En klassisk, velholdt og nydelig villa over 3 etasjer med gjennomgående gode kvaliteter og flotte originale detaljer. Eiendommen utstråler sjarm og særpreg, med lekre sveitserdetaljer som dekorative søyler og profiler.
I tillegg frittliggende arkitekttegnet anneks som tilfører eiendommen ekstra fleksibilitet og muligheter. Annekset er designet i tråd med boligen, går over 3 etasjer hvor det er garasje i underetasjen.
Tomten er vakkert og stemningsfullt opparbeidet hvor hagen er en frodig oase med lekre beplantninger, frukttrær, skiferterrasse og smijernsgjerder.
Beliggenheten er rolig og vestvendt i sjarmerende blindgate, og samtidig kort vei til skole, barnehage, servicetilbud, bussforbindelser og den vakre skjærgården.
Tinglyst båtplass ved brygge som ligger like nedenfor eiendommen.
Område
Legg til steder som er viktige for deg
På flyttefot? Tenk kjøp og salg samtidig.
Få din egen rådgiver gjennom hele kjøps- og salgsprosessen. Det starter med en verdivurdering.
Unngå doble boligrenter
Vi tilbyr gunstig forsikring.
Vurderer du utleie?
Få et tilbud fra Utleie KrogsveenHva koster lånet?
Sjekk estimert lånekostnadVil du varsles om lignende boliger?
Ved å lagre ditt boligsøk hos oss får du beskjed når vi har en bolig som ligner denne, før den legges ut på markedet!

