Sletteneplatået 11C
2 590 000 kr
76 m²
3 soverom
Komplett salgsoppgave

Tvedestrand
Nyere 4-roms fra 2022 i rolig og sentrumsnært nabolag - Veranda på 13 m² - Utsyn og parkering
Prisantydning
2 590 000 krOmkostninger
75 790 krTotalpris
2 665 790 kr
Pris
Bruksareal
81 m²BRA-I (internt bruksareal)
76 m²BRA-E (eksternt bruksareal)
5 m²TBA (terrasse-balkongareal)
13 m²
Areal
Etasje
2Byggeår
2022Soverom
3 soveromBad
1 badType
EierleilighetEierform
EierseksjonFasiliteter
Balkong/TerrasseFellesutgifter
750 krEnergimerke
Lysegrønn C
Nøkkelinfo
Unngå doble boligrenter
Vi tilbyr gunstig forsikring.
Vurderer du utleie?
Få et tilbud fra Utleie KrogsveenHva koster lånet?
Sjekk estimert lånekostnadBeskrivelse
Kort om eiendommen
Innhold og byggemåte
Innhold og byggemåte
Eiendommen
Sletteneplatået 11C, 4904 TVEDESTRAND
Kommunenummer 4213, gårdsnummer 2, bruksnummer 238, seksjonsnummer 3, ideell andel 1/1
Innhold
Totalt bruksareal BRA: 81 kvm
BRA-i:
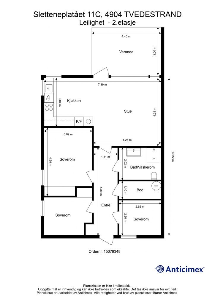
2. etasje 76 kvm: Entré, bod, tre soverom, bad/vaskerom, stue og kjøkken.
BRA-e:
1. etasje 5 kvm: Bod.
Terrasse- og balkongareal (TBA):
2. etasje 13 kvm: Veranda.
Leiligheten inneholder 72 kvm P-ROM og 4 kvm S-ROM (inkludert sportsbod er det 9 kvm.
Vedlagte plantegninger er ikke målbare. De oppgitte arealer er hentet fra rapport med befaringsdato 13.02.2026 utført av Anticimex AS v/Halvard Grina.
Byggemåte
Selger har fått utarbeidet en tilstandsrapport, dvs. en teknisk gjennomgang av boligen hvor eventuelle avvik, risiko for kjøper og prisoverslag for hva som bør gjøres av oppgradering, er skissert. Se særskilt TGIU (tilstandsgrad ikke undersøkt), samt TG2 og TG3 som viser hva som er boligens normale slitasje, alder og type, eller som bør/må utbedres. Rapporten og selgers egenerklæring er en del av salgsoppgaven og må leses nøye før bud inngis. Kjøper overtar ansvaret for de opplysninger som fremkommer av salgsdokumentasjonen, og kan ikke gjøre gjeldende som mangel noe som burde vært kjent eller som ikke kan anses å ha betydning for avtalen.
Bygningen er iht. tilstandsrapport en leilighet beliggende i 2. etasje i en firemannsbolig, oppført i 2022. Bygget er oppført med støpt plate på mark. Yttervegger er av trekonstruksjoner, kledd med liggende trekledning. Etasjeskillere er av trekonstruksjoner. Taket er en pulttakskonstruksjon i tre, utvendig tekket med asfaltpapp. Vinduer, terrassedør og ytterdør er fra byggeår, med karmer av tre og to-lags glass.
Følgende bygningsdeler er gitt Tilstandsgrad 2 (TG2) — Avvik som kan kreve tiltak:
- Loft - uinnredet / råloft - Helhetsvurdering: Det er ikke tilkomst for inspeksjon av uinnredet loft. Det er ikke kjent hvordan oppbyggingen er utført. Erfaringsmessig betraktes slike konstruksjoner som risikokonstruksjoner blant annet med tanke på fukt-/kondensproblematikk. Det er ikke observert skader eller symptomer på skader, men skader kan ikke utelukkes. TG2 er valgt for å belyse skaderisiko/behov for tiltak. Tilkomst bør etableres.
- Yttertak - Inspeksjonsmulighet: Taket er ikke fysisk inspisert grunnet is og snø (sikkerhetsmessige forhold). TG2 er valgt på bakgrunn av at taket kan være utsatt for slitasje, skader eller feil utførelse som ikke registreres grunnet begrenset tilkomst. Yttertaket bør kontrolleres i sin helhet når forholdene ligger til rette. Øvrige sjekkpunkter er kontrollert ut i fra alder og hva som lot seg inspisere.
Følgende bygningsdeler er ikke undersøkt (TGIU):
- Radon: Det er ikke foretatt radonmåling i boligen. Boligen er bygget etter at krav om radonsperre ble innført, men forholdet/utførelsen er ikke dokumentert. For å kartlegge de faktiske forholdene, må det gjennomføres målinger.
- Yttertak - Konstruksjon: Taket er en lukket konstruksjon fra innsiden på befaringstidspunktet, inspeksjon ikke mulig.
- Grunnmur, fundamenter - Byggegrunn: Byggegrunnens beskaffenhet er ukjent.
- Grunnmur, fundamenter - Fundamenter: Fundamenter er naturlig skjult, og det er for øvrig ingen sikre og dokumenterte opplysninger om type fundamenter som huset har.
Helse, miljø og sikkerhet
Det er foretatt en forenklet vurdering av boligens branntekniske forhold. Følgende er bemerket:
- Er det fremlagt et brannkonsept eller annen dokumentasjon av branntekniske forhold: Nei.
- Har boligen godkjent slukkeutstyr: Ja.
- Har boligen tilstrekkelig røykvarsling/deteksjon: Ja.
- Er det avdekket åpenbare feil eller mangler med brannskillende konstruksjoner: Nei.
- Oppfyller boligen krav til rømningsveier: Ja.
Ovennevnte er kun et utdrag fra rapporten. Se supplerende tekst i tilstandsrapporten for mer informasjon. Kjøper overtar ansvar og risiko for dette.
Selgers egenerklæringsskjema oppsummeres i korte trekk her:
- Det lakk vann fra ventilasjonen på badet, det ble fikset rett etter at jeg flyttet inn i 2022 av faglært/utbygger.
Moderniseringer og påkostninger
Ingen moderniseringer er dokumentert siden byggeår.
Standard
Eiendommen er en selveierleilighet i en firemannsbolig, oppført i 2022. Det er ikke utført betydelig oppussing eller oppgraderinger de siste tre årene, og det er ingen kjente feil eller mangler som bør utbedres. Snitt-, plan- og fasadetegninger, inkludert ferdigattest, er fremlagt. Boligen oppfyller krav til rømningsveier. Det er etablert balansert ventilasjon i boligen. Elektrisk oppvarming med gulvvarme i entré og på bad/vaskerom. Sikringsskapet er plassert i bod og har automatsikringer. Det er gjennomført en forenklet vurdering av det elektriske anlegget, uten at det er registrert åpenbare avvik. Boligen har godkjent slukkeutstyr og tilstrekkelig røykvarsling/deteksjon. Kjøkkenet er utstyrt med komfyrvakt og automatisk lekkasjestopper.
OVERFLATER OG INNREDNINGER:
GULV:
Fliser i entré og bad/vaskerom, laminat i kjøkken, stue og soverom, samt belegg i innvendig bod.
INNERVEGGER:
Malte panelplater i kjøkken, stue, soverom og entré, og flislagte vegger i bad/vaskerom.
HIMLINGER:
Malt panel i alle rom. Takhøyden i stue, kjøkken og alle tre soverom er målt til 2.42 meter. Innerdører er malte slette innerdører.
KJØKKEN:
Kjøkkenet har laminatgulv, malte panelplater på vegger og malt panel i himling. Innredningen har profilerte fronter og en laminert benkeplate. Kjøkkenet er utstyrt med integrert kjøleskap/fryser og oppvaskmaskin, samt stekeovn og koketopp med avtrekksvifte på vegg. Vasken har ett-greps armatur. Det er installert komfyrvakt og automatisk lekkasjestopper. Vannrør er av typen rør-i-rør system og avløpsrør av plast. Rommet har balansert ventilasjon og en takhøyde på 2.42 meter.
BAD/VASKEROM:
Bad/vaskerommet har flislagt gulv med gulvvarme og flislagte vegger. Himlingen har malt panel. Rommet har vegghengt servantinnredning med skuffer og en ovenpåliggende servant med ett-greps armatur, supplert med et speilskap med overlys. Dusjhjørnet har dører og vegghengt dusjarmatur. Det er installert vegghengt toalett. Vannrørene er av typen rør-i-rør system og avløpsrørene av plast. Ventilering skjer via mekanisk avtrekk med ventil i himling og tilluftsspalte under dør. Rommet er tilrettelagt med opplegg for vaskemaskin.
Løsøre og tilbehør
Vi viser til liste fra Norges Eiendomsmeglerforbund som gjelder fra 01.01.2020 angående løsøre og tilbehør.
Oppvarming
Elektrisk oppvarming. Det er gulvvarme i entré og på bad/vaskerom. I stua er det pipe og eier opplyser at det er mulig å installere peisovn.
Det gjøres oppmerksom på at megler ikke har innhentet særskilte opplysninger om det finnes pålegg fra brann-/feiervesen på eiendommen da det ikke er ildsted der i dag.
Ferdigattest/brukstillatelse
Det er utstedt ferdigattest for firemannsbolig og sportsbod datert 25.03.2022. Ferdigattesten gjelder for oppføring av firemannsbolig på gnr. 2 bnr. 238, Sletteneplatået 9-11. Denne kan fås ved henvendelse til megler.
En ferdigattest er en bekreftelse på at bygningsmyndighetene har avsluttet saken, og gir ingen garanti for at det ikke senere er utført arbeider som ikke er byggemeldt eller godkjent.
Tegning datert 08.06.2017 av fasade samsvarer med dagens løsning med noen mindre unntak som:
Tre er benyttet istedenfor plater langs vinduer på boligens gavlvegger. Planløsning samsvarer med dagens løsning basert på rominndeling.
Det er ikke funnet dokumentasjon på boder i rekke. Kjøper overtar risiko, ansvar og eventuelle kostnader forbundet med dette (sammen med sameiet).
Tinglyste heftelser og rettigheter
Eiendommen overdras fri for pengeheftelser.
Sameiet har legalpant for krav mot sameieren som følger av sameieforholdet iht. eierseksjonsloven § 31. Pantet er begrenset oppad til 2G (G = folketrygdens grunnbeløp).
Det er ingen tinglyste servitutter på eiendommen.
Eventuell adgang til utleie
Leiligheten kan leies ut såfremt leiligheten har forsvarlige radonverdier. Leietaker må følge sameiets vedtekter og ordensregler på lik linje som eier.
Diverse
Eiendommen er seksjonert, og leiligheten er tilknyttet Sameie Sletteneplatået 11 sameie, med sameiebrøk 1/4.
Sameiet har ikke forretningsfører eller styre, og det føres ikke regnskap eller budsjett. Dersom det mottas felles regninger til sameiet vil kostnader bli fordelt etter nærmere regler angitt av sameiet, vanligvis etter sameiebrøk eller vedtekter. Leder for sameiet opplyser at de holder alt veldig enkelt og at de ikke har hatt årsmøte i nyere tid. Det informeres også at firemannsboligen skal males på tre av sidene (øst, sør og vest) i 2026. Maling fordeles på hver seksjon, så vil det være mulig å betale seg ut av arbeidet på egen regning. Sameiet har et disponibelt beløp på ca. kr. 37.000,-. Sameiet er gjeldsfritt.
Dugnad må påregnes. Herunder maling, måking eller lignende.
Dyrehold er tillatt.
Vi gjør videre oppmerksom på at det iht. eierseksjonsloven ikke er anledning å erverve mer enn 2 seksjoner i sameiet, her teller også eierskap via. firma, nærstående og familie. Kjøper har risikoen for at overskjøting på denne bakgrunn kan nektes av Statens Kartverk. I så fall vil kjøper uansett være forpliktet til å gjennomføre handelen, og oppgjør til selger vil finne sted tross manglende overskjøting.
Konferer med megler for mer informasjon.
Dokumenter for sameiet og kopi av seksjonsbegjæringen kan fås ved henvendelse til megler.
Bilder i annonsen ble tatt i 2023. Det er lite endringer, med unntak av innredning (møbler o.l.).
Energimerking
Denne boligen er energimerket. På en skala fra A til G, der A er best, har denne boligen oppnådd C (en normalbolig vil gjerne ligge i området C-F). Kopi av energiattest ligger vedlagt i salgsoppgaven eller kan fås ved henvendelse til megler.
Beliggenhet og tomteforhold
Beliggenhet og tomteforhold
Beliggenhet
Rolig og sentrumsnær beliggenhet med korte avstander til de fleste fasiliteter. Her har man barnehage, skole, busstopp og dagligvare alt i underkant av 2 km fra eiendommen. Fra boligen er det enkel tilgang til flotte turområder og nydelige badeplasser, blant annet med en snarvei ned til sjøen via Tangenheia. I sentrum finner man nisjebutikker, bakeriutsalg, vinmonopol, apotek, båtliv ved brygga på sommerstid og mye mer. Tjenna i sentrum er populær om sommeren med flott badestrand og utlån av kajakk. I tillegg ligger det kjøpesenter like ovenfor sentrum. Med kort avstand til E18 er det rask forbindelse til nærliggende byer, med ca. 20 minutter til Arendal og 30 minutter til Risør.
Adkomst
Se kart eller kontakt megler for veibeskrivelse.
Barnehager, skoler og fritid
Barnehage:
Lyngbakken barnehage (1-5 år): 1.6 km
Bronsbu barnehage (1-5 år): 3.5 km
Blåbærskogen naturbarnehage (1-6 år): 3.8 km
Skole:
Tvedestrand barneskole (1-7 kl.): 1.7 km
Lyngmyr skole (8-10 kl.): 1.7 km
Tvedestrand videregående skole: 3.5 km
Sam Eydes videregående skole:27.1 km
Informasjon om tilhørende skolekretser er hentet fra Prognosesenteret som dataleverandør, og tilhørigheten kan årlig endres av kommunen. Dersom skole- og barnehagetilbud er av betydning for kjøpet, ber vi om at det rettes en særskilt henvendelse til kommunen/bydelsadministrasjonen for oppdatert informasjon.
Beskrivelse av tomt
Felleseiet tomt på 1546 m². Fellesarealene er pent opparbeidet med gruset innkjørsel og inkluderer biloppstillingsplasser, samt frittstående bod i rekke. Tomtearealet er i grunnkart fra kommunen satt som nøyaktig og mindre nøyaktig i de forskjellige grensepunktene. Arealet kan derfor avvkike noe ved en ny oppmåling.
Arealet inngjerdet i front av leilighetene i 1. etasje, tilhører seksjonene i 1. etasje i følge vedtekter. Dette arealet er ikke oppmålt, men det fremgår av vedtekter at endring av det må samtykkes om fra eier av seksjonen som disponerer området. Det betyr at 1. etasje har bruksrett på gjeldende område, og dette kan ikke endres uten samtykke av rettighetshaver.
Parkering
Leiligheten disponerer parkeringsplass på felles gruset innkjørsel/uteområde med flere biloppstillingsplasser.
Vei, vann og avløp
Eiendommen er tilknyttet offentlig vann- og avløpssystem. Stikkledningene fra eiendommen og ut til det kommunale nettet er private, og vedlikeholdsansvaret for disse påhviler sameiet.
Adkomst til eiendommen skjer via offentlig vei til privat innkjørsel på fellesareal.
Regulerings-og arealplaner
Eiendommen er regulert til boliger (1542 m²) og felles avkjørsel (4 m²) med feltnavn FA1. Dette følger av reguleringsplan "DEL AV VALBERGHEIA 2" (plan-ID 077_3), vedtatt 20.10.2009.
Eiendommen omfattes av Kommuneplan 2017 - 2029 (plan-ID 143), vedtatt 07.02.2017. I kommuneplanen er 1300 m² av eiendommen avsatt til boligbebyggelse (nåværende), og 246 m² er avsatt til landbruks-, natur- og friluftsformål samt reindrift (LNFR). LNFR-område i kommuneplanen gjelder bakre del av tomten/boligen i kommuneplan.
Eiendommen berøres av hensynssone H910: Reguleringsplan skal fortsatt gjelde. Hensynssonen innebærer at eldre, mer detaljerte reguleringsplaner har forrang foran kommuneplanens generelle arealbruk. For denne eiendommen betyr det at reguleringsplan "DEL AV VALBERGHEIA 2" er den gjeldende planen.
Utsnitt av plan med tilhørende bestemmelser kan fås ved henvendelse til megler.
Økonomi
Økonomi
Boligens kostnader
Fellesutgiftene er kr 750,- pr. mnd. og inkluderer byggforsikring og avsetting til fremtidig vedlikehold.
Kommunale utgifter
Kommunale avgifter inkluderer vann, avløp, renovasjon og feiing.
Fakturert beløp i 2025:
- Vann: kr 5 826,-
- Avløp: kr 7 994,-
- Feiing: kr 309,-
- Eiendomsskatt: kr 6 388,-
- Renovasjon: kr 5 044,-
Totalt: kr 25 561,-
Eiendommen har ikke vannmåler. Det er valgfritt i Tvedestrand å montere, men dersom man først monterer vannmåler er det ikke tillatt å frakoble.
Andre løpende kostnader opplyst av selger:
- TV/Internett: kr 1 400,- pr. måned (Telia)
- Forsikring (bygning/hus): Inkludert i fellesutgifter
- Innboforsikring må ny eier ordne selv
- Strøm: Forbruk ukjent, Norgespris-avtale
Utgiftene er basert på nåværende eiers forbruk og avtaler.
Formuesverdi
Formuesverdi for 2024 var kr 665 667,- ifølge selgers skatteetaten. Beløpet forutsetter at eier bor fast i boligen (primærbolig).
Ved eventuell øvrig bruk av eiendommen (f.eks. fritidsbolig, pendlerbolig, utleieobjekt) var formuesverdien for 2023 kr 2 662 666,-.
Fra 2026 har Stortinget vedtatt en oppdatert modell for beregning av formuesverdi for primærbolig, så avvik kan forekomme.
For mer informasjon se skatteetaten.no
Omkostninger
2 590 000,00 Prisantydning
Omkostninger
64 750,00 Dokumentavgift til staten (2,5% av kjøpesum)
9 950,00 Gjensidige Boligkjøperpakke (valgfri)
545,00 Tinglysing panterettsdokument
545,00 Tinglysing skjøte
--------------------------------------------------------
75 790,00 Omkostninger totalt
--------------------------------------------------------
2 665 790,00 Totalpris inkl. omkostninger
--------------------------------------------------------
Dersom sameiet har fellesgjeld, vil leilighetens andel av fellesgjelden komme i tillegg til kjøpesummen. Denne gjelden skal ikke innbetales i oppgjøret, men følger leiligheten.
Totalpris inkl. omkostninger forutsetter kjøp til prisantydning.
Det tas forbehold om endringer i avgifter og gebyrer.
Betalingsbetingelser
Kjøpesum inkludert omkostninger, samt pantedokument tilknyttet eventuelt lån, skal være disponibelt hos megler 2 virkedager før overtagelsen.
Annen viktig informasjon
Annen viktig informasjon
Eier
Lise Ingvild Olsen
Informasjon om sameiet
Sameiet Sletteneplatået 11 består av en firemannsbolig med fire selveier leiligheter beliggende i Tvedestrand kommune.
Overtakelse
Etter nærmere avtale.
Boligselgerforsikring
Selger har i forbindelse med salget tegnet boligselgerforsikring levert av Gjensidige.
Boligselgerforsikringen dekker selgers ansvar etter avhendingsloven begrenset oppad til kr 14 millioner. Dersom kjøper oppdager forhold ved eiendommen som hen mener utgjør en mangel ved eiendommen, vil Gjensidige behandle reklamasjonen på vegne av selger. Forsikringsvilkår kan fås ved henvendelse til megler.
Vedlagt salgsoppgaven følger selgers egenerklæringsskjema og tilstandsrapport. Interessenter må sette seg inn i dokumentene før bud inngis.
Boligkjøperforsikring
Innen kontraktsmøtet må kjøper ta stilling til om det ønskes å bestille Boligkjøperpakken gjennom Gjensidige. I denne gunstige pakken er boligen ferdig forsikret og inkluderer rettshjelpsforsikring, også kalt Boligkjøperforsikring. Rettshjelpsforsikring gir trygghet og tilgang på profesjonell juridisk hjelp dersom det oppdages uventede feil eller mangler det første året etter overtagelse. Forsikringsselskapet behandler i så fall ethvert mangelskrav kjøper måtte ha overfor selger.
Boligkjøperpakken inkluderer bygningsforsikring for hus og hytte, innboforsikring, flytteforsikring og dobbel rentedekning - i situasjoner hvor kjøper ikke får solgt nåværende primærbolig.
Kjøper mottar ingen særskilt faktura for Boligkjøperpakken da kostnaden det første året legges til kjøpesummen for boligen. Det gjøres oppmerksom på Krogsveen mottar et honorar for denne formidlingen.
Produktark for Boligkjøperpakken ligger vedlagt i salgsoppgaven.
Dersom ikke boligkjøperpakke ønskes kan kun rettshjelpsforsikring, også kalt boligkjøperforsikring, tegnes særskilt via megler. Rettshjelpsforsikringen varer i 5 år fra overtagelse og leveres gjennom Gjensidige. Ta kontakt med megler for ytterligere informasjon.
Selskap og privatpersoner som driver med kjøp/salg/utvikling som ledd i egen næringsvirksomhet kan ikke tegne boligkjøperpakke eller rettshjelpsforsikring.
Budgivning
Forbrukerinformasjon om budgivning er vedlagt denne salgsoppgaven og er også på vår hjemmeside Krogsveen.no. Alle bud og budforhøyelser må inngis skriftlig. I tillegg må legitimasjon være fremlagt sammen med signatur fra budgiver.
Vi oppfordrer til å gi bud elektronisk via GI BUD-knappen på eiendommens hjemmeside på Krogsveen.no. Da vil samtlige vilkår bli oppfylt.
Eventuelle forhøyelser eller endringer av budet kan bekreftes pr SMS eller på e-post. Vi oppfordrer alltid til å kontakte megler pr. telefon i tillegg da forsinkelser i SMS og e-post kan forekomme.
For at budene skal kunne bli behandlet og videreformidlet skriftlig til alle involverte parter, må alle bud ha en tilstrekkelig lang akseptfrist, jf. eiendomsmeglingsforskriften § 6-3.
Selger må også skriftlig akseptere budet før aksept kan formidles til budgiver. Akseptfrist bør derfor være på minimum 30 minutter, og budforhøyelser må derfor skje i god tid før fristens utløp.
Bud i forbrukerforhold kan uansett ikke settes med kortere frist enn kl. 12.00 første virkedag etter siste annonserte visning. I tillegg kan ikke budet ha forbehold om at det skal holdes hemmelig ovenfor øvrige interessenter. Megler har iht lov om eiendomsmegling ikke anledning til å videreformidle disse budene, og de vil dermed heller ikke bli journalført.
Etter at eiendommen er solgt vil kjøper og selger få tilsendt budjournal. Øvrige budgivere kan få utlevert kopi av budjournalen i anonymisert form.
Hvitvaskingsreglene
I henhold til lov om hvitvasking og terrorfinansiering har megler plikt til å gjennomføre kontrolltiltak overfor kunder, herunder fullmektiger. Dette innebærer bl.a. å bekrefte kunders og reelle rettighetshaveres identitet på bakgrunn av fremvist gyldig legitimasjon eller på annen godkjent måte, samt å innhente opplysninger om kundeforholdets formål og tilsiktede art.
Dersom slike kundetiltak ikke kan gjennomføres, kan megler ikke etablere kundeforholdet eller utføre transaksjonen.
Hvis kjøper ikke bidrar til gjennomføring av kundekontrollen og dette fører til at transaksjonen blir forsinket eller ikke kan gjennomføres, vil dette ansees som mislighold av avtalen og gi selger rettigheter etter avhendingslova kapittel 5. I tilfeller der selger ikke bidrar til gjennomføring av løpende kundekontroll underveis i oppdraget, er det selger som misligholder sine forpliktelser etter avtalen og gi kjøper rettigheter etter avhendingslovens kapittel 4. Partene er selv ansvarlige for eventuelle kostnader og ansvar dette kan medføre. Eiendomsmegleren eller eiendomsmeglingsforetaket kan ikke holdes ansvarlig for de konsekvenser dette vil kunne få for partene eller andre som har interesser i eiendomshandelen.
Kjøper oppfordres til å innbetale kjøpesummen som ikke kommer fra låneinstitusjon i én samlet innbetaling fra egen konto i norsk bank. Megler har plikt til å melde fra til Økokrim om eiendomshandler som fremstår som mistenkelige. Melding sendes Økokrim uten at partene varsles.
Personopplysningsloven
I henhold til personopplysningsloven gjør vi oppmerksom på at interessenter kan bli registrert for videre oppfølging.
Lovanvendelse
Generelle bestemmelser
Salgsoppgaven er basert på de opplysningene selger har gitt til megler, den bygningssakyndiges tilstandsrapport, samt opplysninger innhentet fra kommunen, Kartverket og andre tilgjengelige kilder. Det er viktig at kjøper setter seg grundig inn i alle salgsdokumentene, herunder salgsoppgave, tilstandsrapport og selgers egenerklæring. Kjøper anses kjent med forhold som er tydelig beskrevet i salgsdokumentene, og slike forhold kan ikke påberopes som mangler. Dette gjelder uavhengig av om kjøper har lest dokumentene. Alle interessenter oppfordres til å undersøke eiendommen nøye, gjerne sammen med fagkyndig før bud inngis. Kjøper som velger å kjøpe usett kan ikke gjøre gjeldende som mangel noe han burde blitt kjent med ved undersøkelsen.
Dersom det er behov for avklaringer, anbefaler vi at interessenter rådfører seg med eiendomsmegler eller egne rådgivere før det legges inn bud.
En bolig som har blitt brukt i en viss tid, har vanligvis blitt utsatt for slitasje og skader kan ha oppstått. Slik bruksslitasje må kjøper regne med, og det kan avdekkes enkelte forhold etter overtakelse som nødvendiggjør utbedringer. Normal slitasje og skader som nødvendiggjør utbedring, er innenfor hva kjøper må forvente og vil ikke utgjøre en mangel.
Kjøper og selgers rettigheter og plikter reguleres av avtalen mellom partene, samt informasjonen som har vært tilgjengelig for kjøperen i forbindelse med handelen. Avtalen utfylles av avhendingsloven, og det gjelder ulike avtalevilkår avhengig av om kjøper er forbrukerkjøper eller ikke. Dette er nærmere beskrevet nedenfor.
På grunn av ulike avtalevilkår kan selger vurdere bud fra en som ikke er forbruker, ulikt fra en forbrukers bud. Dersom kjøper ikke er forbruker, er selger sitt mulige mangelsansvar begrenset fordi eiendommen selges "som den er". Selger kan ikke ta «som den er»- forbehold overfor en forbrukerkjøper. Selv et lavere bud fra en som ikke er forbruker kan foretrekkes fordi begrensningen i mulig mangelsansvar kan ha egenverdi for selger. Selger står fritt til å forkaste eller akseptere ethvert bud, og er for eksempel ikke forpliktet til å akseptere høyeste bud.
Budgiver skal i budskjema avgi egenerklæring om budgiver er forbruker eller næringsdrivende/ person som hovedsakelig handler som ledd i næringsvirksomhet. Budgivere får informasjon dersom andre bud er inngitt av en som ikke er forbruker.
Forbrukerkjøp - definisjon
Med forbrukerkjøp menes kjøp av eiendom når kjøperen er en fysisk person som ikke hovedsakelig handler som ledd i næringsvirksomhet.
Forbruker – avtalevilkår
Eiendommen har en mangel dersom den ikke er i samsvar med kravene som følger av avtalen, eller det foreligger brudd på bestemmelsene i avhendingsloven §§ 3-2 til 3-8. Hvis eiendommen ikke er i samsvar med det kjøperen må kunne forvente ut ifra alder, type og synlig tilstand, kan det være grunnlag for mangelskrav. Det samme gjelder hvis det er holdt tilbake eller gitt uriktige opplysninger om eiendommen. Dette gjelder likevel bare dersom man kan gå ut ifra at det virket inn på avtalen at opplysningen ikke ble gitt eller at mangelskravet ikke blir rettet i tide på en tydelig måte.
Boligen kan ha en mangel etter avhendingsloven § 3-3 andre ledd, dersom det er avvik mellom opplyst og faktisk innvendig areal, forutsatt at avviket er på 2% eller mer og minimum 1 kvm.
Ved beregning av et eventuelt prisavslag eller erstatning må kjøper selv dekke tap/kostnader opptil et beløp på kr 10 000 (egenandel).
Ikke-forbruker (næringsdrivende) – definisjon
Hvis kjøper er en juridisk person, eller en fysisk person som hovedsakelig handler som ledd i næringsvirksomhet, vil kjøpet ikke anses som et forbrukerkjøp.
Ikke-forbruker – avtalevilkår
Eiendommen har en mangel dersom den ikke er i samsvar med kravene som følger av avtalen.
Eiendommen selges «som den er», og selgers ansvar utover det konkret avtalte er da begrenset etter avhendingsloven § 3-9, første ledd andre setning.
Avhendingsloven § 3-3 andre ledd fravikes, og hvorvidt boligens arealsvikt utgjør en mangel vurderes etter avhendingsloven § 3-8.
Informasjon om kjøpers undersøkelsesplikt, herunder oppfordringen om å undersøke eiendommen nøye, gjelder også for kjøpere som ikke anses som forbrukere.
Det forutsettes at hjemmel overføres til kjøper. Hvis kjøper ikke ønsker hjemmelsoverføring av eiendommen, må det tas forbehold om dette i budet.
Meglers vederlag
Meglers vederlag betales av selger og er avtalt til:
Vederlag: 1,90 % av salgssummen inkl. eventuell fellesgjeld. Minimumsprovisjon er kr 50 000,00
Vederlag:
Kontroll av hjemmel og heftelser kr 4 500,00
Markedsføringspakke kr 28 900,00
Oppgjør kr 8 900,00
Tilrettelegging kr 6 900,00
Visninger pr stk / Overtagelse kr 500,00
Utlegg:
Eierskiftegebyr kr 0,00
Innhenting av offentlig opplysninger Tvedestrand kommune kr 2 000,00
Tinglysing sikring kr 545,00
Andre utgifter:
AX tilstandsrapport leilighet kr 8 500,00
Boligselgerforsikring Gjensidige Snr - regnes av prisantydning kr 11 862,20
Foto kr 4 000,00
Vi er opptatt av verdiskapning, og har knyttet til oss samarbeidspartnere som skal sikre våre kunder de beste produkter og tjenester;
• I forbindelse med forberedelse av salget, innhenter vi informasjon om eiendommen hovedsakelig fra vår samarbeidspartner Amibita.
• Gjensidige leverer boligselgerforsikring og tilbyr bygningsforsikring
• Boligkjøperforsikring leveres av Hiscox og med Sedgwick som skadebehandler, og er formidlet gjennom Gjensidige.
• BN bank tilbyr finansieringsløsninger
• Vår avdeling Krogsveen Pluss tilbyr flyttetjenester som utvask, visningsvask, lager, tømming og transport av flyttelass, i tillegg til å formidle kontakt med Flip for overflateoppussing.
• I forbindelse med overtagelse av eiendommen tilbyr Overo avtale om strøm, alarm og bredbånd.
• Krogsveen er, sammen med øvrige bransjeaktører, medeier i Bomega AS som tilbyr den digitale annonseringsplattformen Hjem.
Opplysninger om oppdraget
Oppdragsnummer 47-0010/26
Eiendomsmegler Krogsveen AS, avd. Arendal
Kystveien 14, 4841, ARENDAL
950 007 613
Oppdragets KR-kode KR47.2610
Dato
Sist oppdatert: 23. mai 2026 kl. 19:03
Dokumenter
Dokumenter
PDF – 940 KB
PDF – 168 KB
PDF – 334 KB
PDF – 312 KB
PDF – 29 KB
PDF – 127 KB
PDF – 392 KB
Område
Legg til steder som er viktige for deg
Visning
For å delta på visning, ber vi om at du melder deg på. Da sikrer vi at du får nødvendig informasjon og at det er satt av tilstrekkelig med tid. Kontakt megler dersom annet tidspunkt ønskes. Husk å lese salgsoppgaven før visningen, så du stiller forberedt. NB. Visning utgår dersom det ikke er noen påmeldte.
Ønsker du kun å bli holdt orientert, kan du fra eiendommens hjemmeside få varsel om solgtpris, eller kontakte megler.
Lurer du på noe?
Unngå doble boligrenter
Vi tilbyr gunstig forsikring.
Vurderer du utleie?
Få et tilbud fra Utleie KrogsveenHva koster lånet?
Sjekk estimert lånekostnadVil du varsles om lignende boliger?
Ved å lagre ditt boligsøk hos oss får du beskjed når vi har en bolig som ligner denne, før den legges ut på markedet!
































