Bosmyrveien 22 B
3 390 000 kr
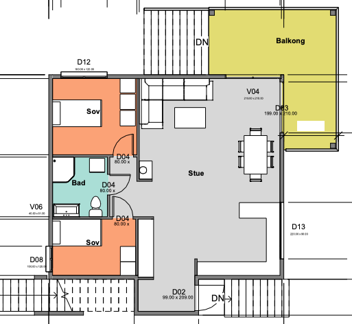
69 m²
2 soverom
Solgt
Totalrenovert og innflytningsklar 3-roms med solrik uteplass – Nærhet til buss og skole - Carport - Lave mnd. kostnader
Prisantydning
3 390 000 krOmkostninger
87 420 krTotalpris
3 477 420 kr
Pris
Bruksareal
69 m²BRA-I (internt bruksareal)
69 m²TBA (terrasse-balkongareal)
19 m²
Areal
Etasje
1Byggeår
1956Soverom
2 soveromBad
1 badType
EierleilighetEierform
EierseksjonFasiliteter
Balkong/TerrasseFellesutgifter
1 500 kr
Nøkkelinfo
Unngå doble boligrenter
Vi tilbyr gunstig forsikring.
Vurderer du utleie?
Få et tilbud fra Utleie KrogsveenHva koster lånet?
Sjekk estimert lånekostnadBeskrivelse
Kort om eiendommen
Leiligheten er betydelig renovert og fremstår meget delikat, med moderne overflater, god planløsning og lyse, trivelige rom. Her kan du flytte rett inn!
Eiendommen ligger svært sentralt, med kort vei til Amfi Vågsbygd, butikker, vinmonopol, apotek og kollektivtransport. Barnehager og alle skoletrinn finnes i gangavstand, i tillegg til idrettsanlegg med blant annet kunstgress- og tennisbaner.
Leiligheten har et deilig og lunt uteområde med gode solforhold, egen carport og sportsbod – for en praktisk og behagelig hverdag.
Området byr på herlige turmuligheter, badeplasser og nærhet til sjøen. Auglandsbukta, og Bragdøya ligger kun en kort spasertur unna, og ellers den flotte Sørlandskysten.
En komplett og innflyttingsklar bolig med alt du trenger – både inne og ute!
Område
Legg til steder som er viktige for deg
På flyttefot? Tenk kjøp og salg samtidig.
Få din egen rådgiver gjennom hele kjøps- og salgsprosessen. Det starter med en verdivurdering.
Unngå doble boligrenter
Vi tilbyr gunstig forsikring.
Vurderer du utleie?
Få et tilbud fra Utleie KrogsveenHva koster lånet?
Sjekk estimert lånekostnadVil du varsles om lignende boliger?
Ved å lagre ditt boligsøk hos oss får du beskjed når vi har en bolig som ligner denne, før den legges ut på markedet!




