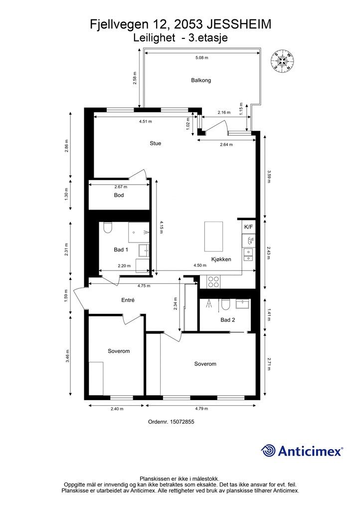
Fjellvegen 12
5 690 000 kr
86 m²
2 soverom
Solgt

Jessheim - Skogmo
Stilren og romslig 3-roms eierleilighet med to garasjeplasser m/lader og to bad | Balkong med god utsikt og solforhold
Prisantydning
5 690 000 krOmkostninger
153 290 krTotalpris
5 843 290 kr
Pris
Bruksareal
92 m²BRA-I (internt bruksareal)
86 m²BRA-E (eksternt bruksareal)
6 m²TBA (terrasse-balkongareal)
16 m²
Areal
Etasje
3Byggeår
2021Soverom
2 soveromBad
2 badType
EierleilighetEierform
EierseksjonFasiliteter
Garasje/P-plass, Heis og Balkong/TerrasseFellesutgifter
3 109 krEnergimerke
Grønn A
Nøkkelinfo
Unngå doble boligrenter
Vi tilbyr gunstig forsikring.
Vurderer du utleie?
Få et tilbud fra Utleie KrogsveenHva koster lånet?
Sjekk estimert lånekostnadBeskrivelse
Kort om eiendommen
Velkommen til Fjellvegen 12 - en stilren og innbydende eierleilighet sentralt på Jessheim. Leiligheten ligger i 3. etasje og har en god planløsning, samt god intern beliggenhet i sameiet. Opprinnelig en 4-roms omgjort til 3-roms, og kan enkelt tilbakestilles ved behov. Med to bad, to soverom, god lagringsplass og to garasjeplasser har denne leiligheten "alt". Oppgradert kjøkken med kjøkkenøy, downlights i stue, en stor flislagt entré og screens for å nevne noe. Solrik balkong med godt utsyn og god plass til utemøbler. Leiligheten varmes opp med vannbåren gulvvarme.
Området er under vekst og består av nybygde leilighetsbygg og frittliggende eneboliger. Kort vei til gode turmuligheter året rundt. Buss og tog en kort spasertur fra leiligheten, og Jessheim sentrum kun 500 meter unna.
Område
Legg til steder som er viktige for deg
På flyttefot? Tenk kjøp og salg samtidig.
Få din egen rådgiver gjennom hele kjøps- og salgsprosessen. Det starter med en verdivurdering.
Unngå doble boligrenter
Vi tilbyr gunstig forsikring.
Vurderer du utleie?
Få et tilbud fra Utleie KrogsveenHva koster lånet?
Sjekk estimert lånekostnadVil du varsles om lignende boliger?
Ved å lagre ditt boligsøk hos oss får du beskjed når vi har en bolig som ligner denne, før den legges ut på markedet!

